Pesquisar perto de mim
A aguardar a sua pesquisa
Voltar
Terreno urbano projeto aprovado prédio residencial, ramada
Terreno urbano projeto aprovado prédio residencial, ramada
Terreno urbano projeto aprovado prédio residencial, ramada
Terreno urbano projeto aprovado prédio residencial, ramada
Ver galeria (8)
Ver galeria (8)
Seguir
Partilhar

Terreno urbano projeto aprovado prédio residencial, ramada

Lisboa, Odivelas, Ramada e Caneças Ver no mapa
450 000 €
0 Quartos
0 WC's
Certificação Energética: Isento
Estado: Em Projecto

Descrição do anúncio

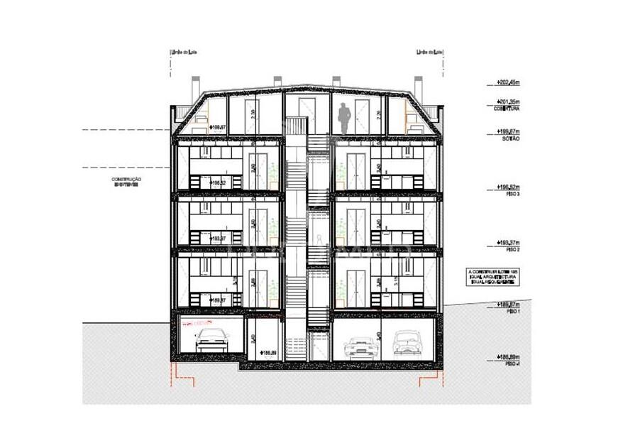
O preço indicado é referente a cada lote, podendo ser vendidos juntos ou separados. Venda de dois Lotes de terreno urbano com projeto aprovado para prédio residencial, com licença de construção e caução pagas, localizado no Bairro dos Pedrenais, Ramada em Odivelas. Cada Lote possui uma área 335 m2 e o projeto contempla a construção de um edifício com uma área de implantação de 335 m2. A área bruta construção é de 582.06 m2, sendo esta distribuída por 5 pisos: 3 pisos habitacionais, Cave e sótão. Cada lote permite a construção de um edifício de 6 apartamentos de tipologia T2 com áreas na ordem de 86 m², 6 estacionamentos no piso cave e 5 arrecadações no sótão. Inserido num bairro tranquilo de Odivelas, com rápido acesso às principais vias rodoviárias (IC22, CRIL, CREL, Calçada de Carriche, A8, túnel do Grilo, etc).Proximidade a todo o comércio e serviços, Hospital, ao centro de Odivelas, às Colinas do Cruzeiro, Centro Comercial Strada e Ramada, onde está prevista a saída do metro de Odivelas. Possuímos para venda mais 1 lote (Lote 187) na mesma urbanização. Se vendidos os 3 em conjunto, o total de área bruta de construção é de 2202 m2.
Lote 187Área de implantação: 500 m2. Área bruta construção: 1038 m2

Normal
0



21


false
false
false

PT
X-NONE
X-NONE













MicrosoftInternetExplorer4



























































































































































/* Style Definitions */
table.MsoNormalTable
{mso-style-name:"Tabela normal";
mso-tstyle-rowband-size:0;
mso-tstyle-colband-size:0;
mso-style-noshow:yes;
mso-style-priority:99;
mso-style-qformat:yes;
mso-style-parent:"";
mso-padding-alt:0cm 5.4pt 0cm 5.4pt;
mso-para-margin-top:0cm;
mso-para-margin-right:0cm;
mso-para-margin-bottom:10.0pt;
mso-para-margin-left:0cm;
line-height:115%;
mso-pagination:widow-orphan;
font-size:11.0pt;
font-family:"Calibri","sans-serif";
mso-ascii-font-family:Calibri;
mso-ascii-theme-font:minor-latin;
mso-hansi-font-family:Calibri;
mso-hansi-theme-font:minor-latin;
mso-bidi-font-family:"Times New Roman";
mso-bidi-theme-font:minor-bidi;
mso-fareast-language:EN-US;}


Contacte-me para mais informações ou agendar visita. 







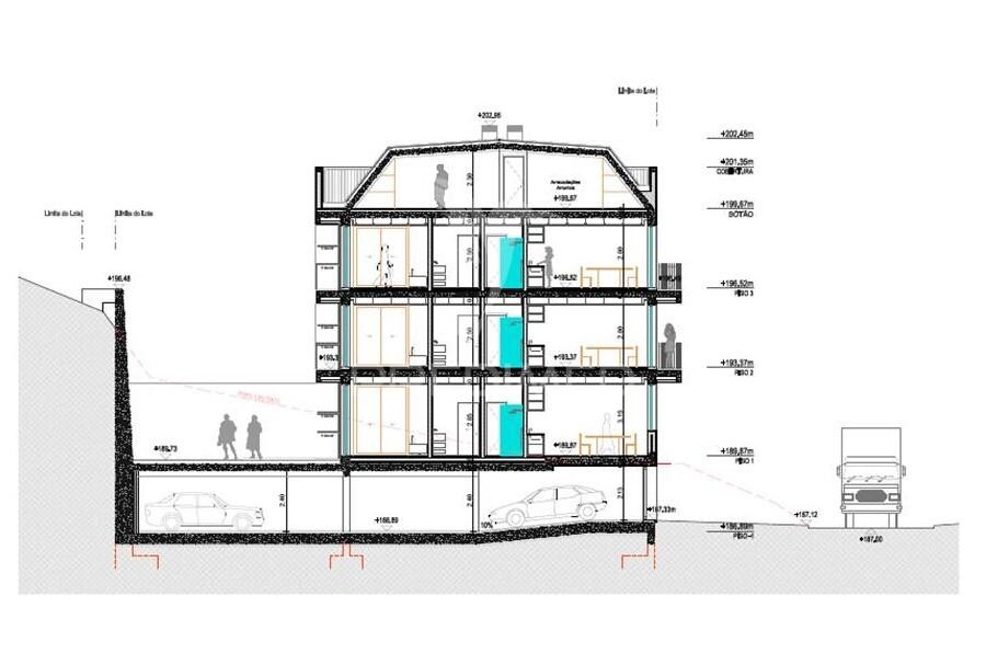
O Lote situa-se num gaveto e possui uma área 500m2 sendo a área de implantação é de 500 m2. A área bruta construção é de 1038 m2, distribuída por 4 pisos acima do solo e 1 piso em cave.

O projeto contempla a construção de um edifício com 9 apartamentos de tipologias T2 e T3, estacionamentos e arrecadações.

Possui 6 apartamentos de tipologia T2 e 3 apartamentos T3, com áreas na ordem de 98 m² e 128 m², respetivamente. O projeto inclui ainda 15 lugares de estacionamento no piso Cave e arrecadações no Sotão.

Inserido num bairro tranquilo de Odivelas, com rápido acesso às principais vias rodoviárias (IC22, CRIL, CREL, Calçada de Carriche, A8, túnel do Grilo, etc)-

 Proximidade a todo o comércio e serviços, Hospital, ao centro de Odivelas, às Colinas do Cruzeiro, Centro Comercial Strada e Ramada, onde está prevista a saída do metro de Odivelas. 

Possuímos para venda mais 2 lotes na mesma urbanização. Se vendidos os 3 em conjunto, o total de área bruta de construção é de 1938 m2.

Contacte-me para mais informações ou agendar visita. 


Predimed Imobiliária, Mediação Imobiliária, Lda.
Avenida Brasil 43, 12º Andar, 1700-062 Lisboa
Licença AMI nº 22503
Pessoa Coletiva nº 517 239 345
Seguro Responsabilidade Civil: Nº de Apólice RC65379424 Fidelidade

Galeria do imóvel

Terreno urbano projeto aprovado prédio residencial, ramada
Terreno urbano projeto aprovado prédio residencial, ramada
Terreno urbano projeto aprovado prédio residencial, ramada
Terreno urbano projeto aprovado prédio residencial, ramada
Terreno urbano projeto aprovado prédio residencial, ramada
Terreno urbano projeto aprovado prédio residencial, ramada

Localização do imóvel

Lisboa, Odivelas, Ramada e Caneças

Referência do anúncio: 056213. Última atualização: 02 novembro 2025.

Relatório de preços praticados nos últimos 8 meses

Lisboa, Odivelas, Ramada e Caneças

Simule um Crédito Habitação

Os dados apresentados são meramente indicativos. Condições gerais
Seguir
Partilhar
Predimed Imobiliaria Mediacao Imobiliaria Lda
AMI 22503
Nome
Email
Contacto
Formato inválido
Agende uma visita
Referência do anúncio: 056213.
Última atualização: 02 novembro 2025.
Contactar
Veja também
Anúncios na mesma zona
Terreno Urbano com 392m² zona Torres Vedras
Lisboa, Torres Vedras, Dois Portos e Runa
40 000 €
Terreno Para Construção Venda em Alenquer (Santo Estêvão e Triana),Alenquer
Lisboa, Alenquer, Alenquer (Santo Estêvão e Triana)
70 000 €
Terreno 4030 m2 p/construção em matacães
Lisboa, Torres Vedras, Torres Vedras (São Pedro, Santiago, Santa Maria do Castelo e São Miguel) e Matacães
110 000 €
Empreendimento turístico rural de 4 estrelas.
Lisboa, Mafra, Ericeira
2 370 000 €
Terreno urbano projeto aprovado prédio residencial, ramada
Lisboa, Odivelas, Ramada e Caneças
450 000 €
Terreno constituído por 2 Lotes urbanos na Urbanização da Cavaleira
Lisboa, Sintra, Algueirão-Mem Martins
97 500 €
Terreno para construção- Lourel
Lisboa, Sintra, Sintra (Santa Maria e São Miguel, São Martinho e São Pedro de Penaferrim)
199 900 €
Terreno na Ajuda com Projeto
Lisboa, Lisboa, Ajuda
2 500 000 €
Terreno urbano 15.260m2 | mafra
Lisboa, Mafra, Mafra
3 500 000 €
Terreno com projeto aprovado para construção de moradia
Lisboa, Lourinhã, Miragaia e Marteleira
79 000 €
Partilha o imóvel: Terreno urbano projeto aprovado prédio residencial, ramada
Partilha este imóvel nas tuas redes sociais ou envia diretamente para o email dos teus amigos.
Partilhar por email
Adicione uma nota ao imóvel!
Só você é que vê as notas que adiciona. Os imóveis com notas ficam nos favoritos para os poder consultar mais tarde.
Excluíste o anúncio:
Terreno urbano projeto aprovado prédio residencial, ramada