Pesquisar perto de mim
A aguardar a sua pesquisa
Voltar
Terreno urbano com 6 moradias em construção
Terreno urbano com 6 moradias em construção
Terreno urbano com 6 moradias em construção
Terreno urbano com 6 moradias em construção
Ver galeria (18)
Ver galeria (18)
Seguir
Partilhar

Terreno urbano com 6 moradias em construção

Lisboa, Alenquer, Abrigada e Cabanas de Torres Ver no mapa
700 000 €
0 Quartos
0 WC's
Certificação Energética: Isento
Estado: Em Construção

Descrição do anúncio

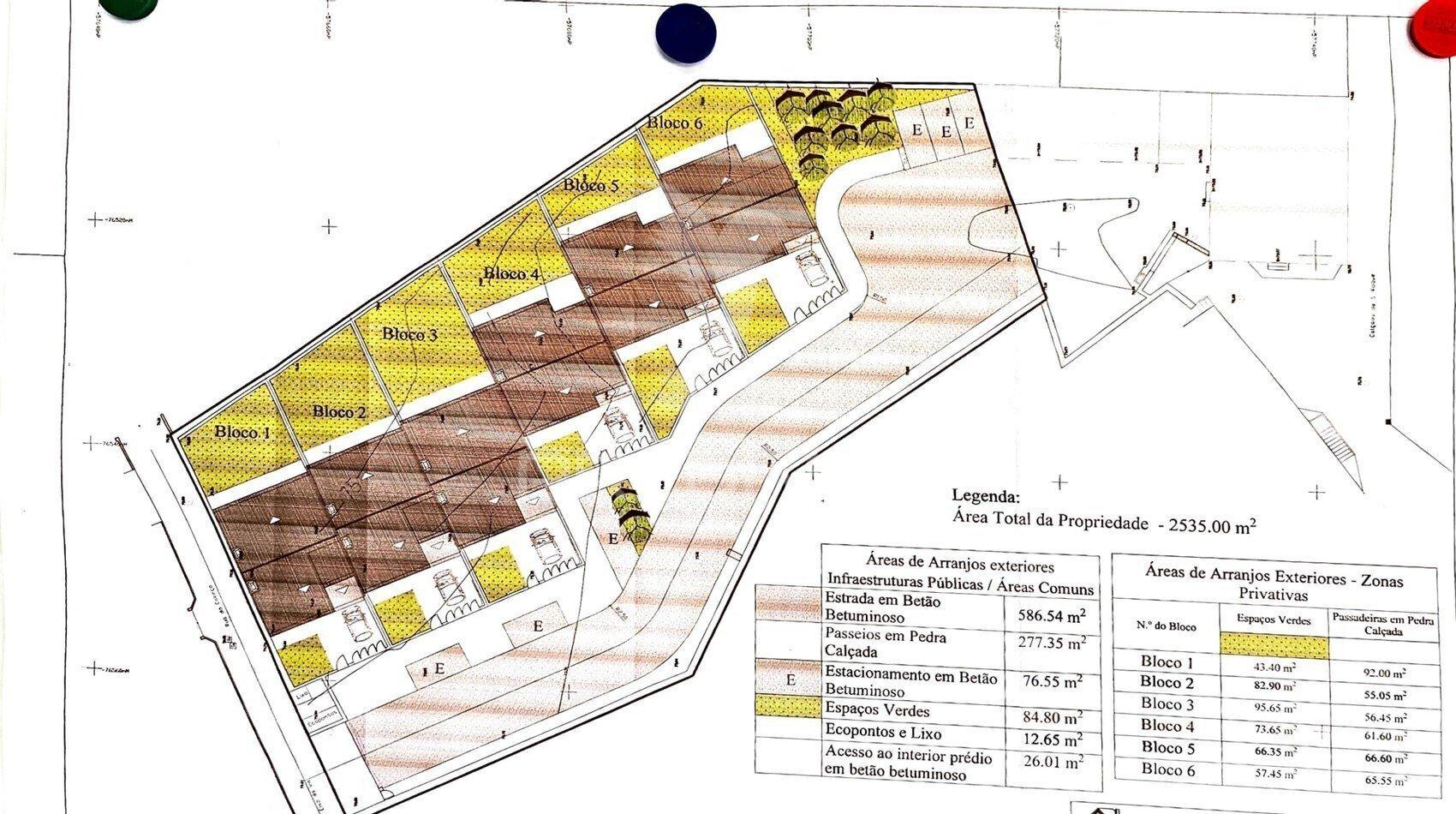
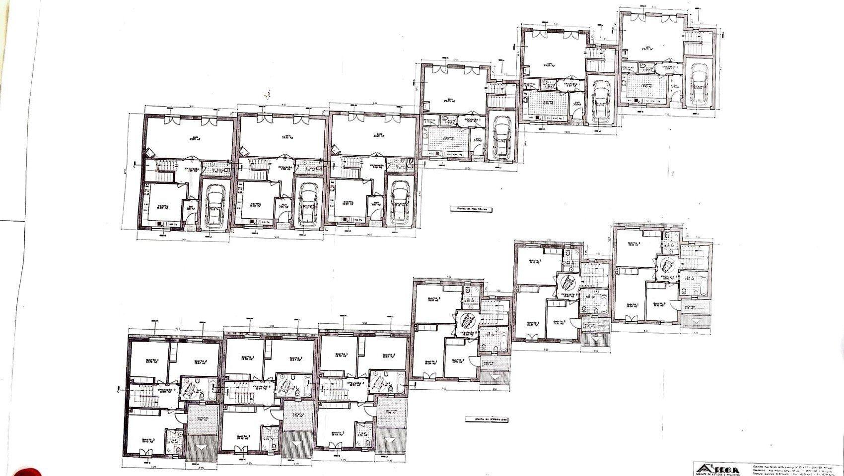
Terreno urbano área com total de 2535m2 , 6 moradias em fase de construção, no centro da Abrigada, com projeto aprovado na Câmara municipal de Alenquer. Excelente oportunidade para investidores na área da construção, situado numa zona calma com excelentes acessos, transportes, hipermercados, posto de combustível, escolas, farmácia, centro de saúde etc.Venha conhecer este lugar no centro da Abrigada  e dar continuidade a este projeto.Marque já  a sua visita!


Predimed Imobiliária, Mediação Imobiliária, Lda.
Avenida Brasil 43, 12º Andar, 1700-062 Lisboa
Licença AMI nº 22503
Pessoa Coletiva nº 517 239 345
Seguro Responsabilidade Civil: Nº de Apólice RC65379424 Fidelidade

Galeria do imóvel

Terreno urbano com 6 moradias em construção
Terreno urbano com 6 moradias em construção
Terreno urbano com 6 moradias em construção
Terreno urbano com 6 moradias em construção
Terreno urbano com 6 moradias em construção
Terreno urbano com 6 moradias em construção

Localização do imóvel

Lisboa, Alenquer, Abrigada e Cabanas de Torres

Referência do anúncio: 058124. Última atualização: 11 fevereiro 2026.

Relatório de preços praticados nos últimos 8 meses

Lisboa, Alenquer, Abrigada e Cabanas de Torres

Simule um Crédito Habitação

Os dados apresentados são meramente indicativos. Condições gerais
Seguir
Partilhar
Predimed Imobiliaria Mediacao Imobiliaria Lda
AMI 22503
Nome
Email
Contacto
Formato inválido
Agende uma visita
Referência do anúncio: 058124.
Última atualização: 11 fevereiro 2026.
Contactar
Veja também
Anúncios na mesma zona
Terreno 4030 m2 p/construção em matacães
Lisboa, Torres Vedras, Torres Vedras (São Pedro, Santiago, Santa Maria do Castelo e São Miguel) e Matacães
110 000 €
Terreno rústico
Lisboa, Lourinhã, Lourinhã e Atalaia
76 000 €
Terreno em Salemas Lousa, Loures
Lisboa, Loures, Lousa
105 000 €
Terreno constituído por 2 Lotes urbanos na Urbanização da Cavaleira
Lisboa, Sintra, Algueirão-Mem Martins
88 000 €
Lotes para Moradias
Lisboa, Azambuja, Aveiras de Cima
105 000 €
Terreno na Ajuda com Projeto
Lisboa, Lisboa, Ajuda
2 500 000 €
Terreno com 4890m2 no Estoril
Lisboa, Cascais, Cascais e Estoril
5 500 000 €
Terreno Rústico Venda em Rio de Mouro,Sintra
Lisboa, Sintra, Rio de Mouro
30 000 €
Empreendimento turístico rural de 4 estrelas.
Lisboa, Mafra, Ericeira
2 370 000 €
Terreno urbanizável 1720m2 Silveira, Torres Vedras
Lisboa, Torres Vedras, Silveira
165 000 €
Partilha o imóvel: Terreno urbano com 6 moradias em construção
Partilha este imóvel nas tuas redes sociais ou envia diretamente para o email dos teus amigos.
Partilhar por email
Adicione uma nota ao imóvel!
Só você é que vê as notas que adiciona. Os imóveis com notas ficam nos favoritos para os poder consultar mais tarde.
Excluíste o anúncio:
Terreno urbano com 6 moradias em construção