Pesquisar perto de mim
A aguardar a sua pesquisa
Voltar
Terreno para construção com 668 m2 em Cacém, Sintra
Terreno para construção com 668 m2 em Cacém, Sintra
Terreno para construção com 668 m2 em Cacém, Sintra
Terreno para construção com 668 m2 em Cacém, Sintra
Ver galeria (5)
Ver galeria (5)
Seguir
Partilhar

Terreno para construção com 668 m2 em Cacém, Sintra

Lisboa, Sintra, Cacém e São Marcos Ver no mapa
500 000 €
0 Quartos
0 WC's
Certificação Energética: N/D

Descrição do anúncio

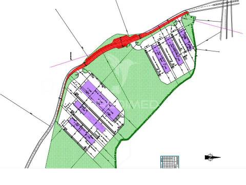
Terreno para Construção com 668 m2 em SINTRA | Lote em zona Habitacional | Com bons acessos , Boa exposição solar.

Terreno para construção com 668 m2 em Cacém, Sintra.

Área Bruta de Construção - 2.004 m2
Área de Implantação do Edifício - 668 m2
Área Bruta Dependente - 668 m2

Possibilidade de construção de uma torre com 10 pisos, processo de aprovação já submetido na Câmara Municipal de Sintra.
Imóvel (lote 70) situado em zona habitacional.
Com bons acessos.
Boa exposição solar

Referência: ASV25108

Por sermos intermediários de crédito devidamente autorizados pelo Banco de Portugal (Reg. 2736) fazemos a gestão de todo o seu processo de financiamento, sempre com as melhores soluções de mercado.

Porquê escolher a AS Imobiliária
Com mais de 14 anos no ramo imobiliário e milhares de famílias felizes, dispomos de 8 agências estrategicamente localizadas, para o servir com proximidade, corresponder à suas expectativas e ajudá-lo a adquirir a sua casa de sonho. Compromisso, Competência e Confiança são os nossos valores que entregamos aos nossos Clientes na hora de comprar, arrendar ou vender o seu imóvel.

A nossa prioridade é a sua Felicidade!

Especialistas imobiliários em Vizela ; Guimarães ; Taipas ; Felgueiras ; Lousada ; Santo Tirso ; Barcelos ; S. João da Madeira ; Porto ; Lisboa ; Braga.

Características Gerais

  • Acesso com Estrada
  • Terreno Urbano

Galeria do imóvel

Terreno para construção com 668 m2 em Cacém, Sintra
Terreno para construção com 668 m2 em Cacém, Sintra
Terreno para construção com 668 m2 em Cacém, Sintra
Terreno para construção com 668 m2 em Cacém, Sintra
Terreno para construção com 668 m2 em Cacém, Sintra

Localização do imóvel

Lisboa, Sintra, Cacém e São Marcos

Referência do anúncio: ASV25108. Última atualização: 12 setembro 2025.

Relatório de preços praticados nos últimos 8 meses

Lisboa, Sintra, Cacém e São Marcos

Simule um Crédito Habitação

Os dados apresentados são meramente indicativos. Condições gerais
Seguir
Partilhar
As Imobiliária
AMI 13249
253 ...
Chamada para a rede fixa nacional
Mostrar número
Nome
Email
Contacto
Formato inválido
Agende uma visita
Referência do anúncio: ASV25108.
Última atualização: 12 setembro 2025.
Contactar
Veja também
Anúncios na mesma zona
Terreno rústico - Assafora
Lisboa, Sintra, São João das Lampas e Terrugem
75 000 €
Terreno Rústico, perto de Bolelas - São João das Lampas
Lisboa, Sintra, São João das Lampas e Terrugem
70 000 €
Terreno com pinhal em São João das Lampas
Lisboa, Sintra, São João das Lampas e Terrugem
70 000 €
Terreno urbano para construção de 4 moradias com PIP
Lisboa, Mafra, Mafra
300 000 €
Terreno Rústico com Elevado Potencial de Urbanização - 2.000 m² | Ajuda, Lisboa
Lisboa, Lisboa, Ajuda
2 900 000 €
Terreno 4030 m2 p/construção em matacães
Lisboa, Torres Vedras, Torres Vedras (São Pedro, Santiago, Santa Maria do Castelo e São Miguel) e Matacães
110 000 €
Terreno urbano com benfeitorias- baixa de preço
Lisboa, Loures, Camarate, Unhos e Apelação
91 000 €
Terreno Para Construção Venda em Alenquer (Santo Estêvão e Triana),Alenquer
Lisboa, Alenquer, Alenquer (Santo Estêvão e Triana)
70 000 €
Terreno urbanizável 1720m2 Silveira, Torres Vedras
Lisboa, Torres Vedras, Silveira
165 000 €
Terreno Urbano para Construção com 183,69 m² na Encosta do Sol (Brandoa), Amadora
Lisboa, Amadora, Mina de Água
175 000 €
Partilha o imóvel: Terreno para construção com 668 m2 em Cacém, Sintra
Partilha este imóvel nas tuas redes sociais ou envia diretamente para o email dos teus amigos.
Partilhar por email
Adicione uma nota ao imóvel!
Só você é que vê as notas que adiciona. Os imóveis com notas ficam nos favoritos para os poder consultar mais tarde.
Excluíste o anúncio:
Terreno para construção com 668 m2 em Cacém, Sintra