Pesquisar perto de mim
A aguardar a sua pesquisa
Voltar
Prédio com projeto aprovado para 4 lofts
Prédio com projeto aprovado para 4 lofts
Prédio com projeto aprovado para 4 lofts
Prédio com projeto aprovado para 4 lofts
Ver galeria (13)
Ver galeria (13)
Seguir
Partilhar

Prédio com projeto aprovado para 4 lofts

Porto, Porto, Cedofeita, Santo Ildefonso, Sé, Miragaia, São Nicolau e Vitória Ver no mapa
250 000 €
0 Quartos
0 WC's
334m2
Área Útil: 334m2
Área Bruta: 334m2
Certificação Energética: Isento
Estado: Por Recuperar

Descrição do anúncio

Prédio com projeto aprovado para 4 Lofts

Para reabilitar inclui, pip aprovado em zona ARU
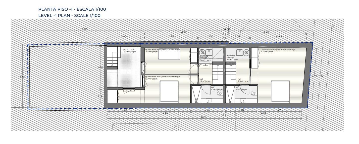
Hall de entrada comum - 6,3 m2
Loft 1 | T0+1 - 65 m2
Loft 2 | T0+2 - 83 m2 + jardim - 41 m2
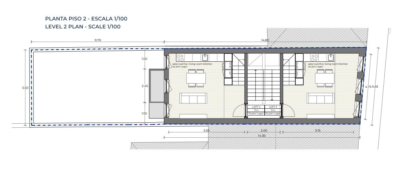
Loft 3 | T1+1 - 74 m2
Loft 4 | T1+1 - 74 m2 Área total de construção - 334 m2 Área total do terreno - 134 m2 - PISOS (-1, 0, 1 e 2)

Prédio localizado em São Roque da Lameira, em Campanhã, Porto, com um PIP aprovado com uma área de construção total de 334 m² em 4 pisos. O PIP inclui um estudo prévio para a transformação do espaço em quatro modernos lofts duplex, cada um com características e áreas distintas.
A Rua de São Roque da Lameira, localizada em Campanhã, no Porto, emerge como uma área em franca expansão, onde a tradição encontra-se com a modernidade. O surgimento de novos empreendimentos tem atraído tanto investidores quanto residentes à procura de conforto e oportunidades. Conservando o seu encanto tradicional, com algumas das suas antigas casas meticulosamente preservadas e uma grande variedade de serviços, esta rua oferece uma atmosfera acolhedora e autêntica.
Descubra a vida urbana em S Roque da Lameira  com este elegante Prédio de lofts minimalista. Combina perfeitamente o design moderno com o encanto industrial, proporcionando um espaço único e convidativo.
 

Características Gerais

  • Jardim
  • Nº de Andares do Edifício 4

Galeria do imóvel

Prédio com projeto aprovado para 4 lofts
Prédio com projeto aprovado para 4 lofts
Prédio com projeto aprovado para 4 lofts
Prédio com projeto aprovado para 4 lofts
Prédio com projeto aprovado para 4 lofts
Prédio com projeto aprovado para 4 lofts

Localização do imóvel

Porto, Porto, Cedofeita, Santo Ildefonso, Sé, Miragaia, São Nicolau e Vitória

Referência do anúncio: R21450. Última atualização: 07 outubro 2025.

Relatório de preços praticados nos últimos 8 meses

Porto, Porto, Cedofeita, Santo Ildefonso, Sé, Miragaia, São Nicolau e Vitória

Simule um Crédito Habitação

Os dados apresentados são meramente indicativos. Condições gerais
Seguir
Partilhar
PINTO LEITE & MACHADO VAZ - MEDIAÇÃO IMOBILIÁRIA, LDA
AMI 19489
351 ...
Chamada para a rede fixa nacional
Mostrar número
Nome
Email
Contacto
Formato inválido
Agende uma visita
Referência do anúncio: R21450.
Última atualização: 07 outubro 2025.
Contactar
Veja também
Anúncios na mesma zona
Prédio Venda em Cedofeita, Santo Ildefonso, Sé, Miragaia, São Nicolau e Vitória,Porto
Porto, Porto, Cedofeita, Santo Ildefonso, Sé, Miragaia, São Nicolau e Vitória
550 000 €
Predio na rua do comercio do Porto
Porto, Porto, Cedofeita, Santo Ildefonso, Sé, Miragaia, São Nicolau e Vitória
900 000 €
Prédio Venda em Paranhos,Porto
Porto, Porto, Paranhos
950 000 €
Prédio para recuperar, com elevador na Baixa do Porto
Porto, Porto, Cedofeita, Santo Ildefonso, Sé, Miragaia, São Nicolau e Vitória
850 000 €
7
1
Prédio Venda em Gondomar (São Cosme), Valbom e Jovim,Gondomar
Porto, Gondomar, Gondomar (São Cosme), Valbom e Jovim
650 000 €
Prédio no centro Histórico do Porto
Porto, Porto, Cedofeita, Santo Ildefonso, Sé, Miragaia, São Nicolau e Vitória
1 200 000 €
Prédio Venda em Cedofeita, Santo Ildefonso, Sé, Miragaia, São Nicolau e Vitória,Porto
Porto, Porto, Cedofeita, Santo Ildefonso, Sé, Miragaia, São Nicolau e Vitória
550 000 €
Hotel Luxuoso. Portugal, V. N. de Gaia, Porto.
Porto, Porto, Cedofeita, Santo Ildefonso, Sé, Miragaia, São Nicolau e Vitória
12 900 000 €
1
Prédio com 2 frações T2 - Sto. Ovídeo
Porto, Vila Nova de Gaia, Santa Marinha e São Pedro da Afurada
175 000 €
Prédio Venda em Santa Marinha e São Pedro da Afurada,Vila Nova de Gaia
Porto, Porto, Cedofeita, Santo Ildefonso, Sé, Miragaia, São Nicolau e Vitória
2 800 000 €
Partilha o imóvel: Prédio com projeto aprovado para 4 lofts
Partilha este imóvel nas tuas redes sociais ou envia diretamente para o email dos teus amigos.
Partilhar por email
Adicione uma nota ao imóvel!
Só você é que vê as notas que adiciona. Os imóveis com notas ficam nos favoritos para os poder consultar mais tarde.
Excluíste o anúncio:
Prédio com projeto aprovado para 4 lofts