Pesquisar perto de mim
A aguardar a sua pesquisa
Voltar
Prédio
Prédio
Prédio
Prédio
Ver galeria (51)
Ver galeria (51)
Seguir
Partilhar

Prédio

Leiria, Marinha Grande, Marinha Grande Ver no mapa
350 000 €
0 Quartos
0 WC's
249,9m2
Área Útil: 249,9m2
Área Bruta: 368m2
Ano de Construção: 1970
Certificação Energética: C

Descrição do anúncio


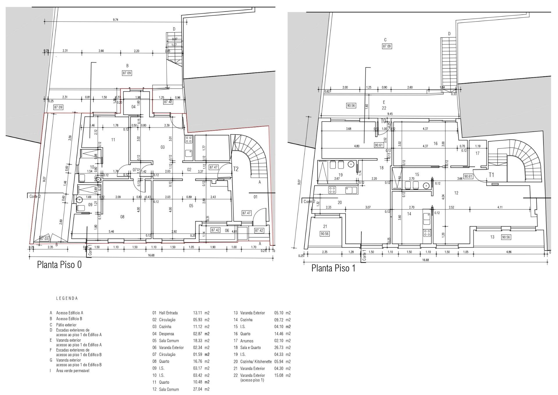
Investimento, prédio no centro da cidade da Marinha Grande.
Este imóvel é constituído por duas habitações sendo um T3 no R/C e um T4 no primeiro andar.
Existe um logradouro e dois espaços de garagem.
Este imóvel, tem neste momento, um projeto que foi aprovado, tendo sido de novo submetido para alteração e apreciação da Câmara Municipal no que refer á reabilitação do espaço de garagem onde está projetada a criação de habitações, tipologia T1, passando a ter o edifício A e o edifício B
As fotos agora adicionadas, com logotipo IMOSONHO são referentes ao apartamento T4 do mesmo edifício, assim como os anexos com projeto aprovado.

--------------------------------------

Na Imosonho, acreditamos que comprar ou vender casa deve ser uma experiência simples, transparente e segura com acompanhamento próximo em todas as fases do processo.
Como parte do nosso compromisso, disponibilizamos apoio jurídico especializado através de Solicitadoria, totalmente gratuito para os nossos clientes.
Trabalhamos em parceria com todas as agências detentoras de licença AMI válida, porque acreditamos que em conjunto conseguimos mais para quem compra e para quem vende.
Enquanto Intermediários de Crédito registados no Banco de Portugal (n.º 0002023), também ajudamos a encontrar as melhores soluções de financiamento, ajustadas às necessidades de cada cliente.
Conte connosco do início ao fim. Estamos aqui para simplificar, apoiar e concretizar o seu sonho.


Veja este e outros imóveis em (url)

Galeria do imóvel

Prédio
Prédio
Prédio
Prédio
Prédio
Prédio

Localização do imóvel

Leiria, Marinha Grande, Marinha Grande

Referência do anúncio: 11010. Última atualização: 09 fevereiro 2026.

Relatório de preços praticados nos últimos 8 meses

Leiria, Marinha Grande, Marinha Grande

Simule um Crédito Habitação

Os dados apresentados são meramente indicativos. Condições gerais
Seguir
Partilhar
SOC MEDIACAO IMOBILIARIA SONHO D`EL-REI LDA
AMI 5433
919 ...
Chamada para a rede fixa nacional
Mostrar número
Nome
Email
Contacto
Formato inválido
Agende uma visita
Referência do anúncio: 11010.
Última atualização: 09 fevereiro 2026.
Contactar
Veja também
Anúncios na mesma zona
ANG1564 - Prédio para Venda em Leiria
Leiria, Leiria, Leiria, Pousos, Barreira e Cortes
675 000 €
1
Hotel Lagoa de Óbidos na Foz do Arelho
Leiria, Caldas da Rainha, Foz do Arelho
3 500 000 €
67
1
Prédio no centro histórico de São Martinho do Porto, para Reabilitação
Leiria, Alcobaça, São Martinho do Porto
598 000 €
5
Boutique hotel no centro histórico de Leiria
Leiria, Leiria, Leiria, Pousos, Barreira e Cortes
2 200 000 €
10
Prédio para recuperar centro de Avelar, Ansião
Leiria, Ansião, Ansião
190 000 €
6
Edifício Comercial Arrendado na Marinha Grande
Leiria, Marinha Grande, Vieira de Leiria
266 000 €
5
Prédio para Investimento no centro das Caldas da Rainha - INVESTIDORES
Leiria, Caldas da Rainha, Caldas da Rainha - Nossa Senhora do Pópulo, Coto e São Gregório
500 000 €
Edificio Comercial
Leiria, Batalha, Batalha
1 500 000 €
Investimento - Edifício p/ Recuperar - Centro da Nazaré
Leiria, Nazaré, Nazaré
190 000 €
5
Venda de edifício com 4 pisos - lar de 3ª idade - alvará para 22 utentes.
Leiria, Porto de Mós, Alqueidão da Serra
1 200 000 €
Partilha o imóvel: Prédio
Partilha este imóvel nas tuas redes sociais ou envia diretamente para o email dos teus amigos.
Partilhar por email
Adicione uma nota ao imóvel!
Só você é que vê as notas que adiciona. Os imóveis com notas ficam nos favoritos para os poder consultar mais tarde.
Excluíste o anúncio:
Prédio