Pesquisar perto de mim
A aguardar a sua pesquisa
Voltar
Loja nova de 930 m2, com cais junto à Zona Industrial de Vila Real
Loja nova de 930 m2, com cais junto à Zona Industrial de Vila Real
Loja nova de 930 m2, com cais junto à Zona Industrial de Vila Real
Loja nova de 930 m2, com cais junto à Zona Industrial de Vila Real
Ver galeria (13)
Ver galeria (13)
Seguir
Partilhar

Loja nova de 930 m2, com cais junto à Zona Industrial de Vila Real

Vila Real, Vila Real, Constantim e Vale de Nogueiras Ver no mapa
5 000 € /mês
0 Quartos
2 WC's
750m2
Área Útil: 750m2
Área Bruta: 930m2
Certificação Energética: C

Descrição do anúncio

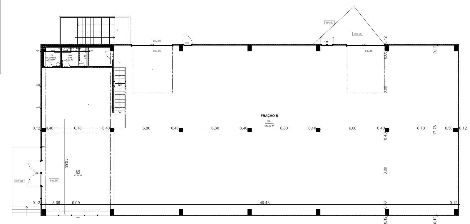
Junto à Zona Industrial de Constantim em Vila Real, imóvel novo com 930 m2, licenciado para Armazém, Comércio e Serviços, com cais desnivelado, montra de 22 metros de comprimento e 2,20 metros de altura, duas casas de banho, duas saídas de emergência e logradouro de 1.377 m2.


| Medidas |

- Área: Comprimento: 43 m | Largura 17 m (completamente desobstruídos - não tem pilares no meio)

- Pé direito:

Armazém: À viga: 4,55 m; à laje: 5,15 m

Por baixo do mezanino: À viga: 2,20 m; à laje: 2,90 m

Mezanino: 2,30 m a 3,10 m


- Portão principal: Largura: 4,20 m; altura: 4,00 m

- Portão cais: Largura: 4,00 m; altura: 4,00 m

- Área do mezanino: 112 m2 (16 m x 7 m)


| Nota |

- Poder-se-á adicionar a este arrendamento, outra fração no piso inferior do mesmo armazém com as seguintes características principais:

- Área bruta: 789 m2

- Área útil: 722 m2

- Área de logradouro: 540 m2

- Valor da renda: 4.000€ Mensais


| Zona Envolvente |

Aeródromo, Ampla Oferta de Serviços, Autoestrada, Estacionamento, Estacionamento Público, Excelentes Acessos, Posto de Combustível, Transportes Públicos, Zona Industrial


| Condições de arrendamento | A combinar

Galeria do imóvel

Loja nova de 930 m2, com cais junto à Zona Industrial de Vila Real
Loja nova de 930 m2, com cais junto à Zona Industrial de Vila Real
Loja nova de 930 m2, com cais junto à Zona Industrial de Vila Real
Loja nova de 930 m2, com cais junto à Zona Industrial de Vila Real
Loja nova de 930 m2, com cais junto à Zona Industrial de Vila Real
Loja nova de 930 m2, com cais junto à Zona Industrial de Vila Real

Localização do imóvel

Vila Real, Vila Real, Constantim e Vale de Nogueiras

Referência do anúncio: BOT_1104. Última atualização: 07 outubro 2025.

Relatório de preços praticados nos últimos 8 meses

Vila Real, Vila Real, Constantim e Vale de Nogueiras

Simule um Crédito Habitação

Os dados apresentados são meramente indicativos. Condições gerais
Seguir
Partilhar
Degraus Para O Sol - Unipessoal Lda
AMI 14033
Nome
Email
Contacto
Formato inválido
Agende uma visita
Referência do anúncio: BOT_1104.
Última atualização: 07 outubro 2025.
Contactar
Veja também
Anúncios na mesma zona
Loja junto ao Terminal Rodoviário de Vila Real
Vila Real, Vila Real, Vila Real (Nossa Senhora da Conceição, São Pedro e São Dinis)
375 € /Mês
1
Loja Arrendamento em Vila Real (Nossa Senhora da Conceição, São Pedro e São Dinis),Vila Real
Vila Real, Vila Real, Vila Real (Nossa Senhora da Conceição, São Pedro e São Dinis)
600 € /Mês
1
Loja Arrendamento em Vila Real (Nossa Senhora da Conceição, São Pedro e São Dinis),Vila Real
Vila Real, Vila Real, Vila Real (Nossa Senhora da Conceição, São Pedro e São Dinis)
400 € /Mês
Prédio no Centro Histórico de Vila Real para arrendar.
Vila Real, Vila Real, Vila Real (Nossa Senhora da Conceição, São Pedro e São Dinis)
1 000 € /Mês
Loja Arrendamento em Vila Real (Nossa Senhora da Conceição, São Pedro e São Dinis),Vila Real
Vila Real, Vila Real, Vila Real (Nossa Senhora da Conceição, São Pedro e São Dinis)
450 € /Mês
1
Loja no centro de Santa Marta de Penaguião
Vila Real, Santa Marta de Penaguião, Lobrigos (São Miguel e São João Baptista) e Sanhoane
350 € /Mês
1
Espaços para Comércio ou Serviços nas Galerias Nova Bila em Vila Real
Vila Real, Vila Real, Vila Real (Nossa Senhora da Conceição, São Pedro e São Dinis)
250 € /Mês
Loja junto ao Tribunal
Vila Real, Vila Real, Vila Real (Nossa Senhora da Conceição, São Pedro e São Dinis)
1 000 € /Mês
Loja para arrendar junto ao Nosso Shopping- Vila Real
Vila Real, Vila Real, Vila Real (Nossa Senhora da Conceição, São Pedro e São Dinis)
2 500 € /Mês
2
1
Loja nova de 930 m2, com cais junto à Zona Industrial de Vila Real
Vila Real, Vila Real, Constantim e Vale de Nogueiras
5 000 € /Mês
2
Partilha o imóvel: Loja nova de 930 m2, com cais junto à Zona Industrial de Vila Real
Partilha este imóvel nas tuas redes sociais ou envia diretamente para o email dos teus amigos.
Partilhar por email
Adicione uma nota ao imóvel!
Só você é que vê as notas que adiciona. Os imóveis com notas ficam nos favoritos para os poder consultar mais tarde.
Excluíste o anúncio:
Loja nova de 930 m2, com cais junto à Zona Industrial de Vila Real