Pesquisar perto de mim
A aguardar a sua pesquisa
Voltar
Loja nova com 2 pisos e cais junto à Zona Industrial de Vila Real
Loja nova com 2 pisos e cais junto à Zona Industrial de Vila Real
Loja nova com 2 pisos e cais junto à Zona Industrial de Vila Real
Loja nova com 2 pisos e cais junto à Zona Industrial de Vila Real
Ver galeria (18)
Ver galeria (18)
Seguir
Partilhar

Loja nova com 2 pisos e cais junto à Zona Industrial de Vila Real

Vila Real, Vila Real, Constantim e Vale de Nogueiras Ver no mapa
9 000 € /mês
0 Quartos
4 WC's
1472m2
Área Útil: 1472m2
Área Bruta: 1719m2
Certificação Energética: C

Descrição do anúncio

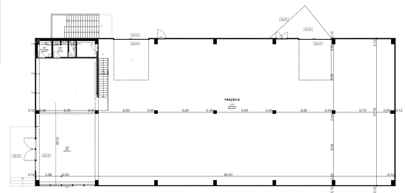
Junto à Zona Industrial de Constantim em Vila Real, imóvel novo com 1719 m2, de rés do chão (área bruta: 789 m2) e andar (área bruta: 930 m2), licenciado para Armazém, Comércio e Serviços, com duas montras, entradas independentes, cais e logradouro de 1917 m2.


Características principais de cada andar:


- Rés do chão:

| Medidas |

- Área: Comprimento: 43 m | Largura 17 m

- Pé direito: À viga: 4,55 m; À laje: 5,15 m

- Portão: Largura: 3,70 m; Altura: 4,90 m

- Montra: Comprimento: 13 m | Altura: 4,90 m


- 1º Andar:

| Medidas |

- Área: Comprimento: 43 m | Largura 17 m (completamente desobstruídos - não tem pilares no meio)

- Pé direito:

Armazém: À viga: 4,55 m; à laje: 5,15 m

Por baixo do mezanino: À viga: 2,20 m; à laje: 2,90 m

Mezanino: 2,30 m a 3,10 m

- Portão principal: Largura: 4,20 m; altura: 4,00 m

- Portão cais: Largura: 4,00 m; altura: 4,00 m

- Área do mezanino: 112 m2 (16 m x 7 m)

- Montra: Comprimento: 22 m | Altura: 2,20 m


| Nota |

Os armazéns do R/C e 1º Andar são completamente independentes e estão disponíveis para serem arrendados em separado:

- Rés do chão (área bruta: 789 m2): 4.000€ mensais;

- 1º Andar (área bruta: 930 m2): 5.000€ mensais


| Zona Envolvente |

Aeródromo, Ampla Oferta de Serviços, Autoestrada, Estacionamento, Estacionamento Público, Excelentes Acessos, Posto de Combustível, Transportes Públicos, Zona Industrial


| Condições de arrendamento | A combinar

Galeria do imóvel

Loja nova com 2 pisos e cais junto à Zona Industrial de Vila Real
Loja nova com 2 pisos e cais junto à Zona Industrial de Vila Real
Loja nova com 2 pisos e cais junto à Zona Industrial de Vila Real
Loja nova com 2 pisos e cais junto à Zona Industrial de Vila Real
Loja nova com 2 pisos e cais junto à Zona Industrial de Vila Real
Loja nova com 2 pisos e cais junto à Zona Industrial de Vila Real

Localização do imóvel

Vila Real, Vila Real, Constantim e Vale de Nogueiras

Referência do anúncio: BOT_1103. Última atualização: 07 outubro 2025.

Relatório de preços praticados nos últimos 8 meses

Vila Real, Vila Real, Constantim e Vale de Nogueiras

Simule um Crédito Habitação

Os dados apresentados são meramente indicativos. Condições gerais
Seguir
Partilhar
Degraus Para O Sol - Unipessoal Lda
AMI 14033
Nome
Email
Contacto
Formato inválido
Agende uma visita
Referência do anúncio: BOT_1103.
Última atualização: 07 outubro 2025.
Contactar
Veja também
Anúncios na mesma zona
Loja Arrendamento em Vila Real (Nossa Senhora da Conceição, São Pedro e São Dinis),Vila Real
Vila Real, Vila Real, Vila Real (Nossa Senhora da Conceição, São Pedro e São Dinis)
600 € /Mês
1
Loja junto ao Terminal Rodoviário de Vila Real
Vila Real, Vila Real, Vila Real (Nossa Senhora da Conceição, São Pedro e São Dinis)
375 € /Mês
1
Loja no centro de Santa Marta de Penaguião
Vila Real, Santa Marta de Penaguião, Lobrigos (São Miguel e São João Baptista) e Sanhoane
350 € /Mês
1
Loja Arrendamento em Vila Real (Nossa Senhora da Conceição, São Pedro e São Dinis),Vila Real
Vila Real, Vila Real, Vila Real (Nossa Senhora da Conceição, São Pedro e São Dinis)
450 € /Mês
1
Prédio no Centro Histórico de Vila Real para arrendar.
Vila Real, Vila Real, Vila Real (Nossa Senhora da Conceição, São Pedro e São Dinis)
1 000 € /Mês
Loja Arrendamento em Vila Real (Nossa Senhora da Conceição, São Pedro e São Dinis),Vila Real
Vila Real, Vila Real, Vila Real (Nossa Senhora da Conceição, São Pedro e São Dinis)
400 € /Mês
Espaços para Comércio ou Serviços nas Galerias Nova Bila em Vila Real
Vila Real, Vila Real, Vila Real (Nossa Senhora da Conceição, São Pedro e São Dinis)
250 € /Mês
Loja junto ao Tribunal
Vila Real, Vila Real, Vila Real (Nossa Senhora da Conceição, São Pedro e São Dinis)
1 000 € /Mês
Loja para arrendar junto ao Nosso Shopping- Vila Real
Vila Real, Vila Real, Vila Real (Nossa Senhora da Conceição, São Pedro e São Dinis)
2 500 € /Mês
2
1
Loja nova de 930 m2, com cais junto à Zona Industrial de Vila Real
Vila Real, Vila Real, Constantim e Vale de Nogueiras
5 000 € /Mês
2
Partilha o imóvel: Loja nova com 2 pisos e cais junto à Zona Industrial de Vila Real
Partilha este imóvel nas tuas redes sociais ou envia diretamente para o email dos teus amigos.
Partilhar por email
Adicione uma nota ao imóvel!
Só você é que vê as notas que adiciona. Os imóveis com notas ficam nos favoritos para os poder consultar mais tarde.
Excluíste o anúncio:
Loja nova com 2 pisos e cais junto à Zona Industrial de Vila Real