Pesquisar perto de mim
A aguardar a sua pesquisa
Voltar
Cessão de Quinhão Hereditário com AMPLO EDIFÍCIO no centro histórico Ponta Delgada, Ilha São Miguel, Açores
Cessão de Quinhão Hereditário com AMPLO EDIFÍCIO no centro histórico Ponta Delgada, Ilha São Miguel, Açores
Cessão de Quinhão Hereditário com AMPLO EDIFÍCIO no centro histórico Ponta Delgada, Ilha São Miguel, Açores
Cessão de Quinhão Hereditário com AMPLO EDIFÍCIO no centro histórico Ponta Delgada, Ilha São Miguel, Açores
Ver galeria (40)
Ver galeria (40)
Seguir
Partilhar

Cessão de Quinhão Hereditário com AMPLO EDIFÍCIO no centro histórico Ponta Delgada, Ilha São Miguel, Açores

Ilha de São Miguel, Ponta Delgada, Ponta Delgada (São José) Ver no mapa
1 300 000 €
6 Quartos
5 WC's
Área Bruta: 960m2
Certificação Energética: Isento

Descrição do anúncio

Amplo Edifício para reabilitar no Centro Histórico de Ponta Delgada

OBSERVAÇÃO IMPORTANTE:
O PRESENTE NEGÓCIO REFERE-SE À CESSÃO DA TOTALIDADE DOS QUINHÕES HEREDITÁRIOS, REALIZADA POR TODOS OS HERDEIROS, INCIDINDO SOBRE UMA HERANÇA CUJO ÚNICO BEM É O EDIFÍCIO AQUI DESCRITO.

Edifício centenário localizado no coração da cidade de Ponta Delgada, na freguesia de São Sebastião, uma das zonas mais centrais, consolidadas e valorizadas da cidade. A localização privilegia a proximidade imediata a serviços públicos, comércio diversificado, restauração, unidades hoteleiras, equipamentos culturais, jardins, piscinas públicas, porto e marina, tornando este imóvel especialmente adequado para projetos residenciais, turísticos ou de uso misto.

O edifício desenvolve-se em três pisos rés-do-chão, 1.º e 2.º andar e beneficia de várias entradas independentes a partir da via pública. Dispõe ainda de generosas áreas exteriores, nomeadamente dois logradouros ao nível do piso térreo e um terraço no 1.º piso, características de destaque em pleno centro urbano.

Pela sua localização estratégica e configuração, este imóvel apresenta elevado potencial de valorização, sendo adaptável a diferentes tipologias de investimento, tais como:

Projeto de utilização mista (habitação e comércio), com comércio ou serviços no piso térreo e criação de várias unidades habitacionais nos pisos superiores, ideal para investidores orientados para rendimento.
Projeto habitacional, permitindo a criação de várias frações (T0 a T3) ou o desenvolvimento de uma habitação unifamiliar de grande dimensão, preservando elementos arquitetónicos originais.
Projeto turístico, com forte potencial para reconversão em alojamento local premium, hostel boutique ou apartamentos turísticos, beneficiando da proximidade aos principais pontos de interesse da cidade.

Qualquer intervenção ou alteração deverá ser previamente submetida para apreciação do Município de Ponta Delgada.

Configuração atual do edifício:

Piso 0 - Fachada principal dividida em três secções independentes: antiga cabeleireira em open space com arrumos, vestiário, duas instalações sanitárias e acesso ao logradouro; zona central com vestíbulo, várias divisões de arrumos, escadas e corredor com ligação ao exterior; e uma terceira secção adaptada a apartamento T0 com kitchenette e instalação sanitária. Na zona posterior existe um amplo quintal que conduz a uma antiga cavalariça, arrumos adicionais e um segundo logradouro, anteriormente ajardinado, com árvores.

Piso 1 - Hall de distribuição, corredor, escritório, salas de estar e jantar, cozinha com acesso ao terraço, lavandaria, casa de banho, dois quartos e várias divisões de arrumos.

Piso 2 - Hall, quatro quartos e uma ampla casa de banho.

Apesar de algumas áreas estarem atualmente classificadas como área bruta dependente, existe potencial para a sua conversão em área bruta privativa, mediante projeto adequado.

O edifício conserva elementos típicos da arquitetura açoriana, como paredes em pedra, pé-direito elevado em várias divisões, pavimentos em basalto no rés-do-chão, soalhos de madeira nos pisos superiores e arcos tradicionais em pedra. O imóvel necessita de obras de recuperação e reabilitação.

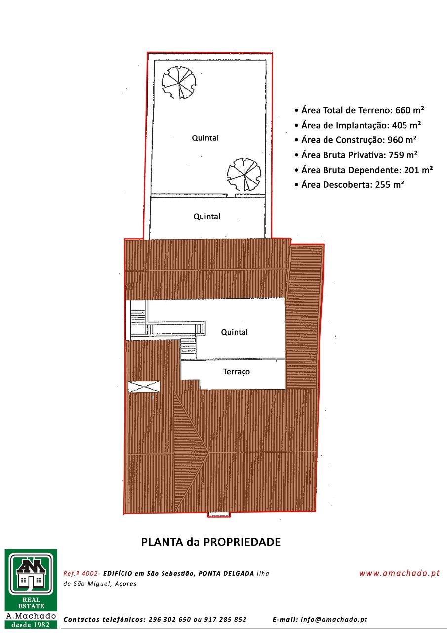
Áreas:
Terreno: 660 m²
Implantação: 405 m²
Construção: 960 m²
Área Bruta Privativa: 759 m²
Área Bruta Dependente: 201 m²
Área Descoberta: 255 m²

Certificação Energética: Dispensado, nos termos do artigo 4.º do Decreto Legislativo Regional n.º 4/2016/A, de 2 de fevereiro.

CONTACTE-NOS para MAIS INFORMAÇÕES ou MARCAÇÃO DE VISITA.

Galeria do imóvel

Cessão de Quinhão Hereditário com AMPLO EDIFÍCIO no centro histórico Ponta Delgada, Ilha São Miguel, Açores
Cessão de Quinhão Hereditário com AMPLO EDIFÍCIO no centro histórico Ponta Delgada, Ilha São Miguel, Açores
Cessão de Quinhão Hereditário com AMPLO EDIFÍCIO no centro histórico Ponta Delgada, Ilha São Miguel, Açores
Cessão de Quinhão Hereditário com AMPLO EDIFÍCIO no centro histórico Ponta Delgada, Ilha São Miguel, Açores
Cessão de Quinhão Hereditário com AMPLO EDIFÍCIO no centro histórico Ponta Delgada, Ilha São Miguel, Açores
Cessão de Quinhão Hereditário com AMPLO EDIFÍCIO no centro histórico Ponta Delgada, Ilha São Miguel, Açores

Localização do imóvel

Ilha de São Miguel, Ponta Delgada, Ponta Delgada (São José)

Referência do anúncio: 4002. Última atualização: 01 janeiro 2026.

Relatório de preços praticados nos últimos 8 meses

Ilha de São Miguel, Ponta Delgada, Ponta Delgada (São José)

Simule um Crédito Habitação

Os dados apresentados são meramente indicativos. Condições gerais
Seguir
Partilhar
A. Machado - Soc Mediacao Imobiliaria Lda
AMI 622
Nome
Email
Contacto
Formato inválido
Agende uma visita
Referência do anúncio: 4002.
Última atualização: 01 janeiro 2026.
Contactar
Veja também
Anúncios na mesma zona
Moradia Rua João da Horta, 74-Ribeira Grande
Ilha de São Miguel, Ribeira Grande, Ribeira Grande (Matriz)
70 000 €
4
2
1
Moradia em Banda T1 Venda em Salga,Nordeste
Ilha de São Miguel, Nordeste, Salga
97 500 €
1
1
VENDA de MORADIA - VIVENDA com VISTA MAR nos Mosteiros, Ponta Delgada, Ilha de São Miguel, Açores
Ilha de São Miguel, Ponta Delgada, Mosteiros
695 000 €
3
2
Edifício com Loja no R/C e 9 Apartamentos em Ponta Delgada
Ilha de São Miguel, Vila Franca do Campo, Vila Franca do Campo (São Pedro)
873 510 €
12
15
Cessão de Quinhão Hereditário com AMPLO EDIFÍCIO no centro histórico Ponta Delgada, Ilha São Miguel, Açores
Ilha de São Miguel, Ponta Delgada, Ponta Delgada (São José)
1 300 000 €
6
5
Moradia Venda em Lomba da Maia,Ribeira Grande
Ilha de São Miguel, Ribeira Grande, Lomba da Maia
215 000 €
1
VENDA de MORADIA - VIVENDA T3+2 com Jardim e Garagem - Relva, Ponta Delgada, Ilha de São Miguel, Açores
Ilha de São Miguel, Ponta Delgada, Relva
500 000 €
3
4
VENDA de VIVENDA - MORADIA com garagem, jardim e quintal - Santa Bárbara, Ribeira Grande, Ilha de São Miguel, Açores
Ilha de São Miguel, Vila Franca do Campo, Ribeira Seca
450 000 €
4
2
Moradia T1 Venda em Água de Alto,Vila Franca do Campo
Ilha de São Miguel, Vila Franca do Campo, Água de Alto
220 000 €
1
1
VENDA de CASA - MORADIA com Jardim, Entrada Lateral e Quintal - Fenais da Ajuda, Ribeira Grande, São Miguel, Açores
Ilha de São Miguel, Ribeira Grande, Lomba da Maia
155 000 €
2
1
Partilha o imóvel: Cessão de Quinhão Hereditário com AMPLO EDIFÍCIO no centro histórico Ponta Delgada, Ilha São Miguel, Açores
Partilha este imóvel nas tuas redes sociais ou envia diretamente para o email dos teus amigos.
Partilhar por email
Adicione uma nota ao imóvel!
Só você é que vê as notas que adiciona. Os imóveis com notas ficam nos favoritos para os poder consultar mais tarde.
Excluíste o anúncio:
Cessão de Quinhão Hereditário com AMPLO EDIFÍCIO no centro histórico Ponta Delgada, Ilha São Miguel, Açores