Pesquisar perto de mim
A aguardar a sua pesquisa
Voltar
Armazém novo de 930 m2, com cais junto à Zona Industrial de Vila Real
Armazém novo de 930 m2, com cais junto à Zona Industrial de Vila Real
Armazém novo de 930 m2, com cais junto à Zona Industrial de Vila Real
Armazém novo de 930 m2, com cais junto à Zona Industrial de Vila Real
Ver galeria (13)
Ver galeria (13)
Seguir
Partilhar

Armazém novo de 930 m2, com cais junto à Zona Industrial de Vila Real

Vila Real, Vila Real, Constantim e Vale de Nogueiras Ver no mapa
5 000 € /mês
0 Quartos
2 WC's
750m2
Área Útil: 750m2
Área Bruta: 930m2
Certificação Energética: Isento

Descrição do anúncio

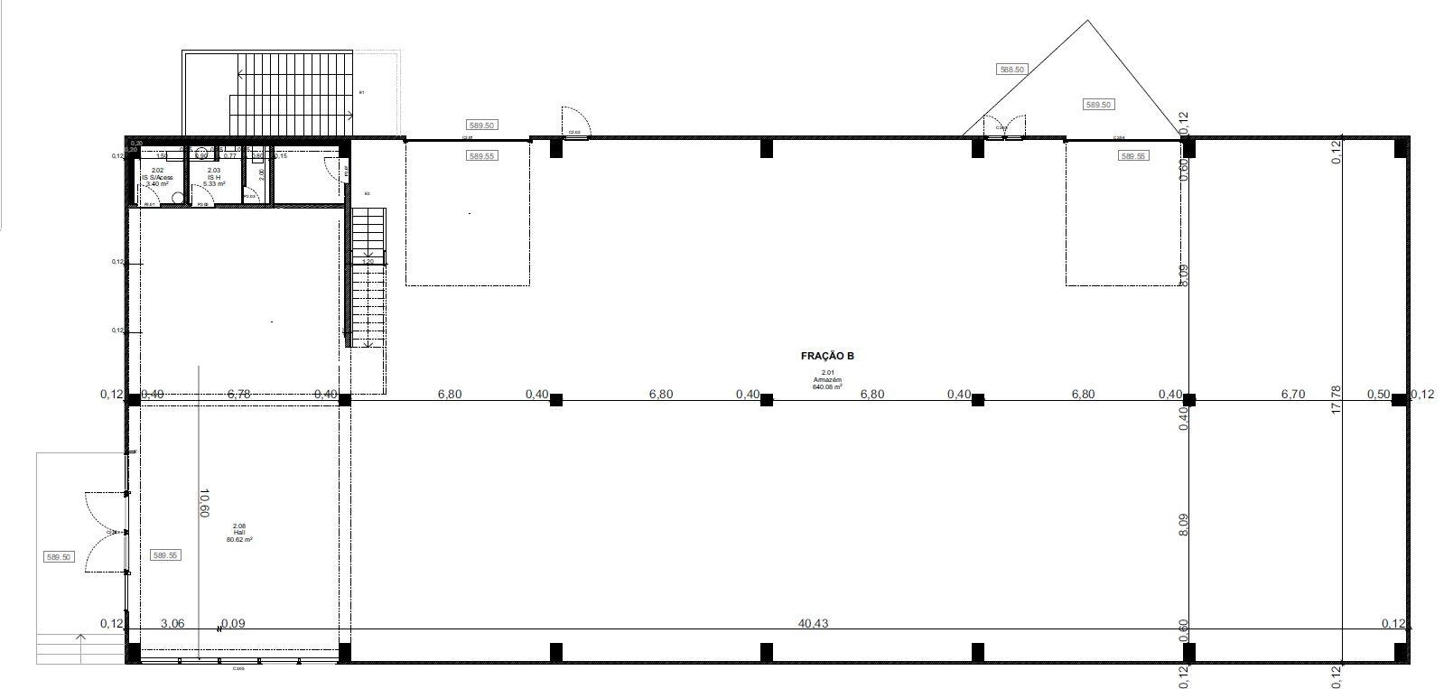
Junto à Zona Industrial de Constantim em Vila Real, imóvel novo com 930 m2, licenciado para Armazém, Comércio e Serviços, com cais desnivelado, montra de 22 metros de comprimento e 2,20 metros de altura, duas casas de banho, duas saídas de emergência e logradouro de 1.377 m2.


| Medidas |

- Área: Comprimento: 43 m | Largura 17 m (completamente desobstruídos - não tem pilares no meio)

- Pé direito:

Armazém: À viga: 4,55 m; à laje: 5,15 m

Por baixo do mezanino: À viga: 2,20 m; à laje: 2,90 m

Mezanino: 2,30 m a 3,10 m


- Portão principal: Largura: 4,20 m; altura: 4,00 m

- Portão cais: Largura: 4,00 m; altura: 4,00 m

- Área do mezanino: 112 m2 (16 m x 7 m)


| Nota |

- Poder-se-á adicionar a este arrendamento, outra fração no piso inferior do mesmo armazém com as seguintes características principais:

- Área bruta: 789 m2

- Área útil: 722 m2

- Área de logradouro: 540 m2

- Valor da renda: 4.000€ Mensais


| Zona Envolvente |

Aeródromo, Ampla Oferta de Serviços, Autoestrada, Estacionamento, Estacionamento Público, Excelentes Acessos, Posto de Combustível, Transportes Públicos, Zona Industrial


| Condições de arrendamento | A combinar

Galeria do imóvel

Armazém novo de 930 m2, com cais junto à Zona Industrial de Vila Real
Armazém novo de 930 m2, com cais junto à Zona Industrial de Vila Real
Armazém novo de 930 m2, com cais junto à Zona Industrial de Vila Real
Armazém novo de 930 m2, com cais junto à Zona Industrial de Vila Real
Armazém novo de 930 m2, com cais junto à Zona Industrial de Vila Real
Armazém novo de 930 m2, com cais junto à Zona Industrial de Vila Real

Localização do imóvel

Vila Real, Vila Real, Constantim e Vale de Nogueiras

Referência do anúncio: MAG_1101. Última atualização: 07 outubro 2025.

Relatório de preços praticados nos últimos 8 meses

Vila Real, Vila Real, Constantim e Vale de Nogueiras

Simule um Crédito Habitação

Os dados apresentados são meramente indicativos. Condições gerais
Seguir
Partilhar
Degraus Para O Sol - Unipessoal Lda
AMI 14033
Nome
Email
Contacto
Formato inválido
Agende uma visita
Referência do anúncio: MAG_1101.
Última atualização: 07 outubro 2025.
Contactar
Veja também
Anúncios na mesma zona
Armazém de 501m2 na Zona Industrial de Constantim, Vila Real
Vila Real, Vila Real, Constantim e Vale de Nogueiras
1 750 € /Mês
Armazém novo de 789 m2 junto à Zona Industrial de Vila Real
Vila Real, Vila Real, Constantim e Vale de Nogueiras
4 000 € /Mês
2
Armazém novo com 2 pisos e cais junto à Zona Industrial de Vila Real
Vila Real, Vila Real, Constantim e Vale de Nogueiras
9 000 € /Mês
4
Armazém novo de 930 m2, com cais junto à Zona Industrial de Vila Real
Vila Real, Vila Real, Constantim e Vale de Nogueiras
5 000 € /Mês
2
Junto à Zona Industrial de Constantim, Armazém Novo com 800m2
Vila Real, Vila Real, Constantim e Vale de Nogueiras
4 000 € /Mês
3
Armazém na Zona Industrial de Vila Real
Vila Real, Vila Real, Constantim e Vale de Nogueiras
2 200 € /Mês
Armazém em Lordelo
Vila Real, Vila Real, Lordelo
900 € /Mês
1
A estrear, armazém de 580 m2 na ZI de Constantim, Vila Real
Vila Real, Vila Real, Constantim e Vale de Nogueiras
2 000 € /Mês
2
Partilha o imóvel: Armazém novo de 930 m2, com cais junto à Zona Industrial de Vila Real
Partilha este imóvel nas tuas redes sociais ou envia diretamente para o email dos teus amigos.
Partilhar por email
Adicione uma nota ao imóvel!
Só você é que vê as notas que adiciona. Os imóveis com notas ficam nos favoritos para os poder consultar mais tarde.
Excluíste o anúncio:
Armazém novo de 930 m2, com cais junto à Zona Industrial de Vila Real