Pesquisar perto de mim
A aguardar a sua pesquisa
Voltar
Armazém novo com 2 pisos e cais junto à Zona Industrial de Vila Real
Armazém novo com 2 pisos e cais junto à Zona Industrial de Vila Real
Armazém novo com 2 pisos e cais junto à Zona Industrial de Vila Real
Armazém novo com 2 pisos e cais junto à Zona Industrial de Vila Real
Ver galeria (18)
Ver galeria (18)
Seguir
Partilhar

Armazém novo com 2 pisos e cais junto à Zona Industrial de Vila Real

Vila Real, Vila Real, Constantim e Vale de Nogueiras Ver no mapa
9 000 € /mês
0 Quartos
4 WC's
1472m2
Área Útil: 1472m2
Área Bruta: 1719m2
Certificação Energética: Isento

Descrição do anúncio

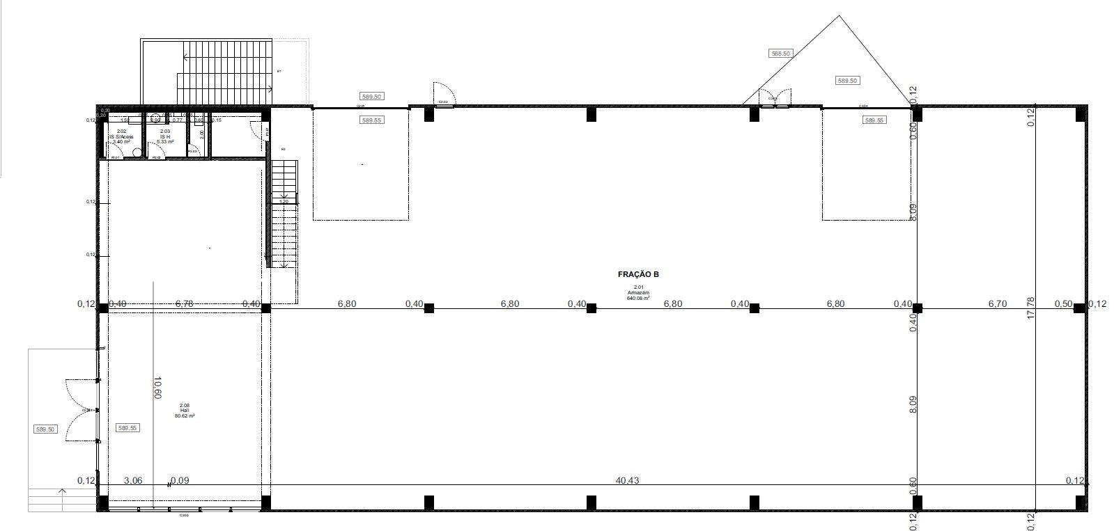
Junto à Zona Industrial de Constantim em Vila Real, armazém novo com 1719 m2, de rés do chão (área bruta: 789 m2) e andar (área bruta: 930 m2), licenciado para Armazém, Comércio e Serviços, com duas montras, entradas independentes, cais e logradouro de 1917 m2.


Características principais de cada andar:


- Rés do chão:

| Medidas |

- Área: Comprimento: 43 m | Largura 17 m

- Pé direito: À viga: 4,55 m; À laje: 5,15 m

- Portão: Largura: 3,70 m; Altura: 4,90 m

- Montra: Comprimento: 13 m | Altura: 4,90 m
---------------------------------------------


- 1º Andar:

| Medidas |

- Área: Comprimento: 43 m | Largura 17 m (completamente desobstruídos - não tem pilares no meio)

- Pé direito:

Armazém: À viga: 4,55 m; à laje: 5,15 m

Por baixo do mezanino: À viga: 2,20 m; à laje: 2,90 m

Mezanino: 2,30 m a 3,10 m

- Portão principal: Largura: 4,20 m; altura: 4,00 m

- Portão cais: Largura: 4,00 m; altura: 4,00 m

- Área do mezanino: 112 m2 (16 m x 7 m)

- Montra: Comprimento: 22 m | Altura: 2,20 m


| Nota |

Os armazéns do R/C e 1º Andar são completamente independentes e estão disponíveis para serem arrendados em separado:

- Rés do chão (área bruta: 789 m2): 4.000€ mensais;

- 1º Andar (área bruta: 930 m2): 5.000€ mensais


| Zona Envolvente |

Aeródromo, Ampla Oferta de Serviços, Autoestrada, Estacionamento, Estacionamento Público, Excelentes Acessos, Posto de Combustível, Transportes Públicos, Zona Industrial


| Condições de arrendamento | A combinar

Galeria do imóvel

Armazém novo com 2 pisos e cais junto à Zona Industrial de Vila Real
Armazém novo com 2 pisos e cais junto à Zona Industrial de Vila Real
Armazém novo com 2 pisos e cais junto à Zona Industrial de Vila Real
Armazém novo com 2 pisos e cais junto à Zona Industrial de Vila Real
Armazém novo com 2 pisos e cais junto à Zona Industrial de Vila Real
Armazém novo com 2 pisos e cais junto à Zona Industrial de Vila Real

Localização do imóvel

Vila Real, Vila Real, Constantim e Vale de Nogueiras

Referência do anúncio: MAG_1099. Última atualização: 07 outubro 2025.

Relatório de preços praticados nos últimos 8 meses

Vila Real, Vila Real, Constantim e Vale de Nogueiras

Simule um Crédito Habitação

Os dados apresentados são meramente indicativos. Condições gerais
Seguir
Partilhar
Degraus Para O Sol - Unipessoal Lda
AMI 14033
Nome
Email
Contacto
Formato inválido
Agende uma visita
Referência do anúncio: MAG_1099.
Última atualização: 07 outubro 2025.
Contactar
Veja também
Anúncios na mesma zona
Armazém de 501m2 na Zona Industrial de Constantim, Vila Real
Vila Real, Vila Real, Constantim e Vale de Nogueiras
1 750 € /Mês
Armazém novo de 789 m2 junto à Zona Industrial de Vila Real
Vila Real, Vila Real, Constantim e Vale de Nogueiras
4 000 € /Mês
2
Armazém novo com 2 pisos e cais junto à Zona Industrial de Vila Real
Vila Real, Vila Real, Constantim e Vale de Nogueiras
9 000 € /Mês
4
Armazém novo de 930 m2, com cais junto à Zona Industrial de Vila Real
Vila Real, Vila Real, Constantim e Vale de Nogueiras
5 000 € /Mês
2
Junto à Zona Industrial de Constantim, Armazém Novo com 800m2
Vila Real, Vila Real, Constantim e Vale de Nogueiras
4 000 € /Mês
3
Armazém na Zona Industrial de Vila Real
Vila Real, Vila Real, Constantim e Vale de Nogueiras
2 200 € /Mês
Armazém em Lordelo
Vila Real, Vila Real, Lordelo
900 € /Mês
1
A estrear, armazém de 580 m2 na ZI de Constantim, Vila Real
Vila Real, Vila Real, Constantim e Vale de Nogueiras
2 000 € /Mês
2
Partilha o imóvel: Armazém novo com 2 pisos e cais junto à Zona Industrial de Vila Real
Partilha este imóvel nas tuas redes sociais ou envia diretamente para o email dos teus amigos.
Partilhar por email
Adicione uma nota ao imóvel!
Só você é que vê as notas que adiciona. Os imóveis com notas ficam nos favoritos para os poder consultar mais tarde.
Excluíste o anúncio:
Armazém novo com 2 pisos e cais junto à Zona Industrial de Vila Real