Pesquisar perto de mim
A aguardar a sua pesquisa
Voltar
Venda de Terreno, Beiriz Póvoa de Varzim | NOVA imobiliária
Venda de Terreno, Beiriz Póvoa de Varzim | NOVA imobiliária
Venda de Terreno, Beiriz Póvoa de Varzim | NOVA imobiliária
Venda de Terreno, Beiriz Póvoa de Varzim | NOVA imobiliária
Ver galeria (11)
Ver galeria (11)
Seguir
Partilhar

Venda de Terreno, Beiriz Póvoa de Varzim | NOVA imobiliária

Porto, Póvoa de Varzim, Póvoa de Varzim, Beiriz e Argivai Ver no mapa
170 000 €
0 Quartos
0 WC's
Certificação Energética: N/D
Estado: Novo

Descrição do anúncio

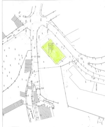
Terreno para venda com 715 m2 para constução de moradia térrea ou moradia de rés chão e andar.
Terreno está também licenciado para construção de comércio + habitação.
Com bons acessos ao centro da cidade e auto estrada.

NOVA 4373 

 NOVA Imobiliária - Onde os negócios vão para além de uma tradicional mediação!
Somos uma agência imobiliária que não se preocupa apenas em satisfazer as necessidades dos clientes. Queremos excedê-las! Garantimos honestidade, confiança e credibilidade!
Fundada em 2016 e abertos desde o inicio de Novembro, a Nova Imobiliária iniciou a sua atividade ao nível da mediação imobiliária, a particulares e empresas. Angariamos, vendemos e arrendamos propriedades.
Está licenciada pelo Instituto dos Mercados Públicos do Imobiliário e da Construção (IMPIC) para o desenvolvimento da atividade de mediação imobiliária (titular da licença AMI nº 12678).
 
Na Nova Imobiliária acreditamos que a proximidade com cada cliente é a chave do sucesso. Temos uma equipa extremamente motivada para levar até aos nossos clientes as melhores soluções, em questões relacionadas com a compra, venda e arrendamento de imóveis e obras.
 
A Póvoa de Varzim é uma cidade portuguesa do distrito do Porto com cerca de 63 mil habitantes.
É a cidade balnear mais conhecida e popular do Norte de Portugal, com 12km de praia, excelentes infraestruturas e acessos. Situada a 35km da cidade do Porto, é a terra do ilustre escritor Eça de Queirós. Conhecida, também, pelo seu Casino, é uma das poucas zonas de jogo legal em Portugal. O 29 de Junho é a maior festa da cidade, o dia de S.Pedro. 
Uma cidade com uma identidade cultural muito própria e tradições piscatórias ainda muito presentes e que podem ser observadas através do painel de azulejos disposto no cais de pesca. 

NOVA Imobiliária - Onde os negócios vão para além de uma tradicional mediação!
 

Características Gerais

  • Acesso com Estrada
  • Não edificável

Galeria do imóvel

Venda de Terreno, Beiriz Póvoa de Varzim | NOVA imobiliária
Venda de Terreno, Beiriz Póvoa de Varzim | NOVA imobiliária
Venda de Terreno, Beiriz Póvoa de Varzim | NOVA imobiliária
Venda de Terreno, Beiriz Póvoa de Varzim | NOVA imobiliária
Venda de Terreno, Beiriz Póvoa de Varzim | NOVA imobiliária
Venda de Terreno, Beiriz Póvoa de Varzim | NOVA imobiliária

Localização do imóvel

Porto, Póvoa de Varzim, Póvoa de Varzim, Beiriz e Argivai

Referência do anúncio: NOVA-4373. Última atualização: 02 agosto 2024.

Relatório de preços praticados nos últimos 8 meses

Porto, Póvoa de Varzim, Póvoa de Varzim, Beiriz e Argivai

Simule um Crédito Habitação

Os dados apresentados são meramente indicativos. Condições gerais
Seguir
Partilhar
EXPERIENCE2DAY MEDIAÇÃO IMOBILIÁRIA, LDA (Nova Imobiliária)
AMI 12678
252 ...
Chamada para a rede fixa nacional
Mostrar número
Nome
Email
Contacto
Formato inválido
Agende uma visita
Referência do anúncio: NOVA-4373.
Última atualização: 02 agosto 2024.
Contactar
Veja também
Anúncios na mesma zona
Terreno vistas sobre o rio douro e viabilidade construtiva
Porto, Marco de Canaveses, Bem Viver
65 000 €
Terreno proj. aprovado 20 moradias-centro valongo.
Porto, Valongo, Campo e Sobrado
680 000 €
Oportunidade única -Terreno com loteamento aprovado para 18 Fogos.
Porto, Valongo, Valongo
300 000 €
Terreno Misto Venda em Vilar e Mosteiró,Vila do Conde
Porto, Vila do Conde, Vilar e Mosteiró
260 000 €
Terreno para construção em Árvore, Vila do Conde
Porto, Vila do Conde, Árvore
180 000 €
Terreno para construção, em Gião
Porto, Vila do Conde, Gião
300 000 €
Terreno para 4 moradias em gião, vila do conde
Porto, Vila do Conde, Gião
185 000 €
Terreno industrial 2.800 m2 Perosinho, Vila Nova de Gaia para a construção de Armazém
Porto, Vila Nova de Gaia, Pedroso e Seixezelo
84 000 €
Loteamento - terreno dá para construi c/v + r/c + 1.º + 2.º + 3.º - oliveira do douro - vila nova de gaia
Porto, Porto, Bonfim
170 000 €
Terreno para construção
Porto, Matosinhos, São Mamede de Infesta e Senhora da Hora
675 000 €
Partilha o imóvel: Venda de Terreno, Beiriz Póvoa de Varzim | NOVA imobiliária
Partilha este imóvel nas tuas redes sociais ou envia diretamente para o email dos teus amigos.
Partilhar por email
Adicione uma nota ao imóvel!
Só você é que vê as notas que adiciona. Os imóveis com notas ficam nos favoritos para os poder consultar mais tarde.
Excluíste o anúncio:
Venda de Terreno, Beiriz Póvoa de Varzim | NOVA imobiliária