Pesquisar perto de mim
A aguardar a sua pesquisa
Voltar
Terreno Urbano para desenvolvimento de moradias e hotelaria
Terreno Urbano para desenvolvimento de moradias e hotelaria
Terreno Urbano para desenvolvimento de moradias e hotelaria
Terreno Urbano para desenvolvimento de moradias e hotelaria
Ver galeria (6)
Ver galeria (6)
Seguir
Partilhar

Terreno Urbano para desenvolvimento de moradias e hotelaria

Beja, Odemira, São Luís Ver no mapa
3 000 000 €
0 Quartos
0 WC's
9479m2
Área Útil: 9479m2
Certificação Energética: Avaliação em curso

Descrição do anúncio

Será uma vila residencial, excelentes infraestruturas e serviços, e está a uma curta distância de carro da costa atlântica e de Vila Nova de Milfontes, uma região com belas praias de areia branca e águas azuis límpidas, como Porto Covo, Zambujeira do Mar , Almograve, São Torpes e muitos outros.

Esta localização encontra-se também rodeada de pinheiros, sobreiros e eucaliptos, estando a 150m de altitude a zona apresenta um clima ameno durante todo o ano.

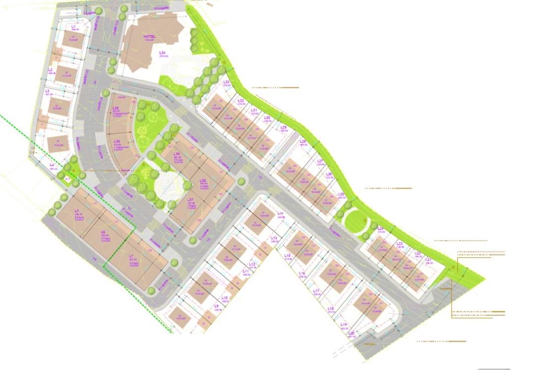
O loteamento aprovado é composto por 39 lotes - 38 para habitação incluindo moradias em banda 2-3-4 quartos ou moradias isoladas, e 1 para hotel ou empreendimento turístico.

Galeria do imóvel

Terreno Urbano para desenvolvimento de moradias e hotelaria
Terreno Urbano para desenvolvimento de moradias e hotelaria
Terreno Urbano para desenvolvimento de moradias e hotelaria
Terreno Urbano para desenvolvimento de moradias e hotelaria
Terreno Urbano para desenvolvimento de moradias e hotelaria
Terreno Urbano para desenvolvimento de moradias e hotelaria

Localização do imóvel

Beja, Odemira, São Luís

Referência do anúncio: PGLLM-CS_119. Última atualização: 22 junho 2024.

Relatório de preços praticados nos últimos 8 meses

Beja, Odemira, São Luís

Simule um Crédito Habitação

Os dados apresentados são meramente indicativos. Condições gerais
Seguir
Partilhar
Propriete Generale, Unip Lda
AMI 14104
Nome
Email
Contacto
Formato inválido
Agende uma visita
Referência do anúncio: PGLLM-CS_119.
Última atualização: 22 junho 2024.
Contactar
Veja também
Anúncios na mesma zona
Lote de terreno para construção de 4 fogos em são teotónio
Beja, Odemira, São Teotónio
99 000 €
Lote de terreno para construção a 3 km de odemira
Beja, Odemira, Boavista dos Pinheiros
40 000 €
Herdade com 18 Hectares para Venda - próximo à cidade de Beja
Beja, Beja, Beja (Santiago Maior e São João Baptista)
Sob consulta
TERRENO DE 22,45 HA COM RUÍNA DE 240 M² PARA RECUPERAÇÃO EM FERREIRA DO ALENTEJO
Beja, Ferreira do Alentejo, Figueira dos Cavaleiros
900 000 €
Terreno rústico em castanhal, boavista dos pinheiros
Beja, Odemira, Boavista dos Pinheiros
57 500 €
Terreno 55.000 m2 Industrial. Portugal, Alentejo, Beja.
Beja, Beja, Beja (Santiago Maior e São João Baptista)
1 250 000 €
Lote de terreno para construção em odemira
Beja, Odemira, São Salvador e Santa Maria
125 000 €
Terreno Rústico em Ourique
Beja, Ourique, Ourique
300 000 €
Terreno Agrícola com 5,775 hectares para venda em Vila Nova de São Bento
Beja, Mértola, Corte do Pinto
95 000 €
Boa propriedade de pastagem gado
Beja, Beja, Beja (Santiago Maior e São João Baptista)
3 000 000 €
Partilha o imóvel: Terreno Urbano para desenvolvimento de moradias e hotelaria
Partilha este imóvel nas tuas redes sociais ou envia diretamente para o email dos teus amigos.
Partilhar por email
Adicione uma nota ao imóvel!
Só você é que vê as notas que adiciona. Os imóveis com notas ficam nos favoritos para os poder consultar mais tarde.
Excluíste o anúncio:
Terreno Urbano para desenvolvimento de moradias e hotelaria