Pesquisar perto de mim
A aguardar a sua pesquisa
Voltar
Terreno para Construção Urbana
Terreno para Construção Urbana
Terreno para Construção Urbana
Terreno para Construção Urbana
Ver galeria (23)
Ver galeria (23)
Seguir
Partilhar

Terreno para Construção Urbana

Porto, Vila Nova de Gaia, Mafamude e Vilar do Paraíso Ver no mapa
450 000 €
0 Quartos
0 WC's
Certificação Energética: N/D

Descrição do anúncio

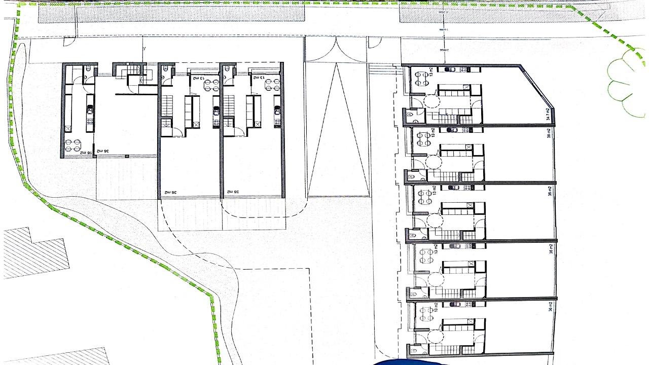
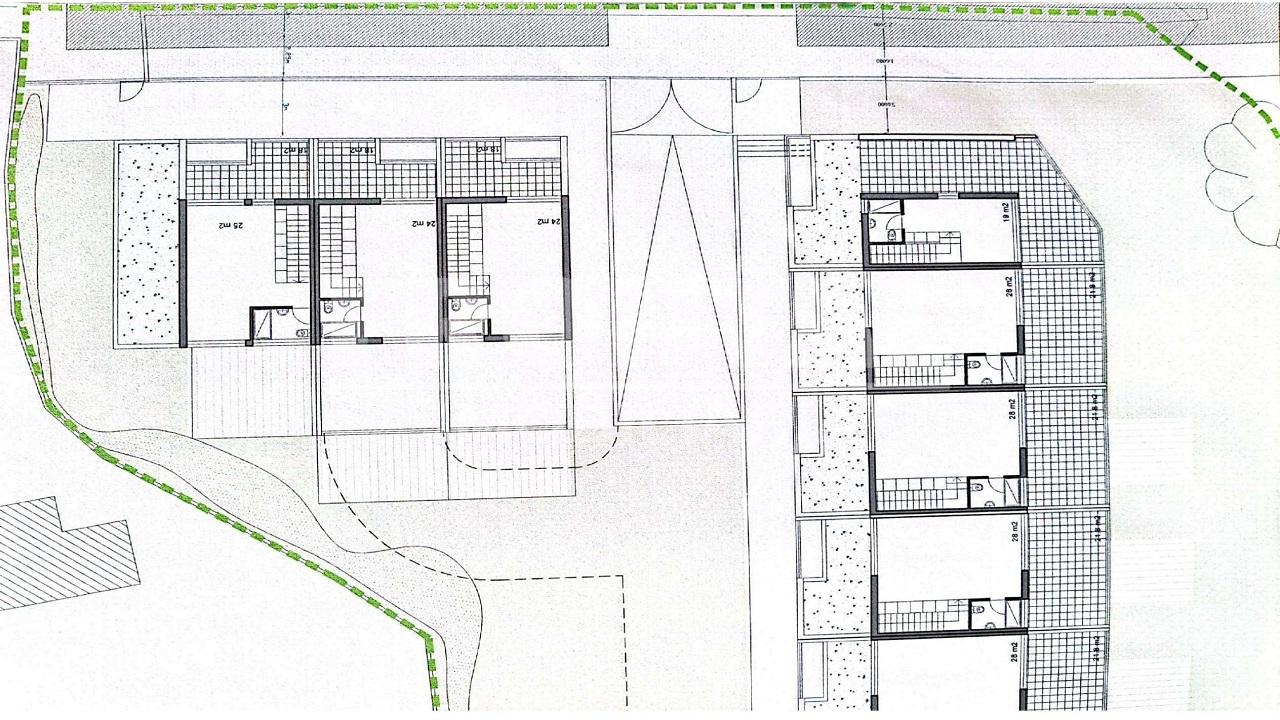
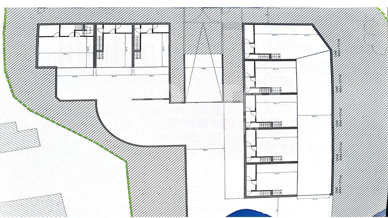
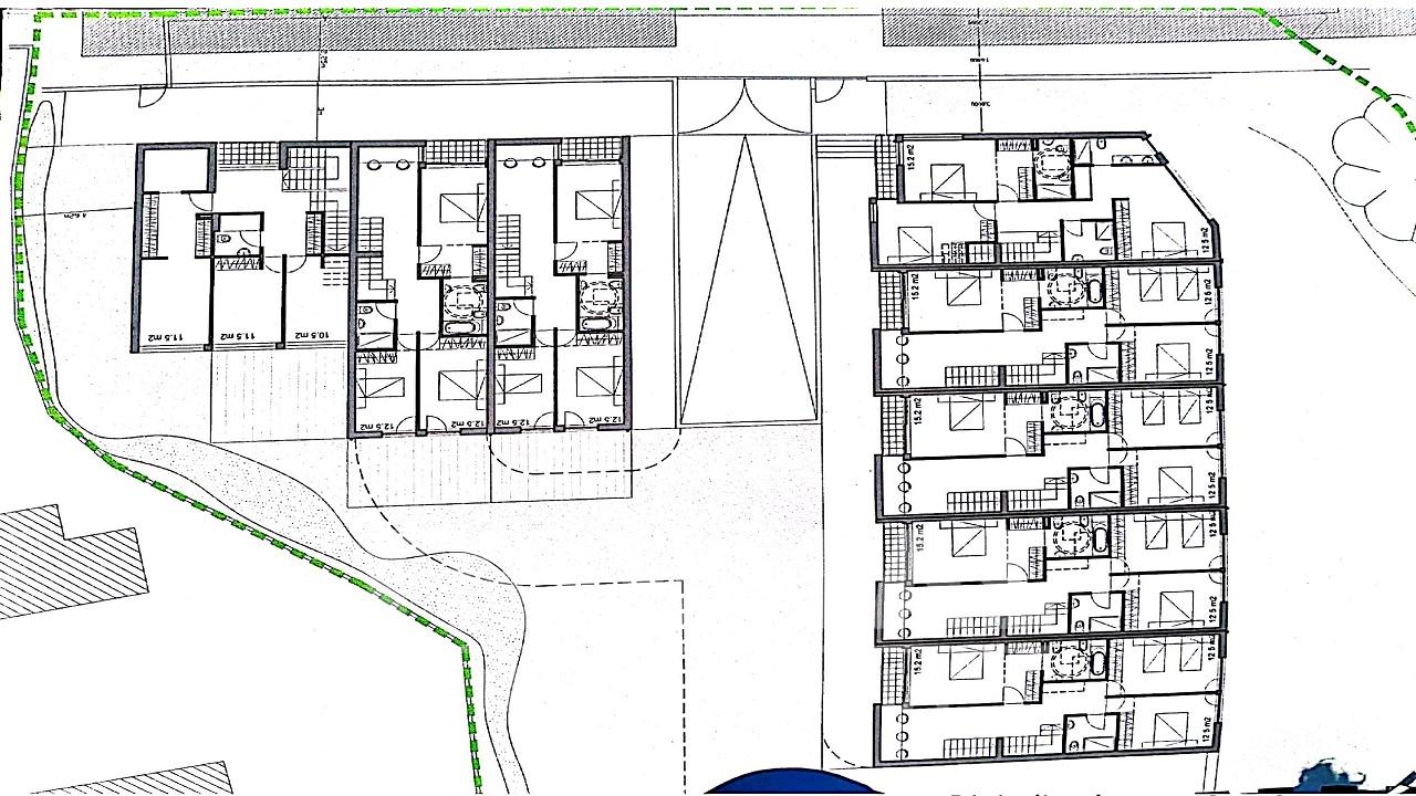
Se procura um lote de terreno próximo ao El Corte Ingles e à estação de metro João de Deus, na Avenida da República, em Vila Nova de Gaia.

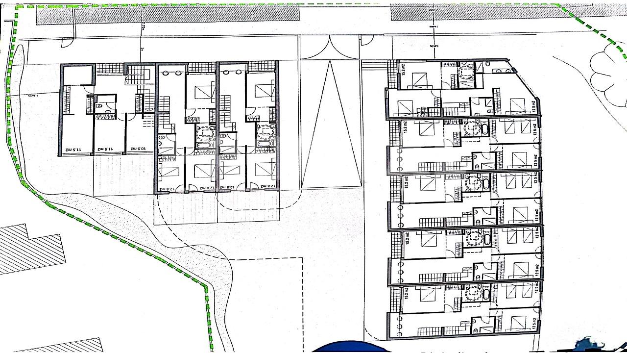
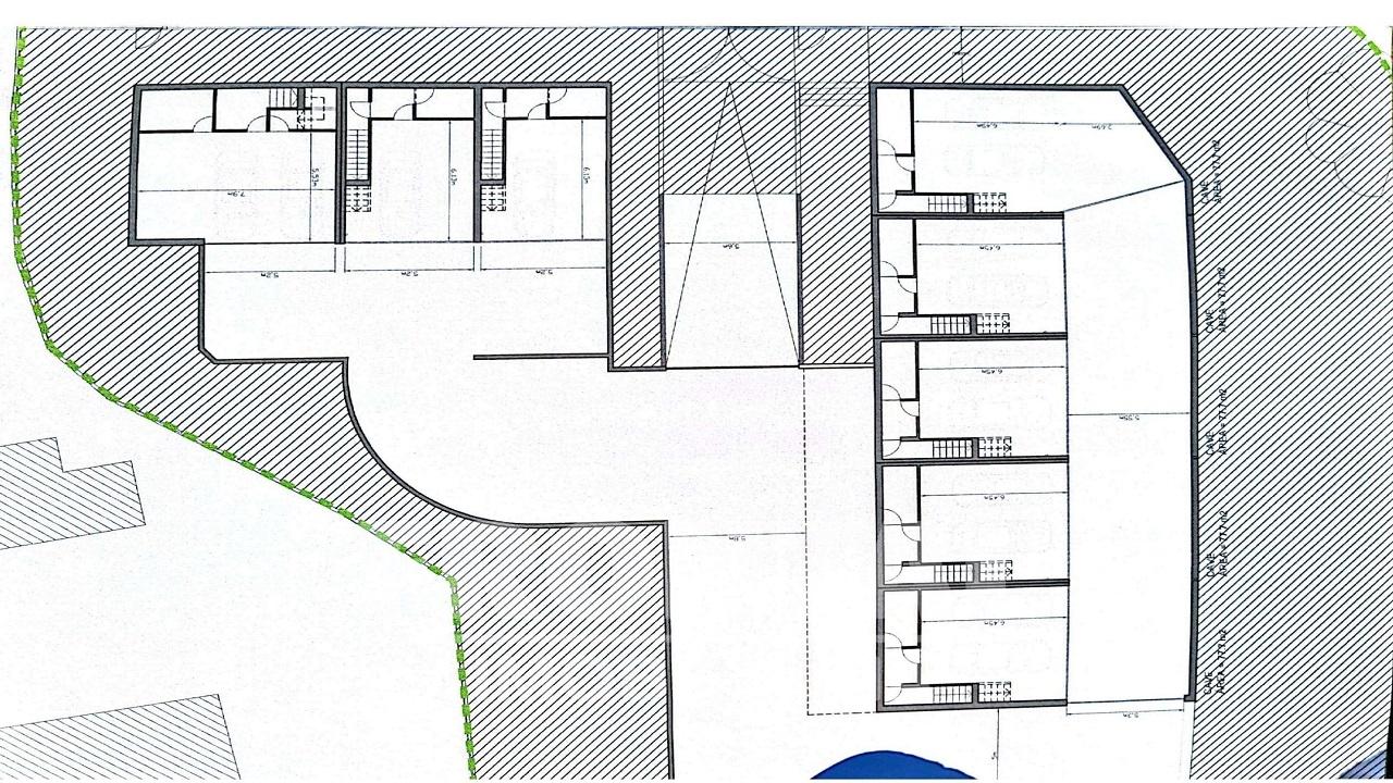
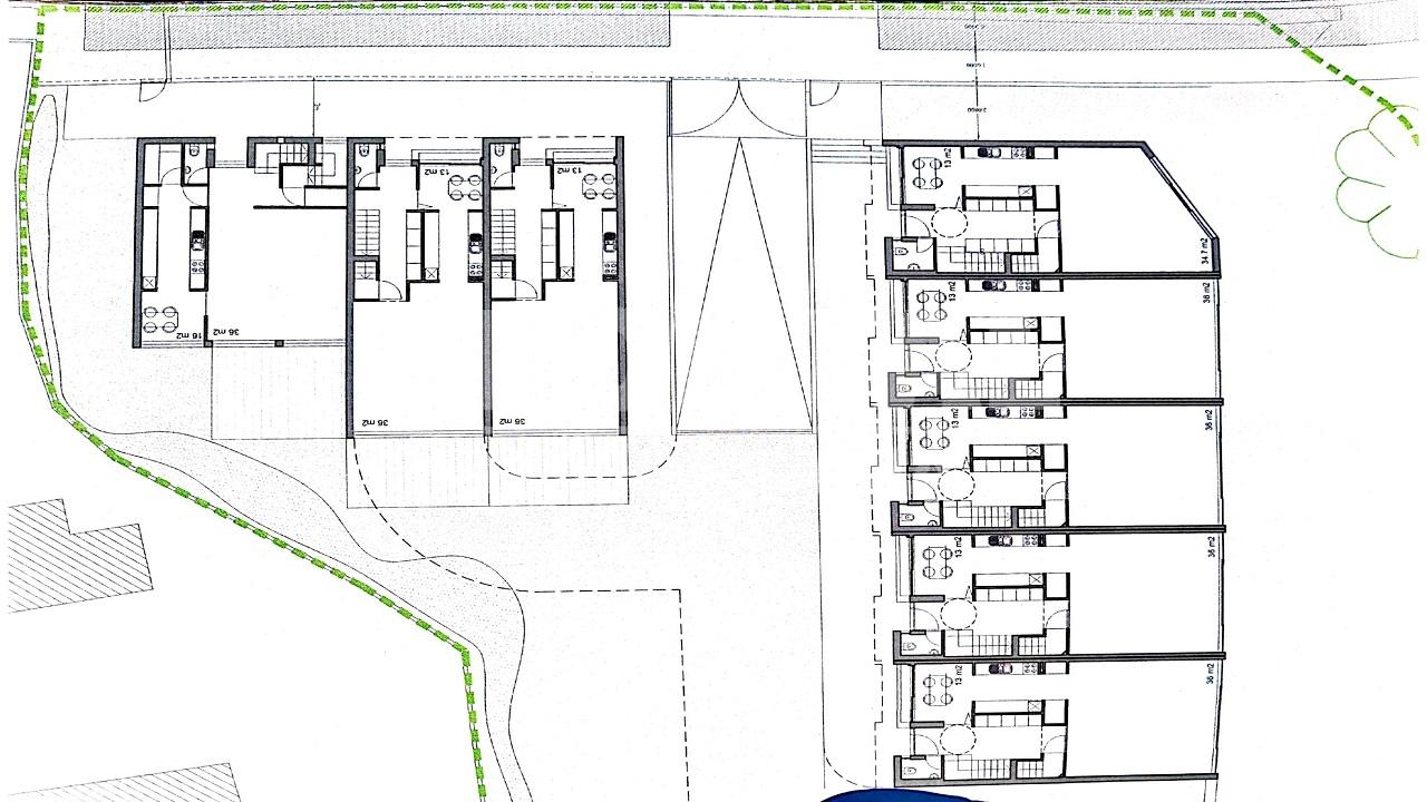
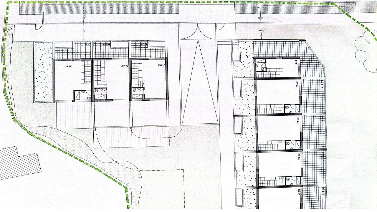
Terreno urbano:
- Área: 3.000,00 m²
- Localização: Próximo da Avenida da República, Vila Nova de Gaia
- Características: Terreno integrado numa zona urbana central, com apoio de transportes públicos, metro nas proximidades e de fácil acesso a qualquer ponto da cidade.
- Projeto aprovado para construção
- Plano Urbanístico: 5 + 3 moradias

A Avenida da República é uma das principais artérias de Vila Nova de Gaia, contando com uma excelente rede de transportes públicos, incluindo a estação de metro João de Deus, situada em frente ao El Corte Inglés. Esta localização oferece fácil acesso a diversos pontos da cidade e é ideal para projetos residenciais ou comerciais. 

Se precisar de mais informações ou assistência para entrar em contacto com os anunciantes, estou à disposição para ajudar.

A FRONTAL distingue-se pela amplitude no serviço de qualidade prestado ao cliente e encara sempre os desafios com rigor e frontalidade.
Segmento Residencial - conta com uma vasta equipa de comerciais, dinâmica e ambiciosa que tem por missão prestar um serviço de excelência, alicerçada numa vasta experiência do mercado, respeitando os mais elevados padrões de ética, descrição e integridade, contribuindo assim para o crescimento da marca e da satisfação dos seus clientes.
Apoiados por um departamento autónomo, trata de todos os processos administrativos e de financiamento acompanhando o cliente até á escritura.
Através da sua rede de Sucursais, Know-How, Dinâmica e Inovação Comercial, apoiada em ferramentas de Marketing, a Frontal responde eficazmente aos desafios que os seus clientes e parceiros possam lançar.

Segmento Empresarial - concentra-se na oferta de soluções diferenciadas a empresas e a clientes empresariais que procuram um produto dotado de um alto grau de especificidade.

Segmento Empreendimentos – tem o seu foco especializado na comercialização de Empreendimentos, contemplando um Serviço Global de Venda, apoiado numa Estratégia de Marketing e Estudo de Mercado, definindo um posicionamento claro e ajustado à dinâmica da oferta e da procura tendo como foco superar as suas expectativas.

 

Características Gerais

  • Acesso com Estrada
  • Não edificável

Galeria do imóvel

Terreno para Construção Urbana
Terreno para Construção Urbana
Terreno para Construção Urbana
Terreno para Construção Urbana
Terreno para Construção Urbana
Terreno para Construção Urbana

Localização do imóvel

Porto, Vila Nova de Gaia, Mafamude e Vilar do Paraíso

Referência do anúncio: FPS-30471. Última atualização: 30 outubro 2025.

Relatório de preços praticados nos últimos 8 meses

Porto, Vila Nova de Gaia, Mafamude e Vilar do Paraíso

Simule um Crédito Habitação

Os dados apresentados são meramente indicativos. Condições gerais
Seguir
Partilhar
DIFRANO - SOCIEDADE DE INVESTIMENTOS IMOBILIÁRIOS LDA (FRONTAL IMOBILIARIA)
AMI 9590
+35 ...
Chamada para a rede fixa nacional
Mostrar número
Nome
Email
Contacto
Formato inválido
Agende uma visita
Referência do anúncio: FPS-30471.
Última atualização: 30 outubro 2025.
Contactar
Veja também
Anúncios na mesma zona
Terreno Urbano com 24589m2
Porto, Vila Nova de Gaia, Grijó e Sermonde
1 280 000 €
Terreno Industrial - Baltar
Porto, Paredes, Baltar
Sob consulta
Terreno Para Construção Venda em Rio de Moinhos,Penafiel
Porto, Penafiel, Rio de Moinhos
130 000 €
Terreno Urbano Venda em Rebordosa,Paredes
Porto, Paredes, Rebordosa
65 000 €
Terreno 2000m² - Areias
Porto, Santo Tirso, Areias, Sequeiró, Lama e Palmeira
300 000 €
Terreno com 1175 m2 Paços de Ferreira
Porto, Paredes, Vilela
100 000 €
Terreno de construção com 816 m² em Silvares, Lousada
Porto, Lousada, Silvares, Pias, Nogueira e Alvarenga
65 000 €
Terreno para venda
Porto, Felgueiras, Revinhade
80 000 €
Terreno e ruína com vistas para o rio Douro
Porto, Penafiel, Canelas
Sob consulta
2 Lotes de terreno- Possibilidade de casa Terrea ou 2 moradias
Porto, Gondomar, Fânzeres e São Pedro da Cova
97 000 €
Partilha o imóvel: Terreno para Construção Urbana
Partilha este imóvel nas tuas redes sociais ou envia diretamente para o email dos teus amigos.
Partilhar por email
Adicione uma nota ao imóvel!
Só você é que vê as notas que adiciona. Os imóveis com notas ficam nos favoritos para os poder consultar mais tarde.
Excluíste o anúncio:
Terreno para Construção Urbana