Pesquisar perto de mim
A aguardar a sua pesquisa
Voltar
Predios para recuperar na zona histórica do seixal
Predios para recuperar na zona histórica do seixal
Predios para recuperar na zona histórica do seixal
Predios para recuperar na zona histórica do seixal
Ver galeria (4)
Ver galeria (4)
Seguir
Partilhar

Predios para recuperar na zona histórica do seixal

Setúbal, Seixal, Seixal, Arrentela e Aldeia de Paio Pires Ver no mapa
1 100 000 €
0 Quartos
0 WC's
912m2
Área Útil: 912m2
Área Bruta: 912m2
Ano de Construção: 1956
Certificação Energética: Isento
Estado: Por Recuperar

Descrição do anúncio

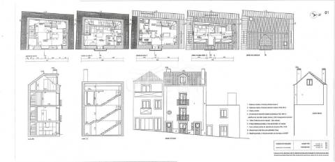
Seixal Zona Histórica, frente rioDois edificios contiguos, para remodelação total, com projeto aprovado ( necessário atualizar )12 apartamentos 5 lojas.Area Bruta de Construção 921 m23 pisosImplantação 321 m2PERMUTA poderá ser consideradaAo dispor para mais informaçõesPredimed PORTUGAL Mediação Imobiliária Lda.Avenida Brasil 43, 12º Andar, 1700-062 LisboaLicença AMI nº 22503Pessoa Coletiva nº 517 239 345Seguro Responsabilidade Civil: Nº de Apólice RC65379424 Fidelidade

Galeria do imóvel

Predios para recuperar na zona histórica do seixal
Predios para recuperar na zona histórica do seixal
Predios para recuperar na zona histórica do seixal
Predios para recuperar na zona histórica do seixal

Localização do imóvel

Setúbal, Seixal, Seixal, Arrentela e Aldeia de Paio Pires

Referência do anúncio: 042154. Última atualização: 15 maio 2025.

Relatório de preços praticados nos últimos 8 meses

Setúbal, Seixal, Seixal, Arrentela e Aldeia de Paio Pires

Simule um Crédito Habitação

Os dados apresentados são meramente indicativos. Condições gerais
Seguir
Partilhar
Predimed Imobiliaria Mediacao Imobiliaria Lda
AMI 22503
Nome
Email
Contacto
Formato inválido
Agende uma visita
Referência do anúncio: 042154.
Última atualização: 15 maio 2025.
Contactar
Veja também
Anúncios na mesma zona
Prédio na Costa de Caparica
Setúbal, Almada, Costa da Caparica
1 920 000 €
Prédio com projeto aprovado e licença a pagamento para 14 frações no centro histórico de Setúbal
Setúbal, Setúbal, Setúbal (São Julião, Nossa Senhora da Anunciada e Santa Maria da Graça)
1 200 000 €
Transforme história em rentabilidade Prédio para reconstrução a poucos metros do passadiço à beira rio no Seixal
Setúbal, Seixal, Seixal, Arrentela e Aldeia de Paio Pires
160 000 €
Prédio único para remodelação total com jardim interno em santana – sesimbra
Setúbal, Setúbal, Azeitão (São Lourenço e São Simão)
250 000 €
Edifício com imenso potencial no Centro do Montijo
Setúbal, Montijo, Montijo e Afonsoeiro
1 300 000 €
Prédio >=T10 Venda em Almada, Cova da Piedade, Pragal e Cacilhas,Almada
Setúbal, Almada, Almada, Cova da Piedade, Pragal e Cacilhas
590 000 €
Lote para construção de prédio
Setúbal, Grândola, Grândola e Santa Margarida da Serra
320 000 €
Predios para recuperar na zona histórica do seixal
Setúbal, Seixal, Seixal, Arrentela e Aldeia de Paio Pires
1 100 000 €
Prédio na Charneca da Caparica, Almada
Setúbal, Almada, Charneca de Caparica e Sobreda
1 000 000 €
Prédio R/c com lojas e 1º andar habitação
Setúbal, Santiago do Cacém, Ermidas-Sado
235 000 €
Partilha o imóvel: Predios para recuperar na zona histórica do seixal
Partilha este imóvel nas tuas redes sociais ou envia diretamente para o email dos teus amigos.
Partilhar por email
Adicione uma nota ao imóvel!
Só você é que vê as notas que adiciona. Os imóveis com notas ficam nos favoritos para os poder consultar mais tarde.
Excluíste o anúncio:
Predios para recuperar na zona histórica do seixal