Pesquisar perto de mim
A aguardar a sua pesquisa
Voltar
Penthouse única, com piscina, vista e garagem em pleno Príncipe Real
Penthouse única, com piscina, vista e garagem em pleno Príncipe Real
Penthouse única, com piscina, vista e garagem em pleno Príncipe Real
Penthouse única, com piscina, vista e garagem em pleno Príncipe Real
Ver galeria (42)
Ver galeria (42)
Seguir
Partilhar

Penthouse única, com piscina, vista e garagem em pleno Príncipe Real

Lisboa, Lisboa, Misericórdia Ver no mapa
4 750 € /mês
2 Quartos
3 WC's
Área Bruta: 134m2
Certificação Energética: A

Descrição do anúncio

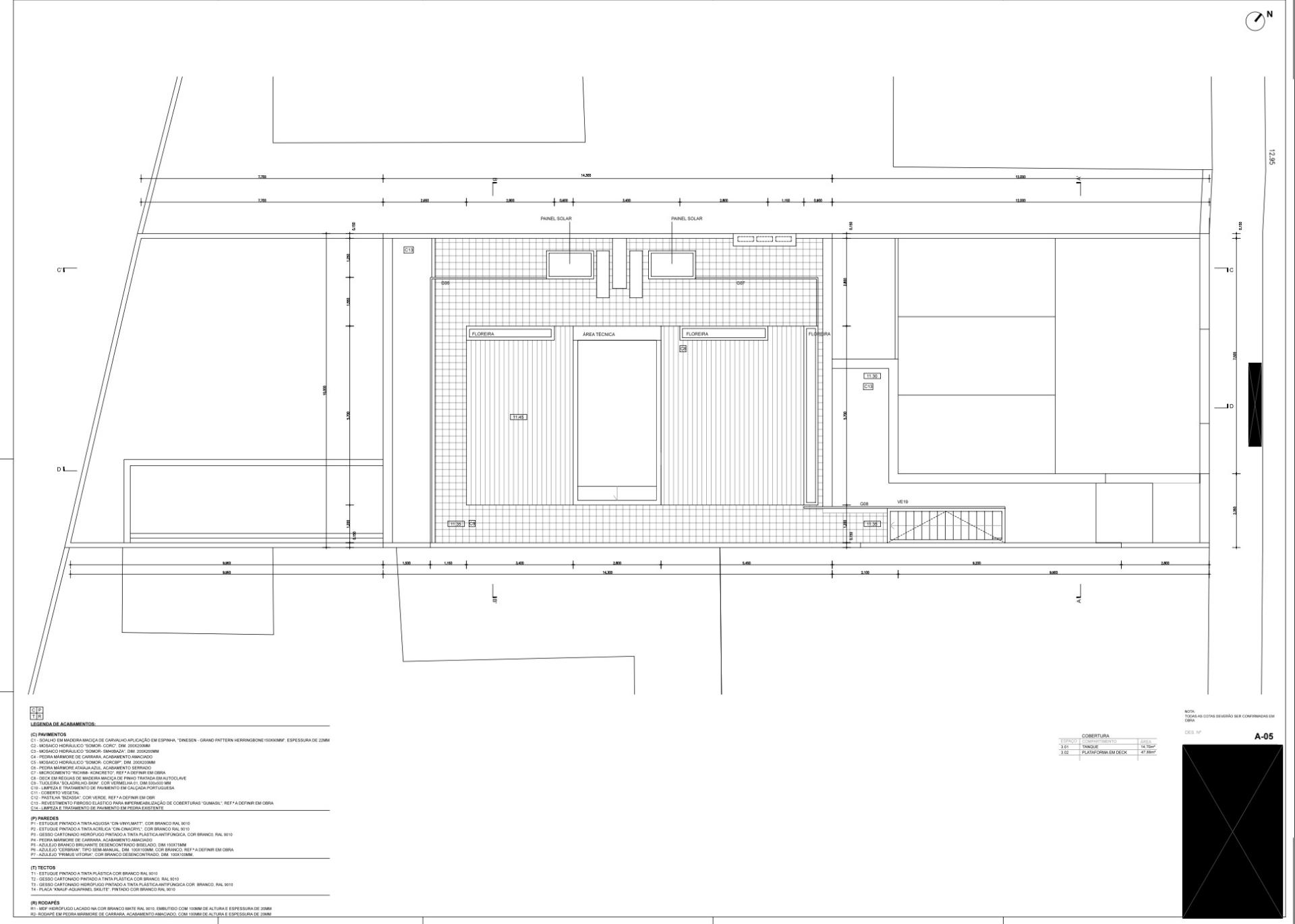
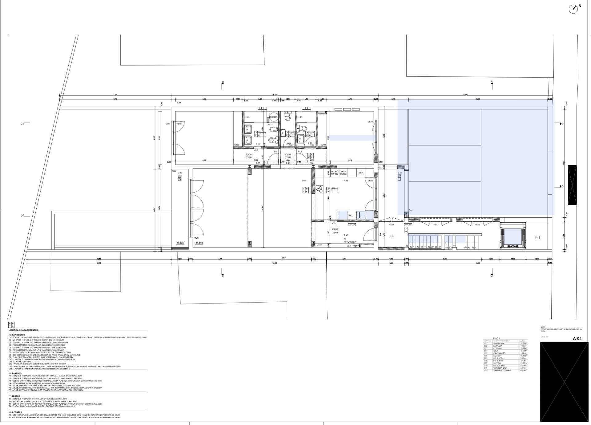
Este apartamento Penthouse foi recentemente recuperado com o maior cuidado, atenção aos pormenores e com materiais de elevada qualidade. Está em óptimo estado e fica num prédio com duas fracções sendo que este é o último andar.

Características:
- Sala com cerca de 46m2 com acesso a uma varanda;
- Cozinha com acesso a uma varanda;
- Dois quartos em suite;
- Casa-de-banho de visitas;
- Cobertura privada com 120m2 com piscina e vista deslumbrante sobre a cidade;
- 1 lugar de garagem.

Outros:
- Disponível a partir do dia 15 de Outubro.

Excelente oportunidade para quem quer viver num apartamento de sonho num dos bairros mais trendy de Lisboa!

O Bairro:
Misericórdia é uma freguesia portuguesa do concelho de Lisboa, pertencente à zona do centro histórico da capital, que reúne uma série de bairros emblemáticos da cidade.

O Príncipe Real é uma das áreas residenciais mais desejadas de Lisboa. Belos e grandiosos edifícios do século XIX estão virados para parques e praças tranquilas. As ruas estão repletas de lojas de antiguidades e boutiques independentes. Está perto do melhor miradouro de Lisboa.

O Jardim do Príncipe Real é um ponto central deste bairro, estando situado junto à Rua da Escola Politécnica que une o Largo do Rato ao Bairro Alto.

Ao chegar ao Bairro Alto, vindo do Príncipe Real, é impossível não ver o Miradouro de São Pedro de Alcântara. Recuperado em 2008, este miradouro oferece hoje vistas fantásticas sobre a Baixa Lisboeta e o Castelo de São Jorge, alcançando ao longe o Rio Tejo.

Principalmente ocupado por intelectuais, artistas, estudantes universitários, e para não mencionar os turistas, o Bairro Alto, com a sua grande variedade de restaurantes, casas de fado, cafés e bares, é o centro cultural mais atraente da cidade.

E por fim o Chiado, o coração da cidade. O bairro incontornável onde as lojas centenárias vivem ao lado de marcas modernas, restaurantes de assinatura e sítios para ver e ser visto com muita música e animação ao vivo.

Galeria do imóvel

Penthouse única, com piscina, vista e garagem em pleno Príncipe Real
Penthouse única, com piscina, vista e garagem em pleno Príncipe Real
Penthouse única, com piscina, vista e garagem em pleno Príncipe Real
Penthouse única, com piscina, vista e garagem em pleno Príncipe Real
Penthouse única, com piscina, vista e garagem em pleno Príncipe Real
Penthouse única, com piscina, vista e garagem em pleno Príncipe Real

Localização do imóvel

Lisboa, Lisboa, Misericórdia

Referência do anúncio: ÀTI_5745_26. Última atualização: 15 janeiro 2026.

Relatório de preços praticados nos últimos 8 meses

Lisboa, Lisboa, Misericórdia

Simule um Crédito Habitação

Os dados apresentados são meramente indicativos. Condições gerais
Seguir
Partilhar
Lince Real Estate Lda
AMI 10207
Nome
Email
Contacto
Formato inválido
Agende uma visita
Referência do anúncio: ÀTI_5745_26.
Última atualização: 15 janeiro 2026.
Contactar
Veja também
Anúncios na mesma zona
Moradia geminada com piscina inserida em Condominio de luxo- Cascais
Lisboa, Cascais, Cascais e Estoril
3 200 € /Mês
2
2
Exelente Moradia T4
Lisboa, Cascais, Alcabideche
5 500 € /Mês
3
4
Penthouse única, com piscina, vista e garagem em pleno Príncipe Real
Lisboa, Lisboa, Misericórdia
4 750 € /Mês
2
3
T3 com jardim e garagem. Um verdadeiro oásis no coração da Lapa
Lisboa, Lisboa, Estrela
4 800 € /Mês
3
3
Moradia T6 renovada com jardim e piscina para arrendamento
Lisboa, Cascais, Cascais e Estoril
19 800 € /Mês
6
6
Excelente moradia arquitetura classica com cinco quartos
Lisboa, Cascais, Cascais e Estoril
3 600 € /Mês
5
5
Apartamento T2 para arrendamento condominio privado.
Lisboa, Cascais, Alcabideche
3 300 € /Mês
2
2
Para Arrendar | Moradia T4+2 | Cascais
Lisboa, Cascais, Cascais e Estoril
8 500 € /Mês
6
5
Moradia Isolada T4 - Tires - São Domingos de Rana
Lisboa, Cascais, São Domingos de Rana
2 300 € /Mês
4
3
Moradia T4 + 1 em Tercena
Lisboa, Oeiras, Barcarena
2 950 € /Mês
4
3
Partilha o imóvel: Penthouse única, com piscina, vista e garagem em pleno Príncipe Real
Partilha este imóvel nas tuas redes sociais ou envia diretamente para o email dos teus amigos.
Partilhar por email
Adicione uma nota ao imóvel!
Só você é que vê as notas que adiciona. Os imóveis com notas ficam nos favoritos para os poder consultar mais tarde.
Excluíste o anúncio:
Penthouse única, com piscina, vista e garagem em pleno Príncipe Real