Pesquisar perto de mim
A aguardar a sua pesquisa
Voltar
Oportunidade de Investimento Turístico | 5,5 ha com PIP Aprovado | Borba, Alentejo
Oportunidade de Investimento Turístico | 5,5 ha com PIP Aprovado | Borba, Alentejo
Oportunidade de Investimento Turístico | 5,5 ha com PIP Aprovado | Borba, Alentejo
Oportunidade de Investimento Turístico | 5,5 ha com PIP Aprovado | Borba, Alentejo
Ver galeria (12)
Ver galeria (12)
Seguir
Partilhar

Oportunidade de Investimento Turístico | 5,5 ha com PIP Aprovado | Borba, Alentejo

Évora, Borba, Borba (São Bartolomeu) Ver no mapa
550 000 €
0 Quartos
0 WC's
Certificação Energética: N/D

Descrição do anúncio

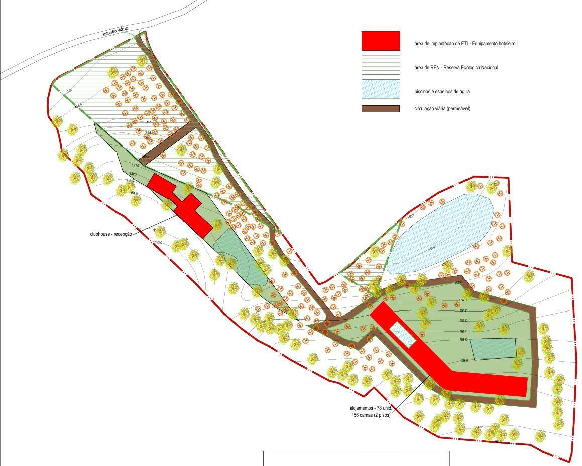
Apresentamos uma oportunidade rara de investimento turístico no Alentejo: propriedade rústica com 5,5 hectares (55.000 m²) em Borba, já beneficiando de PIP aprovado para Empreendimento Turístico Isolado (ETI) um fator particularmente relevante na redução do risco e do tempo de desenvolvimento.

De acordo com o estudo associado ao PIP aprovado, encontra-se prevista uma capacidade construtiva até aproximadamente 8.400 m² para fins turísticos, contemplando cerca de 78 unidades de alojamento (aprox. 156 camas), bem como áreas de receção/clubhouse, zonas comuns de lazer, piscinas e estrutura de circulação interna. As imagens ilustrativas apresentadas procuram refletir o potencial de valorização e a visão conceptual possível para este ativo.

A implantação foi concebida para uma integração harmoniosa na morfologia do terreno e na paisagem envolvente, reforçando a coerência do conceito turístico proposto, estando a informação urbanística sempre sujeita a confirmação junto das entidades competentes.

Inserido numa envolvente rural de grande autenticidade paisagística, o terreno desenvolve-se em dois artigos rústicos e apresenta topografia natural equilibrada, com povoamento de oliveiras adultas, azinheiras, sobreiros e vegetação mediterrânica característica da região. O enquadramento de baixa densidade, aliado à privacidade e tranquilidade do local, confere a este ativo um posicionamento particularmente interessante para projetos de resort, aparthotel, turismo rural ou hospitality boutique.

Ao nível de infraestruturas, segundo informação disponível, a eletricidade encontra-se a cerca de 600 metros e a ligação à rede pública de água a aproximadamente 300 metros, fatores que reforçam a viabilidade futura de desenvolvimento.

A localização beneficia de excelente acessibilidade, encontrando-se a propriedade a aproximadamente 5 minutos da Autoestrada A6 e a cerca de 30 minutos do Aeroporto de Badajoz, bem como próxima do centro de Borba, Estremoz, Vila Viçosa e do eixo estruturante de Évora (Património Mundial UNESCO). Trata-se de uma região em clara afirmação no turismo de natureza, enoturismo e projetos de hospitality de baixa densidade.

Este ativo apresenta particular adequação para promotores turísticos, operadores hoteleiros, investidores institucionais ou family offices que procurem desenvolver um projeto diferenciador no Alentejo, beneficiando já de enquadramento urbanístico favorável que contribui para a mitigação do risco de licenciamento. Segundo informação técnica do processo, o enquadramento poderá admitir soluções em tipologia de aparthotel com unidades autónomas em contexto turístico, sujeito naturalmente a projeto e licenciamento subsequente.

Nota estratégica adicional: Encontra-se disponível para aquisição, a aproximadamente 700 metros, um segundo prédio rústico com área semelhante e igualmente beneficiado por PIP aprovado para Empreendimento Turístico Isolado. A eventual aquisição conjunta poderá permitir uma abordagem integrada de maior escala territorial, particularmente interessante para promotores e investidores que privilegiem projetos com massa crítica.

Na Garcia dos Santos Properties, asseguramos um acompanhamento rigoroso, transparente e personalizado em todas as fases do processo, desde a análise técnica do ativo até à concretização do investimento.

Para acesso ao dossier completo, estudo urbanístico e imagens conceptuais do projeto, entre em contacto.

Nota: As imagens apresentadas são meramente ilustrativas e não têm caráter vinculativo, estando qualquer desenvolvimento sujeito a projeto e licenciamento.

Galeria do imóvel

Oportunidade de Investimento Turístico | 5,5 ha com PIP Aprovado | Borba, Alentejo
Oportunidade de Investimento Turístico | 5,5 ha com PIP Aprovado | Borba, Alentejo
Oportunidade de Investimento Turístico | 5,5 ha com PIP Aprovado | Borba, Alentejo
Oportunidade de Investimento Turístico | 5,5 ha com PIP Aprovado | Borba, Alentejo
Oportunidade de Investimento Turístico | 5,5 ha com PIP Aprovado | Borba, Alentejo
Oportunidade de Investimento Turístico | 5,5 ha com PIP Aprovado | Borba, Alentejo

Localização do imóvel

Évora, Borba, Borba (São Bartolomeu)

Referência do anúncio: SÒL_395. Última atualização: 23 fevereiro 2026.

Relatório de preços praticados nos últimos 8 meses

Évora, Borba, Borba (São Bartolomeu)

Simule um Crédito Habitação

Os dados apresentados são meramente indicativos. Condições gerais
Seguir
Partilhar
Garcia Dos Santos Properties
AMI 25582
Nome
Email
Contacto
Formato inválido
Agende uma visita
Referência do anúncio: SÒL_395.
Última atualização: 23 fevereiro 2026.
Contactar
Veja também
Anúncios na mesma zona
Courela
Évora, Vila Viçosa, Bencatel
16 000 €
EXCELENTE HERDADE RENDIMENTO MISTO SOBRO E GADO
Évora, Vendas Novas, Vendas Novas
6 400 000 €
Terreno Para Construção Venda em Estremoz (Santa Maria e Santo André),Estremoz
Évora, Estremoz, Estremoz (Santa Maria e Santo André)
368 900 €
Terreno Para Construção Venda em Malagueira e Horta das Figueiras,Évora
Évora, Évora, Malagueira e Horta das Figueiras
117 500 €
Lote de terreno urbano para moradia t4 com logradouro, garagem e possibilidade de piscina
Évora, Viana do Alentejo, Viana do Alentejo
36 500 €
Lote de terreno urbano para moradia t3 com logradouro, garagem e possibilidade de piscina
Évora, Viana do Alentejo, Viana do Alentejo
35 750 €
BOA HERDADE COM MULTIPLO RENDIMENTO
Évora, Vila Viçosa, Nossa Senhora da Conceição e São Bartolomeu
11 300 000 €
Lote de terreno urbano para moradia t5 com logradouro, garagem e possibilidade de piscina
Évora, Viana do Alentejo, Viana do Alentejo
37 250 €
Terreno Para Construção Venda em Canaviais,Évora
Évora, Évora, Canaviais
250 000 €
Terreno rustico com 4,625 hectares
Évora, Alandroal, Alandroal (Nossa Senhora da Conceição), São Brás dos Matos (Mina do Bugalho) e Juromenha (Nossa Senhora do Loreto)
41 150 €
Partilha o imóvel: Oportunidade de Investimento Turístico | 5,5 ha com PIP Aprovado | Borba, Alentejo
Partilha este imóvel nas tuas redes sociais ou envia diretamente para o email dos teus amigos.
Partilhar por email
Adicione uma nota ao imóvel!
Só você é que vê as notas que adiciona. Os imóveis com notas ficam nos favoritos para os poder consultar mais tarde.
Excluíste o anúncio:
Oportunidade de Investimento Turístico | 5,5 ha com PIP Aprovado | Borba, Alentejo