Pesquisar perto de mim
A aguardar a sua pesquisa
Voltar
Espaço comercial para venda em Lagoa
Espaço comercial para venda em Lagoa
Espaço comercial para venda em Lagoa
Espaço comercial para venda em Lagoa
Ver galeria (11)
Ver galeria (11)
Seguir
Partilhar

Espaço comercial para venda em Lagoa

Faro, Lagoa (Algarve), Lagoa e Carvoeiro Ver no mapa
139 000 €
1 Quartos
1 WC's
50m2
Área Útil: 50m2
Área Bruta: 91m2
Ano de Construção: 1997
Certificação Energética: B-
Estado: Usado

Descrição do anúncio

Espaço Comercial para Venda – Lagoa

Este espaço comercial bem mantido está idealmente localizado em Lagoa, junto às piscinas municipais, com a vantagem adicional de estacionamento gratuito junto à porta.

Com uma entrada ao nível da rua e uma ampla montra, o espaço beneficia de uma excelente visibilidade, forte potencial para sinalização e abundante luz natural.

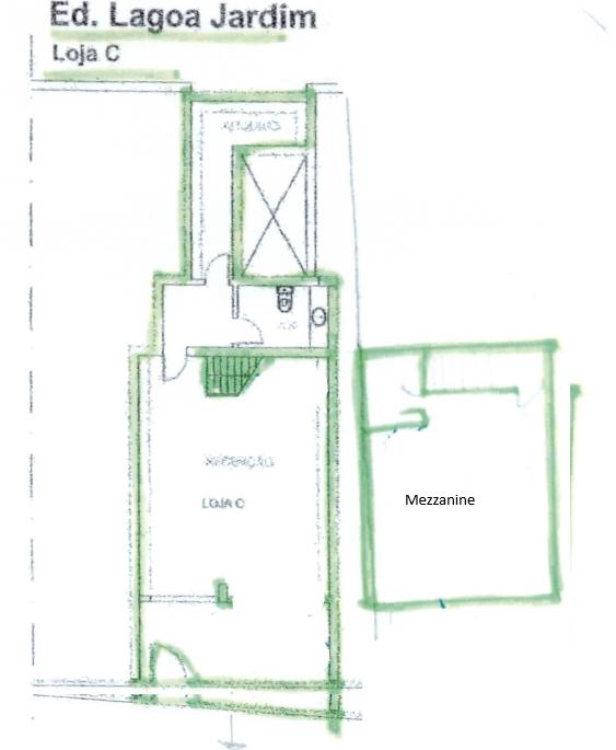
O piso térreo é composto por 57,78 m² de espaço aberto com armários embutidos numa parede, uma casa de banho e uma ampla arrecadação. Acima, o mezanino oferece uma área adicional em plano aberto, juntamente com uns arrumos de boas dimensões, totalizando 90,8 m².

Está equipado com ar condicionado reversível em todas as divisões e internet por fibra ótica.

O espaço encontra-se em excelentes condições e pronto para utilização imediata, sendo uma opção versátil adequada a diversos tipos de negócios, incluindo escritórios, comércio ou empresas de serviços.

Localizado numa zona conveniente e acessível de Lagoa, este espaço beneficia de comodidades nas proximidades, fácil acesso para clientes e entregas, e excelente visibilidade diária.

Destaques

- Área total: 90,8 m² distribuídos por dois pisos
- Ampla montra que proporciona iluminação natural
- Excelente estado de conservação e pronto a usar
- Ar condicionado e internet por fibra ótica
 

Características Gerais

  • Ar Condicionado
  • Garagem

Galeria do imóvel

Espaço comercial para venda em Lagoa
Espaço comercial para venda em Lagoa
Espaço comercial para venda em Lagoa
Espaço comercial para venda em Lagoa
Espaço comercial para venda em Lagoa
Espaço comercial para venda em Lagoa

Localização do imóvel

Faro, Lagoa (Algarve), Lagoa e Carvoeiro

Referência do anúncio: SPC07. Última atualização: 03 dezembro 2025.

Relatório de preços praticados nos últimos 8 meses

Faro, Lagoa (Algarve), Lagoa e Carvoeiro

Simule um Crédito Habitação

Os dados apresentados são meramente indicativos. Condições gerais
Seguir
Partilhar
Sampson Property - Sociedade de Mediação Imobiliária, Lda.
AMI 15430
351 ...
Chamada para a rede fixa nacional
Mostrar número
Nome
Email
Contacto
Formato inválido
Agende uma visita
Referência do anúncio: SPC07.
Última atualização: 03 dezembro 2025.
Contactar
Veja também
Anúncios na mesma zona
Restaurante pronto a funcionar, 40 lugares, em monte gordo
Faro, Vila Real de Santo António, Monte Gordo
265 000 €
Restaurante italiano, novo, em vila real de santo antónio
Faro, Vila Real de Santo António, Vila Real de Santo António
310 000 €
Restaurante bar querença loulé
Faro, Loulé, Salir
950 000 €
Restaurante guia para venda / negociável
Faro, Albufeira, Guia
400 000 €
Comércio Snack-Bar - Olhos de Água - Albufeira
Faro, Albufeira, Albufeira e Olhos de Água
395 000 €
1
Loja para recuperar em faro
Faro, Faro, Conceição e Estoi
500 000 €
Espaço comercial para venda em Lagoa
Faro, Lagoa (Algarve), Lagoa e Carvoeiro
139 000 €
1
1
1
Restaurante pronto a funcionar, 40 lugares, em monte gordo
Faro, Vila Real de Santo António, Monte Gordo
265 000 €
Building in cacela downtown operating as an hostel
Faro, Vila Real de Santo António, Vila Nova de Cacela
1 500 000 €
1
Restaurante zona histórica para venda, 2 grandes esplanadas
Faro, Vila Real de Santo António, Vila Real de Santo António
490 000 €
Partilha o imóvel: Espaço comercial para venda em Lagoa
Partilha este imóvel nas tuas redes sociais ou envia diretamente para o email dos teus amigos.
Partilhar por email
Adicione uma nota ao imóvel!
Só você é que vê as notas que adiciona. Os imóveis com notas ficam nos favoritos para os poder consultar mais tarde.
Excluíste o anúncio:
Espaço comercial para venda em Lagoa