Pesquisar perto de mim
A aguardar a sua pesquisa
Voltar
Apartamento T3 a 2 Minutos do Centro de Aveiro
Apartamento T3 a 2 Minutos do Centro de Aveiro
Apartamento T3 a 2 Minutos do Centro de Aveiro
Apartamento T3 a 2 Minutos do Centro de Aveiro
Ver galeria (12)
Ver galeria (12)
Seguir
Partilhar

Apartamento T3 a 2 Minutos do Centro de Aveiro

Aveiro, Aveiro, Aradas Ver no mapa
490 000 €
3 Quartos
3 WC's
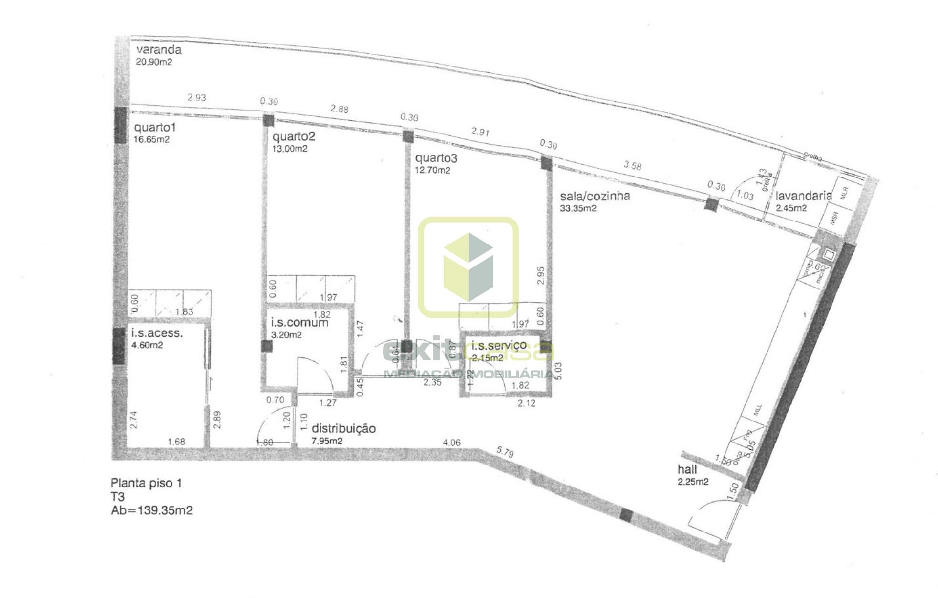
125m2
Área Útil: 125m2
Área Bruta: 193m2
Certificação Energética: A
Estado: Em Construção

Descrição do anúncio

Apartamento T3 a 2 Minutos do Centro de Aveiro – Moderno e Funcional

Apresentamos este Apartamento T3 a 2 minutos do Centro de Aveiro, ideal para quem procura viver com conforto, modernidade e proximidade a todas as comodidades da cidade.
Com um design contemporâneo e áreas bem distribuídas, este imóvel destaca-se pela sua zona social em open space e por uma varanda ampla que percorre todas as divisões, garantindo excelente luminosidade natural ao longo do dia.

Composição do Imóvel
- Sala e cozinha em open space, criando um ambiente moderno e acolhedor
- Lavandaria 
- WC de serviço
- Hall de quartos
- 2 quartos
- WC completo
- Suíte, proporcionando maior conforto e privacidade
- Varanda corrida em todas as divisões
- 2 lugares de garagem na cave, uma mais-valia perto do centro da cidade

Destaques do Imóvel
- Excelente exposição solar
- Layout funcional e moderno
- Ideal para habitação própria ou investimento imobiliário

Características da zona:
Aradas é uma das freguesias da cidade de Aveiro. Dista do Centro da Cidade aproximadamente três quilómetros e fazem parte da freguesia os lugares de Aradas, Verdemilho, Bonsucesso e Quinta do Picado.
Na sua área envolvente é possível encontrar uma oferta diversificada de restauração e lazer, bem como de escolas (Universidade de Aveiro, Escola 2º e 3º Ciclo de Aradas, Escola Pequeno Cidadão), Centro de Saúde de Aradas, espaços desportivos (Piscinas do Carocho e Futebol Clube do Bonsucesso), zonas comerciais (Centro Comercial Glicínias, Mercadona e Lidl), transportes públicos. Fica a 15min das Praias da Barra e Costa Nova e a 10min da Zona Industrial da Taboeira.

O imóvel encontra-se a 11km da praia e 83km do aeroporto.

Viva com qualidade, conforto e tudo à porta de casa, no coração de Aveiro.
Contacte a Exitcasa e agende a sua visita a este Apartamento T3 a 2 minutos do Centro de Aveiro.

Ref 5450 - Veja mais imóveis em exitcasa. pt

Tratamos da aprovação do seu crédito!
Intermediário de crédito vinculado nº 0002066 licenciado pelo Banco de Portugal.

Este anúncio foi publicado por rotina informática, todos os dados e informações carecem de confirmação junto da Exitcasa.

Características Gerais

  • Ar Condicionado
  • Cozinha Equipada
  • Garagem
  • Jardim
  • Estacionamento
  • Guarda Roupa
  • Varandas

Galeria do imóvel

Apartamento T3 a 2 Minutos do Centro de Aveiro
Apartamento T3 a 2 Minutos do Centro de Aveiro
Apartamento T3 a 2 Minutos do Centro de Aveiro
Apartamento T3 a 2 Minutos do Centro de Aveiro
Apartamento T3 a 2 Minutos do Centro de Aveiro
Apartamento T3 a 2 Minutos do Centro de Aveiro

Localização do imóvel

Aveiro, Aveiro, Aradas

Referência do anúncio: 5450. Última atualização: 09 fevereiro 2026.

Relatório de preços praticados nos últimos 8 meses

Aveiro, Aveiro, Aradas

Simule um Crédito Habitação

Os dados apresentados são meramente indicativos. Condições gerais
Seguir
Partilhar
Exitcasa - Aveiro
AMI 5752
234 ...
Chamada para a rede fixa nacional
Mostrar número
Nome
Email
Contacto
Formato inválido
Agende uma visita
Referência do anúncio: 5450.
Última atualização: 09 fevereiro 2026.
Contactar
Veja também
Anúncios na mesma zona
Apartamento T3 Venda em Espinho,Espinho
Aveiro, Espinho, Espinho
780 000 €
3
3
1
Apartamento T1 Venda em Santa Maria de Lamas,Santa Maria da Feira
Aveiro, Santa Maria da Feira, Santa Maria de Lamas
162 500 €
1
1
Apartamento T3 Venda em Oliveira de Azeméis, Santiago de Riba-Ul, Ul, Macinhata da Seixa e Madail,Oliveira de Azeméis
Aveiro, Oliveira de Azeméis, São Roque
190 000 €
3
1
1
Apartamento T2 Venda em São Roque,Oliveira de Azeméis
Aveiro, Oliveira de Azeméis, São Roque
190 000 €
2
1
T2 contemporâneo com duas varandas e estacionamento: o equilíbrio perfeito entre design e funcionalidade
Aveiro, Aveiro, Esgueira
411 600 €
2
2
1
Apartamento T2 Venda em Gafanha da Nazaré,Ílhavo
Aveiro, Ílhavo, Gafanha da Nazaré
245 000 €
2
1
Apartamento T1 Venda em Glória e Vera Cruz,Aveiro
Aveiro, Aveiro, Glória e Vera Cruz
195 000 €
1
1
Apartamento T3 Venda em Espinho,Espinho
Aveiro, Espinho, Espinho
520 000 €
3
3
1
T2 exclusivo com varanda e estacionamento: onde o design moderno se encontra com o conforto
Aveiro, Aveiro, Esgueira
411 600 €
2
2
1
Apartamento T3 DUPLEX Venda em Glória e Vera Cruz,Aveiro
Aveiro, Aveiro, Glória e Vera Cruz
420 000 €
3
4
Partilha o imóvel: Apartamento T3 a 2 Minutos do Centro de Aveiro
Partilha este imóvel nas tuas redes sociais ou envia diretamente para o email dos teus amigos.
Partilhar por email
Adicione uma nota ao imóvel!
Só você é que vê as notas que adiciona. Os imóveis com notas ficam nos favoritos para os poder consultar mais tarde.
Excluíste o anúncio:
Apartamento T3 a 2 Minutos do Centro de Aveiro