Pesquisar perto de mim
A aguardar a sua pesquisa
Voltar
Apartamento T2 em Aveiro
Apartamento T2 em Aveiro
Apartamento T2 em Aveiro
Apartamento T2 em Aveiro
Ver galeria (18)
Ver galeria (18)
Seguir
Partilhar

Apartamento T2 em Aveiro

Aveiro, Aveiro, Esgueira Ver no mapa
360 000 €
2 Quartos
3 WC's
94m2
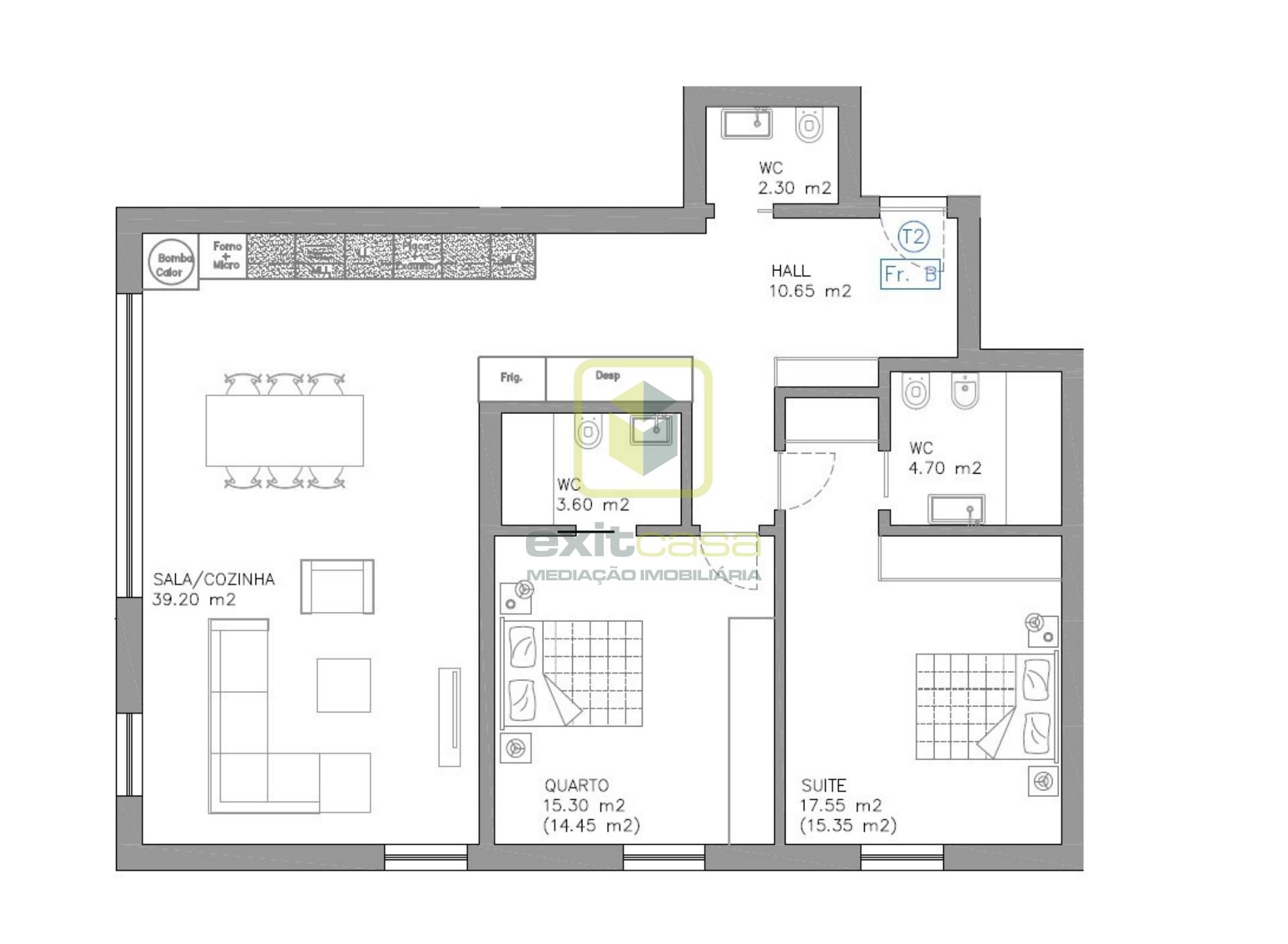
Área Útil: 94m2
Área Bruta: 135m2
Certificação Energética: B
Estado: Em Construção

Descrição do anúncio

Apartamento T2 em Empreendimento Novo em Aveiro

Descubra este Apartamento T2 em Aveiro, inserido num empreendimento novo e moderno, pensado para quem valoriza conforto, eficiência energética e qualidade de vida. Um imóvel que alia arquitetura contemporânea, áreas bem distribuídas e soluções tecnológicas ajustadas às exigências atuais.
A zona social está organizada em open space, integrando sala ampla e cozinha equipada, criando um espaço luminoso e acolhedor, perfeito para convívio e lazer. 

Composição do Imóvel
- Sala e cozinha equipada em open space
- WC de serviço
- 2 suites
- Lugar de garagem

Sobre o Empreendimento
- Empreendimento novo com 16 frações
- Tipologias T1 a T3 Duplex
- Ar condicionado
- Bomba de calor
- Pré-instalação de painéis solares
- Pré-instalação para carregamento de viaturas elétricas
- Construção moderna com foco em eficiência energética e sustentabilidade

Localização – Aveiro
Situado numa zona em crescimento e valorização, este apartamento beneficia de:
- Bons acessos às principais vias
- Proximidade a comércio, serviços e escolas
- Fácil ligação ao Centro de Aveiro
- Envolvente tranquila e urbana

Características da zona:
Esgueira é uma freguesia do Concelho de Aveiro, constituída por vários lugares: Senhor do Álamo/Cruzeiro, Bairro do Vouga, Agras do Norte, Cabo Luís, Bela Vista, Taboeira, Olho D'Água, Quinta do Simão, Mataduços e Paço.
Na sua área envolvente é possível encontrar uma oferta diversificada de restauração e lazer, bem como de escolas (Escola Secundária Jaime Magalhães Lima, Escola 2º e 3º Ciclo Aires Barbosa, Colégio Português), espaços desportivos (Parque Desportivo de Taboeira, Polidesportivo de Mataduços e da Bela Vista e Estádio Municipal de Aveiro), zonas comerciais (Pingo Doce, Mercadona, Aveiro Center e Retail Park), transportes públicos (Terminal Rodoviário e Ferroviário de Aveiro). Fica a 15min das Praias da Barra e Costa Nova e a 5min do Centro da Cidade.

O imóvel encontra-se a 14km da praia e 80km do aeroporto.

Exitcasa – Especialistas em Imobiliário em Aveiro
Uma oportunidade única de adquirir um Apartamento T2 novo em Aveiro, Contacte a Exitcasa e marque já a sua visita.

Ref 5434-01 - Veja mais imóveis em exitcasa. pt

Tratamos da aprovação do seu crédito!
Intermediário de crédito vinculado nº 0002066 licenciado pelo Banco de Portugal.

Obs.: Fotos referentes a várias frações, ainda em fase de acabamentos.

Este anúncio foi publicado por rotina informática, todos os dados e informações carecem de confirmação junto da Exitcasa.

Características Gerais

  • Ar Condicionado
  • Cozinha Equipada
  • Garagem
  • Estacionamento
  • Guarda Roupa

Galeria do imóvel

Apartamento T2 em Aveiro
Apartamento T2 em Aveiro
Apartamento T2 em Aveiro
Apartamento T2 em Aveiro
Apartamento T2 em Aveiro
Apartamento T2 em Aveiro

Localização do imóvel

Aveiro, Aveiro, Esgueira

Referência do anúncio: 5434-01. Última atualização: 23 abril 2026.

Relatório de preços praticados nos últimos 8 meses

Aveiro, Aveiro, Esgueira

Simule um Crédito Habitação

Os dados apresentados são meramente indicativos. Condições gerais
Seguir
Partilhar
Exitcasa - Aveiro
AMI 5752
234 ...
Chamada para a rede fixa nacional
Mostrar número
Nome
Email
Contacto
Formato inválido
Agende uma visita
Referência do anúncio: 5434-01.
Última atualização: 23 abril 2026.
Contactar
Veja também
Anúncios na mesma zona
Apartamento T3 Venda em Aradas,Aveiro
Aveiro, Aveiro, Aradas
415 245 €
3
3
Apartamento T3 Venda em Oliveira de Azeméis, Santiago de Riba-Ul, Ul, Macinhata da Seixa e Madail,Oliveira de Azeméis
Aveiro, Oliveira de Azeméis, Oliveira de Azeméis, Santiago de Riba-Ul, Ul, Macinhata da Seixa e Madail
300 000 €
3
1
Apartamento T3 no centro de Fiães, Santa Maria da Feira, Renovado
Aveiro, Santa Maria da Feira, Fiães
288 000 €
3
2
1
Apartamento T3 a 2 Minutos do Centro de Aveiro
Aveiro, Aveiro, Aradas
490 000 €
3
3
1
Apartamento T2 Venda em Glória e Vera Cruz,Aveiro
Aveiro, Aveiro, Glória e Vera Cruz
270 000 €
2
2
Apartamento T2 Venda em Oliveira de Azeméis, Santiago de Riba-Ul, Ul, Macinhata da Seixa e Madail,Oliveira de Azeméis
Aveiro, Oliveira de Azeméis, Oliveira de Azeméis, Santiago de Riba-Ul, Ul, Macinhata da Seixa e Madail
250 000 €
2
1
Apartamento T4 em Aveiro
Aveiro, Aveiro, Glória e Vera Cruz
840 000 €
4
3
Apartamento T0 Venda em Espinho,Espinho
Aveiro, Espinho, Espinho
225 000 €
1
1
Apartamento T2 Aveiro, Barrocas
Aveiro, Aveiro, Glória e Vera Cruz
441 000 €
2
2
Apartamento T3 Venda em Aradas,Aveiro
Aveiro, Aveiro, Aradas
517 125 €
3
3
Partilha o imóvel: Apartamento T2 em Aveiro
Partilha este imóvel nas tuas redes sociais ou envia diretamente para o email dos teus amigos.
Partilhar por email
Adicione uma nota ao imóvel!
Só você é que vê as notas que adiciona. Os imóveis com notas ficam nos favoritos para os poder consultar mais tarde.
Excluíste o anúncio:
Apartamento T2 em Aveiro