Pesquisar perto de mim
A aguardar a sua pesquisa
Voltar
Apartamento T1 Venda em São Félix da Marinha,Vila Nova de Gaia
Apartamento T1 Venda em São Félix da Marinha,Vila Nova de Gaia
Apartamento T1 Venda em São Félix da Marinha,Vila Nova de Gaia
Apartamento T1 Venda em São Félix da Marinha,Vila Nova de Gaia
Ver galeria (4)
Ver galeria (4)
Seguir
Partilhar

Apartamento T1 Venda em São Félix da Marinha,Vila Nova de Gaia

Porto, Vila Nova de Gaia, São Félix da Marinha Ver no mapa
230 000 €
1 Quartos
2 WC's
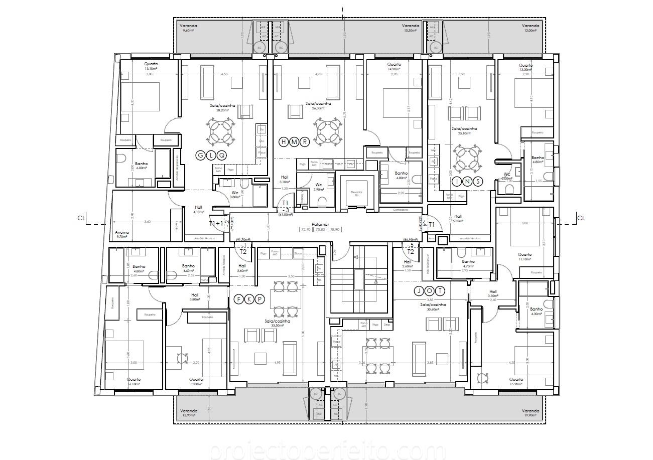
62m2
Área Útil: 62m2
Área Bruta: 90m2
Ano de Construção: 2027
Certificação Energética: A
Estado: Novo

Descrição do anúncio

Apartamento T1 com varanda de 12 m2 e lugar de garagem para 1 carro para venda em São Félix da Marinha, Vila Nova de Gaia.

Inserido num novo empreendimento, composto por 18 fracções de tipologias T1 a T3, que combina a tranquilidade de uma zona residencial com a proximidade das praias e a facilidade de acesso ao Porto, Gaia e Espinho. Localizado a poucos minutos das principais vias rodoviárias, este projeto é a escolha ideal para quem procura viver com qualidade, conforto e mobilidade, adaptando-se a diferentes estilos de vida, seja para habitação própria, investimento ou até como refúgio de fim de semana junto ao mar.

MAPA DE ACABAMENTOS:

GERAL ESTRUTURA
Estrutura totalmente em betão armado (muros, pilares vigas e lajes)

FACHADAS E CAIXILHARIA
Fachada em sistema ETICS (capoto) 8 cm, sobre reboco hidrófugo no revestimento e regularização de parede em alvenaria de bloco de betão leve/ térmico

Caixilharia:
– Alumínio com corte térmico - Marca CORTIZO Serie COR70 CE e COR-4900 ou equivalente. Com vidro Duplo 6mm Guardian Sun + caixa de ar 16mm + 5mm incolor, ou equivalente, com fator solar de 0,42, incluindo preenchimento da caixa de ar do vidro com gás árgon
- Proteção solar em persiana de réguas opacas de cor escura pelo exterior em todos os vãos das frações, incluindo claraboias dos recuados.
- Grelhas exteriores em alumínio - cor da caixilharia
- Guardas em vidro: Perfil alumínio BL 20 vidro laminado incolor 882

EQUIPAMANTO TÉCNICO
Ar condicionado tipo Split – Unidades Interiores e exteriores
Instalação de sistema de aquecimento de água com bomba de calor

CARPINTARIAS
Carpintaria interior em MDF lacado à cor branco, incluindo portas (todas de abrir) na altura total do pé direito, guarnições e rodapés
Roupeiros de abrir ou correr em MDF lacado a branco, com interior em melamina linho
Móvel de instalação sanitária em termolaminado com lavatório de pousar

PAVIMENTOS
Isolamento térmico/acústico a ruídos de percussão de pavimentos tipo "Danosa impactodan 5"
Quartos, corredores, sala e cozinha – Vinílico
Instalações sanitárias - Revestimento cerâmico RECER "60X60" ou equivalente
Varandas - Pavimento hidráulico com cerâmico RECER "60X60" ou equivalente

PAREDES INTERIORES
Instalações sanitárias - Revestimento cerâmico RECER "120X60"
Quartos, sala e corredores - Gesso cartonado com placa dupla em cada um dos lados, com estrutura simples ou dupla e isolamento de 6 cm (lã de rocha, pintado à cor branco,
incluindo revestimento pelo interior das paredes exteriores, o qual, rematando diretamente com a caixilharia de alumínio assegura um comportamento térmico mais eficiente (*).

TETOS INTERIORES
Instalações sanitárias e cozinha: Gesso cartonado hidrófugo com isolamento de 6 cm (lã de rocha), pintado à cor branco
Quartos, sala e corredores: Gesso cartonado com isolamento de 6 cm (lã de rocha), pintado à cor branco

PAREDES INTERIORES ENTRE FRAÇÕES
Parede em bloco isolsónico + estrutura metálica + lã de rocha 6 cm + placa de gesso cartonado, pintado à cor branco

VARANDAS E COBERTURAS
Impermeabilização com telas asfálticas 4kg + 3kg
Isolamento térmico 8 cm (Cobertura)
Proteção com manta geotêxtil e camada de godo lavado (cobertura)

Terraços e Varandas – Pavimento hidráulico em cerâmico ou lajetas

INSTALAÇÕES SANITÁRIAS - EQUIPAMENTOS

Sanitários suspensos " Valadares TWO"
Lavatório "Valadares AVIZ 60"
Misturadoras IMEX
Base de duche "DOCCIA ANNA GRAFITO" (dimensões conforme projeto)

COZINHA

Armários em termolaminado
Tampo em SILESTONE (Grupo 1) ou granito
Eletrodomésticos "TEKA" ou equivalente (Placa, Forno, Micro-ondas, Máquina de lavar loiça e Frigorifico Combinado)
- Placa vitrocerâmica "TEKA TZ 6415" ou equivalente
- Forno multifunções "HSB635"
- Frigorífico combinado "TEKA RBF43330 FI EU No frost" ou equivalente
- Micro-ondas "TEKA MS 620 BIH" ou equivalente
- Máquina de lavar loiça "TEKA DFI 46700" ou equivalente
- Exaustor "TEKA TL9310" ou equivalente
- Pio quadrado em inox "TEKA BE 50.40 PLUS" ou equivalente

ELECTRICIDADE E TELECOMUNICAÇÕES
Quadro ITED "Hager" ou equivalente
Aparelhagem elétrica da marca Efapel Quadro 45 ou equivalente
Iluminação através de projetores encastrados e fita LED, conforme projeto, com lâmpada LED GU10 ou equivalente
Sistema de videoporteiro
Fibra ótica

NOTA: A Promotora reserva-se no direito de fazer alterações, sem aviso prévio, ao presente mapa de acabamentos, desde que os materiais substitutos garantam uma qualidade equivalente à daqueles que aqui estão contemplados.
Considerado implementação de parâmetros para despoletar a obtenção de classificação energética A+
(*) Este método construtivo implica um acréscimo na espessura da parede exterior e consequentemente uma redução em aproximadamente 10cm na dimensão do compartimento correspondente, pelo interior.

Entre em contacto para mais informações acerca deste projecto.

Características Gerais

  • Ar Condicionado
  • Cozinha Equipada
  • Garagem
  • Estacionamento
  • Guarda Roupa
  • Varandas

Galeria do imóvel

Apartamento T1 Venda em São Félix da Marinha,Vila Nova de Gaia
Apartamento T1 Venda em São Félix da Marinha,Vila Nova de Gaia
Apartamento T1 Venda em São Félix da Marinha,Vila Nova de Gaia
Apartamento T1 Venda em São Félix da Marinha,Vila Nova de Gaia

Localização do imóvel

Porto, Vila Nova de Gaia, São Félix da Marinha

Referência do anúncio: 4274-I. Última atualização: 21 outubro 2025.

Relatório de preços praticados nos últimos 8 meses

Porto, Vila Nova de Gaia, São Félix da Marinha

Simule um Crédito Habitação

Os dados apresentados são meramente indicativos. Condições gerais
Seguir
Partilhar
Projecto Perfeito - Espinho
AMI 8481
220 ...
Chamada para a rede fixa nacional
Mostrar número
Nome
Email
Contacto
Formato inválido
Agende uma visita
Referência do anúncio: 4274-I.
Última atualização: 21 outubro 2025.
Contactar
Veja também
Anúncios na mesma zona
Apartamento T2 Venda em Campanhã,Porto
Porto, Porto, Campanhã
270 000 €
2
1
1
Apartamento T2 Venda em Campanhã,Porto
Porto, Porto, Campanhã
265 000 €
2
1
1
Venda Apartamento T2 Porto
Porto, Porto, Campanhã
400 600 €
2
3
Apartamento T2 Venda em Campanhã,Porto
Porto, Porto, Campanhã
290 000 €
2
1
1
Apartamento T2 Venda em Campanhã,Porto
Porto, Porto, Campanhã
280 000 €
2
1
1
Apartamento T3 novo a escassos metros da praia de Matosinhos!
Porto, Matosinhos, Matosinhos e Leça da Palmeira
1 000 000 €
3
3
Venda Apartamento T2 Porto
Porto, Porto, Campanhã
388 200 €
2
3
Venda Apartamento T2 Porto
Porto, Porto, Campanhã
355 000 €
2
3
Apartamento T2 Venda em Campanhã,Porto
Porto, Porto, Campanhã
285 000 €
2
1
1
Apartamento T1 Venda em Campanhã,Porto
Porto, Porto, Campanhã
225 000 €
1
1
1
Partilha o imóvel: Apartamento T1 Venda em São Félix da Marinha,Vila Nova de Gaia
Partilha este imóvel nas tuas redes sociais ou envia diretamente para o email dos teus amigos.
Partilhar por email
Adicione uma nota ao imóvel!
Só você é que vê as notas que adiciona. Os imóveis com notas ficam nos favoritos para os poder consultar mais tarde.
Excluíste o anúncio:
Apartamento T1 Venda em São Félix da Marinha,Vila Nova de Gaia