Pesquisar perto de mim
A aguardar a sua pesquisa
Voltar
Apartamento T2 Venda em Campanhã,Porto
Apartamento T2 Venda em Campanhã,Porto
Apartamento T2 Venda em Campanhã,Porto
Apartamento T2 Venda em Campanhã,Porto
Ver galeria (6)
Ver galeria (6)
Seguir
Partilhar

Apartamento T2 Venda em Campanhã,Porto

Porto, Porto, Campanhã Ver no mapa
290 000 €
2 Quartos
1 WC's
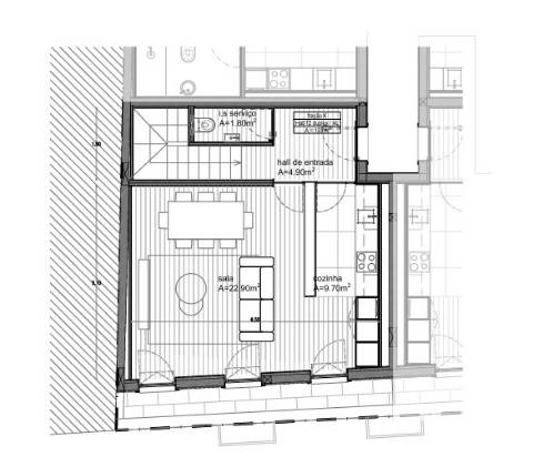
69m2
Área Útil: 69m2
Área Bruta: 94m2
Ano de Construção: 2026
Certificação Energética: A
Estado: Novo

Descrição do anúncio

Apartamento T2 com varanda de 12m2. lugar de garagem para 1 carro, para venda na mais recente proposta residencial em Campanhã, cidade do Porto.

O condomínio residencial, é um novo projeto habitacional em Campanhã, próximo do Parque Oriental e da futura linha de metro (Estádio do Dragão – Gondomar).

Localiza-se numa zona emergente do Porto, com excelentes acessibilidades viárias (A43 / Circunvalação) e por transporte público (Metro e STCP – linha 400).

O condomínio residencial é constituído por 3 edifícios interligados, com 18 apartamentos de tipologias T0 a T2 e uma cave comum para estacionamento.
À semelhança do lado ocidental da cidade do Porto, a zona oriental é também provida de um grande parque ao longo das margens do Rio Tinto.
O Parque Oriental desenvolve-se como um parque linear desde o Freixo até Pego Negro, com uma excelente componente estética e paisagística que garante o usufruto de um Rio Tinto despoluído e saudável.

MAPA DE ACABAMENTOS

REVESTIMENTOS
Zonas secas: soalho flutuante Swiss Krono ou equivalente
Zonas húmidas: cerâmico 60x60PAVIMENTOS
Zonas secas: gesso cartonado pintado
Zonas húmidas: cerâmica 60x60PAREDES
Zonas secas: gesso cartonado pintado
Zonas húmidas: placas de gesso cartonado
Cozinha: aglomerado de mármore compacto no tampo e móveis.
WC: cerâmica 10x10TECTOS
Zonas secas: tetos falsos em gesso cartonado
Zonas húmidas: tetos falsos em gesso cartonado hidrófugoISOLAMENTOS ENTRE FRAÇÕES
Paredes entre habitações: com bloco térmico
Placas de gesso cartonado e isolamento térmicoCARPINTARIAS
Portas e armários: MDF lacado
Cozinha: MDF lacadoINSTALAÇÕES SANITÁRIAS
Louça sanitária suspensa Sanindusa ou equivalente
Lavatório modelo Nevisda, Sanindusa
Base de duche em resina tipo KO, Valadares
Espelho
Torneiras misturadoras monocomando Ofo ou equivalenteEQUIPAMENTOS DIVERSOS
Portas de segurança Portas ou equivalente
Canalização de alumínio anodizado ou vidro duplo e cota térmica
Eletrodomésticos de cozinha (fogão, forno, frigorífico e máquina de lavar loiça)
Projetores de LED
Videoconsola
Aquecimento elétrico
Lavar louça no conceito da cozinha
Elevadores Ocona ou equivalente
Pré-instalação de ar condicionado
Observações:
A listagem apresentada tem natureza indicativa, pode sofrer modificações decorrentes de alterações de projeto, determinadas pelo promotor, pela indisponibilidade de fornecimento ou termo de produção. As eventuais substituições serão feitas respeitando os mesmos padrões de qualidade
As eventuais substituições serão efetuadas respeitando os padrões de qualidade idênticos aos previstos e em concordância com o cliente.
Imagens meramente ilustrativas.
Entre em contacto para mais informações e agende já a sua visita a este imóvel.

Características Gerais

  • Cozinha Equipada
  • Garagem
  • Estacionamento
  • Guarda Roupa
  • Varandas

Galeria do imóvel

Apartamento T2 Venda em Campanhã,Porto
Apartamento T2 Venda em Campanhã,Porto
Apartamento T2 Venda em Campanhã,Porto
Apartamento T2 Venda em Campanhã,Porto
Apartamento T2 Venda em Campanhã,Porto
Apartamento T2 Venda em Campanhã,Porto

Localização do imóvel

Porto, Porto, Campanhã

Referência do anúncio: 4234-B3.1. Última atualização: 10 setembro 2025.

Relatório de preços praticados nos últimos 8 meses

Porto, Porto, Campanhã

Simule um Crédito Habitação

Os dados apresentados são meramente indicativos. Condições gerais
Seguir
Partilhar
Projecto Perfeito - Espinho
AMI 8481
220 ...
Chamada para a rede fixa nacional
Mostrar número
Nome
Email
Contacto
Formato inválido
Agende uma visita
Referência do anúncio: 4234-B3.1.
Última atualização: 10 setembro 2025.
Contactar
Veja também
Anúncios na mesma zona
Apartamento T4 Venda em Santa Marinha e São Pedro da Afurada,Vila Nova de Gaia
Porto, Vila Nova de Gaia, Santa Marinha e São Pedro da Afurada
760 000 €
4
3
1
Apartamento T4 Excecional no Porto - Totalmente Renovado e Pronto a Habitar
Porto, Porto, Cedofeita, Santo Ildefonso, Sé, Miragaia, São Nicolau e Vitória
550 000 €
4
3
Apartamento T2 Duplex com Varanda na Baixa do Porto
Porto, Porto, Cedofeita, Santo Ildefonso, Sé, Miragaia, São Nicolau e Vitória
432 000 €
2
3
1
Apartamento T4 DUPLEX Venda em Santa Marinha e São Pedro da Afurada,Vila Nova de Gaia
Porto, Vila Nova de Gaia, Santa Marinha e São Pedro da Afurada
790 000 €
4
4
1
CPM20402 Apt T5 Duplex com Box 298.500€, perto metro Varanda, próximo ao Estádio do Dragão, Porto
Porto, Porto, Campanhã
298 500 €
5
1
Apartamento T3 Venda em Freamunde,Paços de Ferreira
Porto, Paços de Ferreira, Freamunde
320 000 €
3
1
Apartamento T0 em Paranhos
Porto, Maia, Pedrouços
169 000 €
1
1
Apartamento T1 Venda em Canidelo,Vila Nova de Gaia
Porto, Vila Nova de Gaia, Canidelo
246 400 €
1
1
Apartamento T3 de Luxo no Coração da Zona Romântica do Porto - Ao Palácio Cristal
Porto, Porto, Cedofeita, Santo Ildefonso, Sé, Miragaia, São Nicolau e Vitória
995 000 €
3
4
Apartamento T0 Remodelado com licença AL – Pronto a Rentabilizar no Centro do Porto
Porto, Porto, Cedofeita, Santo Ildefonso, Sé, Miragaia, São Nicolau e Vitória
245 000 €
1
1
Partilha o imóvel: Apartamento T2 Venda em Campanhã,Porto
Partilha este imóvel nas tuas redes sociais ou envia diretamente para o email dos teus amigos.
Partilhar por email
Adicione uma nota ao imóvel!
Só você é que vê as notas que adiciona. Os imóveis com notas ficam nos favoritos para os poder consultar mais tarde.
Excluíste o anúncio:
Apartamento T2 Venda em Campanhã,Porto