Pesquisar perto de mim
A aguardar a sua pesquisa
Voltar
Apartamento T1 no empreendimento Oporto Metropolitano
Apartamento T1 no empreendimento Oporto Metropolitano
Apartamento T1 no empreendimento Oporto Metropolitano
Apartamento T1 no empreendimento Oporto Metropolitano
Ver galeria (22)
Ver galeria (22)
Seguir
Partilhar

Apartamento T1 no empreendimento Oporto Metropolitano

Porto, Matosinhos, Matosinhos e Leça da Palmeira Ver no mapa
243 000 €
1 Quartos
1 WC's
58m2
Área Útil: 58m2
Área Bruta: 82m2
Ano de Construção: 2024
Certificação Energética: Isento
Estado: Em Construção

Descrição do anúncio

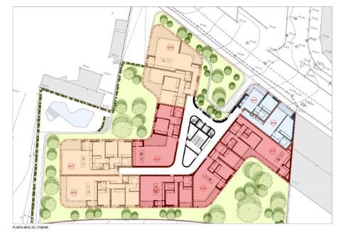
EMPREENDIMENTO OPORTO METROPOLITANO  - MATOSINHOS - PORTO É o mais recente Empreendimento na cidade de Matosinhos/Porto direcionado para o cidadão mais actual que pretende usufruir dos serviços e comodidades da vida cosmopolita da nossa cidade.

Os apartamentos T0 e T1, tem de área útil entre 41m2 e 61m2, mais as áreas de varandas e floreiras, com exposição a sul.
Este apartamento T1 encontra-se no terceiro piso e tem 57.9m2.
Sendo o empreendimento Oporto Metropolitano - Serviced Apartments gerido por esta entidade, assegura a gestão do seu investimento, sem ter de se preocupar com nada. 
Tem um rendimento garantido de 5% nos 2 primeiros anos e previsão de crescimento nos anos seguintes, sendo expectado a duplicação do investimento ao final de 8 anos, se contabilizadas as rendas e a mais-valia de uma eventual venda.

O empreendimento, é constituído por 50 "Serviced Apartments", (35-T0 e 15-T1) que usufruem de vastos serviços de referência para habitação com acesso aos serviços de alojamento, tal como:
A) Housekeeping diário de limpeza simples, cozinha, banhos e recolha de lixos; 
B) Housekeeping semanal de limpeza geral com mudança de roupa; Roupas de cama e banho, gel de banho e mãos, detergentes de louça e roupa. Luz, água, TV e internet;

Com opção de estacionamento em garagem, por arrendamento (80€/mês), Opção de Pequeno Almoço e Opção de Room Service.
Todas as frações dispõem de apoio a uma cadeia de Restaurantes e mercearias bb Gourmet,  grupo de renome na cidade, que inclui entre outros serviços o acesso a Refeições pré-cozinhadas, Padaria, Pastelaria, Chocolataria, Confeitaria, Gelateria, Garrafeira e Florista.

O Empreendimento Oporto Metropolitano tem origem no traço do renomado Arquiteto Pedro Guimarães, autor do Impactante Edifício da Vodafone na Avenida da Boavista, do belíssimo Palácio Da Justiça de Gouveia, e sendo construção a cargo do Construtor do WOW, espaço icónico das caves de vinho do Porto em Vila Nova de Gaia.

Com acabamentos de alta qualidade, áreas generosas, pavimento em soalho multicamada, floreiras e varandas em todas as frações, cozinha equipada, sistema de filtros naturais para filtragem do ar, especial cuidado com a proteção acústica, painéis fotovoltaicos com um desenho marcante e rodeado de jardins envolventes será um edifício de destaque e referência no futuro. 

Localizado próximo às principais vias de acesso da cidade do Porto, a apenas 10 minutos do Aeroporto Internacional Francisco Sá Carneiro e a 5 minutos do Parque da Cidade e das praias de Matosinhos, Nevogilde e Foz do Douro.

Nos apartamentos "para viver" existem Packs mobília, cujo valor entre T0 e T1 se diferencia: 

T0 - 20.000,00€
T1 - 25.000,00€
  Sendo composto por: cama, duas mesas de cabeceira, mesa secretária, cadeira para mesa secretária, mesa de refeições, duas cadeiras de refeições, um tapete, um sofá cama, um móvel para TV, uma TV, mesa de refeições exterior, duas cadeiras refeições exterior, uma poltrona, cortinado opaco, cortinado transparente, acessórios e utensílios diversos de cozinha. Entre em contacto conosco! 
A nossa agência conta com consultores imobiliários experientes que estão ao seu lado para que, juntos, possam encontrar o que melhor satisfaz as suas expectativas e aspirações. 
Temos ainda uma equipa de BackOffice que lhe dará o apoio e aconselhamento necessário em todo o processo de compra/venda/arrendamento, entre outros, passando por acompanhar e elucidar qualquer dúvida no que respeita à vertente financeira, legal, logística ou contratual. 
Sabemos que no mundo do negócio onde as mudanças, quer de mercado, quer financeiras, são uma constante é crucial o acompanhamento personalizado em cada etapa e por isso tentamos sempre alertar os nossos clientes para que, de forma consciente, tomem as melhores decisões. 
Para a Campus Place, acompanhamento é regra! 
Visite-nos e descubra por si, a dedicação que colocamos em cada um dos nossos clientes. 
Somos uma agência imobiliária que não se preocupa apenas em satisfazer as necessidades dos nossos clientes, queremos EXCEDÊ-LAS, para que esta marca seja o nosso melhor marketing.

Características Gerais

  • Cozinha Equipada
  • Mobilado
  • Garagem
  • Varandas

Galeria do imóvel

Apartamento T1 no empreendimento Oporto Metropolitano
Apartamento T1 no empreendimento Oporto Metropolitano
Apartamento T1 no empreendimento Oporto Metropolitano
Apartamento T1 no empreendimento Oporto Metropolitano
Apartamento T1 no empreendimento Oporto Metropolitano
Apartamento T1 no empreendimento Oporto Metropolitano

Localização do imóvel

Porto, Matosinhos, Matosinhos e Leça da Palmeira

Referência do anúncio: CP3328. Última atualização: 12 julho 2024.

Relatório de preços praticados nos últimos 8 meses

Porto, Matosinhos, Matosinhos e Leça da Palmeira

Simule um Crédito Habitação

Os dados apresentados são meramente indicativos. Condições gerais
Seguir
Partilhar
Campus Place Lda
AMI 14411
924 ...
Chamada para a rede fixa nacional
Mostrar número
Nome
Email
Contacto
Formato inválido
Agende uma visita
Referência do anúncio: CP3328.
Última atualização: 12 julho 2024.
Contactar
Veja também
Anúncios na mesma zona
Apartamento T2 Venda em São Félix da Marinha,Vila Nova de Gaia
Porto, Vila Nova de Gaia, São Félix da Marinha
495 000 €
2
3
1
Apartamento T3 no centro de Matosinhos perto da Câmara
Porto, Matosinhos, Matosinhos e Leça da Palmeira
525 000 €
3
3
1
Apartamento T2 Venda em Mafamude e Vilar do Paraíso,Vila Nova de Gaia
Porto, Vila Nova de Gaia, Mafamude e Vilar do Paraíso
260 000 €
2
2
Apartamento T3 à Venda – Porto
Porto, Porto, Cedofeita, Santo Ildefonso, Sé, Miragaia, São Nicolau e Vitória
559 000 €
3
3
Apartamento T3 último piso com terraço, situado em Montgeron na Póvoa de Varzim
Porto, Póvoa de Varzim, Póvoa de Varzim, Beiriz e Argivai
800 000 €
3
1
1
Apartamento T4 Duplex à Venda – Porto
Porto, Porto, Cedofeita, Santo Ildefonso, Sé, Miragaia, São Nicolau e Vitória
929 000 €
4
4
Apartamento T3 Venda em Rio Tinto,Gondomar
Porto, Gondomar, Rio Tinto
207 500 €
3
2
1
Apartamento T2 à Venda – Porto
Porto, Porto, Cedofeita, Santo Ildefonso, Sé, Miragaia, São Nicolau e Vitória
465 000 €
2
3
Apartamento T2 Venda em São Félix da Marinha,Vila Nova de Gaia
Porto, Vila Nova de Gaia, São Félix da Marinha
450 000 €
2
2
1
Apartamento T1 Venda em São Félix da Marinha,Vila Nova de Gaia
Porto, Vila Nova de Gaia, São Félix da Marinha
295 000 €
1
1
1
Partilha o imóvel: Apartamento T1 no empreendimento Oporto Metropolitano
Partilha este imóvel nas tuas redes sociais ou envia diretamente para o email dos teus amigos.
Partilhar por email
Adicione uma nota ao imóvel!
Só você é que vê as notas que adiciona. Os imóveis com notas ficam nos favoritos para os poder consultar mais tarde.
Excluíste o anúncio:
Apartamento T1 no empreendimento Oporto Metropolitano