Pesquisar perto de mim
A aguardar a sua pesquisa
Voltar
Venda de 3 Lotes com Projeto Aprovado em Santa Maria da Feira!
Venda de 3 Lotes com Projeto Aprovado em Santa Maria da Feira!
Venda de 3 Lotes com Projeto Aprovado em Santa Maria da Feira!
Venda de 3 Lotes com Projeto Aprovado em Santa Maria da Feira!
Ver galeria (11)
Ver galeria (11)
Seguir
Partilhar

Venda de 3 Lotes com Projeto Aprovado em Santa Maria da Feira!

Aveiro, Santa Maria da Feira, Santa Maria da Feira, Travanca, Sanfins e Espargo Ver no mapa
330 000 €
0 Quartos
0 WC's
Certificação Energética: N/D

Descrição do anúncio

Atenção INVESTIDORES, CONSTRUTORES e PROMOTORES!

Não perca esta oportunidade para iniciar um projeto imobiliário de sucesso numa localização estratégica em Santa Maria da Feira. Colocamos à venda um conjunto de três lotes de terreno contíguos, idealmente formatados para a construção de um moderno complexo de moradias em banda.

Esta venda singular inclui não só o terreno, mas também a sua maior mais-valia: o projeto de construção aprovado pelas entidades competentes! Isto significa que pode arrancar com a obra de forma rápida e eficiente, minimizando custos de espera e burocracia.
Os lotes são vendidos em conjunto e apresentam as seguintes áreas: Lote Área (m²) Lote 1 275m² Lote 2 175m² Lote 3 250m² Área Total 700m²
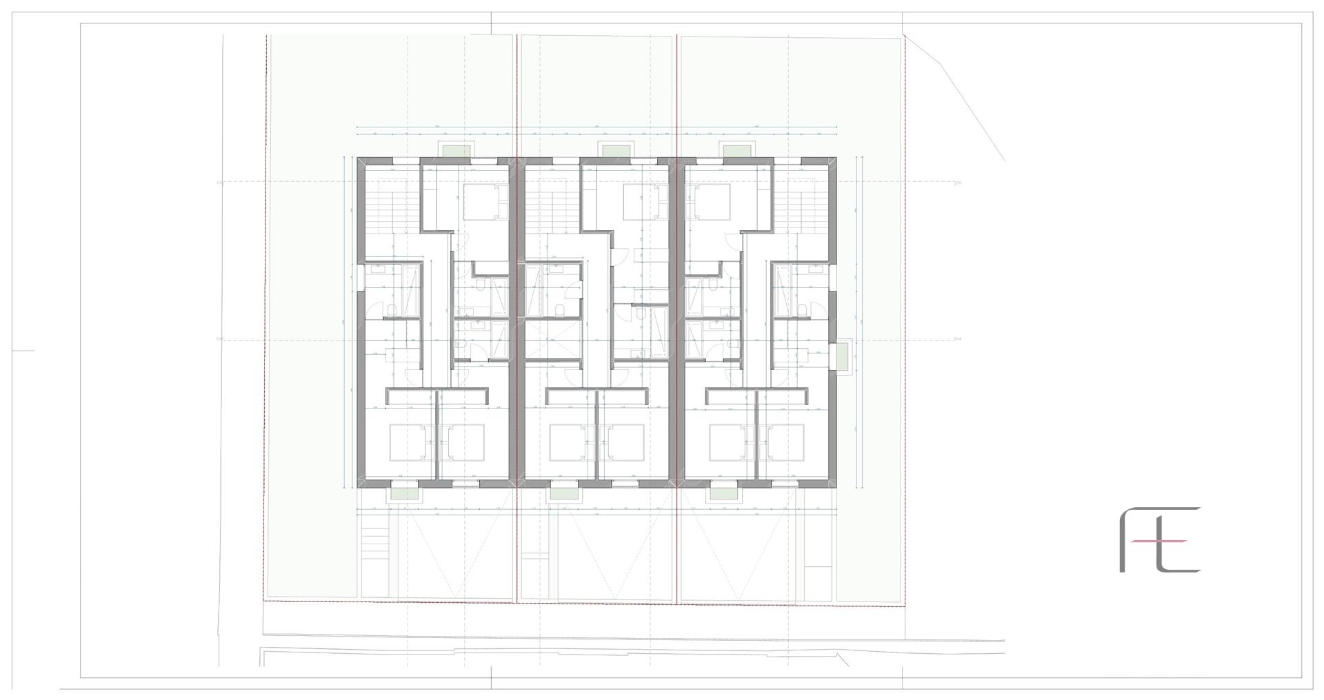
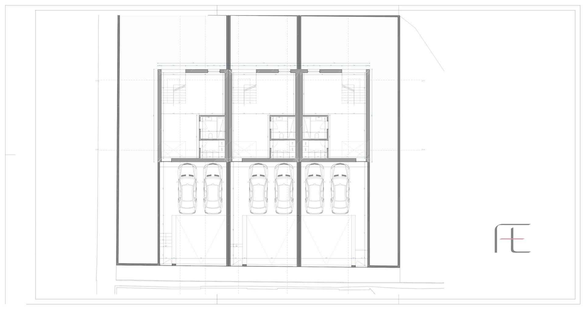
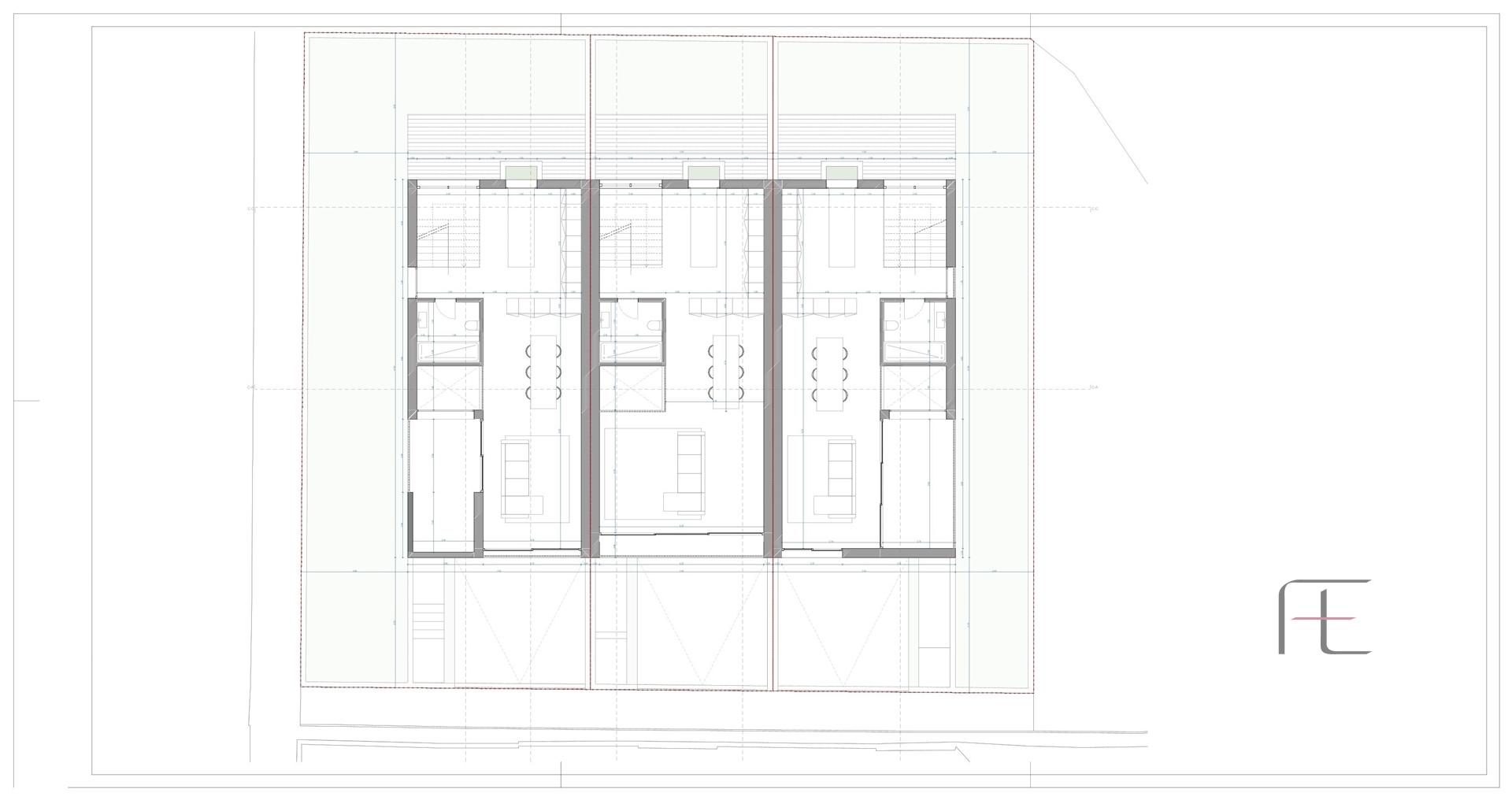
O projeto contempla a construção de três moradias em banda de tipologia T3 (três quartos), garantindo um produto final de elevada procura no mercado atual.
Cada moradia será composta por:
Cave: Espaço para garagem (2 viaturas), arrumos, lavandaria, wc e uma área de lazer versátil.
Rés-do-Chão: Zona social, incluindo sala e cozinha, com acesso a espaços exteriores.
Andar: Zona privativa com os quartos.A combinação de uma tipologia familiar, espaços amplos (Cave + R/C + Andar) e a localização em Santa Maria da Feira assegura um elevado potencial de retorno e rápida comercialização do produto final.

Santa Maria da Feira é um concelho em crescimento, valorizado pela qualidade de vida, excelentes acessos e proximidade a grandes centros urbanos. Adquirir estes lotes é investir numa zona de constante valorização imobiliária.

Contacte-nos para aceder aos detalhes do projeto e agendar uma visita ao local.

Empresa
Com uma história de sucesso, a Fracção Exacta foi fundada em 2008 e hoje é uma das principais redes imobiliárias em Portugal. Com mais de 20 lojas espalhadas pelo Distrito do Porto, Aveiro, Braga, Lisboa, Algarve e Ilha da Madeira, e uma equipa de mais de 200 colaboradores, estamos presentes em todo o país para atender às necessidades dos nossos clientes.
A nossa filosofia de trabalho é baseada no profissionalismo e no compromisso com a excelência. Cada membro da nossa equipa é dedicado, competente e está sempre focado em encontrar as melhores soluções para os nossos clientes. Acreditamos que só através do rigor e da competência é possível oferecer um serviço de qualidade e superar as expectativas dos nossos clientes.
A nossa visão é ser a maior rede imobiliária em Portugal, 100% portuguesa. Queremos oferecer as melhores condições tanto para os compradores como para os vendedores, criando parcerias duradouras e beneficiando todos os envolvidos no processo de compra e venda de imóveis. Além disso, valorizamos os nossos colaboradores e garantimos as melhores condições para que se destaquem no mercado imobiliário.
Outro ponto importante é que somos um Intermediário de Crédito aprovado pelo Banco de Portugal, o que nos permite oferecer aos nossos clientes condições de financiamento especiais. Assumimos a responsabilidade de tratar de toda a documentação necessária de forma gratuita, para que os nossos clientes possam desfrutar de uma experiência tranquila e sem preocupações.
Na Fracção Exacta, comprometemo-nos em oferecer um serviço de excelência, baseado em valores como integridade, transparência e dedicação. Estamos focados em tornar o processo de compra e venda de imóveis mais simples e eficiente, para que os nossos clientes possam alcançar os seus objetivos de forma rápida e segura.
Se procura um parceiro de confiança para as suas necessidades imobiliárias, venha conhecer a Fracção Exacta. Estamos prontos para o ajudar a encontrar a sua casa de sonho, vender a sua propriedade ou qualquer outra questão relacionada com o mercado imobiliário. Conte connosco para fazer a diferença na sua vida imobiliária.

Características Gerais

  • Acesso com Estrada
  • Terreno Urbano

Galeria do imóvel

Venda de 3 Lotes com Projeto Aprovado em Santa Maria da Feira!
Venda de 3 Lotes com Projeto Aprovado em Santa Maria da Feira!
Venda de 3 Lotes com Projeto Aprovado em Santa Maria da Feira!
Venda de 3 Lotes com Projeto Aprovado em Santa Maria da Feira!
Venda de 3 Lotes com Projeto Aprovado em Santa Maria da Feira!
Venda de 3 Lotes com Projeto Aprovado em Santa Maria da Feira!

Localização do imóvel

Aveiro, Santa Maria da Feira, Santa Maria da Feira, Travanca, Sanfins e Espargo

Referência do anúncio: 25.4/038/1. Última atualização: 14 novembro 2025.

Relatório de preços praticados nos últimos 8 meses

Aveiro, Santa Maria da Feira, Santa Maria da Feira, Travanca, Sanfins e Espargo

Simule um Crédito Habitação

Os dados apresentados são meramente indicativos. Condições gerais
Seguir
Partilhar
FRACÇÃO EXACTA, UNIPESSOAL, LDA
AMI 8866
222 ...
Chamada para a rede fixa nacional
Mostrar número
Nome
Email
Contacto
Formato inválido
Agende uma visita
Referência do anúncio: 25.4/038/1.
Última atualização: 14 novembro 2025.
Contactar
Veja também
Anúncios na mesma zona
Terreno urbano com 815 m² e 17,20 metros de frente em oliveirinha – aveiro
Aveiro, Aveiro, Requeixo, Nossa Senhora de Fátima e Nariz
120 000 €
Terreno Para Construção Venda em Aradas,Aveiro
Aveiro, Aveiro, Aradas
160 000 €
Terreno Para Construção Venda em Aradas,Aveiro
Aveiro, Aveiro, Aradas
50 000 €
Lote de Terreno T3 Venda em Ovar, São João, Arada e São Vicente de Pereira Jusã,Ovar
Aveiro, Ovar, Ovar, São João, Arada e São Vicente de Pereira Jusã
120 000 €
Lote de Terreno Venda em Oliveirinha,Aveiro
Aveiro, Aveiro, Oliveirinha
28 000 €
Terreno Oliveira Do Bairro
Aveiro, Oliveira do Bairro, Oliveira do Bairro
36 700 €
Lote de Terreno Venda em Oiã,Oliveira do Bairro
Aveiro, Oliveira do Bairro, Oiã
21 000 €
Lote de Terreno T3 Venda em Ovar, São João, Arada e São Vicente de Pereira Jusã,Ovar
Aveiro, Ovar, Ovar, São João, Arada e São Vicente de Pereira Jusã
102 500 €
Lote de Terreno T3 Venda em Ovar, São João, Arada e São Vicente de Pereira Jusã,Ovar
Aveiro, Ovar, Ovar, São João, Arada e São Vicente de Pereira Jusã
130 000 €
Terreno urbano com 546 m² e duas frentes em são bernardo – aveiro
Aveiro, Aveiro, Santa Joana
102 900 €
Partilha o imóvel: Venda de 3 Lotes com Projeto Aprovado em Santa Maria da Feira!
Partilha este imóvel nas tuas redes sociais ou envia diretamente para o email dos teus amigos.
Partilhar por email
Adicione uma nota ao imóvel!
Só você é que vê as notas que adiciona. Os imóveis com notas ficam nos favoritos para os poder consultar mais tarde.
Excluíste o anúncio:
Venda de 3 Lotes com Projeto Aprovado em Santa Maria da Feira!