Pesquisar perto de mim
A aguardar a sua pesquisa
Voltar
Trespasse fábrica panificação / pastelaria 440m2, Santa Clara, Lisboa
Trespasse fábrica panificação / pastelaria 440m2, Santa Clara, Lisboa
Trespasse fábrica panificação / pastelaria 440m2, Santa Clara, Lisboa
Trespasse fábrica panificação / pastelaria 440m2, Santa Clara, Lisboa
Ver galeria (7)
Ver galeria (7)
Seguir
Partilhar

Trespasse fábrica panificação / pastelaria 440m2, Santa Clara, Lisboa

Lisboa, Lisboa, Santa Clara Ver no mapa
150 000 €
0 Quartos
2 WC's
400m2
Área Útil: 400m2
Área Bruta: 440,8m2
Ano de Construção: 1993
Certificação Energética: N/A
Estado: Usado

Descrição do anúncio

Contacte-nos para conhecer a margem de negociação deste imóvel.

Trespasse fábrica de panificação / pastelaria com 440m2 localizado em Santa Clara, Lisboa

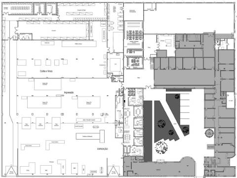
Imóvel industrial com 440 m² situado na cave de um prédio habitacional de 5 andares.

O mesmo é composto por:

Zona de fabrico - 240 m2

Copa de lavagens - 7,20 m2

Gabinete - 8,85 m2

Escritório - 12,12 m2

Lavandaria - 13,50 m2

Zona de arrumação - 20,25 m2 + 20,25 m2

Casa de banho - 26,10 m2

Casa de banho - 16,70 m2

O trespasse inclui toda a maquinaria de fabrico na área da panificação e pastelaria, bem como toda a estrutura existente. A equipa é composta por 3 pasteleiros, 1 padeiro, 1 empregada de limpeza e 2 distribuidores. O negócio já possui uma carteira de clientes estabelecida e um excelente volume de faturação anual.

O valor do trespasse da empresa, que inclui todos os equipamentos, clientes e a equipa de trabalho, é de 150.000€, com uma renda mensal de 2.500€.

**Equipamentos Incluídos:**
- Forno rotativo Bongard
- Forno de lar Rekena
- Batedeira industrial
- 2x Câmaras Frigoríficas
- Carros porta tabuleiros
- Estantes metálicas
- Laminador
- Câmara de fermentação Bongard
- Balança inox
- 4x Bancadas de mármore/inox
- 2x Bancadas inox
- 1 Amassadora

Na versão de CO-WORKING, a renda é de 2.500€ por mês, com uma duração mínima de 1 ano.

A localização é privilegiada face à rapidez de acesso aos principais eixos viários da cidade de Lisboa:

Eixo Norte-Sul - 2 km

Calçada de Carriche - 1.5 km

CRIL - 4 km

2ª Circular - 5 km

Aeroporto - 8 km

Ponte Vasco da Gama - 8 km

Ponte 25 de Abril - 10 km

Não perca esta oportunidade. Contacte-nos para mais informações, agende a sua visita e confira por si mesmo!

Contacte-nos de segunda a domingo das 10H às 20H. Tel: 210 999 489.

referência Triomphe Imo Invest TPH001-345

Galeria do imóvel

Trespasse fábrica panificação / pastelaria 440m2, Santa Clara, Lisboa
Trespasse fábrica panificação / pastelaria 440m2, Santa Clara, Lisboa
Trespasse fábrica panificação / pastelaria 440m2, Santa Clara, Lisboa
Trespasse fábrica panificação / pastelaria 440m2, Santa Clara, Lisboa
Trespasse fábrica panificação / pastelaria 440m2, Santa Clara, Lisboa
Trespasse fábrica panificação / pastelaria 440m2, Santa Clara, Lisboa

Localização do imóvel

Lisboa, Lisboa, Santa Clara

Referência do anúncio: TPH001-345. Última atualização: 10 setembro 2025.

Relatório de preços praticados nos últimos 8 meses

Lisboa, Lisboa, Santa Clara

Simule um Crédito Habitação

Os dados apresentados são meramente indicativos. Condições gerais
Seguir
Partilhar
Triomphe Imo Invest
AMI 13164
Nome
Email
Contacto
Formato inválido
Agende uma visita
Referência do anúncio: TPH001-345.
Última atualização: 10 setembro 2025.
Contactar
Veja também
Anúncios na mesma zona
Edifício industrial 1030m2 na venda nova, amadora.
Lisboa, Amadora, Falagueira-Venda Nova
1 250 000 €
Armazém Multifuncional na Damaia - Amadora com 713 m²
Lisboa, Amadora, Águas Livres
800 000 €
2
Armazém com potencial para loft em Campo de Ourique
Lisboa, Lisboa, Campolide
299 000 €
1
Vender armazém c/ logradouro loures marl proximo aeroporto
Lisboa, Loures, Santo Antão e São Julião do Tojal
2 000 000 €
Armazém Totalmente Remodelado, como novo, Prior velho a 5 m do Aeroprto internacional de Lisboa
Lisboa, Loures, Camarate, Unhos e Apelação
4 500 000 €
Armazém junto ao Aeroporto de Lisboa
Lisboa, Loures, Camarate, Unhos e Apelação
900 000 €
2
Armazém em carnaxide "o futuro do seu negócio começa aqui"
Lisboa, Oeiras, Carnaxide e Queijas
5 000 000 €
Armazém para venda - 1050 m2
Lisboa, Loures, Santa Iria de Azoia, São João da Talha e Bobadela
680 000 €
2
Excelente centro logistico
Lisboa, Vila Franca de Xira, Vila Franca de Xira
17 000 000 €
Trespasse fábrica panificação / pastelaria 440m2, Santa Clara, Lisboa
Lisboa, Lisboa, Santa Clara
150 000 €
2
Partilha o imóvel: Trespasse fábrica panificação / pastelaria 440m2, Santa Clara, Lisboa
Partilha este imóvel nas tuas redes sociais ou envia diretamente para o email dos teus amigos.
Partilhar por email
Adicione uma nota ao imóvel!
Só você é que vê as notas que adiciona. Os imóveis com notas ficam nos favoritos para os poder consultar mais tarde.
Excluíste o anúncio:
Trespasse fábrica panificação / pastelaria 440m2, Santa Clara, Lisboa