Pesquisar perto de mim
A aguardar a sua pesquisa
Voltar
Terreno urbano projeto aprovado prédio residencial, ramada
Terreno urbano projeto aprovado prédio residencial, ramada
Terreno urbano projeto aprovado prédio residencial, ramada
Terreno urbano projeto aprovado prédio residencial, ramada
Ver galeria (13)
Ver galeria (13)
Seguir
Partilhar

Terreno urbano projeto aprovado prédio residencial, ramada

Lisboa, Odivelas, Ramada e Caneças Ver no mapa
675 000 €
0 Quartos
0 WC's
Certificação Energética: Isento
Estado: Em Projecto

Descrição do anúncio

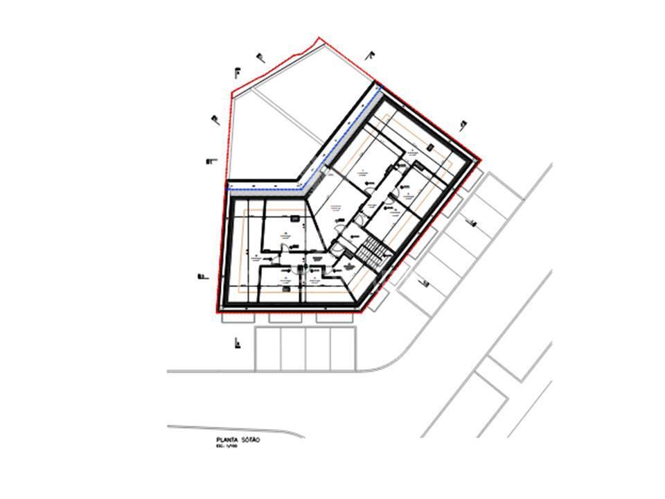
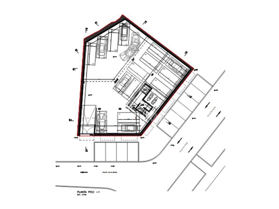
Venda de lote de terreno urbano com projeto de arquitetura aprovado para prédio residencial, localizado no Bairro dos Pedernais, Odivelas. 

O Lote situa-se num gaveto e possui uma área 500m2 sendo a área de implantação é de 500 m2. A área bruta construção é de 1038 m2, distribuída por 4 pisos acima do solo e 1 piso em cave.

O projeto contempla a construção de um edifício com 9 apartamentos de tipologias T2 e T3, estacionamentos e arrecadações.

Possui 6 apartamentos de tipologia T2 e 3 apartamentos T3, com áreas na ordem de 98 m² e 128 m², respetivamente. O projeto inclui ainda 15 lugares de estacionamento no piso Cave e arrecadações no Sotão.

Inserido num bairro tranquilo de Odivelas, com rápido acesso às principais vias rodoviárias (IC22, CRIL, CREL, Calçada de Carriche, A8, túnel do Grilo, etc)-

 Proximidade a todo o comércio e serviços, Hospital, ao centro de Odivelas, às Colinas do Cruzeiro, Centro Comercial Strada e Ramada, onde está prevista a saída do metro de Odivelas. 

Possuímos para venda mais 2 lotes na mesma urbanização. Se vendidos os 3 em conjunto, o total de área bruta de construção é de 2202 m2.

Contacte-me para mais informações ou agendar visita. 


Predimed Imobiliária, Mediação Imobiliária, Lda.
Avenida Brasil 43, 12º Andar, 1700-062 Lisboa
Licença AMI nº 22503
Pessoa Coletiva nº 517 239 345
Seguro Responsabilidade Civil: Nº de Apólice RC65379424 Fidelidade

Galeria do imóvel

Terreno urbano projeto aprovado prédio residencial, ramada
Terreno urbano projeto aprovado prédio residencial, ramada
Terreno urbano projeto aprovado prédio residencial, ramada
Terreno urbano projeto aprovado prédio residencial, ramada
Terreno urbano projeto aprovado prédio residencial, ramada
Terreno urbano projeto aprovado prédio residencial, ramada

Localização do imóvel

Lisboa, Odivelas, Ramada e Caneças

Referência do anúncio: 056212. Última atualização: 26 janeiro 2026.

Relatório de preços praticados nos últimos 8 meses

Lisboa, Odivelas, Ramada e Caneças

Simule um Crédito Habitação

Os dados apresentados são meramente indicativos. Condições gerais
Seguir
Partilhar
Predimed Imobiliaria Mediacao Imobiliaria Lda
AMI 22503
Nome
Email
Contacto
Formato inválido
Agende uma visita
Referência do anúncio: 056212.
Última atualização: 26 janeiro 2026.
Contactar
Veja também
Anúncios na mesma zona
Terreno urbano em unhos | oportunidade de investimento
Lisboa, Loures, Camarate, Unhos e Apelação
150 000 €
Terreno Quinta da Beloura I com vista de Golfe com projecto de arquitectura
Lisboa, Sintra, Sintra (Santa Maria e São Miguel, São Martinho e São Pedro de Penaferrim)
1 310 000 €
Excelente localização com projeto aprovado para uma moradia
Lisboa, Sintra, Colares
434 000 €
Terreno urbano com 6 moradias em construção
Lisboa, Alenquer, Abrigada e Cabanas de Torres
700 000 €
Terreno para construção - Parede / Cascais
Lisboa, Cascais, Carcavelos e Parede
650 000 €
Excelente localização em zona comercial
Lisboa, Cascais, Alcabideche
4 150 000 €
Terreno
Lisboa, Sintra, São João das Lampas e Terrugem
270 000 €
Terreno Rústico 3062 m2 Carvoeira, Mafra
Lisboa, Mafra, Mafra
197 124 €
Terreno de 26.600 m² com viabilidade de construção
Lisboa, Azambuja, Aveiras de Cima
155 000 €
Terreno Venda em Sintra (Santa Maria e São Miguel, São Martinho e São Pedro de Penaferrim),Sintra
Lisboa, Sintra, Sintra (Santa Maria e São Miguel, São Martinho e São Pedro de Penaferrim)
880 000 €
Partilha o imóvel: Terreno urbano projeto aprovado prédio residencial, ramada
Partilha este imóvel nas tuas redes sociais ou envia diretamente para o email dos teus amigos.
Partilhar por email
Adicione uma nota ao imóvel!
Só você é que vê as notas que adiciona. Os imóveis com notas ficam nos favoritos para os poder consultar mais tarde.
Excluíste o anúncio:
Terreno urbano projeto aprovado prédio residencial, ramada