Pesquisar perto de mim
A aguardar a sua pesquisa
Voltar
Terreno urbano para construção de um prédio habitacional
Terreno urbano para construção de um prédio habitacional
Terreno urbano para construção de um prédio habitacional
Terreno urbano para construção de um prédio habitacional
Ver galeria (12)
Ver galeria (12)
Seguir
Partilhar

Terreno urbano para construção de um prédio habitacional

Lisboa, Sintra, Cacém e São Marcos Ver no mapa
695 000 €
0 Quartos
0 WC's
Certificação Energética: N/D

Descrição do anúncio

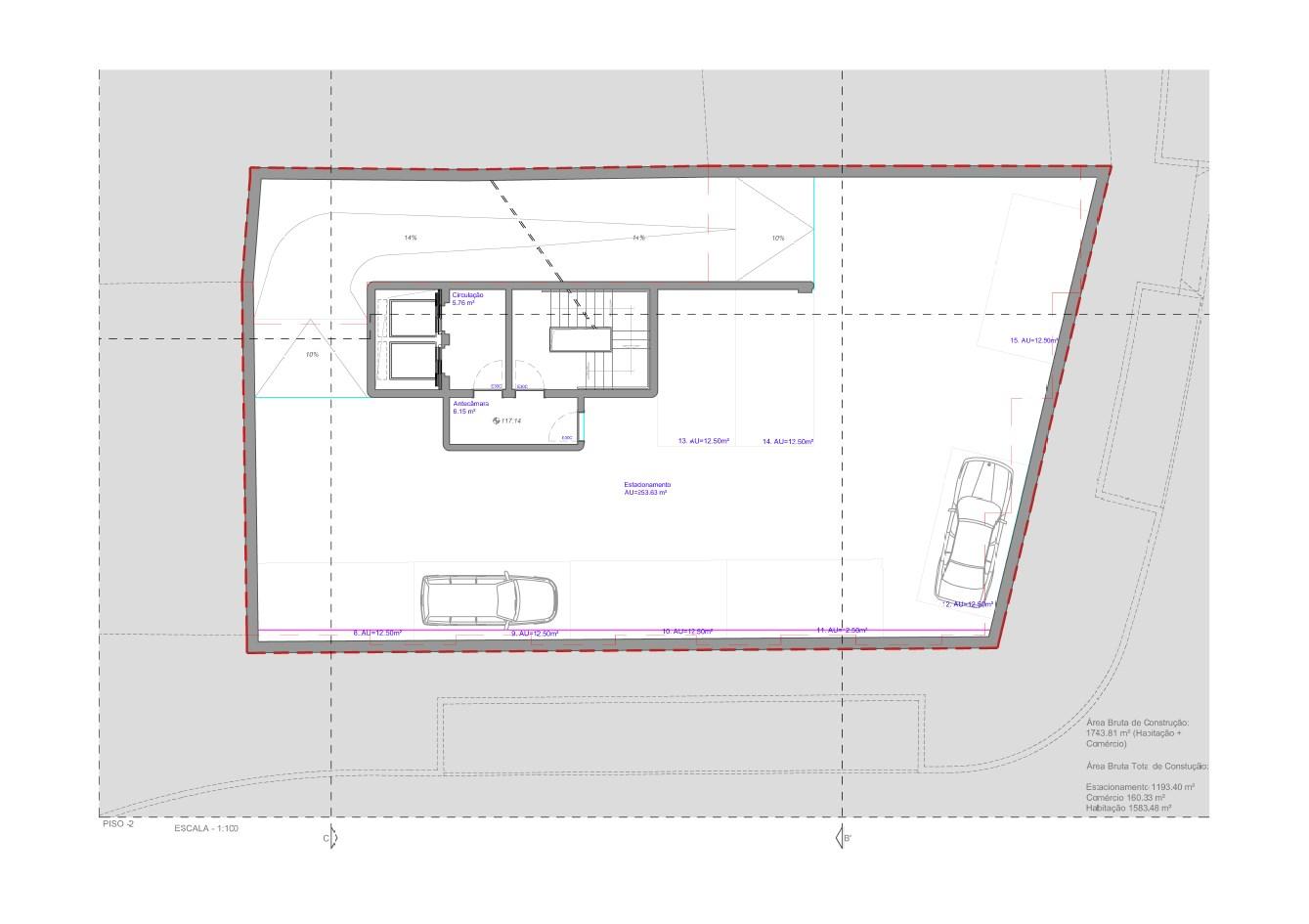
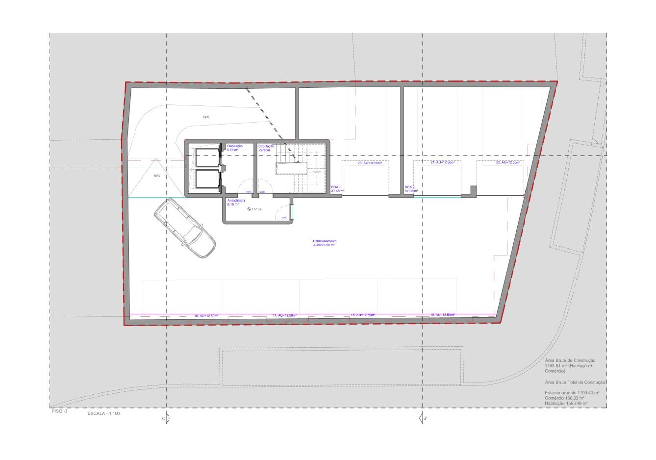
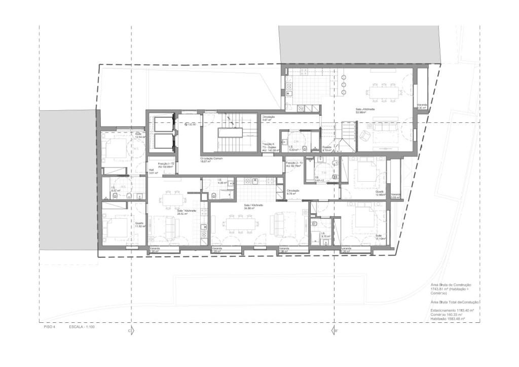
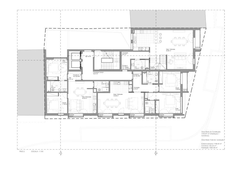
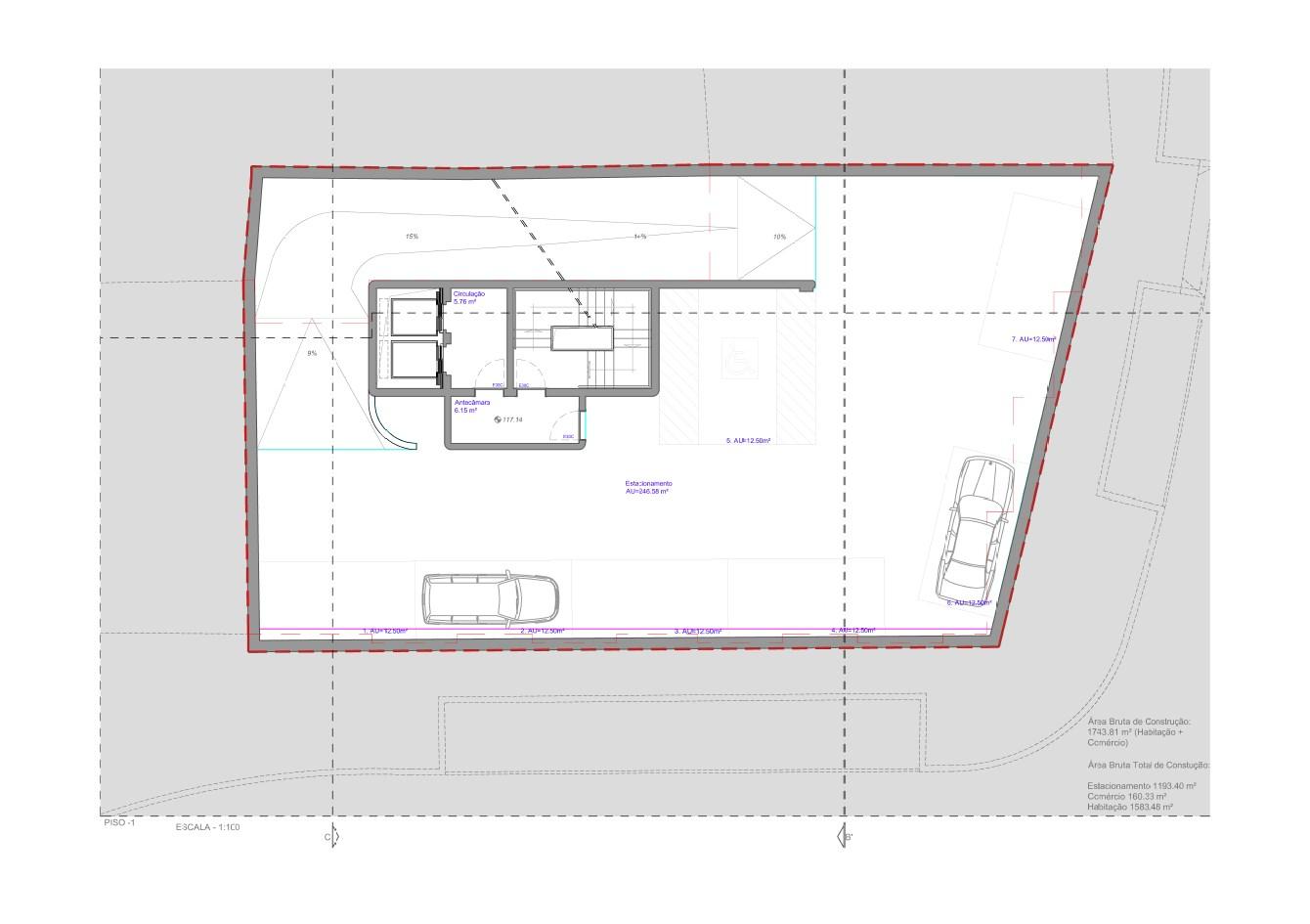
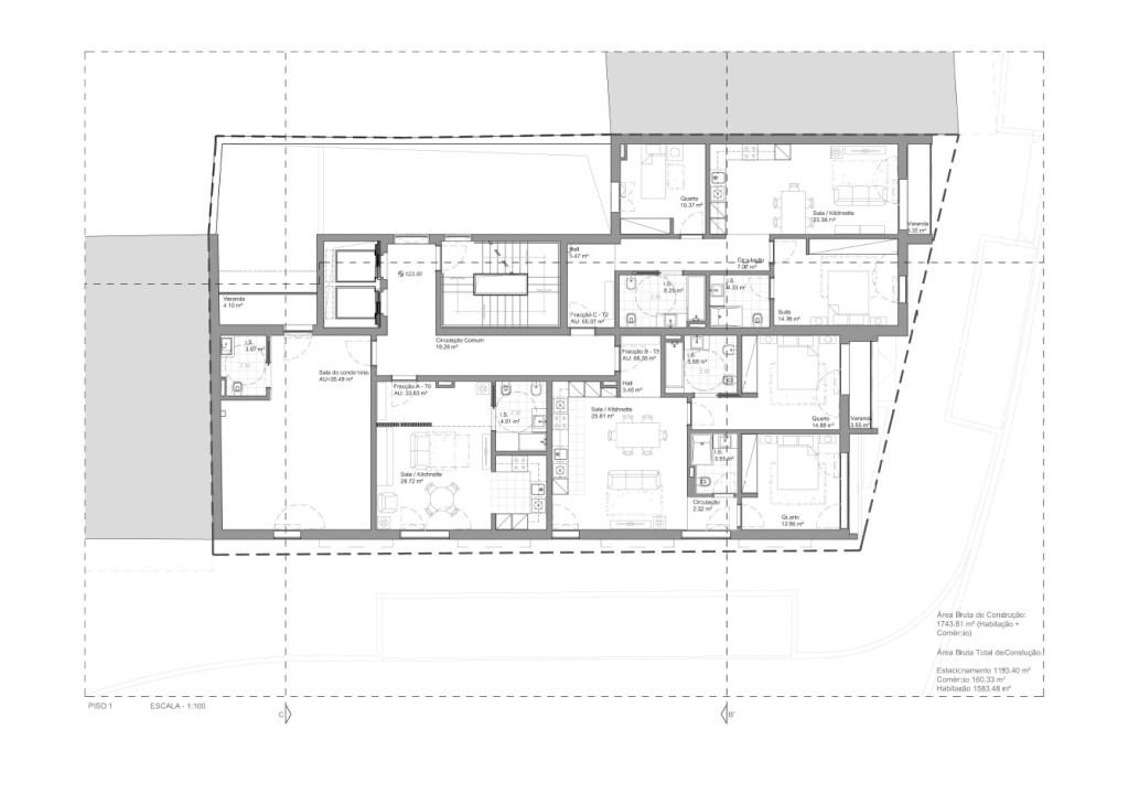
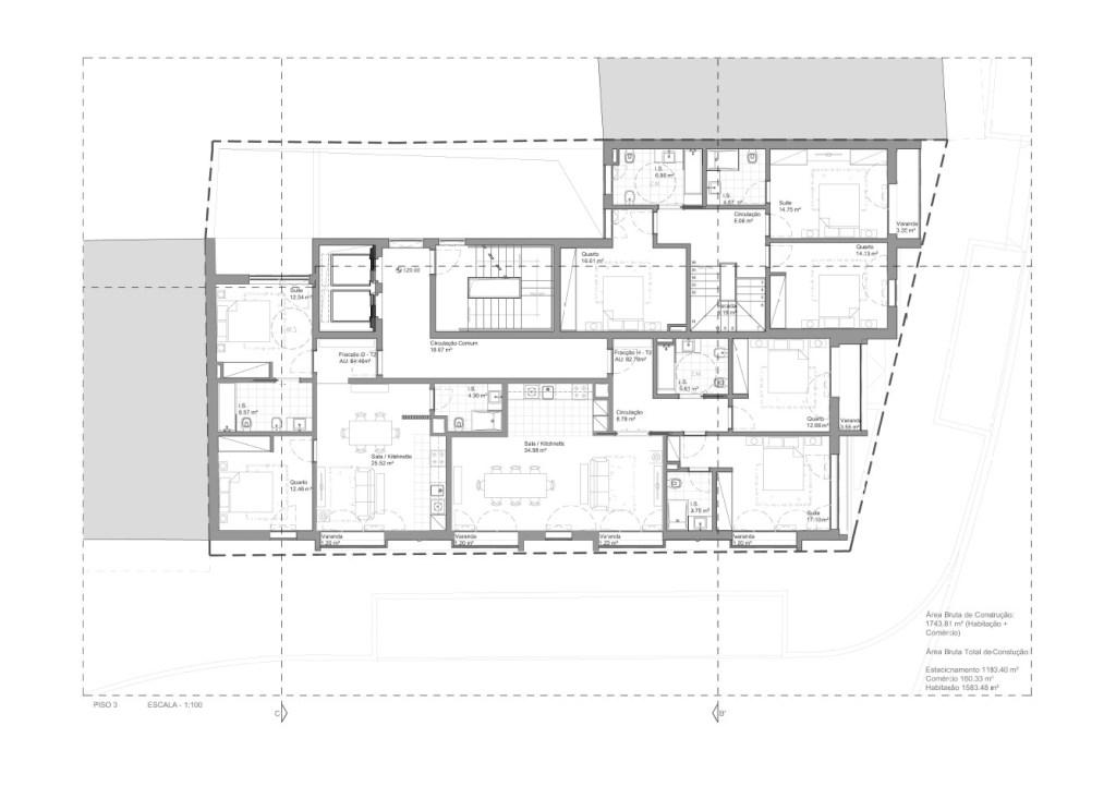
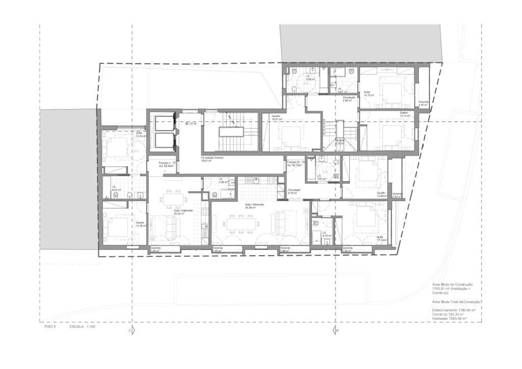
Ref. 8364 - Terreno urbano com Arquitetura Aprovada, com 398m2 para a construção de um prédio habitacional, composto por 13 fogo de habitação (1- T0; 10 - T2; 2 - T3); 2 espaços comerciais; lugares de estacionamento. Com uma área de implantação de 327m2 e uma área bruta de construção de 1.962m2.
O de terreno está inserido numa zona habitacional, com ótimos acessos e próximo das principais vias públicas da cidade do Cacém.
Com Licença a pagamento
Poderá ser utilizado como estaleiro de obra um terreno camarário limítrofe

Galeria do imóvel

Terreno urbano para construção de um prédio habitacional
Terreno urbano para construção de um prédio habitacional
Terreno urbano para construção de um prédio habitacional
Terreno urbano para construção de um prédio habitacional
Terreno urbano para construção de um prédio habitacional
Terreno urbano para construção de um prédio habitacional

Localização do imóvel

Lisboa, Sintra, Cacém e São Marcos

Referência do anúncio: 8364. Última atualização: 02 outubro 2025.

Relatório de preços praticados nos últimos 8 meses

Lisboa, Sintra, Cacém e São Marcos

Simule um Crédito Habitação

Os dados apresentados são meramente indicativos. Condições gerais
Seguir
Partilhar
Jaime Ouro - Soc Mediacao Imobiliaria, Unip Lda
AMI 440
Nome
Email
Contacto
Formato inválido
Agende uma visita
Referência do anúncio: 8364.
Última atualização: 02 outubro 2025.
Contactar
Veja também
Anúncios na mesma zona
Terreno para construção - Parede / Cascais
Lisboa, Cascais, Carcavelos e Parede
650 000 €
Excelente localização em zona comercial
Lisboa, Cascais, Alcabideche
4 150 000 €
Terreno Quinta da Beloura I com vista de Golfe com projecto de arquitectura
Lisboa, Sintra, Sintra (Santa Maria e São Miguel, São Martinho e São Pedro de Penaferrim)
1 310 000 €
Terreno
Lisboa, Sintra, São João das Lampas e Terrugem
270 000 €
EXCELENTE LOCALIZAÇÃO. OPORTUNIDE LOCAL TRANQUILO
Lisboa, Cascais, São Domingos de Rana
630 000 €
Terreno para construção de moradia T4
Lisboa, Torres Vedras, Campelos e Outeiro da Cabeça
64 000 €
Terreno Rústico 4.520 m2 A-dos-Cunhados, Torres Vedras
Lisboa, Torres Vedras, Torres Vedras (São Pedro, Santiago, Santa Maria do Castelo e São Miguel) e Matacães
85 000 €
Terreno em A Dos Cunhados
Lisboa, Torres Vedras, A dos Cunhados e Maceira
55 000 €
Terreno em Pero Negro
Lisboa, Sobral de Monte Agraço, Sapataria
320 000 €
Terreno com projeto aprovado para loteamento de 8 moradias isoladas - Silveira
Lisboa, Sobral de Monte Agraço, Sobral de Monte Agraço
400 000 €
Partilha o imóvel: Terreno urbano para construção de um prédio habitacional
Partilha este imóvel nas tuas redes sociais ou envia diretamente para o email dos teus amigos.
Partilhar por email
Adicione uma nota ao imóvel!
Só você é que vê as notas que adiciona. Os imóveis com notas ficam nos favoritos para os poder consultar mais tarde.
Excluíste o anúncio:
Terreno urbano para construção de um prédio habitacional