Pesquisar perto de mim
A aguardar a sua pesquisa
Voltar
Terreno urbano na baixa de olhão (zona aru)
Terreno urbano na baixa de olhão (zona aru)
Terreno urbano na baixa de olhão (zona aru)
Terreno urbano na baixa de olhão (zona aru)
Ver galeria (18)
Ver galeria (18)
Seguir
Partilhar

Terreno urbano na baixa de olhão (zona aru)

Faro, Olhão, Olhão Ver no mapa
527 000 €
0 Quartos
0 WC's
Certificação Energética: Isento

Descrição do anúncio

Investidores em Construção Civil / Imobiliário, apresento esta oportunidade. Terreno Urbano na Zona Ribeirinha de Olhão!
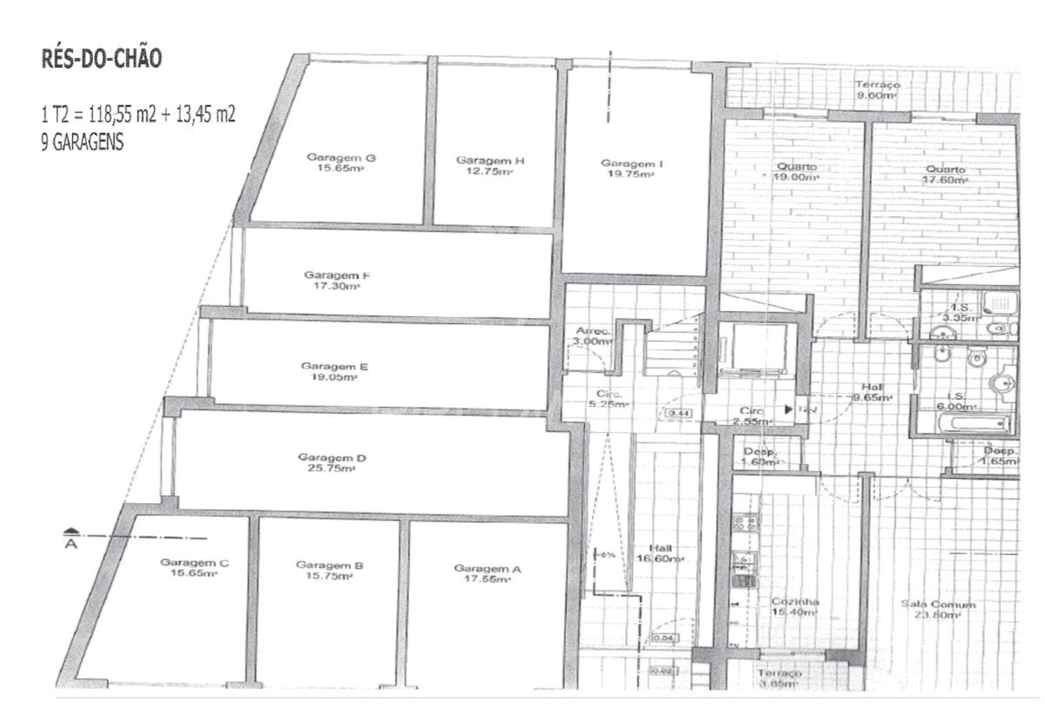
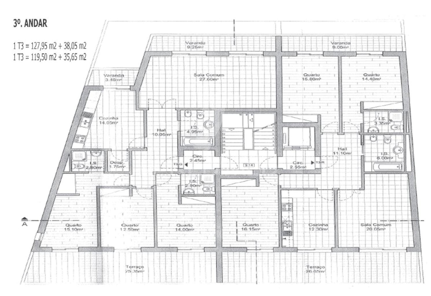
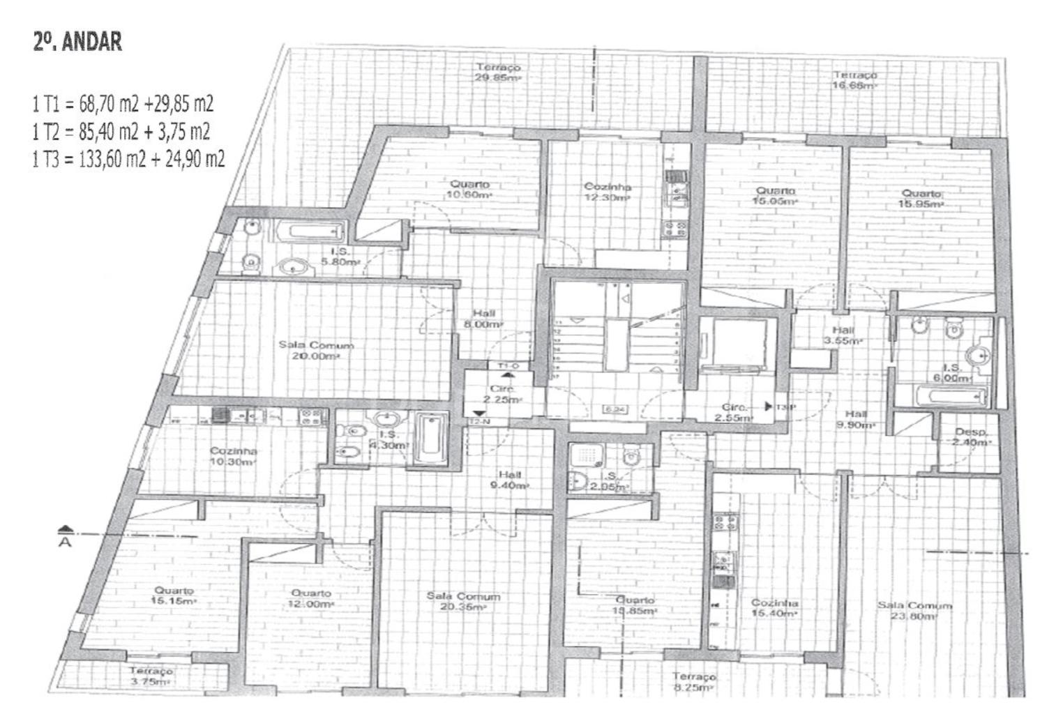
Imóvel inserido em zona ARU (área de reabilitação urbana), sendo objeto de benefícios fiscais.Lote para construção de prédio com 3 pisos, em terreno com uma área de 395m2, o mesmo já teve um projeto aprovado para 9 garagens em box, 1 apartamento tipologia T1, 4 apartamentos tipologia T2 e 4 apartamentos tipologia T3, com possibilidade de ser  reajustado conforme idealogia ou necessidades do futuro proprietário.
O projeto contempla um total de 9 apartamentos com áreas compreendidas entre 76m2 e 143m2 e 9 garagens em Box com áreas entre os 12,75m2 e 25,75m2.
Localizado em plena baixa de Olhão, a escassos metros da marina, cais de embarque para as Ilhas, restauração e comercio tradicional. 
Visite e surpreenda-se! Venha conhecer o seu próximo investimento.
Na PREDIMED Portugal partilhamos negócios com qualquer consultor ou agência imobiliária. Se é profissional do sector e tem um cliente comprador qualificado, contacte-me e agende a sua visita.


Predimed Imobiliária, Mediação Imobiliária, Lda.
Avenida Brasil 43, 12º Andar, 1700-062 Lisboa
Licença AMI nº 22503
Pessoa Coletiva nº 517 239 345
Seguro Responsabilidade Civil: Nº de Apólice RC65379424 Fidelidade

Galeria do imóvel

Terreno urbano na baixa de olhão (zona aru)
Terreno urbano na baixa de olhão (zona aru)
Terreno urbano na baixa de olhão (zona aru)
Terreno urbano na baixa de olhão (zona aru)
Terreno urbano na baixa de olhão (zona aru)
Terreno urbano na baixa de olhão (zona aru)

Localização do imóvel

Faro, Olhão, Olhão

Referência do anúncio: 047066. Última atualização: 26 julho 2025.

Relatório de preços praticados nos últimos 8 meses

Faro, Olhão, Olhão

Simule um Crédito Habitação

Os dados apresentados são meramente indicativos. Condições gerais
Seguir
Partilhar
Predimed Imobiliaria Mediacao Imobiliaria Lda
AMI 22503
Nome
Email
Contacto
Formato inválido
Agende uma visita
Referência do anúncio: 047066.
Última atualização: 26 julho 2025.
Contactar
Veja também
Anúncios na mesma zona
Terreno Urbano 1350 m2 Montalvo Constância
Faro, Vila Real de Santo António, Vila Real de Santo António
62 500 €
TERRENO COM 4.720 M² - NO CENTRO DO AZINHAL - COM POSSIBILIDADE DE CONSTRUIR DUAS MORADIAS PARA HABITAÇÃO E OU TURISMO - AZINHAL - CASTRO MARIM - ALGARVE
Faro, Castro Marim, Azinhal
96 000 €
Terreno Rústico Venda em Odeleite,Castro Marim
Faro, Castro Marim, Odeleite
50 640 €
Herdade com características únicas para projeto hoteleiro com ca de
Faro, Silves, São Bartolomeu de Messines
15 000 000 €
Terreno para construção de prédio - área de reabilitação urbana - Baixa de Olhão - zona Ribeirinha
Faro, Olhão, Olhão
527 000 €
Terreno com Projeto Aprovado para Moradia de Luxo
Faro, Vila Real de Santo António, Vila Nova de Cacela
475 000 €
Terreno urbano para construção de 3 Prédios - Zona Ribeirinha - Olhão
Faro, Olhão, Olhão
1 800 000 €
Terreno rústico com árvores de sequeiro
Faro, Tavira, Santa Catarina da Fonte do Bispo
19 000 €
Terreno Misto
Faro, Faro, Faro (Sé e São Pedro)
500 000 €
RUINA DE ESQUINA - COM 96 M2 - PARA RECONSTRUÇÃO NO CENTRO DA JUNQUEIRA - CASTRO MARIM - ALGARVE
Faro, Castro Marim, Azinhal
45 000 €
1
Partilha o imóvel: Terreno urbano na baixa de olhão (zona aru)
Partilha este imóvel nas tuas redes sociais ou envia diretamente para o email dos teus amigos.
Partilhar por email
Adicione uma nota ao imóvel!
Só você é que vê as notas que adiciona. Os imóveis com notas ficam nos favoritos para os poder consultar mais tarde.
Excluíste o anúncio:
Terreno urbano na baixa de olhão (zona aru)