Pesquisar perto de mim
A aguardar a sua pesquisa
Voltar
Terreno Urbano
Terreno Urbano
Terreno Urbano
Terreno Urbano
Ver galeria (16)
Ver galeria (16)
Seguir
Partilhar

Terreno Urbano

Porto, Vila Nova de Gaia, Mafamude e Vilar do Paraíso Ver no mapa
550 000 €
0 Quartos
0 WC's
Certificação Energética: Isento

Descrição do anúncio

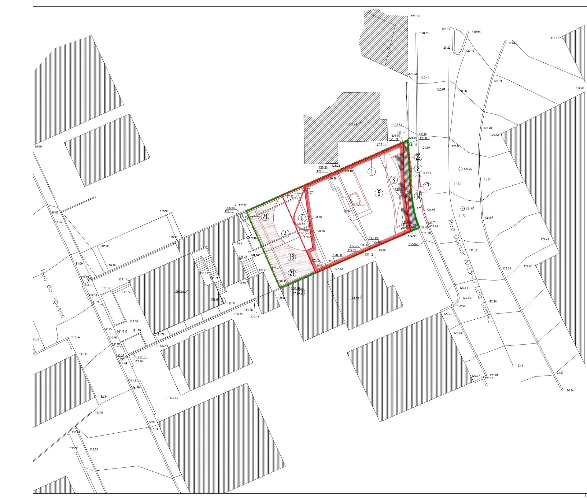
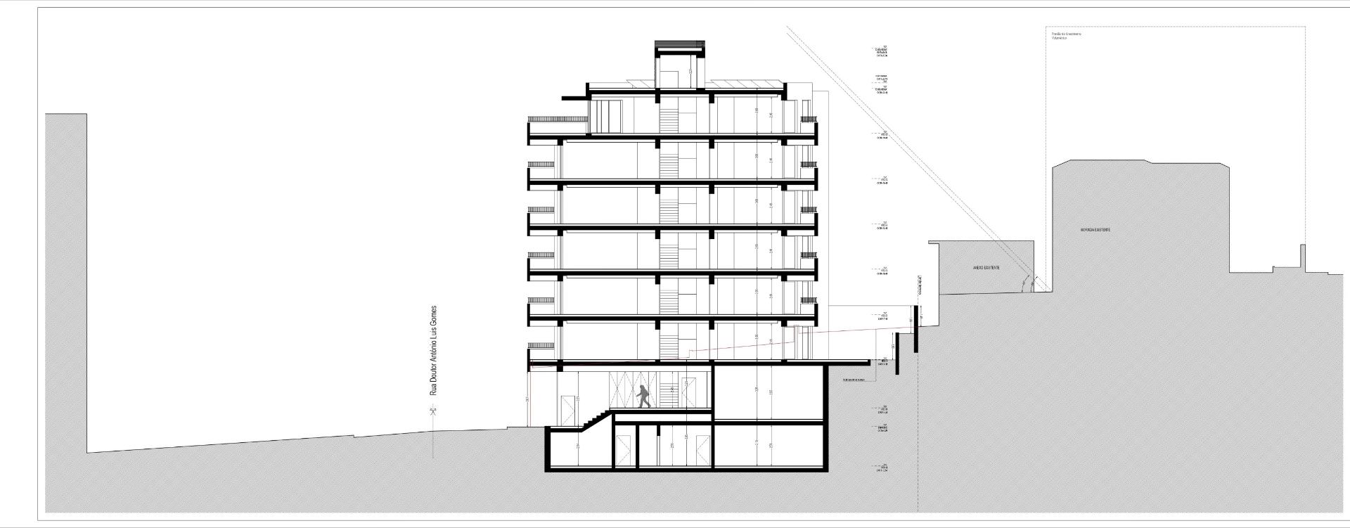
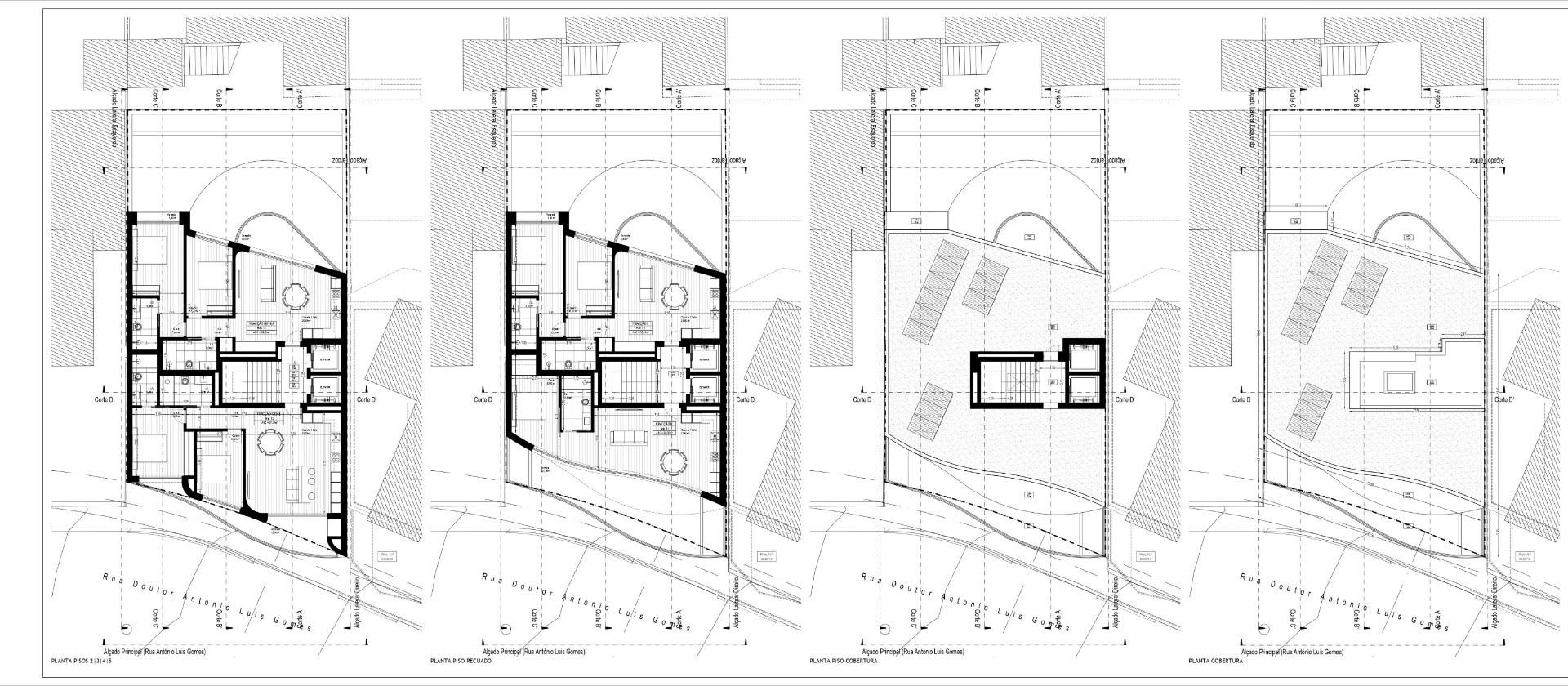
Terreno para construção.

PIP aprovado na CMG e projeto submetido a aguardar aprovação.
12 apartamentos, 11 T2 e 1 T1
8 lugares de garagem
315m2 de área do terreno
1253m2 área bruta de construção
200m2 de área de implantação

Galeria do imóvel

Terreno Urbano
Terreno Urbano
Terreno Urbano
Terreno Urbano
Terreno Urbano
Terreno Urbano

Localização do imóvel

Porto, Vila Nova de Gaia, Mafamude e Vilar do Paraíso

Referência do anúncio: PGMC_8880. Última atualização: 22 junho 2024.

Relatório de preços praticados nos últimos 8 meses

Porto, Vila Nova de Gaia, Mafamude e Vilar do Paraíso

Simule um Crédito Habitação

Os dados apresentados são meramente indicativos. Condições gerais
Seguir
Partilhar
Propriete Generale, Unip Lda
AMI 14104
Nome
Email
Contacto
Formato inválido
Agende uma visita
Referência do anúncio: PGMC_8880.
Última atualização: 22 junho 2024.
Contactar
Veja também
Anúncios na mesma zona
Terreno para Construção de Moradia de 4 Frentes Arcozelo Vila Nova de Gaia
Porto, Vila Nova de Gaia, Canelas
57 000 €
Lote de Terreno Venda em Serzedo e Perosinho,Vila Nova de Gaia
Porto, Vila Nova de Gaia, Serzedo e Perosinho
95 000 €
Terreno moradia isolada - ao freixo-porto
Porto, Gondomar, Gondomar (São Cosme), Valbom e Jovim
295 000 €
Terreno misto com 4150m2 em telões - amarante
Porto, Amarante, Vila Garcia, Aboim e Chapa
60 000 €
Terreno para Construção de 2 Moradias em Pedrouços
Porto, Maia, Pedrouços
290 000 €
Terreno para Construção de Moradia de 3 frentes em Pedrouços
Porto, Maia, Pedrouços
90 000 €
Terreno para Construção de Moradia de 2 frentes em Pedrouços
Porto, Maia, Pedrouços
80 000 €
Terreno em guardal, vilar do paraíso
Porto, Vila Nova de Gaia, Gulpilhares e Valadares
500 000 €
Terreno para Construção de Moradia de 3 frentes em Pedrouços
Porto, Maia, Pedrouços
100 000 €
Proj. aprov. 7 apart.- vistas de rio-massarelos-porto
Porto, Porto, Cedofeita, Santo Ildefonso, Sé, Miragaia, São Nicolau e Vitória
625 000 €
Partilha o imóvel: Terreno Urbano
Partilha este imóvel nas tuas redes sociais ou envia diretamente para o email dos teus amigos.
Partilhar por email
Adicione uma nota ao imóvel!
Só você é que vê as notas que adiciona. Os imóveis com notas ficam nos favoritos para os poder consultar mais tarde.
Excluíste o anúncio:
Terreno Urbano