Pesquisar perto de mim
A aguardar a sua pesquisa
Voltar
Terreno Seixas vista rio
Terreno Seixas vista rio
Terreno Seixas vista rio
Terreno Seixas vista rio
Ver galeria (14)
Ver galeria (14)
Seguir
Partilhar

Terreno Seixas vista rio

Viana do Castelo, Caminha, Seixas Ver no mapa
220 000 €
0 Quartos
0 WC's
Certificação Energética: N/D

Descrição do anúncio

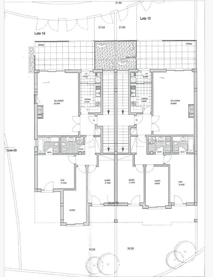
Lotes de terreno para construção com vista rio

Este valor engloba oito lotes, dos quais dois destinam-se a 10 casas: quatro casas geminadas e os restantes seis são destinados a casas individuais geminadas de três mais três).
O loteamento encontra-se devidamente aprovado, pronto a ser construído e comercializado 
Possibilidade de construção de moradias nos lotes:
 - as casas geminadas individuais poderão ter a área de garagem de 75.00 mt2 e 168.00 mt2 de habitação, distribuídas por três pisos, cujo valor por lote esta proposto em 25000.00 € cada;
- as quatro casas geminadas 2+2 com desenvolvimento vertical tem 60.00 mt2 para garagem e 93.00 para habitação sendo que as do 2º andar tem um aproveitamento de sótão 32.00 mt2, distribuídas por quatro pisos, cujo custo esta proposto em 40000.00 € para cada lote de duas casas.
As infraestruturas do loteamento estão praticamente executadas faltando apenas algumas pequenas execuções e correções no executado.
Tem excelentes acessos à A 28 , e Nacional 13
Fica a 3 km de Caminha, 30 km de Viana Do Castelo e quatro da fronteira com a Galiza por Vila Nova de Cerveira.
Possibilidade de compra dos lotes individualmente
 

Características Gerais

  • Acesso com Estrada
  • Terreno Urbano

Galeria do imóvel

Terreno Seixas vista rio
Terreno Seixas vista rio
Terreno Seixas vista rio
Terreno Seixas vista rio
Terreno Seixas vista rio
Terreno Seixas vista rio

Localização do imóvel

Viana do Castelo, Caminha, Seixas

Referência do anúncio: R21015. Última atualização: 19 novembro 2025.

Relatório de preços praticados nos últimos 8 meses

Viana do Castelo, Caminha, Seixas

Simule um Crédito Habitação

Os dados apresentados são meramente indicativos. Condições gerais
Seguir
Partilhar
PINTO LEITE & MACHADO VAZ - MEDIAÇÃO IMOBILIÁRIA, LDA
AMI 19489
351 ...
Chamada para a rede fixa nacional
Mostrar número
Nome
Email
Contacto
Formato inválido
Agende uma visita
Referência do anúncio: R21015.
Última atualização: 19 novembro 2025.
Contactar
Veja também
Anúncios na mesma zona
Terreno para venda
Viana do Castelo, Ponte de Lima, Feitosa
92 500 €
Terreno à venda em ponte de lima com cerca de 10.100 m²
Viana do Castelo, Viana do Castelo, Viana do Castelo (Santa Maria Maior e Monserrate) e Meadela
125 000 €
Terreno Rio Frio
Viana do Castelo, Arcos de Valdevez, Rio Frio
42 000 €
Terreno para venda
Viana do Castelo, Viana do Castelo, Lanheses
90 000 €
terreno
Viana do Castelo, Vila Nova de Cerveira, Candemil e Gondar
37 500 €
Terreno para venda
Viana do Castelo, Ponte da Barca, Ponte da Barca, Vila Nova de Muía e Paço Vedro de Magalhães
65 000 €
Terreno Construção; Campos, Vila Nova de Cerveira; Investimento; Moradias Geminadas
Viana do Castelo, Vila Nova de Cerveira, Campos e Vila Meã
127 500 €
Terreno para construção
Viana do Castelo, Ponte da Barca, Vade (São Tomé)
59 000 €
Terreno rústico de 4.900m2 e ruína, Rubiães, em Paredes de Coura. Portugal, Minho, Paredes de Coura.
Viana do Castelo, Paredes de Coura, Paredes de Coura e Resende
140 000 €
Terreno para venda
Viana do Castelo, Arcos de Valdevez, Paçô
47 500 €
Partilha o imóvel: Terreno Seixas vista rio
Partilha este imóvel nas tuas redes sociais ou envia diretamente para o email dos teus amigos.
Partilhar por email
Adicione uma nota ao imóvel!
Só você é que vê as notas que adiciona. Os imóveis com notas ficam nos favoritos para os poder consultar mais tarde.
Excluíste o anúncio:
Terreno Seixas vista rio