Pesquisar perto de mim
A aguardar a sua pesquisa
Voltar
Terreno Rústico  Venda em Baguim do Monte (Rio Tinto),Gondomar
Terreno Rústico  Venda em Baguim do Monte (Rio Tinto),Gondomar
Terreno Rústico  Venda em Baguim do Monte (Rio Tinto),Gondomar
Ver galeria (3)
Ver galeria (3)
Seguir
Partilhar

Terreno Rústico Venda em Baguim do Monte (Rio Tinto),Gondomar

Porto, Gondomar, Baguim do Monte (Rio Tinto) Ver no mapa
500 000 €
0 Quartos
0 WC's
Certificação Energética: N/D
Estado: Por Recuperar

Descrição do anúncio

Terreno rústico com 1844m2, situado em baguim do monte, à beira da praceta do cemitério, mais conhecida como a bouça dos pardieiros.

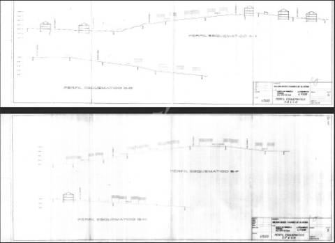
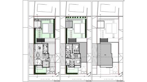
Imóvel com uma capacidade construtiva, zona urbana tipo I, com 12m de altura ou 3 pisos, ou a altura de uma fachada devidamente estabelecida na frente urbana.

As obras deverão apresentar um projeto de arranjos exteriores, com maior detalhe e via de acesso à garagem.

O terreno encontra-se sem qualquer construção e é de tipografia acidentada irregular.

Pretende-se a construção de um edifício de habitação multifamiliar, com cave, rés-do-chão e 3 andares, com 12 fogos.
 

Características Gerais

  • Acesso com Estrada
  • Não edificável

Galeria do imóvel

Terreno Rústico  Venda em Baguim do Monte (Rio Tinto),Gondomar
Terreno Rústico  Venda em Baguim do Monte (Rio Tinto),Gondomar
Terreno Rústico  Venda em Baguim do Monte (Rio Tinto),Gondomar

Localização do imóvel

Porto, Gondomar, Baguim do Monte (Rio Tinto)

Referência do anúncio: RT/02463. Última atualização: 27 setembro 2023.

Relatório de preços praticados nos últimos 8 meses

Porto, Gondomar, Baguim do Monte (Rio Tinto)

Simule um Crédito Habitação

Os dados apresentados são meramente indicativos. Condições gerais
Seguir
Partilhar
Chave Nova - Mediação Imobiliária, Lda
AMI 7142
223 ...
Chamada para a rede fixa nacional
Mostrar número
Nome
Email
Contacto
Formato inválido
Agende uma visita
Referência do anúncio: RT/02463.
Última atualização: 27 setembro 2023.
Contactar
Veja também
Anúncios na mesma zona
Lote de terreno com 425 m
Porto, Vila Nova de Gaia, Pedroso e Seixezelo
105 000 €
Terreno Para Construção Venda em Monte Córdova,Santo Tirso
Porto, Santo Tirso, Monte Córdova
50 000 €
Fábrica com Terrenos em Crestuma
Porto, Vila Nova de Gaia, Sandim, Olival, Lever e Crestuma
7 500 000 €
? terreno à venda em pedroso – vila nova de gaia ? área total: 660 m²
Porto, Vila Nova de Gaia, Pedroso e Seixezelo
88 000 €
Terreno Para Construção Venda em Monte Córdova,Santo Tirso
Porto, Santo Tirso, Monte Córdova
50 000 €
Terreno para construção em altura
Porto, Maia, Pedrouços
650 000 €
Terreno com 3 artigos e área total de 3000m2 com PIP aprovado em Pedroso!!
Porto, Vila Nova de Gaia, Pedroso e Seixezelo
750 000 €
Terreno Para Construção Venda em Póvoa de Varzim, Beiriz e Argivai,Póvoa de Varzim
Porto, Póvoa de Varzim, Póvoa de Varzim, Beiriz e Argivai
199 000 €
Terreno para construção em Paço de Sousa
Porto, Penafiel, Paço de Sousa
40 000 €
Lote de Terreno Venda em Grijó e Sermonde,Vila Nova de Gaia
Porto, Vila Nova de Gaia, Grijó e Sermonde
120 000 €
Partilha o imóvel: Terreno Rústico Venda em Baguim do Monte (Rio Tinto),Gondomar
Partilha este imóvel nas tuas redes sociais ou envia diretamente para o email dos teus amigos.
Partilhar por email
Adicione uma nota ao imóvel!
Só você é que vê as notas que adiciona. Os imóveis com notas ficam nos favoritos para os poder consultar mais tarde.
Excluíste o anúncio:
Terreno Rústico Venda em Baguim do Monte (Rio Tinto),Gondomar