Pesquisar perto de mim
A aguardar a sua pesquisa
Voltar
Terreno  para vender em Nelas
Terreno  para vender em Nelas
Terreno  para vender em Nelas
Terreno  para vender em Nelas
Ver galeria (11)
Ver galeria (11)
Seguir
Partilhar

Terreno para vender em Nelas

Viseu, Nelas, Nelas Ver no mapa
1 €
0 Quartos
0 WC's
Certificação Energética: N/D

Descrição do anúncio

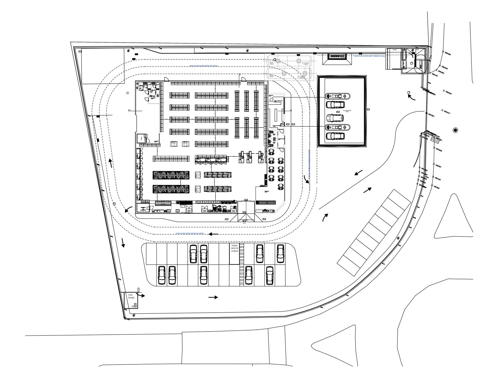
Terreno com 4 700 m² para vender – Nelas

Esta propriedade é completamente plana e vedada com PIP de bombas de combustível e supermercado.
Com localização estratégica com entrada direta da retunda, situa-se a apenas 5 min. (3Km) do centro de Nelas e de Canas de Senhorim, junto à Borgstena.

O espaço fechado com 90m2 encontra-se actualmente arrendado.

Caso necessite de mais espaço tem a possibilidade de arrendar mais terrenos contiguos a este, podendo susufruir de uma área maxima de 14 900m2 .

Uma excelente oportunidade de investimento, ideal para quem procura desenvolver um projeto com grande potencial de rentabilidade.

Características Gerais

  • Acesso com Estrada
  • Não edificável

Galeria do imóvel

Terreno  para vender em Nelas
Terreno  para vender em Nelas
Terreno  para vender em Nelas
Terreno  para vender em Nelas
Terreno  para vender em Nelas
Terreno  para vender em Nelas

Localização do imóvel

Viseu, Nelas, Nelas

Referência do anúncio: #T_N022-A. Última atualização: 17 março 2026.

Relatório de preços praticados nos últimos 8 meses

Viseu, Nelas, Nelas

Simule um Crédito Habitação

Os dados apresentados são meramente indicativos. Condições gerais
Seguir
Partilhar
PJAFERREIRA, UNIPESSOAL LDA
AMI 15113
232 ...
Chamada para a rede fixa nacional
Mostrar número
Nome
Email
Contacto
Formato inválido
Agende uma visita
Referência do anúncio: #T_N022-A.
Última atualização: 17 março 2026.
Contactar
Veja também
Anúncios na mesma zona
Terreno Para Construção Venda em Campo,Viseu
Viseu, Viseu, Campo
47 500 €
Terreno Rústico Venda em Santos Evos,Viseu
Viseu, Viseu, Santos Evos
10 000 €
Terreno Para Construção Venda em Repeses e São Salvador,Viseu
Viseu, Viseu, Repeses e São Salvador
60 000 €
Terreno Para Construção Venda em Rio de Loba,Viseu
Viseu, Viseu, Rio de Loba
490 000 €
Lote de Terreno Venda em São Vicente de Lafões,Oliveira de Frades
Viseu, Oliveira de Frades, São Vicente de Lafões
124 500 €
Terreno Venda em Rio de Loba,Viseu
Viseu, Viseu, Rio de Loba
39 500 €
Terreno Para Construção Venda em Cavernães,Viseu
Viseu, Viseu, Cavernães
65 000 €
Terreno Para Construção Venda em Rio de Loba,Viseu
Viseu, Viseu, Rio de Loba
1 190 000 €
Lote de Terreno Venda em Rio de Loba,Viseu
Viseu, Viseu, Rio de Loba
65 000 €
Terreno Para Construção Venda em Santos Evos,Viseu
Viseu, Viseu, Santos Evos
62 000 €
Partilha o imóvel: Terreno para vender em Nelas
Partilha este imóvel nas tuas redes sociais ou envia diretamente para o email dos teus amigos.
Partilhar por email
Adicione uma nota ao imóvel!
Só você é que vê as notas que adiciona. Os imóveis com notas ficam nos favoritos para os poder consultar mais tarde.
Excluíste o anúncio:
Terreno para vender em Nelas