Pesquisar perto de mim
A aguardar a sua pesquisa
Voltar
Terreno  para venda
Terreno  para venda
Terreno  para venda
Terreno  para venda
Ver galeria (13)
Ver galeria (13)
Seguir
Partilhar

Terreno para venda

Braga, Vieira do Minho, Vieira do Minho Ver no mapa
39 900 €
0 Quartos
0 WC's
Certificação Energética: N/D

Descrição do anúncio

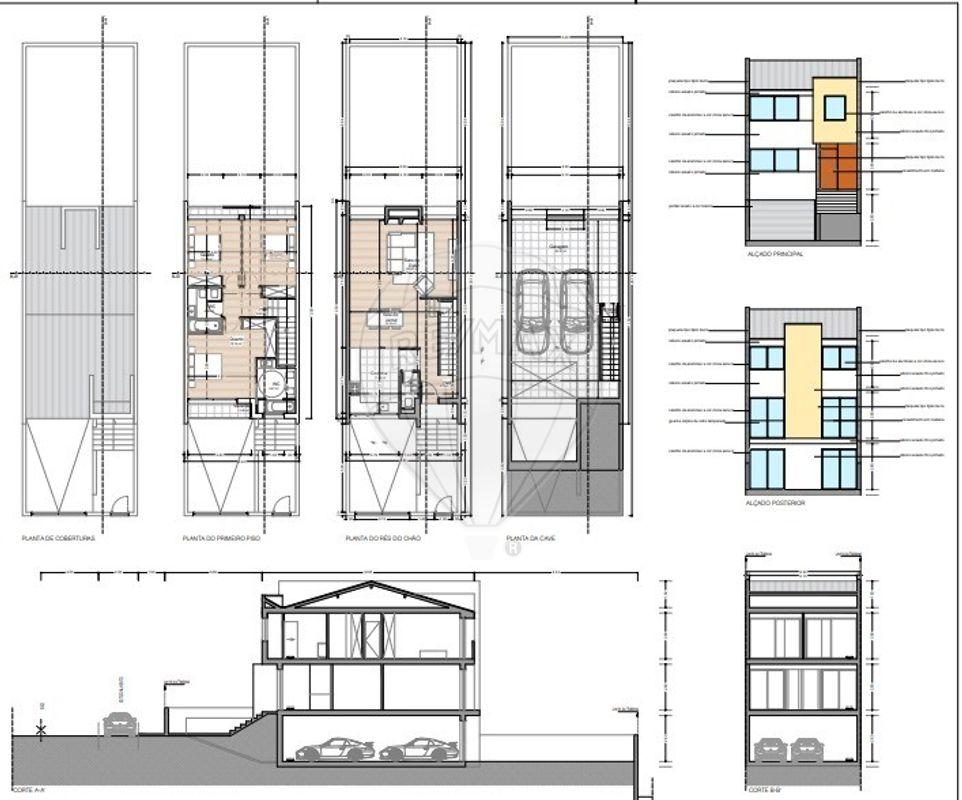
LOTE DE TERRENO URNANO, CENTRO DE VIEIRA DO MINHO    Lote de Terreno urbano n.º 22, para habitação unifamiliar em banda, com projetos e plantas atualizadas e com 174 m2 de área total, 78 m2 de área de implantação e 221 m2 de área bruta de construção subdivididos por: cave, rés do chão e 1º andar.   Localizado no lugar da Cuqueira, numa zona sossegada e muito privada, com excelentes acessos e muito próximo do centro de Vieira do Minho (2 minutos de carro).  Aguardo o seu contacto para mais esclarecimentos!     Pontos de atração nas redondezas: Albufeira do Ermal: https://youtu.be/ul4dbJDQusM    Já conhece Vieira do Minho?  Então venha descobrir espaços propícios para a prática de desportos aquáticos e para o contacto geral e permanente com a Natureza, nomeadamente: Albufeira do Ermal onde para além do usufruto de águas calmas e amenas, permite também realizar passeios de gaivota/canoa e praticar Teleski aquático – circuito fechado e elétrico puxado a cabo único em Portugal, passeios pela Serra da Cabreira (trilhos pedonais sinalizados, percursos de BTT, cavalos, lagoas naturais e vistas fabulosas de 360º a partir do ponto mais alto da Serra – Talefe).    Visite algumas das nossas sugestões:  Nascente do Rio Ave: https://youtu.be/N9oAI5Bflmw  Baloiço da Serradela: https://youtu.be/AoTyZ1l8Ljc  Castro de Anissó: https://youtu.be/JQys7EaACXc  Nossa Sra da Fé: https://youtu.be/oTCdp2mNxBY  Baloiço de Cantelães: https://youtu.be/9lcXRLRTwQo  Baloiço panorâmico de Eira Vedra: https://youtu.be/j_MbKUcB6fw  Albufeira do Ermal: https://youtu.be/ul4dbJDQusM  Aldeia de Agra: https://youtu.be/9Zf3jHWGZik  Barragem da Caniçada: https://youtu.be/qDcyDIyf06E  Nossa Sra da Lapa:https://youtu.be/aQ0k8RV43Lk  Praia Fluvial de S. Pedro, Rossas: https://youtu.be/TIY5v1cLuy0  Zona de Lazer, Poço das Traves, Ruivães: https://youtu.be/6WEb_Yiu2-U  Praia Fluvial de Rossas: https://youtu.be/yEwveqjBLrs   ;ID RE/MAX: 125901007-248

Características Gerais

  • Acesso com Estrada
  • Não edificável

Galeria do imóvel

Terreno  para venda
Terreno  para venda
Terreno  para venda
Terreno  para venda
Terreno  para venda
Terreno  para venda

Localização do imóvel

Braga, Vieira do Minho, Vieira do Minho

Referência do anúncio: 125901007-248. Última atualização: 12 agosto 2025.

Relatório de preços praticados nos últimos 8 meses

Braga, Vieira do Minho, Vieira do Minho

Simule um Crédito Habitação

Os dados apresentados são meramente indicativos. Condições gerais
Seguir
Partilhar
Grupo Move
AMI 8968
Nome
Email
Contacto
Formato inválido
Agende uma visita
Referência do anúncio: 125901007-248.
Última atualização: 12 agosto 2025.
Contactar
Veja também
Anúncios na mesma zona
Lote de terreno Urbano junto ao centro da cidade de Vizela!
Braga, Vizela, Caldas de Vizela (São Miguel e São João)
120 000 €
Terreno T0 para venda
Braga, Terras de Bouro, Vilar da Veiga
60 000 €
Terreno c/ 4.100 m2 - Pinheiro, Vieira do Minho
Braga, Vieira do Minho, Cantelães
39 000 €
Terreno para construção com 1.960 m² em Regadas, Fafe
Braga, Fafe, Regadas
70 000 €
Terreno Para Construção Venda em Vilarinho das Cambas,Vila Nova de Famalicão
Braga, Vila Nova de Famalicão, Vilarinho das Cambas
400 000 €
Terreno Venda em Carvalhal,Barcelos
Braga, Barcelos, Carvalhal
235 220 €
Terreno para Construção
Braga, Guimarães, Airão Santa Maria, Airão São João e Vermil
70 000 €
Terreno 6.500m² - Arnoso
Braga, Vila Nova de Famalicão, Arnoso (Santa Maria e Santa Eulália) e Sezures
370 000 €
Terreno agrícola em Dossãos, Vila Verde
Braga, Barcelos, Silva
19 900 €
Terreno para Construção em Bairro, Vila Nova de Famalicão – Excelente Oportunidade
Braga, Vila Nova de Famalicão, Bairro
79 000 €
Partilha o imóvel: Terreno para venda
Partilha este imóvel nas tuas redes sociais ou envia diretamente para o email dos teus amigos.
Partilhar por email
Adicione uma nota ao imóvel!
Só você é que vê as notas que adiciona. Os imóveis com notas ficam nos favoritos para os poder consultar mais tarde.
Excluíste o anúncio:
Terreno para venda