Pesquisar perto de mim
A aguardar a sua pesquisa
Voltar
Terreno Para Construção  Venda em Santa Maria da Feira, Travanca, Sanfins e Espargo,Santa Maria da Feira
Terreno Para Construção  Venda em Santa Maria da Feira, Travanca, Sanfins e Espargo,Santa Maria da Feira
Terreno Para Construção  Venda em Santa Maria da Feira, Travanca, Sanfins e Espargo,Santa Maria da Feira
Terreno Para Construção  Venda em Santa Maria da Feira, Travanca, Sanfins e Espargo,Santa Maria da Feira
Ver galeria (9)
Ver galeria (9)
Seguir
Partilhar

Terreno Para Construção Venda em Santa Maria da Feira, Travanca, Sanfins e Espargo,Santa Maria da Feira

Aveiro, Santa Maria da Feira, Santa Maria da Feira, Travanca, Sanfins e Espargo Ver no mapa
79 000 €
0 Quartos
0 WC's
Certificação Energética: N/D

Descrição do anúncio

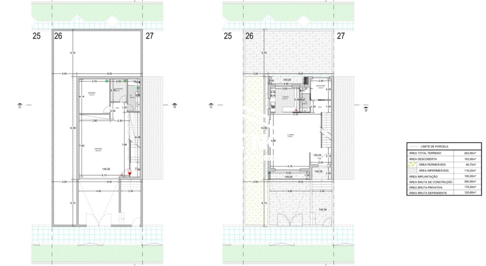
Lote de terreno, com cerca de 263m2, com projeto aprovado para construção de moradia geminada com três pisos (-1, rés-do-chão e 1º piso), com área de implantação de 100m2 e área bruta de construção de 300m2.

O lote localiza-se na zona dos Passionistas, em zona privilegiada de Santa Maria da Feira, com exposição solar Noroeste, e com duas frentes para a rua. 

A zona dos Passionistas é famosa pela harmonia entre os excecionais acessos à A1 e a proximidade a todo o tipo de serviços e comércio ( Hospital, Mercadona, Lidl, padarias...)

Somos uma empresa de Mediação Imobiliária, com larga experiência no mercado. Somos constituídos por 14 escritórios, em que temos vindo a crescer no mercado desde 2000.

Sendo a seriedade e honestidade o nosso lema, estamos sempre à distancia de um “click”, para
que possa visitar os nossos imóveis o mais comodamente possível.

A nossa maior referência, são os nossos clientes, a sua satisfação, é o nosso objetivo primordial.

O nosso empenho e esforço traduz-se em sólidos conhecimentos, utilizados na análise de
mercado de todo o tipo de imóveis, para assim entender os desejos, motivações e necessidades
de todos os nossos clientes.

Agende a sua visita!
Chave Nova de Santa Maria da Feira

 

Características Gerais

  • Acesso com Estrada
  • Terreno Urbano

Galeria do imóvel

Terreno Para Construção  Venda em Santa Maria da Feira, Travanca, Sanfins e Espargo,Santa Maria da Feira
Terreno Para Construção  Venda em Santa Maria da Feira, Travanca, Sanfins e Espargo,Santa Maria da Feira
Terreno Para Construção  Venda em Santa Maria da Feira, Travanca, Sanfins e Espargo,Santa Maria da Feira
Terreno Para Construção  Venda em Santa Maria da Feira, Travanca, Sanfins e Espargo,Santa Maria da Feira
Terreno Para Construção  Venda em Santa Maria da Feira, Travanca, Sanfins e Espargo,Santa Maria da Feira
Terreno Para Construção  Venda em Santa Maria da Feira, Travanca, Sanfins e Espargo,Santa Maria da Feira

Localização do imóvel

Aveiro, Santa Maria da Feira, Santa Maria da Feira, Travanca, Sanfins e Espargo

Referência do anúncio: SMF/02688. Última atualização: 08 julho 2024.

Relatório de preços praticados nos últimos 8 meses

Aveiro, Santa Maria da Feira, Santa Maria da Feira, Travanca, Sanfins e Espargo

Simule um Crédito Habitação

Os dados apresentados são meramente indicativos. Condições gerais
Seguir
Partilhar
Chave Nova - Mediação Imobiliária, Lda
AMI 7142
223 ...
Chamada para a rede fixa nacional
Mostrar número
Nome
Email
Contacto
Formato inválido
Agende uma visita
Referência do anúncio: SMF/02688.
Última atualização: 08 julho 2024.
Contactar
Veja também
Anúncios na mesma zona
Terreno Para Construção Venda em Oliveira do Bairro,Oliveira do Bairro
Aveiro, Oliveira do Bairro, Oliveira do Bairro
69 000 €
Lote de Terreno Venda em Oliveirinha,Aveiro
Aveiro, Aveiro, Oliveirinha
50 500 €
Terreno Para Construção Venda em Vila de Cucujães,Oliveira de Azeméis
Aveiro, Oliveira de Azeméis, Vila de Cucujães
87 000 €
Terreno em Roçadas, Santa Maria da Feira
Aveiro, Santa Maria da Feira, Argoncilhe
20 000 €
​​​​​​​Lote de Terreno em Sobrado - Castelo de Paiva
Aveiro, Castelo de Paiva, Sobrado e Bairros
57 000 €
Terreno Rústico - Urbanizável
Aveiro, Oliveira de Azeméis, Pinheiro da Bemposta, Travanca e Palmaz
235 000 €
Terreno Rústico Venda em São Miguel do Mato,Arouca
Aveiro, Arouca, São Miguel do Mato
130 000 €
Terreno Urbano, Lobão
Aveiro, Santa Maria da Feira, Lobão, Gião, Louredo e Guisande
43 500 €
Terreno para Contrução de moradia Térrea nos Moitinhos, Ilhavo.
Aveiro, Ílhavo, Ílhavo (São Salvador)
38 500 €
Terreno Para Construção Venda em Aradas,Aveiro
Aveiro, Aveiro, Aradas
135 000 €
Partilha o imóvel: Terreno Para Construção Venda em Santa Maria da Feira, Travanca, Sanfins e Espargo,Santa Maria da Feira
Partilha este imóvel nas tuas redes sociais ou envia diretamente para o email dos teus amigos.
Partilhar por email
Adicione uma nota ao imóvel!
Só você é que vê as notas que adiciona. Os imóveis com notas ficam nos favoritos para os poder consultar mais tarde.
Excluíste o anúncio:
Terreno Para Construção Venda em Santa Maria da Feira, Travanca, Sanfins e Espargo,Santa Maria da Feira