Pesquisar perto de mim
A aguardar a sua pesquisa
Voltar
Terreno Para Construção  Venda em Repeses e São Salvador,Viseu
Terreno Para Construção  Venda em Repeses e São Salvador,Viseu
Terreno Para Construção  Venda em Repeses e São Salvador,Viseu
Terreno Para Construção  Venda em Repeses e São Salvador,Viseu
Ver galeria (11)
Ver galeria (11)
Seguir
Partilhar

Terreno Para Construção Venda em Repeses e São Salvador,Viseu

Viseu, Viseu, Repeses e São Salvador Ver no mapa
96 500 €
0 Quartos
0 WC's
Certificação Energética: N/D
Estado: Usado

Descrição do anúncio

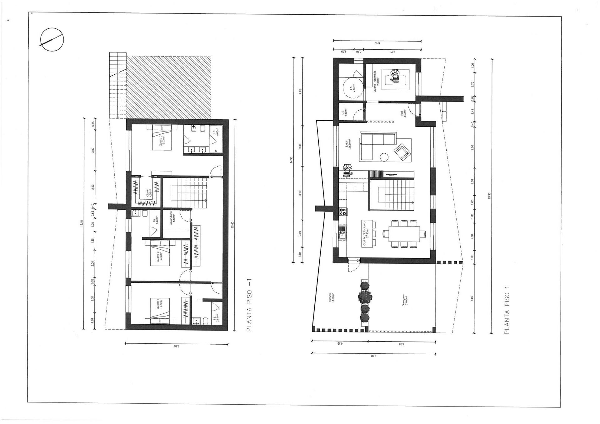
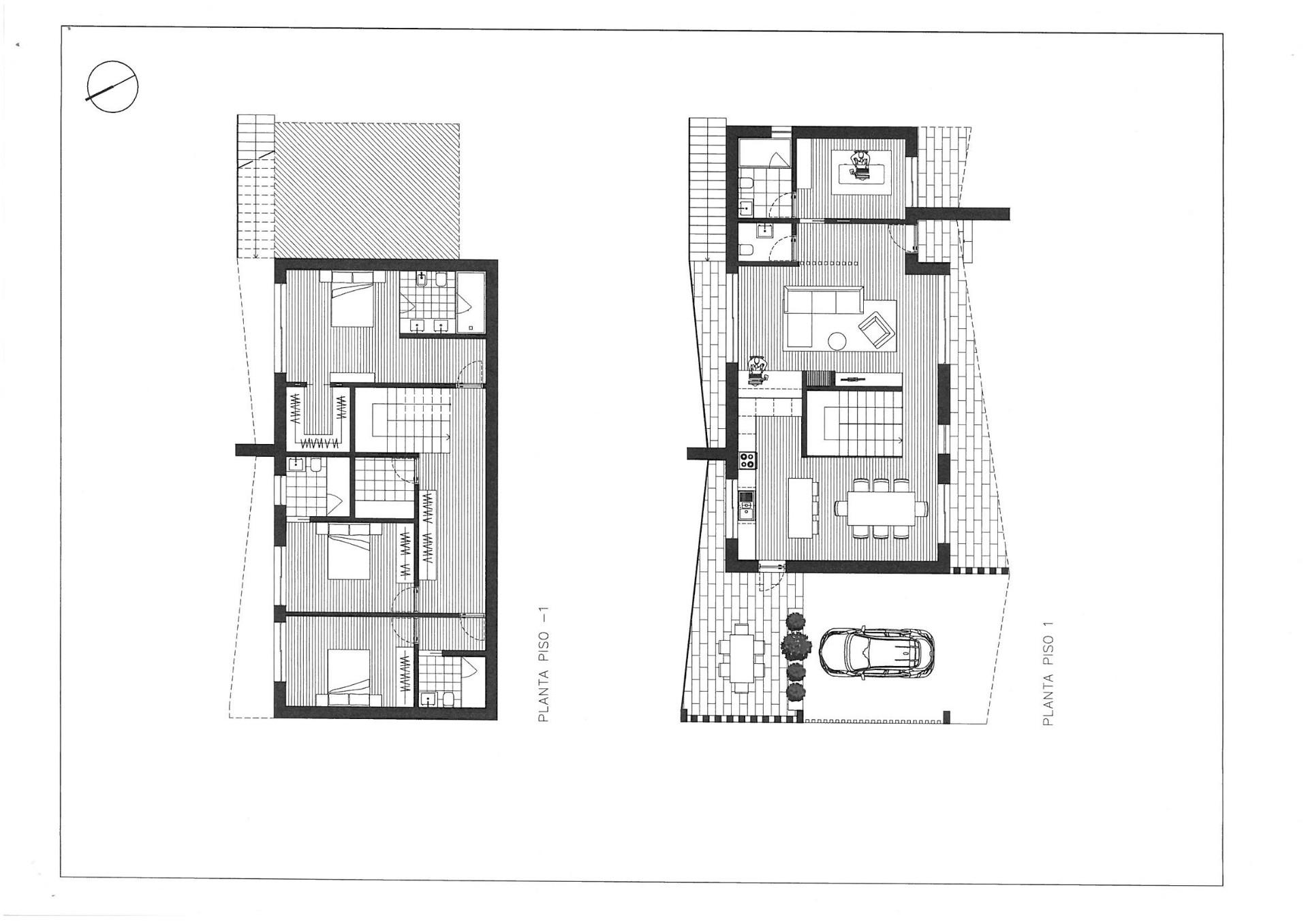
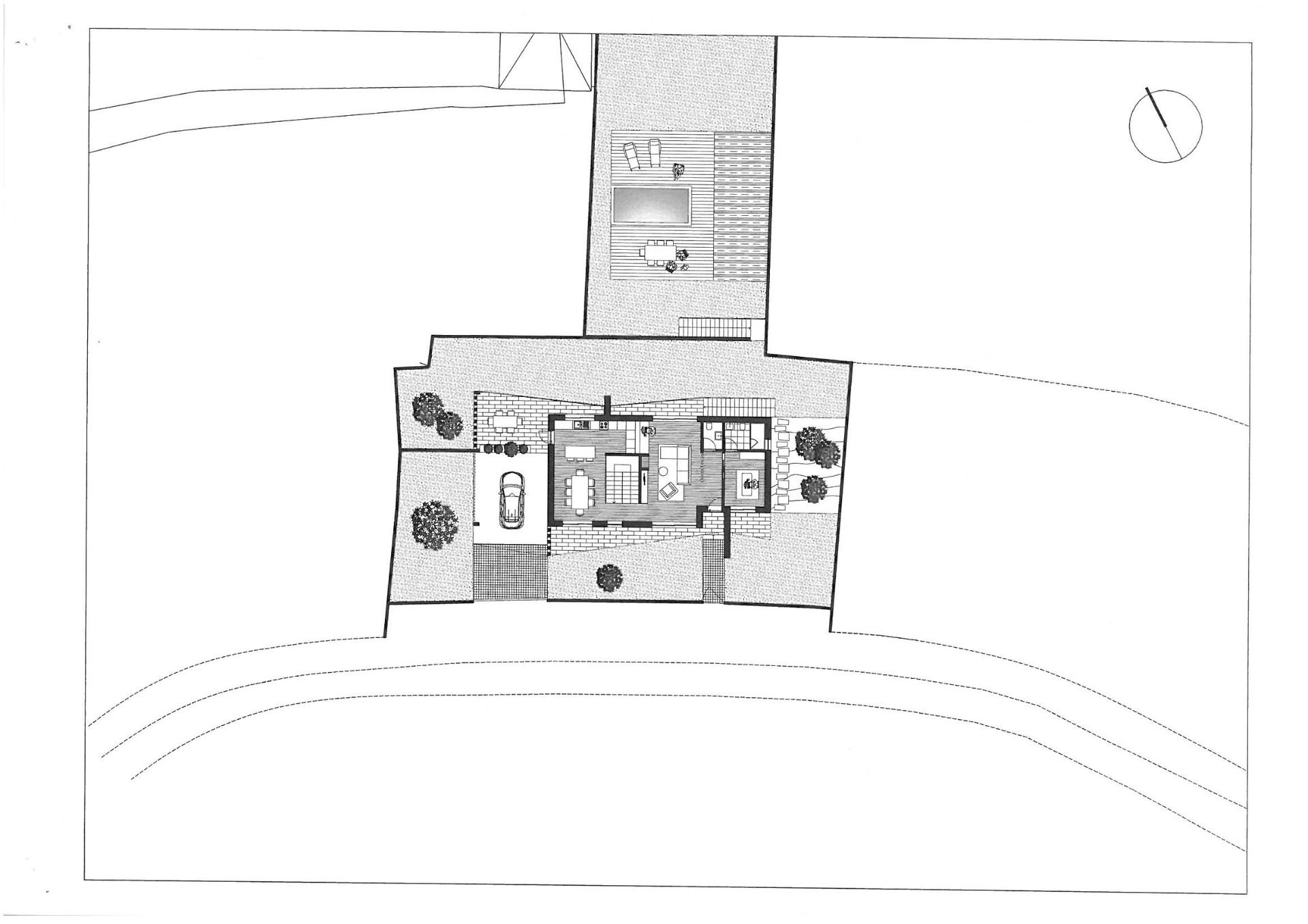
Terreno para venda com projeto de arquitetura já aprovado em Viseu.
Com 1208m2, e 30 de frente.
Viabilidade de construção para uma moradia isolada T3+escritorio, com implantação de 115.50m2 x 2 pisos, com área de construção de 250.05m2.
Excelente exposição solar, a 5 min do centro.
CONSULTE OS NOSSOS IMÓVEIS EM www.anadvise.com

Características Gerais

  • Acesso com Estrada
  • Terreno Urbano

Galeria do imóvel

Terreno Para Construção  Venda em Repeses e São Salvador,Viseu
Terreno Para Construção  Venda em Repeses e São Salvador,Viseu
Terreno Para Construção  Venda em Repeses e São Salvador,Viseu
Terreno Para Construção  Venda em Repeses e São Salvador,Viseu
Terreno Para Construção  Venda em Repeses e São Salvador,Viseu
Terreno Para Construção  Venda em Repeses e São Salvador,Viseu

Localização do imóvel

Viseu, Viseu, Repeses e São Salvador

Referência do anúncio: 5453. Última atualização: 08 maio 2025.

Relatório de preços praticados nos últimos 8 meses

Viseu, Viseu, Repeses e São Salvador

Simule um Crédito Habitação

Os dados apresentados são meramente indicativos. Condições gerais
Seguir
Partilhar
Anabela Sousa
AMI 6026
232 ...
Chamada para a rede fixa nacional
Mostrar número
Nome
Email
Contacto
Formato inválido
Agende uma visita
Referência do anúncio: 5453.
Última atualização: 08 maio 2025.
Contactar
Veja também
Anúncios na mesma zona
Terreno Para Construção Venda em Mangualde, Mesquitela e Cunha Alta,Mangualde
Viseu, Mangualde, Mangualde, Mesquitela e Cunha Alta
74 000 €
Lote de Terreno Venda em Mangualde, Mesquitela e Cunha Alta,Mangualde
Viseu, Mangualde, Mangualde, Mesquitela e Cunha Alta
89 000 €
Terreno Para Construção Venda em Mangualde, Mesquitela e Cunha Alta,Mangualde
Viseu, Mangualde, Mangualde, Mesquitela e Cunha Alta
135 000 €
Lote de Terreno Venda em Mangualde, Mesquitela e Cunha Alta,Mangualde
Viseu, Mangualde, Mangualde, Mesquitela e Cunha Alta
89 000 €
Terreno Para Construção Venda em Rio de Loba,Viseu
Viseu, Viseu, Rio de Loba
220 000 €
Terreno à venda em Vilar Seco
Viseu, Nelas, Vilar Seco
42 000 €
Lote de Terreno Venda em Mangualde, Mesquitela e Cunha Alta,Mangualde
Viseu, Mangualde, Mangualde, Mesquitela e Cunha Alta
59 000 €
Terreno Rústico Venda em Nelas,Nelas
Viseu, Nelas, Nelas
17 000 €
Lote de Terreno Venda em Mangualde, Mesquitela e Cunha Alta,Mangualde
Viseu, Mangualde, Mangualde, Mesquitela e Cunha Alta
59 000 €
Terreno Para Construção Venda em Mangualde, Mesquitela e Cunha Alta,Mangualde
Viseu, Mangualde, Mangualde, Mesquitela e Cunha Alta
34 000 €
Partilha o imóvel: Terreno Para Construção Venda em Repeses e São Salvador,Viseu
Partilha este imóvel nas tuas redes sociais ou envia diretamente para o email dos teus amigos.
Partilhar por email
Adicione uma nota ao imóvel!
Só você é que vê as notas que adiciona. Os imóveis com notas ficam nos favoritos para os poder consultar mais tarde.
Excluíste o anúncio:
Terreno Para Construção Venda em Repeses e São Salvador,Viseu