Pesquisar perto de mim
A aguardar a sua pesquisa
Voltar
Terreno Para Construção  Venda em Ourique,Ourique
Terreno Para Construção  Venda em Ourique,Ourique
Terreno Para Construção  Venda em Ourique,Ourique
Terreno Para Construção  Venda em Ourique,Ourique
Ver galeria (9)
Ver galeria (9)
Seguir
Partilhar

Terreno Para Construção Venda em Ourique,Ourique

Beja, Ourique, Ourique Ver no mapa
46 000 €
0 Quartos
0 WC's
Certificação Energética: N/D
Estado: Usado

Descrição do anúncio

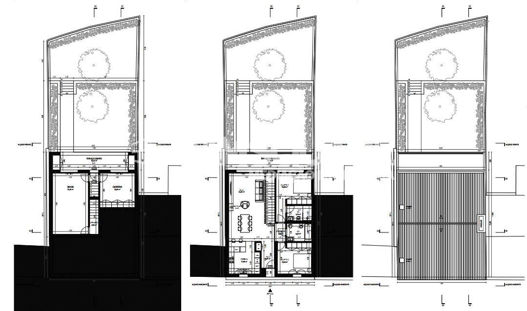
Terreno urbano com projeto de construção já aprovado.

Localizado dentro da vila de Ourique com uma fantástica vista desafogada sobre a paisagem alentejana, onde é possível observar o magnifico pôr-do-sol.

O projeto da casa contempla uma cave, escritório e ginásio.

No rés-do-chão a   cozinha e sala em "openspace", 2 quartos e 2 casas de banho (uma delas ensuite).
A casa foi desenhada de forma a maximizar a exposição solar, com janelas de grandes dimensões em ambos os pisos, tem terraço superior, inferior e quintal.

Casa com frente tipicamente alentejana e parte traseira moderna.

Ourique é uma vila Alentejana que fica a cerca de 1h do Algarve e Costa Alentejana e a 2h de Lisboa, com excelentes acessos (A2 e IC1) e algumas opções de transporte.

Se tiver curiosidade de vir conhecer esta excelente oportunidade, entre em contacto.

Características Gerais

  • Acesso com Estrada
  • Terreno Urbano

Galeria do imóvel

Terreno Para Construção  Venda em Ourique,Ourique
Terreno Para Construção  Venda em Ourique,Ourique
Terreno Para Construção  Venda em Ourique,Ourique
Terreno Para Construção  Venda em Ourique,Ourique
Terreno Para Construção  Venda em Ourique,Ourique
Terreno Para Construção  Venda em Ourique,Ourique

Localização do imóvel

Beja, Ourique, Ourique

Referência do anúncio: 025/23. Última atualização: 11 outubro 2023.

Relatório de preços praticados nos últimos 8 meses

Beja, Ourique, Ourique

Simule um Crédito Habitação

Os dados apresentados são meramente indicativos. Condições gerais
Seguir
Partilhar
SQUARE MMARTINS, LDA Marcelo Martins
AMI 21758
963 ...
Chamada para a rede fixa nacional
Mostrar número
Nome
Email
Contacto
Formato inválido
Agende uma visita
Referência do anúncio: 025/23.
Última atualização: 11 outubro 2023.
Contactar
Veja também
Anúncios na mesma zona
Terreno com projeto para a construção de 3 moradias em castro verde
Beja, Castro Verde, Castro Verde e Casével
90 000 €
Terreno Rústico em Ourique
Beja, Ourique, Ourique
300 000 €
Herdade perto da serra de Serpa. Esta herdade de 60 hectares é abundante em sobreiros e pinheiros, bem como excelentes terrenos para a plantação de medronho.
Beja, Serpa, Serpa (Salvador e Santa Maria)
380 000 €
2 lotes de terreno para construção de moradia
Beja, Castro Verde, Castro Verde e Casével
28 000 €
Terreno rústico de 0,65 hect
Beja, Ferreira do Alentejo, Alfundão e Peroguarda
30 000 €
Moinho Antigo, Baleizao -Beja
Beja, Beja, Baleizão
149 750 €
Terreno rústico/ urbano - vila nova de mil fontes
Beja, Odemira, Vila Nova de Milfontes
34 900 €
Herdade no Alentejo
Beja, Ferreira do Alentejo, Ferreira do Alentejo e Canhestros
5 100 000 €
4
2
Lote de Terreno para Construção - Garvão, Ourique
Beja, Ourique, Garvão e Santa Luzia
37 000 €
Terreno rústico em castanhal, boavista dos pinheiros
Beja, Odemira, Boavista dos Pinheiros
57 500 €
Partilha o imóvel: Terreno Para Construção Venda em Ourique,Ourique
Partilha este imóvel nas tuas redes sociais ou envia diretamente para o email dos teus amigos.
Partilhar por email
Adicione uma nota ao imóvel!
Só você é que vê as notas que adiciona. Os imóveis com notas ficam nos favoritos para os poder consultar mais tarde.
Excluíste o anúncio:
Terreno Para Construção Venda em Ourique,Ourique