Pesquisar perto de mim
A aguardar a sua pesquisa
Voltar
Terreno Para Construção  Venda em Montenegro,Faro
Terreno Para Construção  Venda em Montenegro,Faro
Terreno Para Construção  Venda em Montenegro,Faro
Terreno Para Construção  Venda em Montenegro,Faro
Ver galeria (8)
Ver galeria (8)
Seguir
Partilhar

Terreno Para Construção Venda em Montenegro,Faro

Faro, Faro, Montenegro Ver no mapa
260 000 €
0 Quartos
0 WC's
Certificação Energética: N/D

Descrição do anúncio

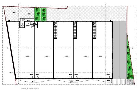
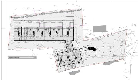
Excelente terreno na zona das Gambelas com área total de 560m2.

Esta propriedade tem viabilidade para construção de imóvel com 336m2 composto por dois pisos e piscina.

O terreno já tem acesso a instalação de eletricidade, água canalizada e saneamento público.

Um fabuloso investimento a apenas 2km do Aeroporto de Faro e a 5km da praia.

A capital do Algarve, Faro, conta com doze séculos de vida, pelo que passear pelas suas ruas é como andar por um livro de história, com tantos marcos e eventos que aqui decorreram.
A maravilhosa Ria Formosa banha esta cidade, proporcionando um equilíbrio perfeito entre o estilo cosmopolita e a calmaria da beira-mar.
Atualmente, Faro é reconhecida como a capital cultural do Algarve, com uma variadíssima agenda cultural que dura o ano todo.

Ótima oportunidade!

Marque já a sua visita connosco!
 

Características Gerais

  • Acesso com Estrada
  • Terreno Urbano

Galeria do imóvel

Terreno Para Construção  Venda em Montenegro,Faro
Terreno Para Construção  Venda em Montenegro,Faro
Terreno Para Construção  Venda em Montenegro,Faro
Terreno Para Construção  Venda em Montenegro,Faro
Terreno Para Construção  Venda em Montenegro,Faro
Terreno Para Construção  Venda em Montenegro,Faro

Localização do imóvel

Faro, Faro, Montenegro

Referência do anúncio: Sort17376. Última atualização: 29 janeiro 2026.

Relatório de preços praticados nos últimos 8 meses

Faro, Faro, Montenegro

Simule um Crédito Habitação

Os dados apresentados são meramente indicativos. Condições gerais
Seguir
Partilhar
Sortami - Mediação Imobiliária, Lda.
AMI 6450
+35 ...
Chamada para a rede fixa nacional
Mostrar número
Nome
Email
Contacto
Formato inválido
Agende uma visita
Referência do anúncio: Sort17376.
Última atualização: 29 janeiro 2026.
Contactar
Veja também
Anúncios na mesma zona
terreno com projeto aprovado para moradia geminada V3com piscina
Faro, Loulé, Querença, Tôr e Benafim
110 000 €
Terreno Rústico com 48.160 m² Natureza, Tranquilidade e Potencial perto da Barragem do Beliche
Faro, Castro Marim, Castro Marim
105 000 €
VENDIDO PELA ' TA MAISON DE RÊVE'
Faro, Loulé, Almancil
Sob consulta
Terreno rustico com casa habitável
Faro, Albufeira, Paderne
149 900 €
Terreno Rústico | 34.000 m² | Corga da Madeira - Junqueira, Castro Marim
Faro, Castro Marim, Azinhal
39 900 €
Terreno para construção de 10 moradias no centro com projeto aprovado - Almancil
Faro, Loulé, Almancil
500 000 €
Terreno com Projeto Aprovado - Loulé | Projeto para Moradia Térrea T3+1
Faro, Loulé, Loulé (São Clemente)
276 000 €
TERRENO RÚSTICO COM 5.640 M2 EM ALCARIAS GRANDES - CASTRO MARIM - ALGARVE
Faro, Castro Marim, Azinhal
36 000 €
Terreno Rústico Venda em Conceição e Estoi,Faro
Faro, São Brás de Alportel, São Brás de Alportel
36 000 €
Negócio Imperdível: Lote em Olhão para Prédio de 20 Apartamentos! Areas entre os 81m2 e 152m2
Faro, Olhão, Quelfes
1 065 000 €
Partilha o imóvel: Terreno Para Construção Venda em Montenegro,Faro
Partilha este imóvel nas tuas redes sociais ou envia diretamente para o email dos teus amigos.
Partilhar por email
Adicione uma nota ao imóvel!
Só você é que vê as notas que adiciona. Os imóveis com notas ficam nos favoritos para os poder consultar mais tarde.
Excluíste o anúncio:
Terreno Para Construção Venda em Montenegro,Faro