Pesquisar perto de mim
A aguardar a sua pesquisa
Voltar
Terreno Para Construção  Venda em Mira,Mira
Terreno Para Construção  Venda em Mira,Mira
Terreno Para Construção  Venda em Mira,Mira
Terreno Para Construção  Venda em Mira,Mira
Ver galeria (16)
Ver galeria (16)
Seguir
Partilhar

Terreno Para Construção Venda em Mira,Mira

Coimbra, Mira, Mira Ver no mapa
250 000 €
0 Quartos
0 WC's
Certificação Energética: N/D
Estado: Novo

Descrição do anúncio

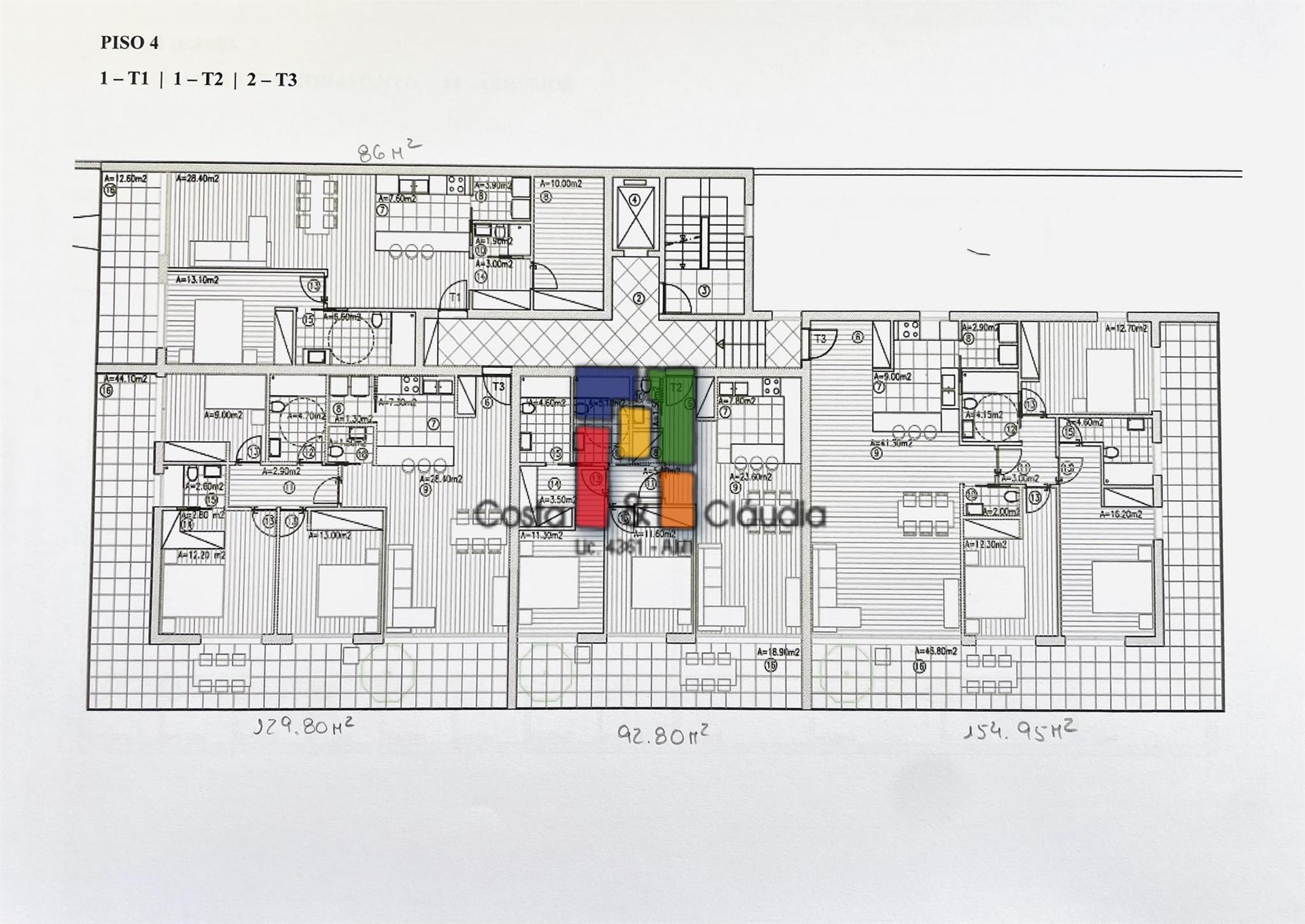
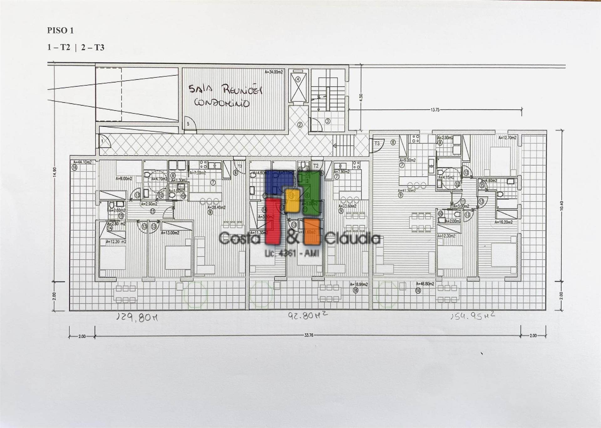
Terreno destinado a construção urbana, com uma frente de 30m e área total de 1001m2, para edifício multi-familiar com 15 frações desde T1 a T3 para habitação.
Constituído por 5 pisos:
Cave: com 14 lugares de estacionamento, 14 arrumos;
Rés-do-chão: sala de reuniões de condomínio, um T2 e dois T3;
Primeiro andar: um T1, um T2 e dois T3;
Segundo andar: um T1, um T2 e dois T3;
Terceiro andar: um T1, um T2 e dois T3
Localizado na rua entre os Bombeiros Voluntários e de Mira e o Centro de saúde de Mira, zona de residências e de tranquilidade. Proximidade com as piscinas municipais, campo de futebol, escolas, serviços e todos os comércios.
Possibilidade de permuta a bens futuros, entre proprietário e comprador.

Características Gerais

  • Acesso com Estrada
  • Terreno Urbano

Galeria do imóvel

Terreno Para Construção  Venda em Mira,Mira
Terreno Para Construção  Venda em Mira,Mira
Terreno Para Construção  Venda em Mira,Mira
Terreno Para Construção  Venda em Mira,Mira
Terreno Para Construção  Venda em Mira,Mira
Terreno Para Construção  Venda em Mira,Mira

Localização do imóvel

Coimbra, Mira, Mira

Referência do anúncio: 51/2024. Última atualização: 29 junho 2024.

Relatório de preços praticados nos últimos 8 meses

Coimbra, Mira, Mira

Simule um Crédito Habitação

Os dados apresentados são meramente indicativos. Condições gerais
Seguir
Partilhar
COSTA & CLÁUDIA - MEDIAÇÃO IMOBILIÁRIA LDA (costaeclaudia)
AMI 4361
231 ...
Chamada para a rede fixa nacional
Mostrar número
Nome
Email
Contacto
Formato inválido
Agende uma visita
Referência do anúncio: 51/2024.
Última atualização: 29 junho 2024.
Contactar
Veja também
Anúncios na mesma zona
Terreno Urbano Venda em Espariz e Sinde,Tábua
Coimbra, Tábua, Espariz e Sinde
25 000 €
Terreno Rústico Venda em Mira,Mira
Coimbra, Mira, Mira
10 000 €
Terreno para desenvolvimento urbano – santo antónio dos olivais, coimbra
Coimbra, Coimbra, Coimbra (Sé Nova, Santa Cruz, Almedina e São Bartolomeu)
12 501 000 €
Terreno para Construção junto a S. Martinho do Bispo.
Coimbra, Coimbra, Taveiro, Ameal e Arzila
122 500 €
Terreno Para Construção Venda em Lagares,Oliveira do Hospital
Coimbra, Oliveira do Hospital, Lagares
29 000 €
Terreno Para Construção Venda em Lagares,Oliveira do Hospital
Coimbra, Oliveira do Hospital, Lagares
38 000 €
Praia de Quiaios. Terreno Com Viabilidade de Construção
Coimbra, Figueira da Foz, Quiaios
30 000 €
Terreno Para Construção T3 Venda em Mira,Mira
Coimbra, Mira, Mira
45 000 €
Terreno p/ Construção - Adémia - Coimbra
Coimbra, Coimbra, Trouxemil e Torre de Vilela
127 500 €
Terreno Urbano Venda em Mira,Mira
Coimbra, Mira, Mira
47 500 €
Partilha o imóvel: Terreno Para Construção Venda em Mira,Mira
Partilha este imóvel nas tuas redes sociais ou envia diretamente para o email dos teus amigos.
Partilhar por email
Adicione uma nota ao imóvel!
Só você é que vê as notas que adiciona. Os imóveis com notas ficam nos favoritos para os poder consultar mais tarde.
Excluíste o anúncio:
Terreno Para Construção Venda em Mira,Mira