Pesquisar perto de mim
A aguardar a sua pesquisa
Voltar
Terreno Para Construção  Venda em Mafamude e Vilar do Paraíso,Vila Nova de Gaia
Terreno Para Construção  Venda em Mafamude e Vilar do Paraíso,Vila Nova de Gaia
Terreno Para Construção  Venda em Mafamude e Vilar do Paraíso,Vila Nova de Gaia
Terreno Para Construção  Venda em Mafamude e Vilar do Paraíso,Vila Nova de Gaia
Ver galeria (5)
Ver galeria (5)
Seguir
Partilhar

Terreno Para Construção Venda em Mafamude e Vilar do Paraíso,Vila Nova de Gaia

Porto, Vila Nova de Gaia, Mafamude e Vilar do Paraíso Ver no mapa
998 000 €
0 Quartos
0 WC's
Certificação Energética: N/D
Estado: Novo

Descrição do anúncio

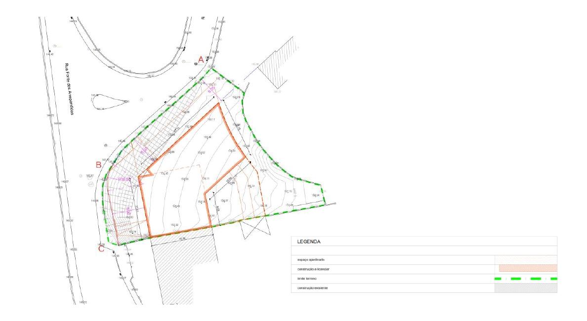
Terreno com PIP aprovado para construção de prédio de 7 andares (sendo um deles para parque de estacionamento), perto da RTP, Vila Nova de Gaia.

O terreno tem capacidade construtiva de  3.687,92 m2, aprovada, em Novembro de 2023, consubstanciada num edifício para habitação multifamiliar, com 6 pisos (piso -1 para estacionamento, piso 1 a 6 para habitação).
 
Pontos de interesse:
Futura estação de metro Manuel Leão;
Todo género de comercio;
Hospital Santos Silva
Rotunda de Santo Oviedo, permitindo o acesso rápido à autoestrada com ligação ao Porto e Lisboa.

Este terreno à venda não é apenas um pedaço de terra, mas sim uma promissora oportunidade de investimento, onde cada centímetro quadrado carrega o potencial de prosperidade e crescimento para quem ousar transformar esta parcela em um empreendimento lucrativo e sustentável.

Características Gerais

  • Acesso com Estrada
  • Terreno Urbano

Galeria do imóvel

Terreno Para Construção  Venda em Mafamude e Vilar do Paraíso,Vila Nova de Gaia
Terreno Para Construção  Venda em Mafamude e Vilar do Paraíso,Vila Nova de Gaia
Terreno Para Construção  Venda em Mafamude e Vilar do Paraíso,Vila Nova de Gaia
Terreno Para Construção  Venda em Mafamude e Vilar do Paraíso,Vila Nova de Gaia
Terreno Para Construção  Venda em Mafamude e Vilar do Paraíso,Vila Nova de Gaia

Localização do imóvel

Porto, Vila Nova de Gaia, Mafamude e Vilar do Paraíso

Referência do anúncio: OD/02321. Última atualização: 04 março 2024.

Relatório de preços praticados nos últimos 8 meses

Porto, Vila Nova de Gaia, Mafamude e Vilar do Paraíso

Simule um Crédito Habitação

Os dados apresentados são meramente indicativos. Condições gerais
Seguir
Partilhar
Chave Nova - Mediação Imobiliária, Lda
AMI 7142
223 ...
Chamada para a rede fixa nacional
Mostrar número
Nome
Email
Contacto
Formato inválido
Agende uma visita
Referência do anúncio: OD/02321.
Última atualização: 04 março 2024.
Contactar
Veja também
Anúncios na mesma zona
Terreno Urbano com 3350 m2 para construção de moradia. Póvoa de Varzim | Nova imobiliária
Porto, Póvoa de Varzim, Póvoa de Varzim, Beiriz e Argivai
270 000 €
Lotes de terreno - s. romão coronado - trofa
Porto, Trofa, Coronado (São Romão e São Mamede)
42 300 €
Terreno 12 ap. ao h. s. joão projeto aprovado porto
Porto, Porto, Cedofeita, Santo Ildefonso, Sé, Miragaia, São Nicolau e Vitória
950 000 €
Loteamento Venda em Gondomar (São Cosme), Valbom e Jovim,Gondomar
Porto, Gondomar, Gondomar (São Cosme), Valbom e Jovim
151 000 €
Terreno para construção em Vilarinho (Santo Tirso)
Porto, Lousada, Lustosa e Barrosas (Santo Estêvão)
55 000 €
Moradias terreno 1.601m2-pip aprov.-candal-gaia
Porto, Vila Nova de Gaia, Mafamude e Vilar do Paraíso
350 000 €
Terreno com 500 m2 em Santa Eulália, Vizela
Porto, Felgueiras, Revinhade
25 000 €
Terreno Para Construção Venda em São Mamede de Infesta e Senhora da Hora,Matosinhos
Porto, Matosinhos, São Mamede de Infesta e Senhora da Hora
850 000 €
Terreno em Francelos perto do Mar para construção de moradia(s)
Porto, Vila Nova de Gaia, Gulpilhares e Valadares
750 000 €
Terreno Agrícola perto do Centro
Porto, Amarante, Amarante (São Gonçalo), Madalena, Cepelos e Gatão
9 135 €
Partilha o imóvel: Terreno Para Construção Venda em Mafamude e Vilar do Paraíso,Vila Nova de Gaia
Partilha este imóvel nas tuas redes sociais ou envia diretamente para o email dos teus amigos.
Partilhar por email
Adicione uma nota ao imóvel!
Só você é que vê as notas que adiciona. Os imóveis com notas ficam nos favoritos para os poder consultar mais tarde.
Excluíste o anúncio:
Terreno Para Construção Venda em Mafamude e Vilar do Paraíso,Vila Nova de Gaia