Pesquisar perto de mim
A aguardar a sua pesquisa
Voltar
Terreno Para Construção  Venda em Loulé (São Sebastião),Loulé
Terreno Para Construção  Venda em Loulé (São Sebastião),Loulé
Terreno Para Construção  Venda em Loulé (São Sebastião),Loulé
Terreno Para Construção  Venda em Loulé (São Sebastião),Loulé
Ver galeria (7)
Ver galeria (7)
Seguir
Partilhar

Terreno Para Construção Venda em Loulé (São Sebastião),Loulé

Faro, Loulé, Loulé (São Sebastião) Ver no mapa
2 990 000 €
0 Quartos
0 WC's
Certificação Energética: N/D

Descrição do anúncio

Excelente projeto de investimento no centro do Algarve.

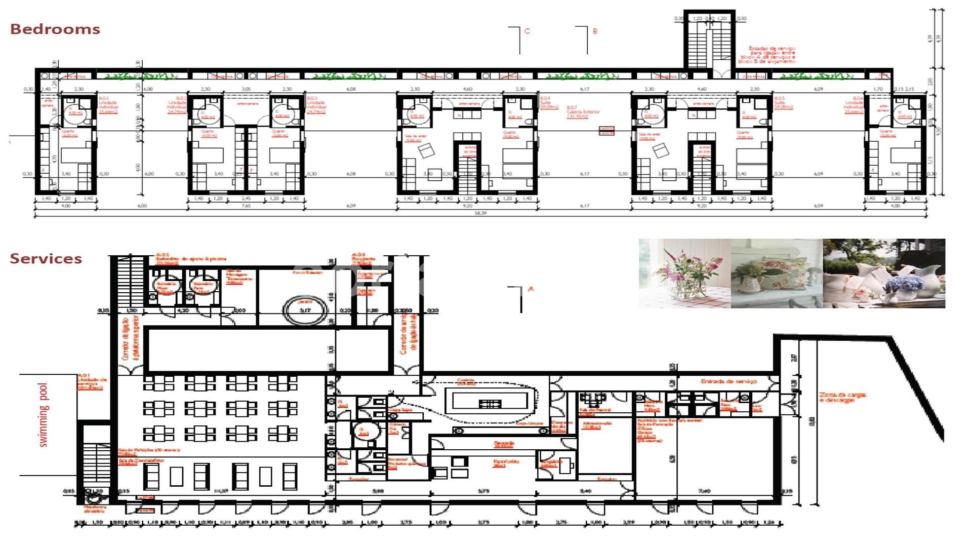
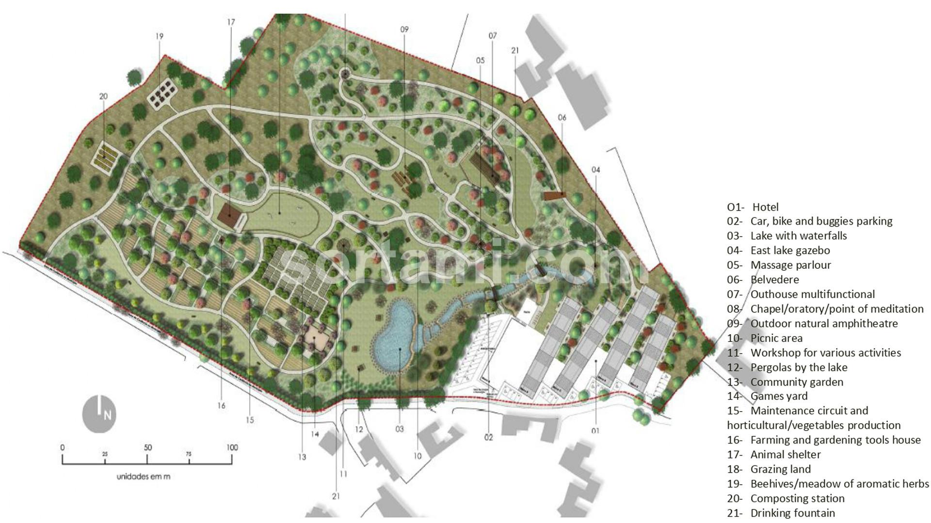
Este terreno perto de Vale Judeu apresenta um projeto aprovado para a construção de um Country Hotel de 5 estrelas especialmente planeado para o turismo sénior.

Tem capacidade para 120 camas, distribuído por 68 acomodações.

A sua localização permite estar a poucos minutos de praias fantásticas, imensas atividades como desportos aquáticos, caminhos para passeios pedonais ou de bicicleta, casinos, marinas, centros comerciais, excelentes restaurantes bares e clubes noturnos, assim como vários dos melhores campos de Golf do Algarve.

Projeto completamente virado para a saúde e bem estar com de 5,7 ha de terreno e uma capacidade de construção de 2000 m2.

De acordo com a expectativas do projeto espera-se um retorno de investimento na ordem dos 21% nos primeiros 5 anos.

Para mais informações por favor contacte.

Características Gerais

  • Acesso com Estrada
  • Terreno Urbano

Galeria do imóvel

Terreno Para Construção  Venda em Loulé (São Sebastião),Loulé
Terreno Para Construção  Venda em Loulé (São Sebastião),Loulé
Terreno Para Construção  Venda em Loulé (São Sebastião),Loulé
Terreno Para Construção  Venda em Loulé (São Sebastião),Loulé
Terreno Para Construção  Venda em Loulé (São Sebastião),Loulé
Terreno Para Construção  Venda em Loulé (São Sebastião),Loulé

Localização do imóvel

Faro, Loulé, Loulé (São Sebastião)

Referência do anúncio: Sort21296. Última atualização: 19 novembro 2024.

Relatório de preços praticados nos últimos 8 meses

Faro, Loulé, Loulé (São Sebastião)

Simule um Crédito Habitação

Os dados apresentados são meramente indicativos. Condições gerais
Seguir
Partilhar
Sortami - Mediação Imobiliária, Lda.
AMI 6450
+35 ...
Chamada para a rede fixa nacional
Mostrar número
Nome
Email
Contacto
Formato inválido
Agende uma visita
Referência do anúncio: Sort21296.
Última atualização: 19 novembro 2024.
Contactar
Veja também
Anúncios na mesma zona
Terreno Misto na Maritenda, Boliqueime
Faro, Loulé, Boliqueime
120 000 €
TERRENO RUSTICO COM 2.000 M2 - JUNTO AO RIO GUADIANA - EM ALCOUTIM - ALGARVE
Faro, Alcoutim, Alcoutim e Pereiro
19 900 €
MORADIA - TURISMO - COM TERRENO DE 6 HECTARES NA ALDEIA DE SÃO MARTINHO - ALCOUTIM - ALGARVE
Faro, Alcoutim, Alcoutim e Pereiro
199 000 €
6
5
Almancil - Terreno com Ruina + Área urbanizável
Faro, Loulé, Almancil
600 000 €
Terreno Rústico Venda em Vaqueiros,Alcoutim
Faro, Alcoutim, Vaqueiros
26 400 €
Terreno Rústico Venda em Loulé (São Clemente),Loulé
Faro, Loulé, Loulé (São Clemente)
28 500 €
Lote de Terreno Urbano para Construção de Prédio em Lagos
Faro, Lagos, Lagos (São Sebastião e Santa Maria)
1 100 000 €
Terreno Rústico Venda em Almancil,Loulé
Faro, Faro, Santa Bárbara de Nexe
45 000 €
Lote de Terreno Urbano para Construção de Prédio em Lagos
Faro, Lagos, Lagos (São Sebastião e Santa Maria)
1 200 000 €
Terreno Para Construção Venda em Boliqueime,Loulé
Faro, Loulé, Boliqueime
365 000 €
Partilha o imóvel: Terreno Para Construção Venda em Loulé (São Sebastião),Loulé
Partilha este imóvel nas tuas redes sociais ou envia diretamente para o email dos teus amigos.
Partilhar por email
Adicione uma nota ao imóvel!
Só você é que vê as notas que adiciona. Os imóveis com notas ficam nos favoritos para os poder consultar mais tarde.
Excluíste o anúncio:
Terreno Para Construção Venda em Loulé (São Sebastião),Loulé