Pesquisar perto de mim
A aguardar a sua pesquisa
Voltar
Terreno Para Construção  Venda em Faro (Sé e São Pedro),Faro
Terreno Para Construção  Venda em Faro (Sé e São Pedro),Faro
Terreno Para Construção  Venda em Faro (Sé e São Pedro),Faro
Terreno Para Construção  Venda em Faro (Sé e São Pedro),Faro
Ver galeria (8)
Ver galeria (8)
Seguir
Partilhar

Terreno Para Construção Venda em Faro (Sé e São Pedro),Faro

Faro, Faro, Faro (Sé e São Pedro) Ver no mapa
450 000 €
0 Quartos
0 WC's
Certificação Energética: N/D

Descrição do anúncio

Terreno com projeto aprovado para a construção de uma moradia unifamiliar de tipologia T3, composta por dois pisos.

 A proposta visa a criação de um espaço habitacional confortável, funcional e bem articulado com o exterior, mantendo uma linguagem arquitetónica contemporânea e integrada no contexto envolvente.

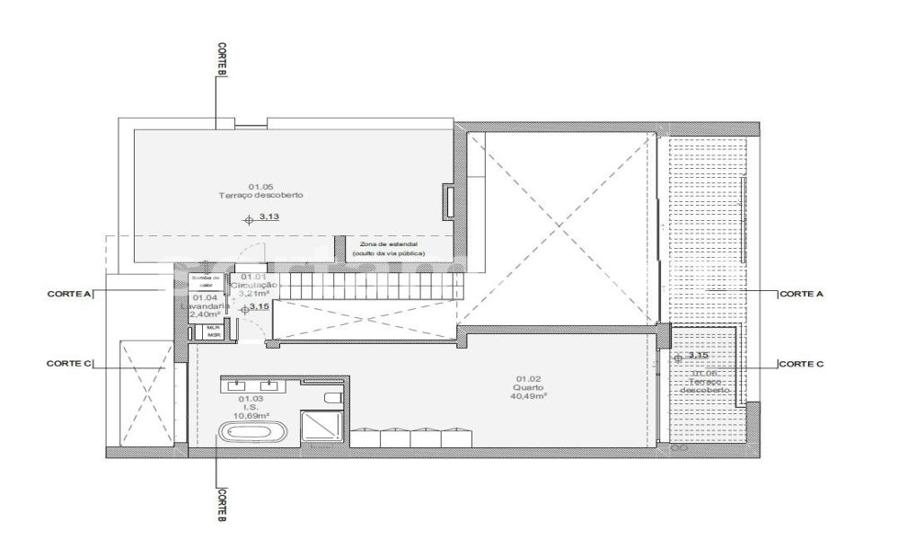
No rés-do-chão será desenvolvido o núcleo principal da habitação, com uma organização que privilegia a convivência e a ligação ao espaço exterior. A entrada será feita através de um pátio coberto que conduz ao hall principal. A partir deste espaço desenvolve-se uma zona de circulação com escadas de acesso ao piso superior, permitindo o acesso a dois quartos, a uma instalação sanitária de uso comum, à cozinha e à sala de estar e de jantar, esta última concebida como um espaço aberto e generoso.

No exterior, contíguo à área social, estará localizada uma zona de barbecue com terraço coberto e uma pérgula descoberta, bem como uma instalação sanitária de apoio à piscina, acessível diretamente pelo exterior. Ainda neste piso, mas com entrada autónoma, será construída uma garagem equipada com uma instalação sanitária de apoio, conferindo funcionalidade e independência ao espaço.

O primeiro andar será destinado à zona mais privativa da habitação, composta por um hall de distribuição, zona de arrumos e lavandaria, e uma suíte principal.

Esta suíte incluirá uma zona de vestir e uma instalação sanitária privativa. Neste piso existirão ainda dois espaços exteriores: um terraço descoberto virado a sul, com zona de estendal oculta e acesso exclusivo a partir do hall, e uma varanda descoberta com pérgula, acessível apenas a partir do quarto, proporcionando um espaço de descanso resguardado e agradável.

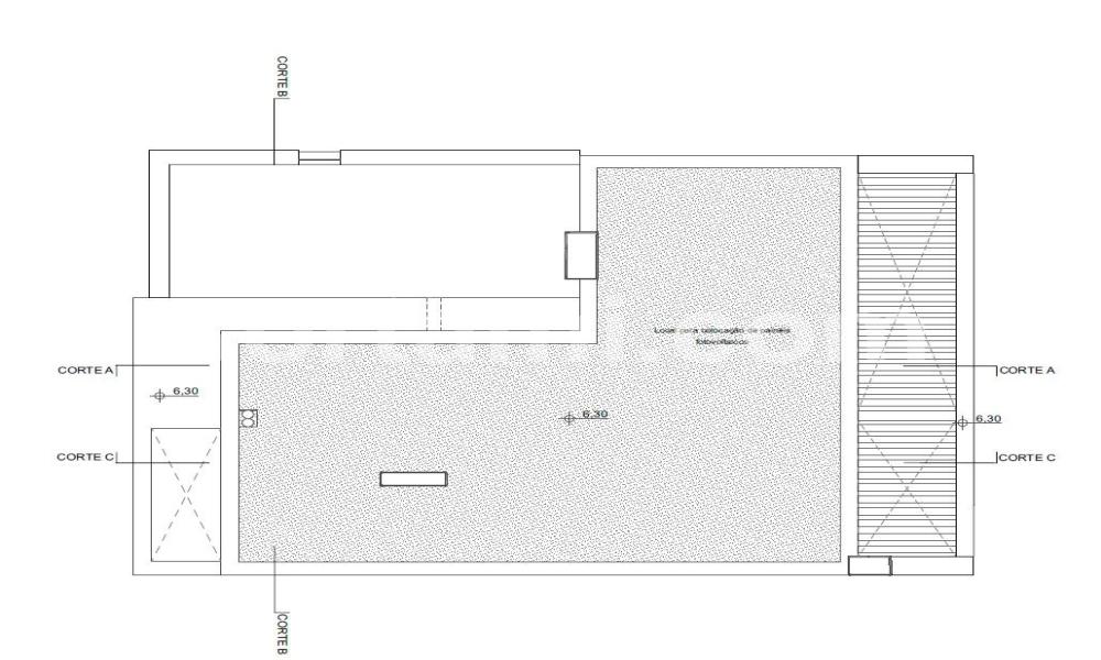
A cobertura do edifício será plana, murada, e irá integrar uma zona técnica destinada à instalação de painéis fotovoltaicos. Estes serão estrategicamente posicionados de forma a não serem visíveis do arruamento público, garantindo uma solução sustentável que não compromete a estética do edifício.

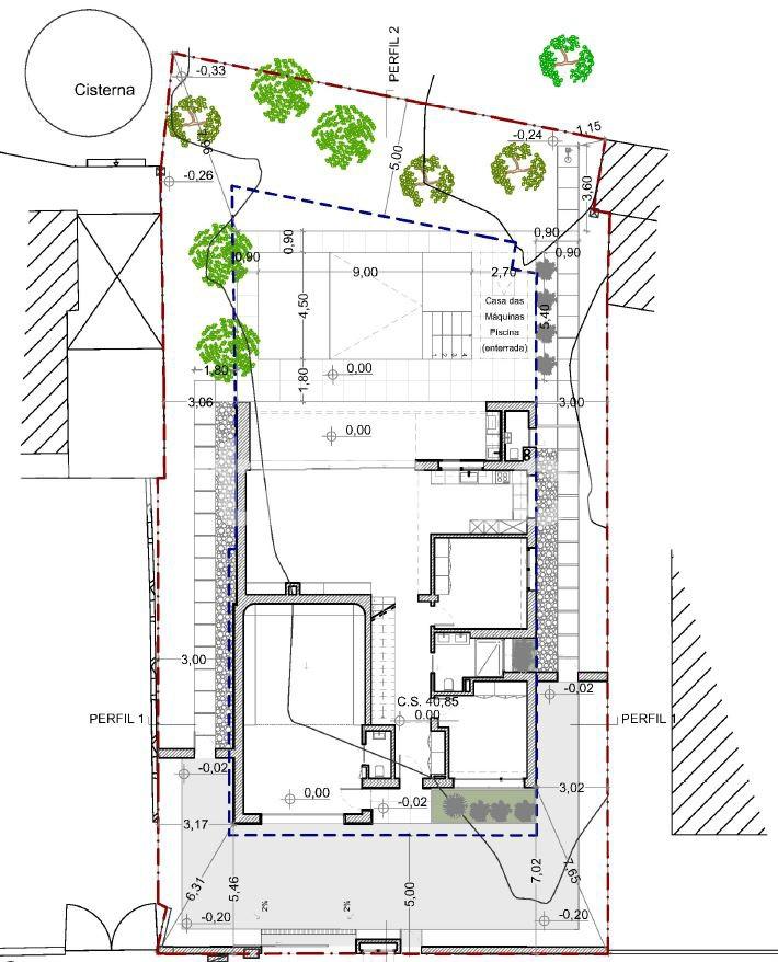
Em termos de apoio à piscina, está prevista a construção de uma casa das máquinas enterrada, localizada junto ao tanque, bem como uma zona de duche exterior. O estacionamento será garantido dentro dos limites do lote, com dois lugares privativos, um coberto na garagem e outro descoberto no logradouro.

A área total do lote é de 680,00 metros quadrados, sendo a área bruta de construção da moradia de 285,59 metros quadrados.

Marque já a sua visita!

Características Gerais

  • Acesso com Estrada
  • Terreno Urbano

Galeria do imóvel

Terreno Para Construção  Venda em Faro (Sé e São Pedro),Faro
Terreno Para Construção  Venda em Faro (Sé e São Pedro),Faro
Terreno Para Construção  Venda em Faro (Sé e São Pedro),Faro
Terreno Para Construção  Venda em Faro (Sé e São Pedro),Faro
Terreno Para Construção  Venda em Faro (Sé e São Pedro),Faro
Terreno Para Construção  Venda em Faro (Sé e São Pedro),Faro

Localização do imóvel

Faro, Faro, Faro (Sé e São Pedro)

Referência do anúncio: Sort23802. Última atualização: 13 novembro 2025.

Relatório de preços praticados nos últimos 8 meses

Faro, Faro, Faro (Sé e São Pedro)

Simule um Crédito Habitação

Os dados apresentados são meramente indicativos. Condições gerais
Seguir
Partilhar
Sortami - Mediação Imobiliária, Lda.
AMI 6450
+35 ...
Chamada para a rede fixa nacional
Mostrar número
Nome
Email
Contacto
Formato inválido
Agende uma visita
Referência do anúncio: Sort23802.
Última atualização: 13 novembro 2025.
Contactar
Veja também
Anúncios na mesma zona
ESTOI - Terreno com vista mar e ruína
Faro, São Brás de Alportel, São Brás de Alportel
210 000 €
Lote para Construção no centro de Almancil
Faro, Loulé, Almancil
500 000 €
Terrenos para construção de edifícios de habitação para venda em Almancil
Faro, Loulé, Almancil
2 500 000 €
Lote de Terreno Urbano para Construção
Faro, Loulé, Boliqueime
300 000 €
Oportunidade de Ouro em Loulé: Terreno de 14,5 Hectares para Construção de Hotel de Turismo Rural
Faro, Loulé, Loulé (São Clemente)
5 000 000 €
Lote de terreno vendido com projecto aprovado para 3 magnificas moradias com piscina individuais.
Faro, Loulé, Almancil
525 000 €
Terreno com projeto aprovado para construção de empreendimento
Faro, Loulé, Boliqueime
1 950 000 €
Excelente terreno para construção de blocos apartamentos em Lagos
Faro, Lagos, Lagos (São Sebastião e Santa Maria)
16 000 000 €
Lagos, terreno p/construção de luxo, zona ultra privilegiada
Faro, Lagos, Lagos (São Sebastião e Santa Maria)
600 000 €
Terreno Rústico Venda em Santa Bárbara de Nexe,Faro
Faro, Faro, Santa Bárbara de Nexe
55 000 €
Partilha o imóvel: Terreno Para Construção Venda em Faro (Sé e São Pedro),Faro
Partilha este imóvel nas tuas redes sociais ou envia diretamente para o email dos teus amigos.
Partilhar por email
Adicione uma nota ao imóvel!
Só você é que vê as notas que adiciona. Os imóveis com notas ficam nos favoritos para os poder consultar mais tarde.
Excluíste o anúncio:
Terreno Para Construção Venda em Faro (Sé e São Pedro),Faro