Pesquisar perto de mim
A aguardar a sua pesquisa
Voltar
Terreno Para Construção  Venda em Campo e Sobrado,Valongo
Terreno Para Construção  Venda em Campo e Sobrado,Valongo
Ver galeria (2)
Ver galeria (2)
Seguir
Partilhar

Terreno Para Construção Venda em Campo e Sobrado,Valongo

Porto, Valongo, Campo e Sobrado Ver no mapa
206 000 €
0 Quartos
0 WC's
Certificação Energética: N/D
Estado: Usado

Descrição do anúncio

Terreno para Venda – Oportunidade Única em Campo, Valongo
Está à procura do local perfeito para o seu próximo projeto imobiliário?
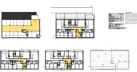
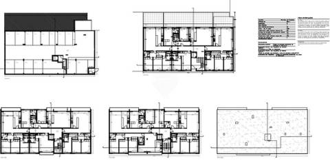
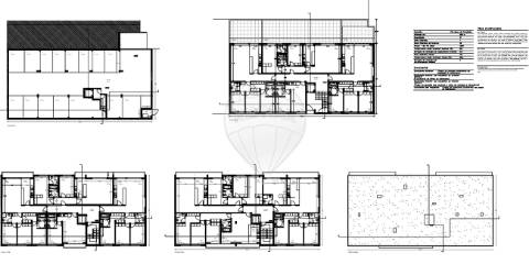
Temos o prazer de apresentar um terreno fantástico com 2394m² de área, constituído por 2 artigos, situado na freguesia de Campo, concelho de Valongo. Este é o espaço ideal para quem deseja investir em construção urbana com grande potencial de valorização.

Características do Terreno:

- Área Total: 2394m²
- Declive: Moderado, facilitando a drenagem e a construção.
- Classificação no PDM: Solo urbanizável, permitindo uma flexibilidade maior para desenvolvimento de projetos habitacionais.
- Índice de Utilização do Solo: 0,80
- Possibilidades de Construção: edifícios de até 4 pisos, até 3 unidades de ocupação por edifício, ideal para moradias multifamiliares ou pequenos blocos de apartamentos.

Localização:
Zona tranquila e de fácil acesso, que combina a serenidade do ambiente rural com a proximidade das comodidades urbanas. A área envolvente está em crescimento e oferece uma excelente qualidade de vida, constituindo-se como um local privilegiado para investimentos imobiliários.

Vantagens:
Excelente Potencial de Investimento: A região de Valongo está em expansão, com uma procura crescente por novas habitações.
Facilidade de Acesso: Próxima a vias principais e entrada para a auto-estrada, permitindo fácil deslocamento para o centro do Porto.
Ambiente Natural: Área envolvente com paisagens naturais, ideal para quem procura tranquilidade e bem-estar.

Características Gerais

  • Acesso com Estrada
  • Terreno Urbano

Galeria do imóvel

Terreno Para Construção  Venda em Campo e Sobrado,Valongo
Terreno Para Construção  Venda em Campo e Sobrado,Valongo

Localização do imóvel

Porto, Valongo, Campo e Sobrado

Referência do anúncio: IC217. Última atualização: 28 junho 2025.

Relatório de preços praticados nos últimos 8 meses

Porto, Valongo, Campo e Sobrado

Simule um Crédito Habitação

Os dados apresentados são meramente indicativos. Condições gerais
Seguir
Partilhar
Cláudia Patricia Oliveira da Silva
AMI 21547
914 ...
Chamada para a rede fixa nacional
Mostrar número
Nome
Email
Contacto
Formato inválido
Agende uma visita
Referência do anúncio: IC217.
Última atualização: 28 junho 2025.
Contactar
Veja também
Anúncios na mesma zona
Terreno para construção de Hotel próximo do centro da cidade | Nova Imobiliária
Porto, Póvoa de Varzim, Póvoa de Varzim, Beiriz e Argivai
2 000 000 €
Terreno rústico com 24542 m2 em Junqueira, Vila do Conde | Nova Imobiliária
Porto, Vila do Conde, Junqueira
250 000 €
Terreno 42740 m2 para construção na Póvoa de Varzim | Nova Imobiliária
Porto, Póvoa de Varzim, Póvoa de Varzim, Beiriz e Argivai
5 000 000 €
Terreno Venda em Grijó e Sermonde,Vila Nova de Gaia
Porto, Vila Nova de Gaia, Grijó e Sermonde
170 000 €
Terreno Venda em Grijó e Sermonde,Vila Nova de Gaia
Porto, Vila Nova de Gaia, Grijó e Sermonde
170 000 €
Terreno com 500 m2 em Santa Eulália, Vizela
Porto, Felgueiras, Revinhade
25 000 €
Terreno em Fornos - Zona Sossegada
Porto, Marco de Canaveses, Tabuado
83 000 €
Terreno 12 ap. ao h. s. joão projeto aprovado porto
Porto, Porto, Cedofeita, Santo Ildefonso, Sé, Miragaia, São Nicolau e Vitória
950 000 €
Terreno Agrícola perto do Centro
Porto, Amarante, Amarante (São Gonçalo), Madalena, Cepelos e Gatão
9 135 €
Terreno Urbano com 3350 m2 para construção de moradia. Póvoa de Varzim | Nova imobiliária
Porto, Póvoa de Varzim, Póvoa de Varzim, Beiriz e Argivai
270 000 €
Partilha o imóvel: Terreno Para Construção Venda em Campo e Sobrado,Valongo
Partilha este imóvel nas tuas redes sociais ou envia diretamente para o email dos teus amigos.
Partilhar por email
Adicione uma nota ao imóvel!
Só você é que vê as notas que adiciona. Os imóveis com notas ficam nos favoritos para os poder consultar mais tarde.
Excluíste o anúncio:
Terreno Para Construção Venda em Campo e Sobrado,Valongo