Pesquisar perto de mim
A aguardar a sua pesquisa
Voltar
Terreno Para Construção  Venda em Campanário,Ribeira Brava
Terreno Para Construção  Venda em Campanário,Ribeira Brava
Terreno Para Construção  Venda em Campanário,Ribeira Brava
Terreno Para Construção  Venda em Campanário,Ribeira Brava
Ver galeria (8)
Ver galeria (8)
Seguir
Partilhar

Terreno Para Construção Venda em Campanário,Ribeira Brava

Ilha da Madeira, Ribeira Brava, Campanário Ver no mapa
120 000 €
0 Quartos
0 WC's
Certificação Energética: N/D

Descrição do anúncio

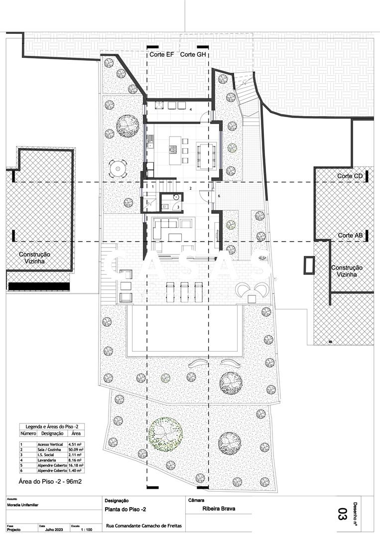
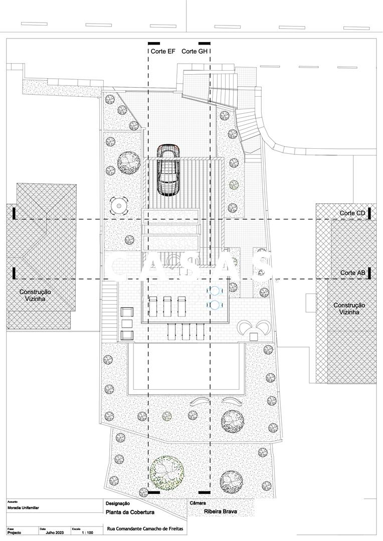
Lote de Terreno com 437m2 com projecto aprovado para construção de Moradia Uni-familiar com piscina.
Vista mar e localizada à beira da estrada, perto de comércio e transportes

Características Gerais

  • Acesso com Estrada
  • Terreno Urbano

Galeria do imóvel

Terreno Para Construção  Venda em Campanário,Ribeira Brava
Terreno Para Construção  Venda em Campanário,Ribeira Brava
Terreno Para Construção  Venda em Campanário,Ribeira Brava
Terreno Para Construção  Venda em Campanário,Ribeira Brava
Terreno Para Construção  Venda em Campanário,Ribeira Brava
Terreno Para Construção  Venda em Campanário,Ribeira Brava

Localização do imóvel

Ilha da Madeira, Ribeira Brava, Campanário

Referência do anúncio: 02870. Última atualização: 26 setembro 2025.

Relatório de preços praticados nos últimos 8 meses

Ilha da Madeira, Ribeira Brava, Campanário

Simule um Crédito Habitação

Os dados apresentados são meramente indicativos. Condições gerais
Seguir
Partilhar
Lote Exemplar - Mediação Imobiliária Lda
AMI 9327
291 ...
Chamada para a rede fixa nacional
Mostrar número
Nome
Email
Contacto
Formato inválido
Agende uma visita
Referência do anúncio: 02870.
Última atualização: 26 setembro 2025.
Contactar
Veja também
Anúncios na mesma zona
Terreno na ponte dos frades em câmara de lobos com vista fabulosa. (1.600m2)
Ilha da Madeira, Câmara de Lobos, Câmara de Lobos
265 000 €
Terreno Rústico Venda em Funchal (Santa Maria Maior),Funchal
Ilha da Madeira, Funchal, Funchal (Santa Maria Maior)
325 000 €
Lote de Terreno Venda em São Jorge,Santana
Ilha da Madeira, Santana, São Jorge
145 000 €
Terreno rústico em gaula 1.240 metros
Ilha da Madeira, Santa Cruz, Gaula
80 000 €
Terreno e palheiro nos canhas ponta do sol
Ilha da Madeira, Ponta do Sol, Ponta do Sol
135 000 €
Terreno com vista mar na prestigiada zona da rochinha, caniçal
Ilha da Madeira, Machico, Caniçal
290 000 €
Vendo terreno c/projecto aprovado e de especialidades para 4 moradias de luxo no funchal
Ilha da Madeira, Funchal, Funchal (São Pedro)
600 000 €
Terreno para construção , localizado em porto da cruz
Ilha da Madeira, Santa Cruz, Santo António da Serra
65 000 €
Terreno com 50 hectares situado no caniçal
Ilha da Madeira, Machico, Caniçal
1 500 000 €
Terreno 12.565m2 com projecto aprovado na calheta - ilha da madeira
Ilha da Madeira, Calheta (Madeira), Prazeres
1 250 000 €
Partilha o imóvel: Terreno Para Construção Venda em Campanário,Ribeira Brava
Partilha este imóvel nas tuas redes sociais ou envia diretamente para o email dos teus amigos.
Partilhar por email
Adicione uma nota ao imóvel!
Só você é que vê as notas que adiciona. Os imóveis com notas ficam nos favoritos para os poder consultar mais tarde.
Excluíste o anúncio:
Terreno Para Construção Venda em Campanário,Ribeira Brava