Pesquisar perto de mim
A aguardar a sua pesquisa
Voltar
Terreno Para Construção  Venda em Almancil,Loulé
Terreno Para Construção  Venda em Almancil,Loulé
Terreno Para Construção  Venda em Almancil,Loulé
Terreno Para Construção  Venda em Almancil,Loulé
Ver galeria (13)
Ver galeria (13)
Seguir
Partilhar

Terreno Para Construção Venda em Almancil,Loulé

Faro, Loulé, Almancil Ver no mapa
600 000 €
0 Quartos
0 WC's
Certificação Energética: N/D
Estado: Em Projecto

Descrição do anúncio

Excelente Lote de Terreno para Construção de Edifício Habitacional no Centro de Almancil 
  
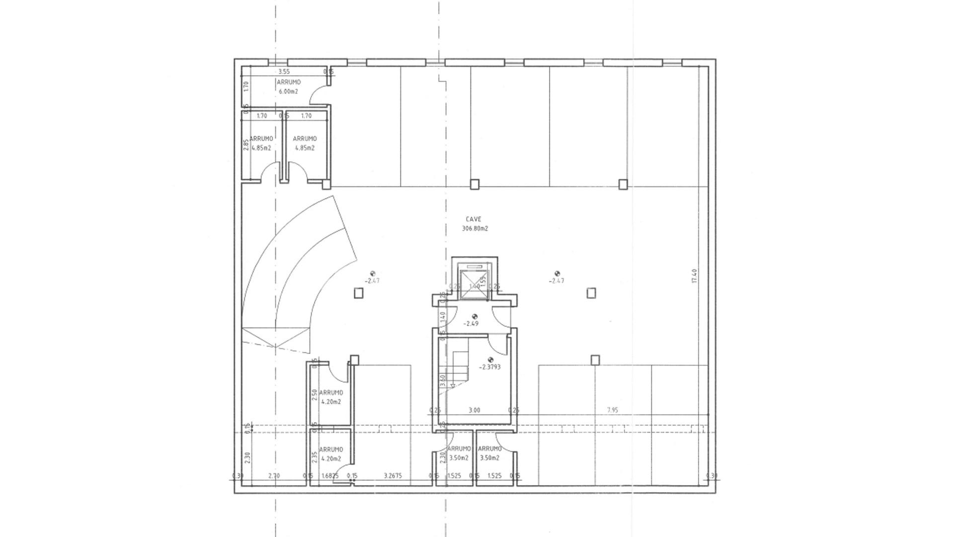
Apresentamos uma oportunidade excecional para investimento imobiliário no coração de Almancil. Este lote de terreno, com uma área total de 840 m², oferece o potencial para a construção de um edifício habitacional moderno e atraente, estrategicamente localizado numa das zonas mais procuradas do Algarve. 
  
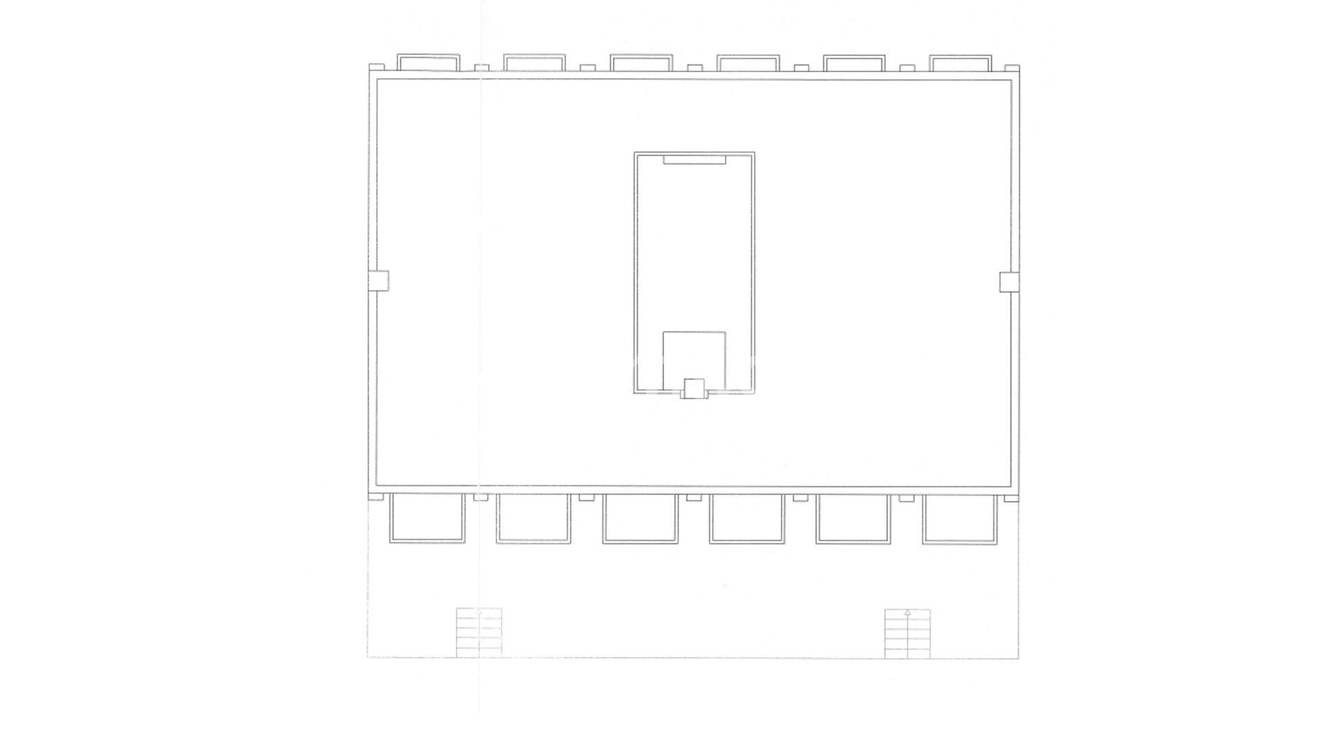
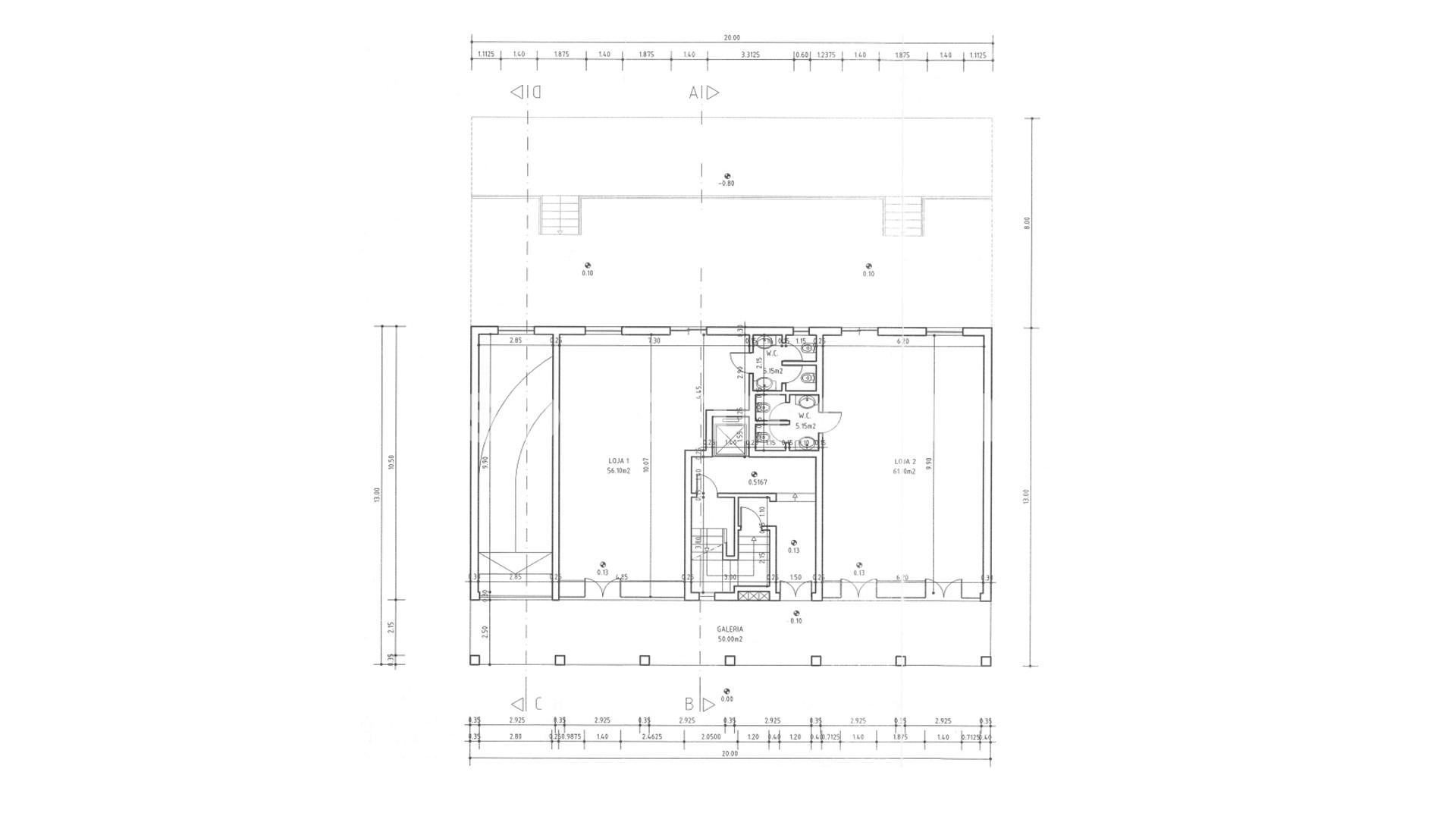
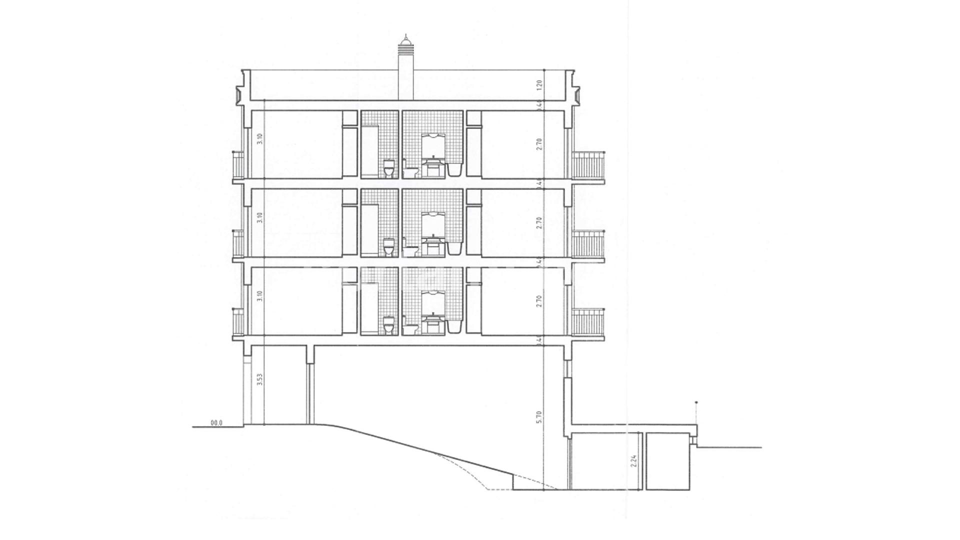
Com autorização para construir, este terreno permite o desenvolvimento de um edifício com três pisos, além de uma cave destinada a estacionamento subterrâneo e espaços de arrecadação, assegurando a conveniência e segurança necessárias para os futuros residentes. O rés do chão do projeto está idealmente concebido para abrigar duas lojas comerciais, proporcionando excelentes oportunidades para negócios locais que se beneficiem do tráfego constante de pedestres e da proximidade a serviços essenciais. 
  
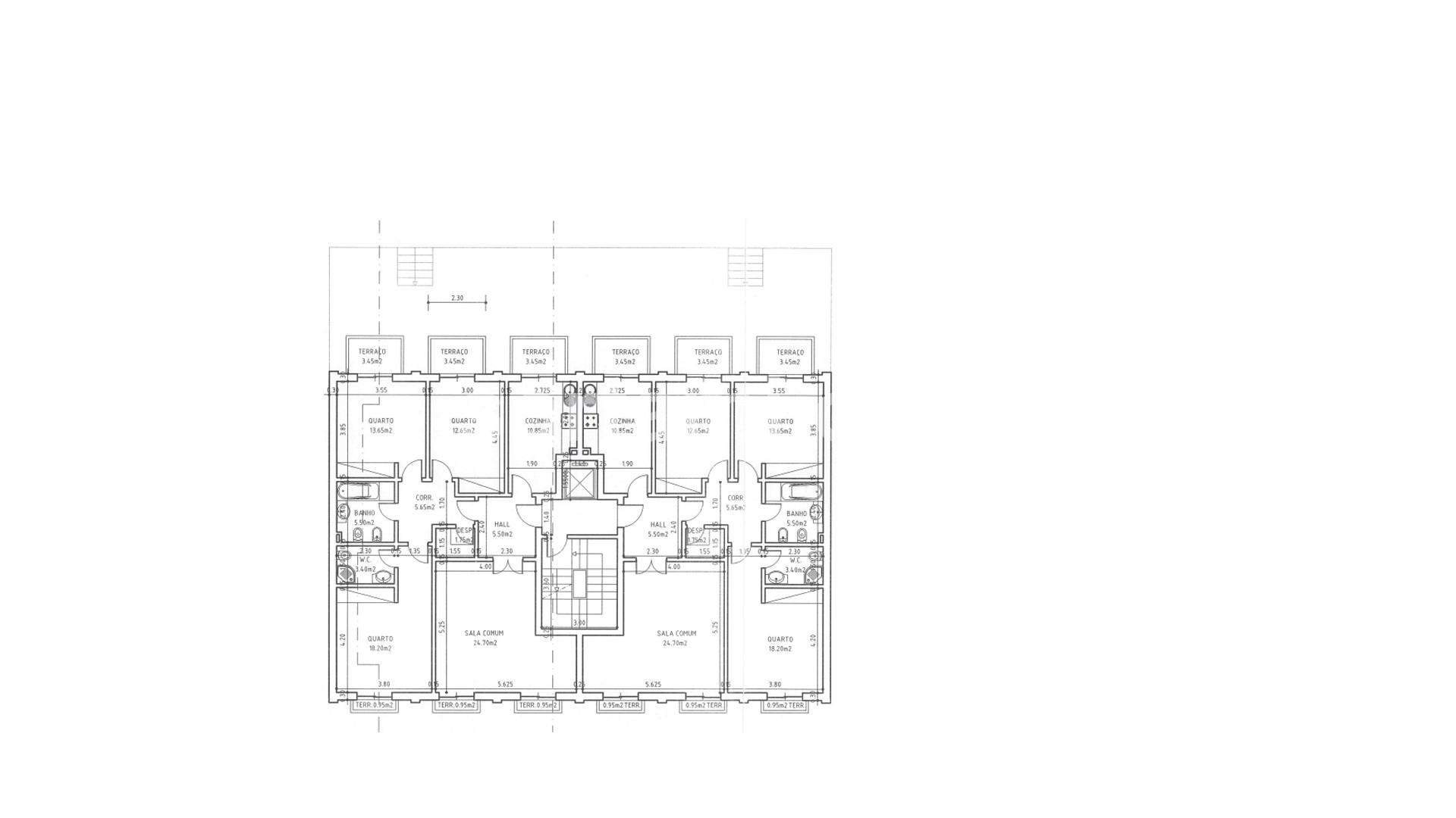
Nos andares superiores, o edifício planeia acomodar seis amplos apartamentos com terraços privativos, oferecendo um espaço habitacional que combina elegância e funcionalidade. As tipologias dos apartamentos, desenhadas com atenção aos detalhes e conforto, são ideais para famílias, casais ou investidores que visam explorar o mercado de arrendamento. Os terraços proporcionam áreas ao ar livre onde os residentes podem desfrutar de vistas panorâmicas e do clima agradável do Algarve. 
  
A localização deste lote é simplesmente incomparável. Situado no centro de Almancil, está a poucos minutos de uma ampla gama de comodidades, incluindo bancos, restaurantes, escolas e supermercados, facilitando o acesso a tudo o que os residentes possam necessitar no seu quotidiano. Esta proximidade a serviços torna o terreno altamente atrativo para potenciais compradores e arrendatários. 
  
Além disso, a curta distância de apenas 2 km da exclusiva Quinta do Lago oferece fácil acesso a algumas das mais prestigiadas praias e campos de golfe do mundo. As praias de areia dourada e os campos de golfe de classe mundial em Vale do Lobo e Quinta do Lago são famosos pela sua beleza e pela qualidade excecional, acrescentando ainda mais valor a este investimento. 
  
Esta é uma oportunidade rara de adquirir um lote de terreno que promete um retorno substancial sobre o investimento. A procura crescente por propriedades de qualidade no Algarve faz deste terreno uma excelente escolha para quem deseja capitalizar o boom imobiliário da região. 
  
Não deixe escapar esta oportunidade de ouro. Entre em contacto connosco hoje mesmo para mais informações ou para agendar uma visita ao local. Descubra como este lote de terreno pode ser a base para um projeto de sucesso no vibrante mercado imobiliário de Almancil. 

Características Gerais

  • Acesso com Estrada
  • Terreno Urbano

Galeria do imóvel

Terreno Para Construção  Venda em Almancil,Loulé
Terreno Para Construção  Venda em Almancil,Loulé
Terreno Para Construção  Venda em Almancil,Loulé
Terreno Para Construção  Venda em Almancil,Loulé
Terreno Para Construção  Venda em Almancil,Loulé
Terreno Para Construção  Venda em Almancil,Loulé

Localização do imóvel

Faro, Loulé, Almancil

Referência do anúncio: Sort19251. Última atualização: 17 março 2026.

Relatório de preços praticados nos últimos 8 meses

Faro, Loulé, Almancil

Simule um Crédito Habitação

Os dados apresentados são meramente indicativos. Condições gerais
Seguir
Partilhar
Sortami - Mediação Imobiliária, Lda.
AMI 6450
+35 ...
Chamada para a rede fixa nacional
Mostrar número
Nome
Email
Contacto
Formato inválido
Agende uma visita
Referência do anúncio: Sort19251.
Última atualização: 17 março 2026.
Contactar
Veja também
Anúncios na mesma zona
Terreno para Construção em Almancil
Faro, Loulé, Almancil
370 000 €
Terreno Rústico Venda em Santa Bárbara de Nexe,Faro
Faro, Faro, Santa Bárbara de Nexe
22 500 €
Terreno Rústico - Ruína - Água Canalizada - Poço - Electricidade - Porto de Lagos - Portimão Algarve
Faro, Portimão, Portimão
320 000 €
Terreno rustico com 8980 m2 situado em tunes
Faro, Silves, Algoz e Tunes
45 000 €
Terreno Misto Venda em Moncarapacho e Fuseta,Olhão
Faro, Olhão, Moncarapacho e Fuseta
150 000 €
Lote de terreno para venda com ruína e viabilidade de construção
Faro, Vila Real de Santo António, Vila Nova de Cacela
410 000 €
TERRENO RUSTICO COM 18.370 M2 - COM POÇO - VISTA LAGO - BOTELHAS - CASTRO MARIM - ALGARVE
Faro, Castro Marim, Azinhal
49 900 €
Lote de terreno com projeto aprovado para construção de moradia T3
Faro, Silves, Silves
360 000 €
Terreno rústico de 15 000 m² em Estômbar
Faro, Lagoa (Algarve), Lagoa e Carvoeiro
218 500 €
Terreno com vista mar
Faro, Olhão, Moncarapacho e Fuseta
49 800 €
Partilha o imóvel: Terreno Para Construção Venda em Almancil,Loulé
Partilha este imóvel nas tuas redes sociais ou envia diretamente para o email dos teus amigos.
Partilhar por email
Adicione uma nota ao imóvel!
Só você é que vê as notas que adiciona. Os imóveis com notas ficam nos favoritos para os poder consultar mais tarde.
Excluíste o anúncio:
Terreno Para Construção Venda em Almancil,Loulé