Pesquisar perto de mim
A aguardar a sua pesquisa
Voltar
Terreno Para Construção T3 Venda em São João de Ver,Santa Maria da Feira
Terreno Para Construção T3 Venda em São João de Ver,Santa Maria da Feira
Terreno Para Construção T3 Venda em São João de Ver,Santa Maria da Feira
Terreno Para Construção T3 Venda em São João de Ver,Santa Maria da Feira
Ver galeria (11)
Ver galeria (11)
Seguir
Partilhar

Terreno Para Construção T3 Venda em São João de Ver,Santa Maria da Feira

Aveiro, Santa Maria da Feira, São João de Ver Ver no mapa
85 000 €
0 Quartos
0 WC's
Certificação Energética: N/D

Descrição do anúncio

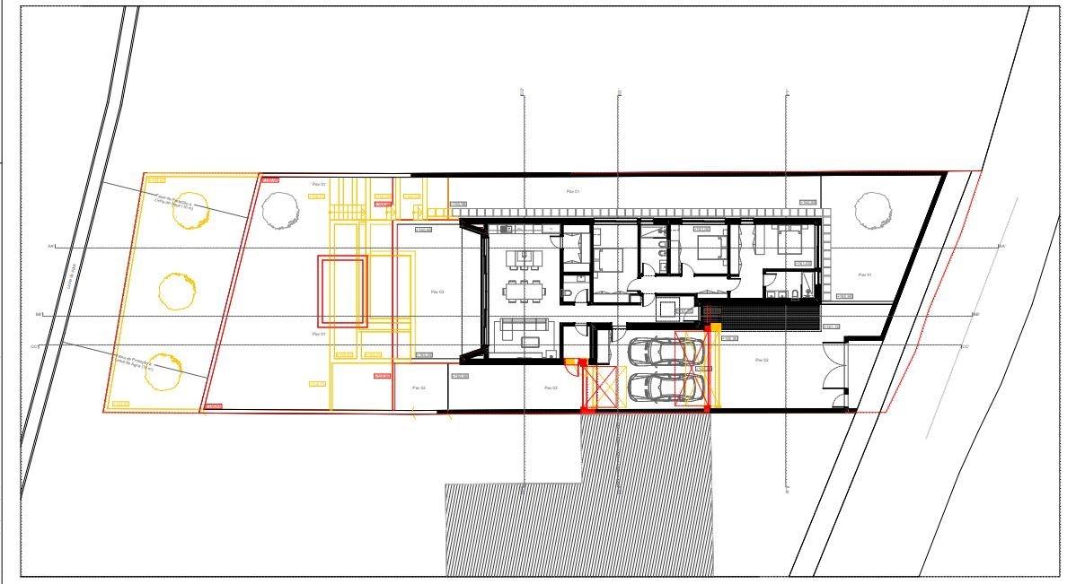
Terreno com cerca de 876m2, com projeto aprovado para moradia isolada, térrea, T3, com piscina.

Área de implantação: 226m2;
Área bruta de construção: 250m2;
Área bruta dependente: 47m2.

O projeto já aprovado, contempla a construção de uma moradia isolada, térrea, constituída por:
- Hall de entrada;
- Cozinha e sala em conceito open-space;
- Despensa/lavandaria;
- WC de serviço de apoio à zona social;
- Suíte com closet e WC completo;
- 2 quartos com roupeiros embutidos;
- WC completo de apoio aos quartos;
- Garagem coberta para duas viaturas;
- Piscina.

O terreno localiza-se em zona central de São João de Vêr, zona essa habitacional mas calma, e com excelentes acessibilidades ao centro Santa Maria da Feira,

A moradia terá exposição solar Poente para a zona de cozinha/sala, e exposição solar Nascente para a suíte.

Tratamos de toda o processo de financiamento e acompanhamento até ao ato da escritura.
Para todas as informações que desejar, estamos ao seu inteiro dispor.

Para mais informações contacte-nos,
Chave Nova de Santa Maria da Feira

Características Gerais

  • Acesso com Estrada
  • Terreno Urbano

Galeria do imóvel

Terreno Para Construção T3 Venda em São João de Ver,Santa Maria da Feira
Terreno Para Construção T3 Venda em São João de Ver,Santa Maria da Feira
Terreno Para Construção T3 Venda em São João de Ver,Santa Maria da Feira
Terreno Para Construção T3 Venda em São João de Ver,Santa Maria da Feira
Terreno Para Construção T3 Venda em São João de Ver,Santa Maria da Feira
Terreno Para Construção T3 Venda em São João de Ver,Santa Maria da Feira

Localização do imóvel

Aveiro, Santa Maria da Feira, São João de Ver

Referência do anúncio: SMF/02703. Última atualização: 08 julho 2024.

Relatório de preços praticados nos últimos 8 meses

Aveiro, Santa Maria da Feira, São João de Ver

Simule um Crédito Habitação

Os dados apresentados são meramente indicativos. Condições gerais
Seguir
Partilhar
Chave Nova - Mediação Imobiliária, Lda
AMI 7142
223 ...
Chamada para a rede fixa nacional
Mostrar número
Nome
Email
Contacto
Formato inválido
Agende uma visita
Referência do anúncio: SMF/02703.
Última atualização: 08 julho 2024.
Contactar
Veja também
Anúncios na mesma zona
Terreno com 6.579 m2 em São Paio de Oleiros
Aveiro, Santa Maria da Feira, São Paio de Oleiros
105 000 €
Terreno Rústico Venda em Oliveira de Azeméis, Santiago de Riba-Ul, Ul, Macinhata da Seixa e Madail,Oliveira de Azeméis
Aveiro, Oliveira de Azeméis, Oliveira de Azeméis, Santiago de Riba-Ul, Ul, Macinhata da Seixa e Madail
66 000 €
Lote de Terreno Construção Moradia Geminada - Arrifana
Aveiro, Santa Maria da Feira, Arrifana
51 000 €
Terreno Urbano em Sanguedo, Santa Maria da Feira
Aveiro, Santa Maria da Feira, Sanguedo
70 000 €
Loteamento Venda em Anta e Guetim,Espinho
Aveiro, Espinho, Anta e Guetim
45 000 €
Terreno urbano com projeto aprovado na gafanha da nazaré
Aveiro, Ílhavo, Gafanha da Nazaré
85 000 €
Terreno para construção com 4.080 m2 em Rio Meão
Aveiro, Santa Maria da Feira, Rio Meão
120 000 €
Terreno Urbano com 7500m2 em Souto, Santa Maria da Feira
Aveiro, Santa Maria da Feira, Fornos
125 000 €
Terreno no centro de São João da Madeira
Aveiro, São João da Madeira, São João da Madeira
300 000 €
Terreno Urbano para construção - à praia de Silvalde - Espinho
Aveiro, Espinho, Silvalde
70 000 €
Partilha o imóvel: Terreno Para Construção T3 Venda em São João de Ver,Santa Maria da Feira
Partilha este imóvel nas tuas redes sociais ou envia diretamente para o email dos teus amigos.
Partilhar por email
Adicione uma nota ao imóvel!
Só você é que vê as notas que adiciona. Os imóveis com notas ficam nos favoritos para os poder consultar mais tarde.
Excluíste o anúncio:
Terreno Para Construção T3 Venda em São João de Ver,Santa Maria da Feira