Pesquisar perto de mim
A aguardar a sua pesquisa
Voltar
Terreno para construção de pequeno condomínio no Estoril, Cascais.
Terreno para construção de pequeno condomínio no Estoril, Cascais.
Terreno para construção de pequeno condomínio no Estoril, Cascais.
Terreno para construção de pequeno condomínio no Estoril, Cascais.
Ver galeria (25)
Ver galeria (25)
Seguir
Partilhar

Terreno para construção de pequeno condomínio no Estoril, Cascais.

Lisboa, Cascais, Cascais e Estoril Ver no mapa
999 000 €
0 Quartos
0 WC's
Certificação Energética: N/D

Descrição do anúncio

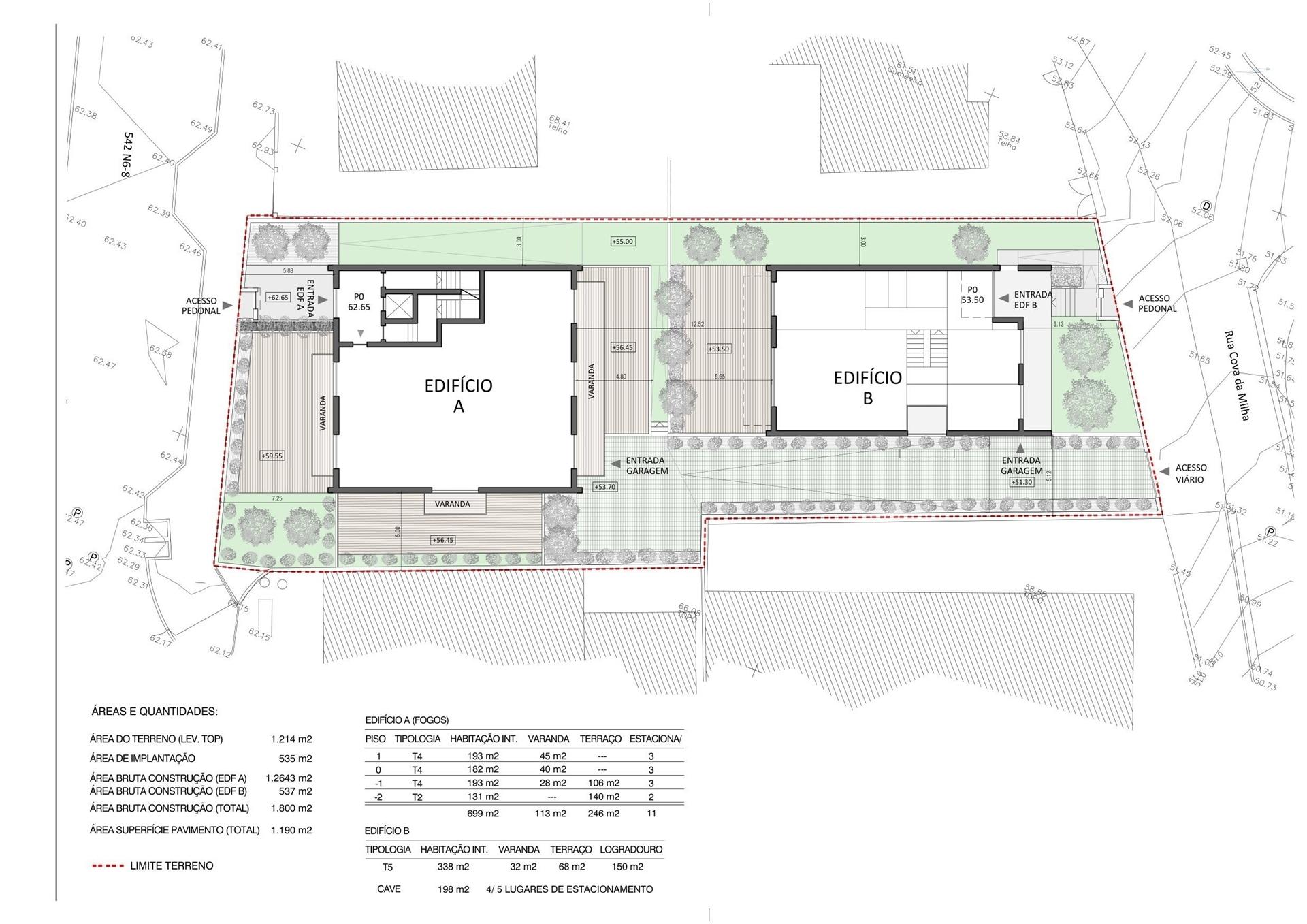
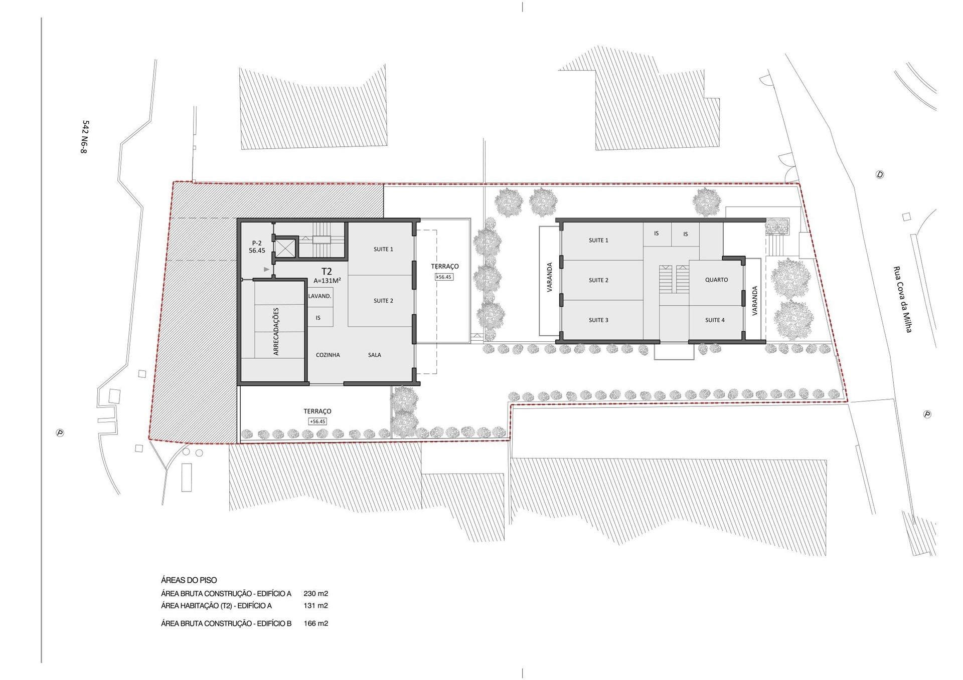
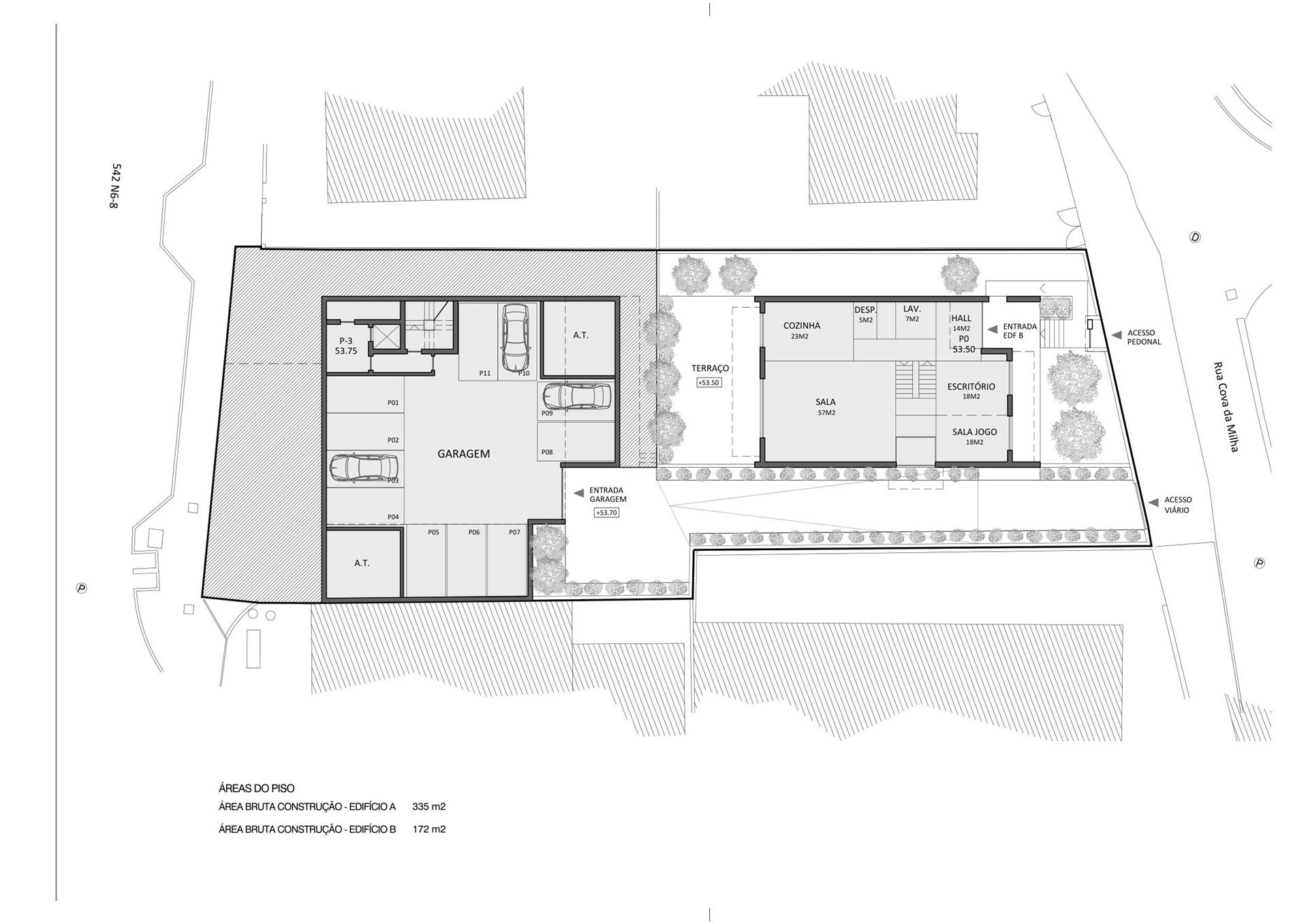
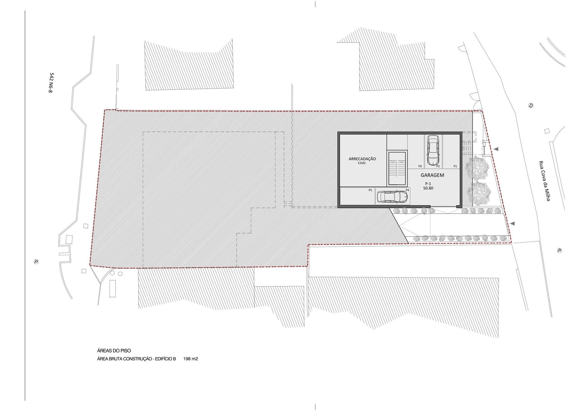
Terreno com 1342m2 aprovado para construção habitacional em Estoril, Cascais.

Este terreno para construção residencial está localizado em Estoril, mais precisamente na localidade do Alto dos Gaios. Tem um PIP (Pedido de Informação Prévia) aprovado pela Câmara Municipal de Cascais em Fevereiro de 2025, para a construção de condomínio habitacional, com 5 fogos (em 2 edifícios isolados 4 fogos + 1 fogo).

Nota importante: já foram cedidos cerca de 98m2 à Câmara Municipal de Cascais.
.
O terreno está localizado numa zona residencial com extraordinários acessos rodoviários, perto de escolas, lojas e transportes públicos.

Acerca da DRAFT-IN HOMES:
A empresa faz parte do grupo DRAFT-IN, onde oferece soluções completas para Construção, Imobiliária e Financiamento.

A DRAFT-IN HOMES conta com uma equipa de consultores imobiliários experientes, prontos para fornecer um acompanhamento personalizado quando você desejar comprar ou vender um imóvel.

A DRAFT-IN CONCEPT é composta por uma equipa multidisciplinar, que possui vasta experiência em todas as áreas de arquitetura e construção. Ela é formada por arquitetos, engenheiros e pessoal especializado, garantindo elevados padrões de qualidade em soluções integradas, incluindo soluções "chave na mão".

A DRAFT-IN FINANCE auxilia os envolvidos no negócio a obter financiamento mais rápido e com condições vantajosas.

Características Gerais

  • Acesso com Estrada
  • Terreno Urbano

Galeria do imóvel

Terreno para construção de pequeno condomínio no Estoril, Cascais.
Terreno para construção de pequeno condomínio no Estoril, Cascais.
Terreno para construção de pequeno condomínio no Estoril, Cascais.
Terreno para construção de pequeno condomínio no Estoril, Cascais.
Terreno para construção de pequeno condomínio no Estoril, Cascais.
Terreno para construção de pequeno condomínio no Estoril, Cascais.

Localização do imóvel

Lisboa, Cascais, Cascais e Estoril

Referência do anúncio: DH404. Última atualização: 06 outubro 2025.

Relatório de preços praticados nos últimos 8 meses

Lisboa, Cascais, Cascais e Estoril

Simule um Crédito Habitação

Os dados apresentados são meramente indicativos. Condições gerais
Seguir
Partilhar
Draft-In Homes - Mediação E Gestão Imobiliária, Lda
AMI 18021
211 ...
Chamada para a rede fixa nacional
Mostrar número
Nome
Email
Contacto
Formato inválido
Agende uma visita
Referência do anúncio: DH404.
Última atualização: 06 outubro 2025.
Contactar
Veja também
Anúncios na mesma zona
Terreno para construção - Parede / Cascais
Lisboa, Cascais, Carcavelos e Parede
650 000 €
Excelente localização em zona comercial
Lisboa, Cascais, Alcabideche
4 150 000 €
Terreno Quinta da Beloura I com vista de Golfe com projecto de arquitectura
Lisboa, Sintra, Sintra (Santa Maria e São Miguel, São Martinho e São Pedro de Penaferrim)
1 310 000 €
Terreno
Lisboa, Sintra, São João das Lampas e Terrugem
270 000 €
EXCELENTE LOCALIZAÇÃO. OPORTUNIDE LOCAL TRANQUILO
Lisboa, Cascais, São Domingos de Rana
630 000 €
Terreno para construção de moradia T4
Lisboa, Torres Vedras, Campelos e Outeiro da Cabeça
64 000 €
Terreno Rústico 4.520 m2 A-dos-Cunhados, Torres Vedras
Lisboa, Torres Vedras, Torres Vedras (São Pedro, Santiago, Santa Maria do Castelo e São Miguel) e Matacães
85 000 €
Terreno em A Dos Cunhados
Lisboa, Torres Vedras, A dos Cunhados e Maceira
55 000 €
Terreno em Pero Negro
Lisboa, Sobral de Monte Agraço, Sapataria
320 000 €
Terreno com projeto aprovado para loteamento de 8 moradias isoladas - Silveira
Lisboa, Sobral de Monte Agraço, Sobral de Monte Agraço
400 000 €
Partilha o imóvel: Terreno para construção de pequeno condomínio no Estoril, Cascais.
Partilha este imóvel nas tuas redes sociais ou envia diretamente para o email dos teus amigos.
Partilhar por email
Adicione uma nota ao imóvel!
Só você é que vê as notas que adiciona. Os imóveis com notas ficam nos favoritos para os poder consultar mais tarde.
Excluíste o anúncio:
Terreno para construção de pequeno condomínio no Estoril, Cascais.