Pesquisar perto de mim
A aguardar a sua pesquisa
Voltar
TERRENO PARA CONSTRUÇÃO DE 3 MORADIAS
TERRENO PARA CONSTRUÇÃO DE 3 MORADIAS
TERRENO PARA CONSTRUÇÃO DE 3 MORADIAS
TERRENO PARA CONSTRUÇÃO DE 3 MORADIAS
Ver galeria (25)
Ver galeria (25)
Seguir
Partilhar

TERRENO PARA CONSTRUÇÃO DE 3 MORADIAS

Faro, Portimão, Portimão Ver no mapa
310 000 €
0 Quartos
0 WC's
Certificação Energética: N/D

Descrição do anúncio

TERRENO PARA CONSTRUÇÃO DE 3 MORADIAS

Terreno urbano em Portimão

Venha conhecer esta oportunidade de investimento. Lote de terreno, localizado na zona da Caldeira do Moinho, em Portimão. Esta área é reconhecida pela sua tranquilidade, sendo predominantemente composta por moradias contemporâneas que conferem um ambiente moderno, familiar e acolhedor.

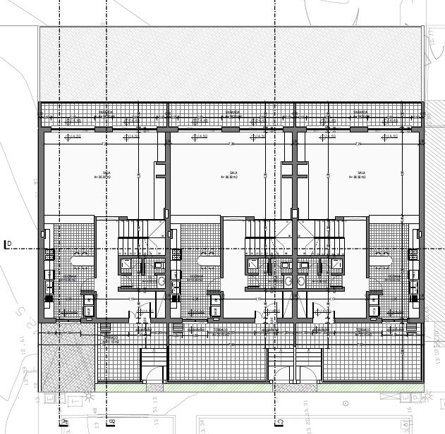
Segundo o alvará de loteamento, o imóvel apresenta uma capacidade construtiva de 520,00 metros quadrados e uma área de implantação de 260,00 metros quadrados, sendo possível construir até três moradias em banda.

Além disso, existe a possibilidade de construir dois pisos acima do solo, juntamente com a cave, o que permite explorar ao máximo o potencial deste espaço, proporcionando a criação de moradias com ambientes espaçosos e confortáveis para os futuros residentes.

A localização privilegiada deste terreno oferece não só um estilo de vida tranquilo e exclusivo, mas também a proximidade a uma variedade de comodidades, incluindo escolas, supermercados, restaurantes e praias deslumbrantes. Com fácil acesso a vias principais e transportes públicos, esta é uma oportunidade imperdível para construtores e investidores que procuram um projeto lucrativo e de sucesso.

Entre em contacto connosco hoje mesmo para mais informações e perceber o potencial desta propriedade.

Características Gerais

  • Acesso com Estrada
  • Edificável

Galeria do imóvel

TERRENO PARA CONSTRUÇÃO DE 3 MORADIAS
TERRENO PARA CONSTRUÇÃO DE 3 MORADIAS
TERRENO PARA CONSTRUÇÃO DE 3 MORADIAS
TERRENO PARA CONSTRUÇÃO DE 3 MORADIAS
TERRENO PARA CONSTRUÇÃO DE 3 MORADIAS
TERRENO PARA CONSTRUÇÃO DE 3 MORADIAS

Localização do imóvel

Faro, Portimão, Portimão

Referência do anúncio: DHA058. Última atualização: 02 outubro 2025.

Relatório de preços praticados nos últimos 8 meses

Faro, Portimão, Portimão

Simule um Crédito Habitação

Os dados apresentados são meramente indicativos. Condições gerais
Seguir
Partilhar
Draft-In Homes - Mediação E Gestão Imobiliária, Lda
AMI 18021
+35 ...
Chamada para a rede fixa nacional
Mostrar número
Nome
Email
Contacto
Formato inválido
Agende uma visita
Referência do anúncio: DHA058.
Última atualização: 02 outubro 2025.
Contactar
Veja também
Anúncios na mesma zona
Terreno com Projeto Aprovado em Varandas do Lago
Faro, Faro, Montenegro
1 575 000 €
TERRENO RUSTICO COM 1.520 M2 - JUNTO AO RIO GUADIANA - ALCOUTIM - ALGARVE
Faro, Alcoutim, Alcoutim e Pereiro
18 900 €
TERRENO RUSTICO COM 4.520 M2 - PRÓXIMO DA CORTE DO GAGO EM CASTRO MARIM - ALGARVE
Faro, Castro Marim, Azinhal
18 000 €
Terreno Rústico Venda em São Bartolomeu de Messines,Silves
Faro, Loulé, Alte
160 000 €
Terreno Rustico Rua da sic
Faro, Loulé, Loulé (São Sebastião)
45 000 €
Terreno rústico com 8520 m2 , em Alcoutim
Faro, Alcoutim, Alcoutim e Pereiro
17 500 €
TERRENO COM VISTA RIO - COM 11.920 M2 PRÓXIMO A FOZ DE ODELEITE - CASTRO MARIM - ALGARVE
Faro, Castro Marim, Odeleite
21 500 €
TERRENO RÚSTICO COM 3.800 M2 - PRÓXIMO AS ALCARIAS GRANDES - CASTRO MARIM - ALGARVE
Faro, Castro Marim, Azinhal
38 000 €
TERRENO RUSTICO COM 680 M2 - PLANO - JUNTO AO RIBEIRO - AGUA DA REGA - TENENCIA - CASTRO MARIM - ALGARVE
Faro, Castro Marim, Odeleite
14 900 €
Terreno para Construção de Condomínio em Olhão.
Faro, Olhão, Olhão
4 600 000 €
Partilha o imóvel: TERRENO PARA CONSTRUÇÃO DE 3 MORADIAS
Partilha este imóvel nas tuas redes sociais ou envia diretamente para o email dos teus amigos.
Partilhar por email
Adicione uma nota ao imóvel!
Só você é que vê as notas que adiciona. Os imóveis com notas ficam nos favoritos para os poder consultar mais tarde.
Excluíste o anúncio:
TERRENO PARA CONSTRUÇÃO DE 3 MORADIAS