Pesquisar perto de mim
A aguardar a sua pesquisa
Voltar
Terreno Continente Gaia com projeto aprovado licenças pagas
Terreno Continente Gaia com projeto aprovado licenças pagas
Terreno Continente Gaia com projeto aprovado licenças pagas
Terreno Continente Gaia com projeto aprovado licenças pagas
Ver galeria (29)
Ver galeria (29)
Seguir
Partilhar

Terreno Continente Gaia com projeto aprovado licenças pagas

Porto, Vila Nova de Gaia, Santa Marinha e São Pedro da Afurada Ver no mapa
1 100 000 €
0 Quartos
0 WC's
Área Bruta: 5924m2
Certificação Energética: N/A
Estado: Usado

Descrição do anúncio


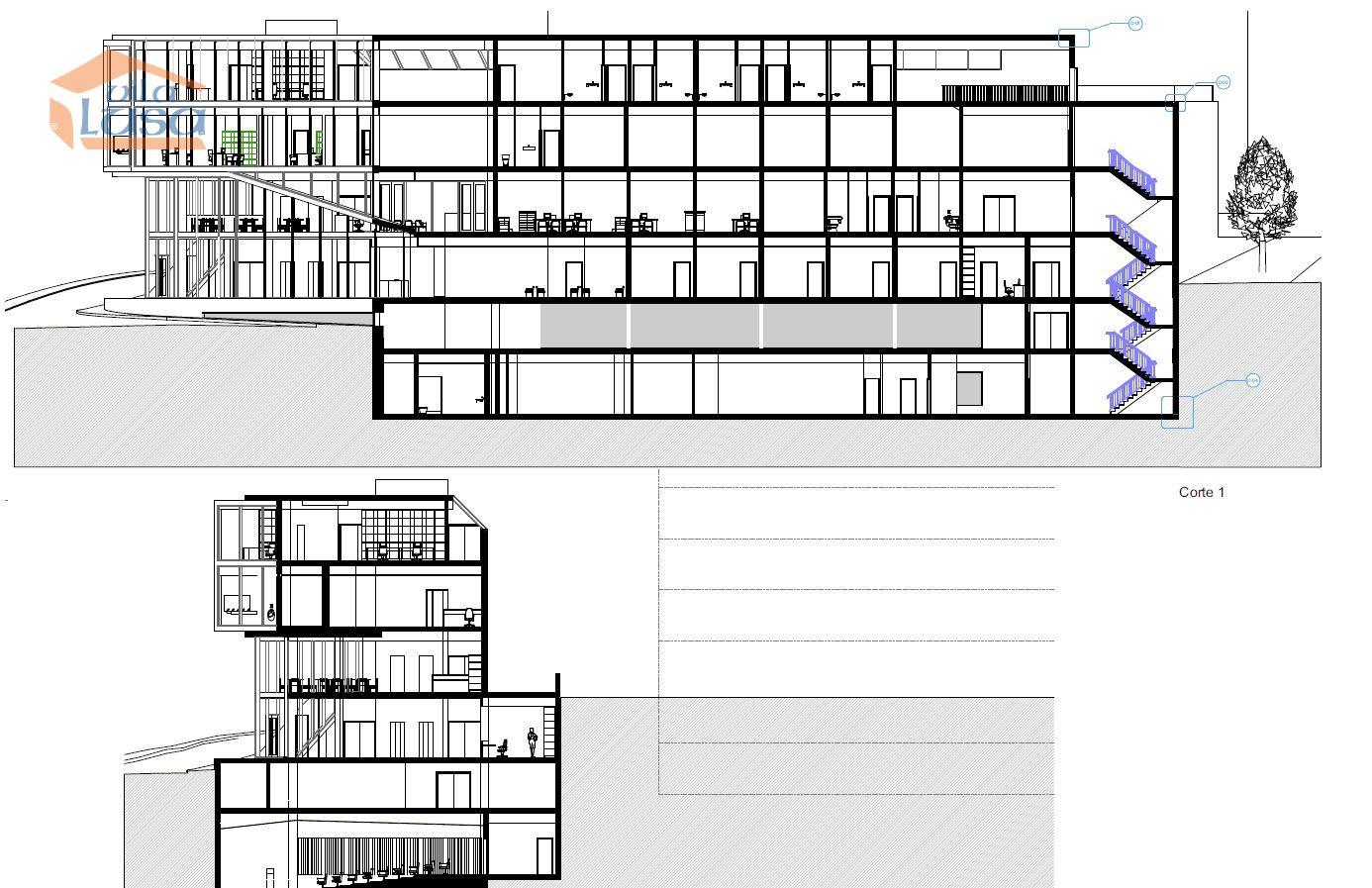
Terreno Exclusivo à Venda junto ao Continente de Vila Nova de Gaia Projeto Aprovado para Edifício de Ensino com Arquitetura Contemporânea

Excelente oportunidade de investimento num terreno com 2.567 m², localizado numa zona privilegiada de Vila Nova de Gaia, com licença de construção paga para edifício de 4 frentes, destinado à área do ensino, alojamento, lazer e outros serviços complementares.

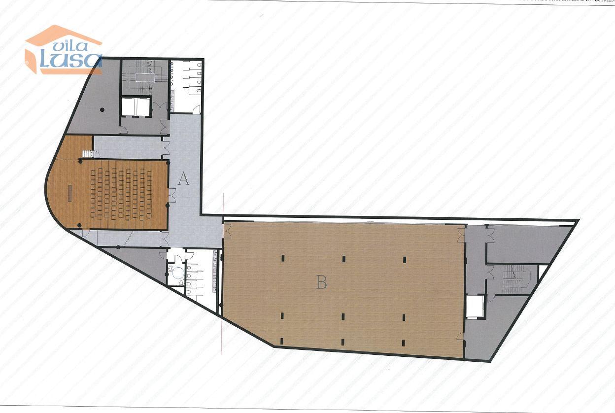
O projeto aprovado contempla um edifício moderno com 6 pisos (4 acima e 2 abaixo do solo), 2 elevadores para 8 pessoas e 1 elevador de carga, com 30 lugares de estacionamento. A volumetria do edifício distribui-se de forma harmoniosa: 3 pisos a nascente, 4 na empena norte e 5 na poente.

Com uma área de implantação de 1.218, 3 m² e área bruta privativa de 4.719 m², o edifício foi concebido para oferecer um serviço de excelência e bem-estar aos seus utilizadores, sendo ideal para ensino, residência de estudantes e serviços complementares.

Localização estratégica, a poucos metros do Gaia Shopping, supermercados, hospital privado e com ótimos acessos pela A44 e Via Eng. º Edgar Cardoso. Entrada principal pela Rua Manuel Sarmento Beires.

A crescente procura por empreendimentos ligados ao ensino e tecnologia faz deste investimento uma oportunidade segura e promissora.

Não perca esta oportunidade única!

Características Gerais

  • Acesso com Estrada
  • Terreno Urbano

Galeria do imóvel

Terreno Continente Gaia com projeto aprovado licenças pagas
Terreno Continente Gaia com projeto aprovado licenças pagas
Terreno Continente Gaia com projeto aprovado licenças pagas
Terreno Continente Gaia com projeto aprovado licenças pagas
Terreno Continente Gaia com projeto aprovado licenças pagas
Terreno Continente Gaia com projeto aprovado licenças pagas

Localização do imóvel

Porto, Vila Nova de Gaia, Santa Marinha e São Pedro da Afurada

Referência do anúncio: 801251013. Última atualização: 24 outubro 2025.

Relatório de preços praticados nos últimos 8 meses

Porto, Vila Nova de Gaia, Santa Marinha e São Pedro da Afurada

Simule um Crédito Habitação

Os dados apresentados são meramente indicativos. Condições gerais
Seguir
Partilhar
Vila Lusa - Forma Régia - Med Imob Unip., Lda
AMI 7917
967 ...
Chamada para a rede fixa nacional
Mostrar número
Nome
Email
Contacto
Formato inválido
Agende uma visita
Referência do anúncio: 801251013.
Última atualização: 24 outubro 2025.
Contactar
Veja também
Anúncios na mesma zona
? terreno à venda em pedroso – vila nova de gaia ? área total: 660 m²
Porto, Vila Nova de Gaia, Pedroso e Seixezelo
88 000 €
Terreno para construção em altura
Porto, Maia, Pedrouços
650 000 €
Fábrica com Terrenos em Crestuma
Porto, Vila Nova de Gaia, Sandim, Olival, Lever e Crestuma
7 500 000 €
Terreno para construção em Paço de Sousa
Porto, Penafiel, Paço de Sousa
40 000 €
Lote de Terreno Venda em Canelas,Vila Nova de Gaia
Porto, Vila Nova de Gaia, Canelas
80 000 €
Terreno Para Construção Venda em Póvoa de Varzim, Beiriz e Argivai,Póvoa de Varzim
Porto, Póvoa de Varzim, Póvoa de Varzim, Beiriz e Argivai
199 000 €
Lote de Terreno Venda em Canelas,Vila Nova de Gaia
Porto, Vila Nova de Gaia, Canelas
75 000 €
Terreno com 3 artigos e área total de 3000m2 com PIP aprovado em Pedroso!!
Porto, Vila Nova de Gaia, Pedroso e Seixezelo
750 000 €
Terreno para construção de armazéns com 12300 m2 - Matosinhos
Porto, Matosinhos, Perafita, Lavra e Santa Cruz do Bispo
3 300 000 €
Terreno Para Construção Venda em Monte Córdova,Santo Tirso
Porto, Santo Tirso, Monte Córdova
50 000 €
Partilha o imóvel: Terreno Continente Gaia com projeto aprovado licenças pagas
Partilha este imóvel nas tuas redes sociais ou envia diretamente para o email dos teus amigos.
Partilhar por email
Adicione uma nota ao imóvel!
Só você é que vê as notas que adiciona. Os imóveis com notas ficam nos favoritos para os poder consultar mais tarde.
Excluíste o anúncio:
Terreno Continente Gaia com projeto aprovado licenças pagas