Pesquisar perto de mim
A aguardar a sua pesquisa
Voltar
Terreno com vista mar e projecto aprovado
Terreno com vista mar e projecto aprovado
Terreno com vista mar e projecto aprovado
Terreno com vista mar e projecto aprovado
Ver galeria (21)
Ver galeria (21)
Seguir
Partilhar

Terreno com vista mar e projecto aprovado

Faro, Olhão, Moncarapacho e Fuseta Ver no mapa
468 000 €
0 Quartos
0 WC's
765m2
Área Útil: 765m2
Área Bruta: 1583m2
Certificação Energética: Isento

Descrição do anúncio

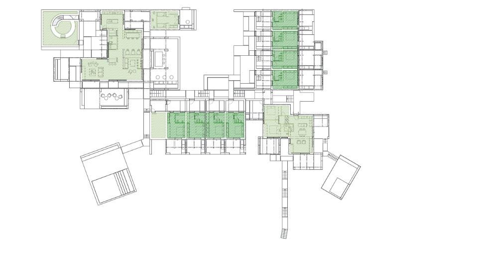
Localizada no topo de uma colina tranquila no Sotavento Algarvio, perto de Moncarapacho, Olhão, este terreno de 21.706 m² oferece uma rara oportunidade de investimento com vistas panorâmicas para o mar e grande potencial de desenvolvimento.

Composta inicialmente por três lotes distintos, o terreno foi unificado e abriga as ruínas de um antigo moinho de vento, que inspira o projeto de luxo sustentável. O projeto proposto procura combinar harmoniosamente um luxo discreto, um ambiente sereno e um forte compromisso com a sustentabilidade. Os planos incluem oito suites de hóspedes cuidadosamente concebidas e uma elegante villa privada com dois quartos e duas casas de banho. Com uma área útil de 459,83 m² + 305,69 m², cada elemento foi concebido para oferecer um conforto requintado, mantendo um profundo respeito pelo meio natural.

A proposta inclui oito suítes de hóspedes, uma villa privada de dois quartos, e áreas de lazer ao ar livre, como uma piscina e jardins. A construção será ecoeficiente, com energia solar e sistemas de reciclagem de águas, e uma quinta regenerativa para produção de alimentos locais e orgânicos. A localização, em Moncarapacho, oferece uma atmosfera autêntica e tranquila, cercada por laranjais e oliveiras, ideal para explorar a beleza natural da região. A cidade está a 25 minutos de carro do Aeroporto de Faro.

Galeria do imóvel

Terreno com vista mar e projecto aprovado
Terreno com vista mar e projecto aprovado
Terreno com vista mar e projecto aprovado
Terreno com vista mar e projecto aprovado
Terreno com vista mar e projecto aprovado
Terreno com vista mar e projecto aprovado

Localização do imóvel

Faro, Olhão, Moncarapacho e Fuseta

Referência do anúncio: T14X. Última atualização: 12 fevereiro 2026.

Relatório de preços praticados nos últimos 8 meses

Faro, Olhão, Moncarapacho e Fuseta

Simule um Crédito Habitação

Os dados apresentados são meramente indicativos. Condições gerais
Seguir
Partilhar
Ta Maison De Reve Lda
AMI 18719
Nome
Email
Contacto
Formato inválido
Agende uma visita
Referência do anúncio: T14X.
Última atualização: 12 fevereiro 2026.
Contactar
Veja também
Anúncios na mesma zona
Terreno urbano com projeto aprovado em tavira
Faro, Tavira, Santa Luzia
230 000 €
Terreno com projecto aprovado, inserido num Golfe Resort
Faro, Silves, Silves
450 000 €
Terreno agrícola 120.000m2 para plantações hortícolas e frutícolas. Portugal, Costa Vicentina, Lagos.
Faro, Lagos, Lagos (São Sebastião e Santa Maria)
850 000 €
Terreno Rústico - Alte
Faro, Loulé, Alte
70 000 €
Lote moradia em albufeira
Faro, Albufeira, Albufeira e Olhos de Água
280 000 €
LAGOS - Terreno para construção
Faro, Lagos, Lagos (São Sebastião e Santa Maria)
700 000 €
Fantástico terreno para construção em Loulé - Projeto Aprovado
Faro, Loulé, Loulé (São Clemente)
499 000 €
Terreno Rústico Venda em Loulé (São Sebastião),Loulé
Faro, Loulé, Loulé (São Clemente)
150 000 €
QUINTA - COM 36.720 M2 - MONTE ALGARVIO PRÓXIMO DA JUNQUEIRA - TURISMO RURAL - CASTRO MARIM - ALGARVE
Faro, Castro Marim, Azinhal
480 000 €
Lote de Terreno Urbano a 10 minutos de Alvor
Faro, Portimão, Mexilhoeira Grande
120 000 €
Partilha o imóvel: Terreno com vista mar e projecto aprovado
Partilha este imóvel nas tuas redes sociais ou envia diretamente para o email dos teus amigos.
Partilhar por email
Adicione uma nota ao imóvel!
Só você é que vê as notas que adiciona. Os imóveis com notas ficam nos favoritos para os poder consultar mais tarde.
Excluíste o anúncio:
Terreno com vista mar e projecto aprovado