Pesquisar perto de mim
A aguardar a sua pesquisa
Voltar
Terreno com Projeto de Loteamento – Excelente Oportunidade em Lagos
Terreno com Projeto de Loteamento – Excelente Oportunidade em Lagos
Terreno com Projeto de Loteamento – Excelente Oportunidade em Lagos
Terreno com Projeto de Loteamento – Excelente Oportunidade em Lagos
Ver galeria (18)
Ver galeria (18)
Seguir
Partilhar

Terreno com Projeto de Loteamento – Excelente Oportunidade em Lagos

Faro, Lagos, Lagos (São Sebastião e Santa Maria) Ver no mapa
580 000 €
0 Quartos
0 WC's
Certificação Energética: N/D
Estado: Em Projecto

Descrição do anúncio

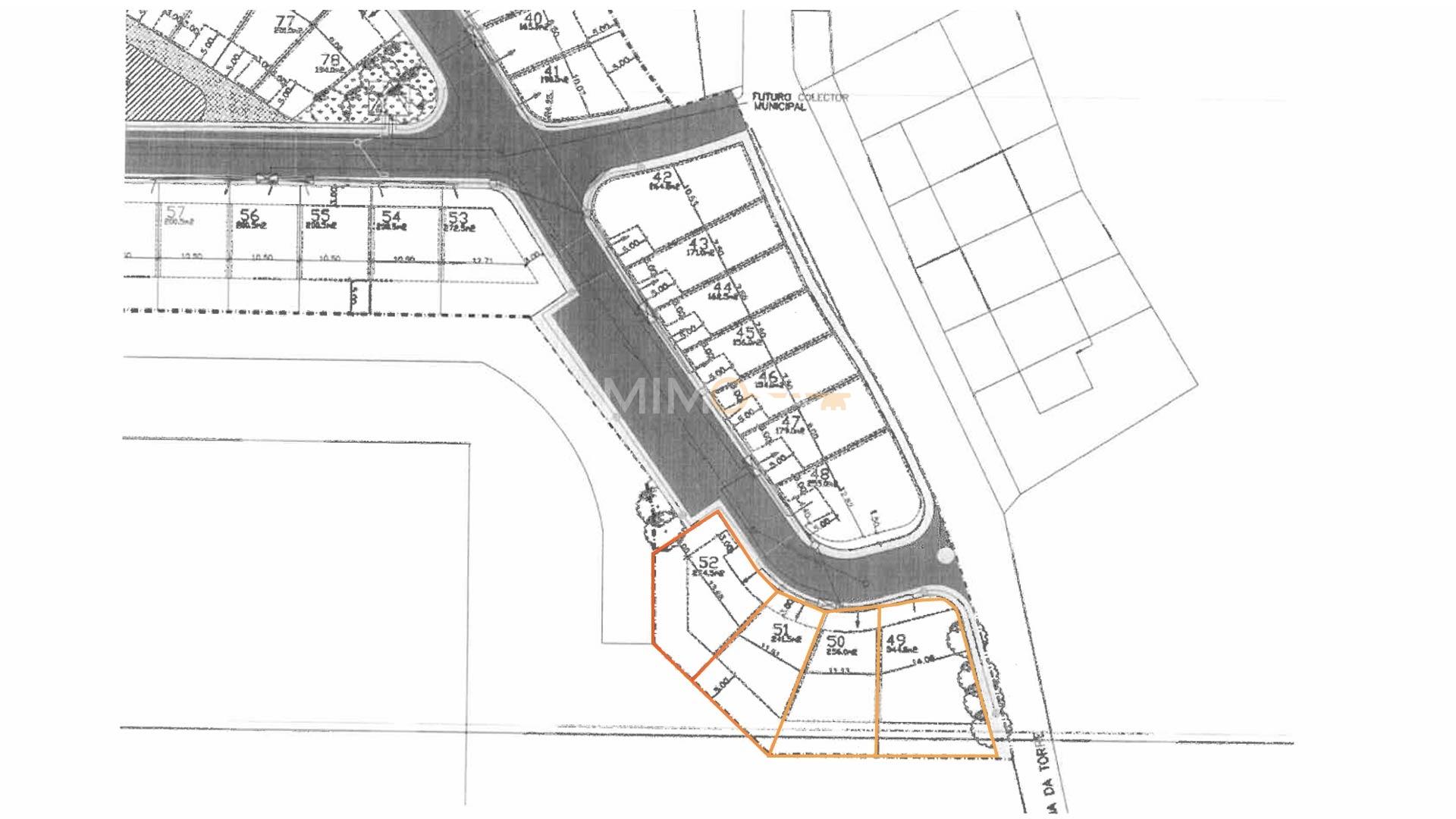
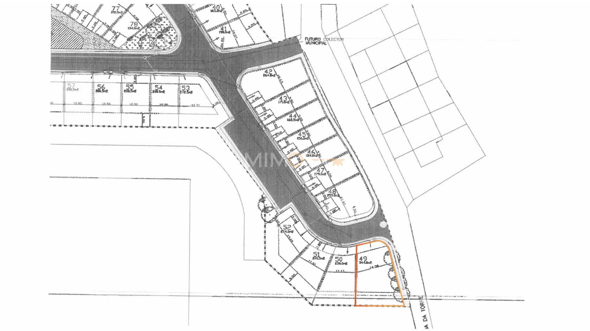
Excelente oportunidade de investimento! Terreno com 1.106 m², situado a poucos minutos do centro de Lagos, com acesso rápido às principais vias rodoviárias. Localizado numa zona em expansão, próximo ao Parque Industrial do Pinheiral e ao Retail Park, oferece elevado potencial de valorização.

Projeto de Loteamento Aprovado
Subdivisão em 4 lotes independentes, ideais para habitação ou comércio:
Lote 1: 256 m² | Implantação: 150 m² | Construção: 200 m²
Lote 2: 241,5 m² | Implantação: 150 m² | Construção: 200 m²
Lote 3: 274,5 m² | Implantação: 150 m² | Construção: 200 m²
Lote 4: 334 m² | Implantação: 150 m² | Construção: 200 m²Destaques
Localização estratégica
Projeto aprovado para 4 moradias
Zona com infraestruturas completas
Potencial residencial ou comercial
Venda global ou individual por loteNão perca esta oportunidade! Contacte-nos para mais informações ou agende a sua visita.

Características Gerais

  • Acesso com Estrada
  • Edificável

Galeria do imóvel

Terreno com Projeto de Loteamento – Excelente Oportunidade em Lagos
Terreno com Projeto de Loteamento – Excelente Oportunidade em Lagos
Terreno com Projeto de Loteamento – Excelente Oportunidade em Lagos
Terreno com Projeto de Loteamento – Excelente Oportunidade em Lagos
Terreno com Projeto de Loteamento – Excelente Oportunidade em Lagos
Terreno com Projeto de Loteamento – Excelente Oportunidade em Lagos

Localização do imóvel

Faro, Lagos, Lagos (São Sebastião e Santa Maria)

Referência do anúncio: T321. Última atualização: 17 julho 2025.

Relatório de preços praticados nos últimos 8 meses

Faro, Lagos, Lagos (São Sebastião e Santa Maria)

Simule um Crédito Habitação

Os dados apresentados são meramente indicativos. Condições gerais
Seguir
Partilhar
Mimosa Holiday
AMI 9140
282 ...
Chamada para a rede fixa nacional
Mostrar número
Nome
Email
Contacto
Formato inválido
Agende uma visita
Referência do anúncio: T321.
Última atualização: 17 julho 2025.
Contactar
Veja também
Anúncios na mesma zona
Terreno Rústico Venda em Boliqueime,Loulé
Faro, Loulé, Boliqueime
40 000 €
TERRENO RUSTICO COM 2.155 M2 - JUNQUEIRA - BELICHE - CASTRO MARIM - ALGARVE
Faro, Castro Marim, Azinhal
13 500 €
Terreno Para Construção Venda em Santa Bárbara de Nexe,Faro
Faro, Faro, Santa Bárbara de Nexe
285 000 €
Terreno Para Construção Venda em Loulé (São Clemente),Loulé
Faro, Loulé, Loulé (São Clemente)
250 000 €
TERRENO COM 10.160 M2 - PRÓXIMO A CORTE DO GAGO - CASTRO MARIM - ALGARVE
Faro, Castro Marim, Azinhal
19 000 €
TERRENO RÚSTICO COM 17.480 m2 - ÁGUA E SISTEMA SOLAR - ESTRUTURA AMOVÍVEL - PRÓXIMO AO MARROQUIL - AZINHAL CASTRO MARIM - ALGARVE
Faro, Castro Marim, Azinhal
170 000 €
Lote com projeto aprovado
Faro, São Brás de Alportel, São Brás de Alportel
250 000 €
Terreno rústico - Boliqueime
Faro, Loulé, Boliqueime
135 000 €
Terreno rústico em belo romão, moncarapacho - olhão
Faro, Olhão, Moncarapacho e Fuseta
12 500 €
TERRENO RUSTICO COM 7.360 M2 - BELICHE - EM CASTRO MARIM - ALGARVE
Faro, Castro Marim, Azinhal
14 900 €
Partilha o imóvel: Terreno com Projeto de Loteamento – Excelente Oportunidade em Lagos
Partilha este imóvel nas tuas redes sociais ou envia diretamente para o email dos teus amigos.
Partilhar por email
Adicione uma nota ao imóvel!
Só você é que vê as notas que adiciona. Os imóveis com notas ficam nos favoritos para os poder consultar mais tarde.
Excluíste o anúncio:
Terreno com Projeto de Loteamento – Excelente Oportunidade em Lagos