Pesquisar perto de mim
A aguardar a sua pesquisa
Voltar
Terreno com projeto aprovado para moradia em Complexo Turístico - Algarve
Terreno com projeto aprovado para moradia em Complexo Turístico - Algarve
Terreno com projeto aprovado para moradia em Complexo Turístico - Algarve
Terreno com projeto aprovado para moradia em Complexo Turístico - Algarve
Ver galeria (6)
Ver galeria (6)
Seguir
Partilhar

Terreno com projeto aprovado para moradia em Complexo Turístico - Algarve

Faro, Vila Real de Santo António, Vila Nova de Cacela Ver no mapa
2 070 000 €
0 Quartos
0 WC's
400m2
Área Útil: 400m2
Certificação Energética: A

Descrição do anúncio

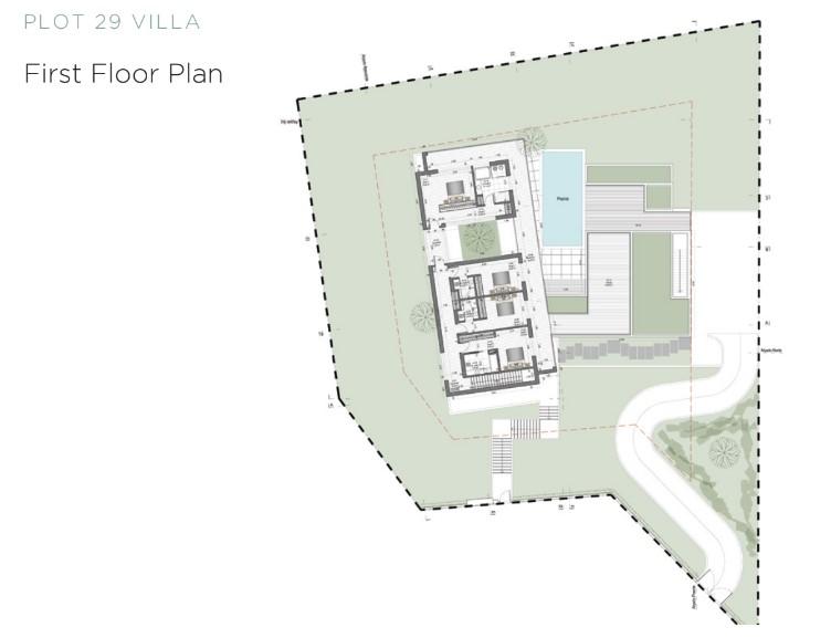
Lote de terreno para construção de uma moradia unifamiliar de Tipologia T5 com 399,60 m2, dos quais 39,30 m2 são na cave (piso -1), 189 m2 são relativos ao rés do chão e 171,30 m2 são no 1º anda. Existe projeto já aprovado pelo Resort e entregue à Câmara Municipal de Vila Real de Santo António.

Uma vez que o projeto está aprovado, a propriedade pode ser adquirida, tendo o cliente duas opções:

O cliente pode adquirir a estrutura da casa por 2 070 000€ e terminar a casa como desejar;
O cliente pode comprar a casa completamente acabada, no entanto, terá de pagar os custos de acabamento. O preço da casa terminada dependerá do tipo de materiais escolhidos pelo cliente.

Parcela de terreno para construção de uma moradia unifamiliar de Tipologia T5 com dois pisos e cave com 1838m2, inserida num Complexo Turístico Monte Rei em Vila Real de Santo António rodeada por campos de golfe.

O Complexo Turístico é constituído por 45 lotes de terreno sendo distribuído da seguinte forma:~

- 31 lotes para moradias;
- 1 lote para complexo turístico;
- 1 lote para clube de golfe;
- 6 lotes para campos de golfe;
- 1 lote campo de prática;
- 1 lote depósito de gás;
- 4 lotes para tanques de reserva de água.

Área de Implantação da moradia: 400m2

Localiza-se apenas:

- Acesso A22 3,5Km;
- Praia (Manta Rota) 8 Km;
- Praia (Alagoa) 9,5 Km;
- Aeroporto 67 Km.

Galeria do imóvel

Terreno com projeto aprovado para moradia em Complexo Turístico - Algarve
Terreno com projeto aprovado para moradia em Complexo Turístico - Algarve
Terreno com projeto aprovado para moradia em Complexo Turístico - Algarve
Terreno com projeto aprovado para moradia em Complexo Turístico - Algarve
Terreno com projeto aprovado para moradia em Complexo Turístico - Algarve
Terreno com projeto aprovado para moradia em Complexo Turístico - Algarve

Localização do imóvel

Faro, Vila Real de Santo António, Vila Nova de Cacela

Referência do anúncio: 0726/23. Última atualização: 21 janeiro 2025.

Relatório de preços praticados nos últimos 8 meses

Faro, Vila Real de Santo António, Vila Nova de Cacela

Simule um Crédito Habitação

Os dados apresentados são meramente indicativos. Condições gerais
Seguir
Partilhar
Golden Jupiter Unipessoal Lda
AMI 14719
Nome
Email
Contacto
Formato inválido
Agende uma visita
Referência do anúncio: 0726/23.
Última atualização: 21 janeiro 2025.
Contactar
Veja também
Anúncios na mesma zona
TERRENO COM RUINAS COM 14.040M2 - VISTA MAR E RIO - VALE FRIO - CASTRO MARIM - ALGARVE
Faro, Castro Marim, Azinhal
149 000 €
EN 125 - Loteamento para comércio, serviços ou indústria
Faro, Faro, Santa Bárbara de Nexe
3 000 000 €
DUAS MORADIAS ISOLADAS - NUM TERRENO DE 1.823 M² - UMA PRONTA A HABITAR - OUTRA PARA REABILITAR OU DEMOLIR - NA ALDEIA DE ALCARIAS GRANDES - AZINHAL - CASTRO MARIM - ALGARVE
Faro, Castro Marim, Azinhal
210 000 €
3
1
Terreno rústico
Faro, Monchique, Marmelete
18 900 €
Terreno rustico no bico alto
Faro, São Brás de Alportel, São Brás de Alportel
25 000 €
Lote de terreno com 2474m2 para construção de moradia isolada com 500 m2no Golfe Monte Rei
Faro, Vila Real de Santo António, Vila Nova de Cacela
548 800 €
Terreno com uma ruina e viabilidade de construção de uma moradia com 300 m2 em São João da Venda, Loulé
Faro, Faro, Santa Bárbara de Nexe
2 000 000 €
Terreno urbano - Vista mar
Faro, Castro Marim, Azinhal
150 000 €
Terreno misto com ruina. Barranco de São Miguel.
Faro, Olhão, Moncarapacho e Fuseta
125 000 €
Lote de 530.09m2 com projeto aprovado para construção de Moradia T4, na Urb. Espartal, Aljezur
Faro, Aljezur, Aljezur
300 000 €
Partilha o imóvel: Terreno com projeto aprovado para moradia em Complexo Turístico - Algarve
Partilha este imóvel nas tuas redes sociais ou envia diretamente para o email dos teus amigos.
Partilhar por email
Adicione uma nota ao imóvel!
Só você é que vê as notas que adiciona. Os imóveis com notas ficam nos favoritos para os poder consultar mais tarde.
Excluíste o anúncio:
Terreno com projeto aprovado para moradia em Complexo Turístico - Algarve